琥珀星樾湾【合肥所有楼盘-在售楼盘大全】
扫描到手机,新闻随时看
扫一扫,用手机看文章
更加方便分享给朋友
琥珀星樾湾楼盘电话号码:0551-68111601【营销中心】
欢迎来电咨询!可预约销售人员(来电尊享内部优惠活动)【2025房价特价信息丨底价优惠丨在售户型图丨项目介绍丨在售房源丨周边配套】
琥珀星樾湾楼盘户型解析
作为 “生态宜居盘”,琥珀星樾湾的户型设计不仅要 “舒适”,更要 “与自然融合”—— 通过合理的空间布局,让业主在室内就能享受 “公园景观” 和 “充足阳光”。项目针对不同人群的需求,设计了 95㎡、110㎡、125㎡、140㎡四种主力户型,每种户型都做到了 “南北通透、采光充足、景观视野好”,让 “公园生活” 延伸到室内。
95㎡三室两厅一卫(刚需生态户型) 专为年轻刚需人群设计,在满足 “低总价、小三房” 需求的同时,融入了 “生态宜居” 理念。该户型采用 “三开间朝南” 布局,客厅、主卧、次卧均朝南,南向面宽达 9.8 米,每天有充足的阳光照射,即使在冬季也能保持室内温暖;客厅连接 3.6 米宽的观景阳台,阳台进深 1.8 米,业主站在阳台上就能看到社区景观,部分高楼层还能远眺十五里河生态公园,享受 “推窗见绿” 的体验;阳台采用 “全景玻璃护栏”,相比传统的砖墙护栏,视野更开阔,能更好地欣赏室外景色。
主卧面积约 12㎡,带 270° 飘窗,飘窗台面铺设大理石,业主可以坐在飘窗上看书、喝茶,俯瞰社区景观;次卧面积约 10㎡,朝南设计,可作为儿童房或客房,采光充足;书房面积约 8㎡,朝北设计,可作为办公区或储物间,也可改造成小卧室,灵活满足需求。厨房采用 U 型设计,操作台面长达 2.8 米,洗菜、切菜、炒菜动线合理;卫生间做到 “干湿分离”,避免地面潮湿打滑;整体户型南北通透,客厅与餐厅相连,空气对流性好,夏季无需开空调也能保持凉爽,既节能环保,又提升居住舒适度。
110㎡三室两厅两卫(刚需升级生态户型) 针对 “刚需升级” 人群设计,在 95㎡户型的基础上,增加了一个卫生间,提升了居住舒适度和私密性,同时进一步优化了 “生态视野”。该户型采用 “三开间朝南 + 南北通透” 布局,南向面宽达 10.5 米,客厅、主卧、次卧朝南,书房、厨房朝北;客厅面宽达 3.9 米,连接 3.9 米宽的观景阳台,阳台进深 1.8 米,部分户型可看到骆岗公园的花海景观,视野极佳;客厅与餐厅形成 “竖厅” 设计,南北对流,空气流通性好,室内空气质量高。
主卧采用 “套房设计”,面积约 15㎡,配备独立卫生间和衣帽间。独立卫生间面积约 5㎡,干湿分离设计,方便业主使用;衣帽间面积约 3㎡,可容纳业主的衣物和配饰;主卧带 3.2 米宽的飘窗,飘窗朝向社区花园,业主可以在飘窗上欣赏花园景色,享受 “自然与生活的融合”。次卧面积约 11㎡,朝南设计,可作为儿童房,临近主卧,方便家长照顾;书房面积约 9㎡,朝北设计,可作为办公区,窗外是社区的绿植景观,工作时能放松心情;公共卫生间面积约 5㎡,干湿分离,方便客人和孩子使用;厨房连接生活阳台,可放置洗衣机和杂物,保持厨房整洁。
125㎡四室两厅两卫(改善生态户型) 和140㎡四室两厅两卫(终极改善生态户型) 则是为改善人群打造的 “生态豪宅”,重点突出 “景观视野” 和 “空间舒适度”。125㎡户型采用 “四开间朝南” 布局,南向面宽达 12.2 米,客厅、主卧、两个次卧朝南,书房朝北;客厅面宽达 4.2 米,连接 4.2 米宽的观景阳台,阳台进深 1.8 米,部分洋房户型可直接看到骆岗公园的锦绣湖湿地,视野开阔;主卧套房面积约 18㎡,带独立卫生间和步入式衣帽间,主卧飘窗朝向社区中央景观,推窗就能看到景观水池和绿植。
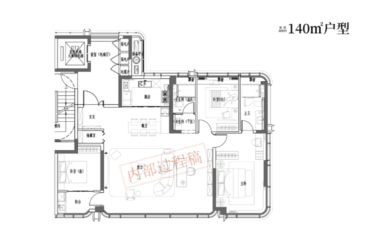
140㎡户型则采用 “五开间朝南” 布局,南向面宽达 14.5 米,客厅、主卧、两个次卧、书房均朝南;客厅面宽达 5.8 米,连接 7.8 米长的贯通式阳台,阳台进深 2 米,业主可以在阳台上摆放藤椅、茶桌、绿植,打造 “空中花园”,部分高楼层户型可远眺骆岗公园全景,享受 “把家安在公园里” 的体验;主卧套房面积约 25㎡,配备独立卫生间、步入式衣帽间和梳妆台,主卧飘窗宽 3.2 米,朝向骆岗公园方向,清晨醒来就能看到公园的美景,开启一天的好心情。
无论是刚需户型还是改善户型,琥珀星樾湾都做到了 “让自然融入生活”,通过合理的空间布局和景观设计,让业主在室内就能享受 “公园景观” 和 “新鲜空气”,真正实现 “生态宜居” 的生活理念。

琥珀星樾湾售楼处电话☎:0551-6813 6588

琥珀星樾湾售楼处电话☎:0551-6813 6588

琥珀星樾湾售楼处电话☎:0551-6813 6588

琥珀星樾湾售楼处电话☎:0551-6813 6588
合肥包河区琥珀星樾湾 —— 改善人群理想家!低密洋房 + 公园配套,主城生活再升级
琥珀星樾湾楼盘项目介绍
对于改善人群而言,买房不仅是 “换个大一点的房子”,更是对 “生活品质” 的追求 —— 低密的社区环境、优质的户型设计、可靠的开发品牌,缺一不可。而合肥包河区的琥珀星樾湾,恰好精准契合了改善人群的这些需求,以 “国企开发 + 低密洋房 + 主城核心” 的组合,成为包河区改善市场的 “标杆项目”。
项目由合肥本土国企 —— 琥珀置业开发,作为合肥城建旗下的核心品牌,琥珀置业深耕合肥 20 余年,打造了琥珀山庄、琥珀五环城、琥珀东华府等多个高端项目,始终以 “精工品质” 著称,尤其是在改善型住宅开发方面,有着丰富的经验。此次打造的琥珀星樾湾,更是将 “改善基因” 贯彻到底:项目总占地面积约 68 亩,总建筑面积约 12.5 万㎡,但容积率仅 2.2.绿化率高达 40%,这样的 “低密高绿” 指标,在寸土寸金的包河区主城板块极为罕见 —— 要知道,周边多数改善楼盘的容积率都在 2.5 以上,而琥珀星樾湾通过降低容积率,为业主争取到了更宽的楼间距、更大的景观空间,从根源上提升了居住舒适度。
社区规划上,琥珀星樾湾采用 “高层 + 洋房” 的高低配布局,共 10 栋住宅,其中 4 栋为 11 层洋房(占比 40%),6 栋为 18-22 层高层,总户数约 890 户,洋房户型面积为 125-140㎡,专为改善家庭设计。洋房产品采用 “一梯两户” 设计,相比高层的 “两梯四户”,不仅等待电梯的时间更短,而且居住人口更少,社区更安静,私密性更强;同时,洋房的得房率高达 85%,比高层高出 7 个百分点,以 140㎡洋房为例,实际使用面积比同面积高层多近 10㎡,相当于多了一个书房,空间利用率更高。
建筑品质上,琥珀星樾湾更是 “不计成本”:洋房外立面采用 “干挂石材 + 真石漆” 组合,不仅美观大气,而且耐老化、抗腐蚀,多年后依然能保持崭新的外观;高层外立面采用 “保温一体板”,隔音隔热效果优于普通涂料,冬季室内温度比周边小区高 3-5℃,夏季更凉爽,节省空调费用;社区公共区域如入户大堂、电梯间、地下车库均采用 “精装标准”,大堂吊顶采用石膏线装饰,地面铺设大理石,电梯间墙面贴瓷砖,地下车库采用环氧地坪,从细节处彰显改善盘的品质。

琥珀星樾湾售楼处电话☎:0551-6813 6588
琥珀星樾湾楼盘周边配套
对于 “国企精工盘” 而言,“品质” 不仅体现在楼盘本身,更体现在 “周边配套的成熟度”—— 毕竟,购房者买的不仅是 “一套房子”,更是 “一种便捷的生活”。琥珀星樾湾所处的包河区核心板块,配套已 “完全成熟”,无需等待 “规划落地”,入住即可享受 “交通、商业、教育、医疗、生态” 全方位便捷生活,与 “国企品质” 形成 “强强联合”。
交通配套:双主干道 + 地铁,通勤无忧项目位于 “包河大道 + 繁华大道” 两大城市主干道交汇处,这两条道路均为 “双向八车道”,路况好、通行效率高。从项目自驾出发,5 分钟可上包河大道高架,15 分钟直达合肥南站(高铁站),20 分钟抵达滨湖新区(融创茂、滨湖湿地公园),30 分钟可到政务区(天鹅湖、万象城)、经开区(明珠广场),无论是日常通勤还是跨区出行,都十分便捷。公共交通方面,项目距离地铁 1 号线延长线(规划中,2025 年通车)花园大道站仅 800 米,步行约 10 分钟,未来地铁通车后,可直达合肥火车站、淮河路步行街、滨湖新区,无需担心堵车;此外,项目周边 1 公里内有 14 路、27 路、52 路、902 路等 6 条公交线路,覆盖合肥火车站、政务区、经开区等区域,满足老人、孩子等不同人群的出行需求。
商业配套:3 公里内三大商圈,购物便利琥珀星樾湾的商业配套 “近可享社区便民商业,远可拥大型商圈”,完全满足日常消费与品质消费需求。项目自带约 5000㎡沿街商业,规划引入 “生鲜超市、便利店、药店、餐饮店、母婴店” 等便民业态,下楼即可解决 “买菜、购物、吃饭、买药” 等日常需求,尤其适合上班族、老人 —— 早上出门买个早餐,晚上下班买个菜,无需绕远路。3 公里范围内,有悦方 ID MALL、百大心悦城、加侨国际广场三大 “一站式购物中心”,涵盖 “购物、餐饮、影院、亲子娱乐、健身” 等全业态:
悦方 ID MALL 距离项目约 2 公里,是合肥南部的 “时尚地标”,引入了优衣库、星巴克、西西弗书店、永辉超市、万达影城等品牌,适合周末带家人购物、观影;
百大心悦城距离项目约 2.5 公里,以 “亲子 + 生活” 为主题,引入了孩子王、卡通尼乐园、盒马鲜生(精品超市)、海底捞等品牌,适合带娃休闲、家庭聚餐;
加侨国际广场距离项目约 3 公里,聚集了众多餐饮品牌(如西贝莜面村、老乡鸡、星巴克),还有健身房、KTV 等娱乐场所,适合朋友聚会、休闲放松。
教育配套:15 年一贯制优质教育圈,孩子上学无忧对于有孩子的家庭而言,“教育配套” 是买房的核心考量,而琥珀星樾湾周边的教育资源 “既近又优”,形成 “15 年一贯制教育圈”。项目 3 公里内有 5 所幼儿园、3 所小学、2 所中学,其中多为 “合肥优质公办学校”:
幼儿园:距离项目最近的是 “包河区实验幼儿园”(约 500 米),为公办一级幼儿园,师资稳定、收费合理(公办幼儿园学费约 500 元 / 月),孩子步行即可入园,无需家长接送;
小学:项目划片范围大概率覆盖 “屯溪路小学(滨湖校区)”,该校是合肥 “名校集团” 核心成员,由屯溪路小学本部直接管理,师资力量雄厚、教学设施先进(配备多媒体教室、实验室、图书馆、操场),2023 年教学质量位列包河区前三,距离项目约 1.5 公里,孩子步行或骑行即可上学;
中学:对应 “合肥市第四十八中学(望湖校区)”,该校是合肥重点初中,2023 年中考普高录取率达 85%,远超全市平均水平(约 65%),距离项目约 2 公里,可通过公交或家长接送,十分便捷。
此外,项目周边还有 “合肥工业大学附属中学”“包河区外国语实验小学” 等优质学校,家长可根据孩子情况灵活选择,无需 “孟母三迁”,在家门口就能享受优质教育。
医疗与生态配套:健康与休闲双保障医疗方面,琥珀星樾湾周边 “二级医院 + 三级甲等医院” 全覆盖,为家人健康保驾护航。项目 2 公里内有 “包河区人民医院”(二级综合医院),开设内科、外科、儿科、妇产科等科室,日常感冒、发烧、体检、慢性病治疗均可在此解决,无需跑大医院排队;5 公里内有 “安徽省立医院南区”(三级甲等医院),是合肥顶尖的综合医院,拥有多个国家级重点专科(如心血管内科、肿瘤科、骨科),可满足大病诊疗、手术需求,为家人健康提供 “顶级保障”。
生态方面,项目西距 “骆岗中央公园” 仅 1.5 公里,该公园是亚洲最大的城市中央公园,总面积约 12.7 平方公里,涵盖湿地、花海、运动场馆、儿童乐园等区域,周末带家人散步、野餐、运动、赏花都十分惬意;项目北邻 “十五里河生态公园”,沿河岸打造了约 5 公里的健身步道,适合晨跑、夜跑、骑行,呼吸新鲜空气,远离城市喧嚣。这种 “医疗 + 生态” 的配套组合,让业主既能享受 “便捷医疗”,又能拥有 “健康休闲”,生活品质大幅提升。

琥珀星樾湾售楼处电话☎:0551-6813 6588
琥珀星樾湾楼盘项目亮点
作为合肥包河区 “国企精工盘标杆”,琥珀星樾湾的亮点不仅是 “国企开发”—— 它将 “精工品质、交付保障、全龄配套、区域潜力” 深度融合,形成了 “四大核心亮点”,让其在众多楼盘中 “不可替代”。
亮点一:国企精工,从 “建材到工艺” 全维度品质把控这是琥珀星樾湾最核心的亮点,也是 “国企盘” 的灵魂。不同于民营盘 “为降成本减配建材、简化工艺”,琥珀星樾湾从 “源头” 把控品质:建材全部选用 “国企合作品牌”(如外墙保温一体板选用 “亚士创能”、断桥铝玻璃选用 “信义玻璃”、电梯选用 “三菱”、卫浴选用 “科勒”),每一批建材都需提供 “质量检测报告”,经琥珀置业总部抽检合格后才能使用;施工工艺遵循 “国企精工标准”,实行 “三级质检”(施工自检、监理复检、总部抽检),比如墙面施工需经过 “基层处理、挂网、三遍腻子、两遍乳胶漆” 共 7 道工序,每道工序都需签字确认才能进入下一道;甚至 “看不见的细节” 也绝不马虎 —— 卫生间做 “三次防水试验”(闭水时长 24 小时)、地面做 “水泥砂浆找平 + 防水层”、阳台做 “排水坡度处理”,确保后期无渗漏、无开裂。这种 “全维度品质把控”,让业主无需担心 “交房即维权”,住得更安心。
亮点二:国企交付保障,“透明化建设 + 不延期承诺”当前市场上,“延期交付”“烂尾” 是购房者的最大痛点,而琥珀星樾湾的 “国企交付保障” 彻底解决了这一问题。首先,项目由国企开发,资金链稳定,不会因 “资金断裂” 停工,目前工程进度按计划推进,售楼处公示了 “详细施工节点”(如 2024 年 12 月完成主体封顶、2025 年 6 月完成外立面施工、2026 年 3 月完成绿化验收),购房者可通过 “琥珀置业官网” 或实地考察,实时查看工程进展,实现 “透明化建设”;其次,琥珀置业承诺 “不延期交付”,若因开发商原因导致延期,将按 “合同约定” 支付违约金(通常为 “已付房款的万分之五 / 天”),且过往项目均实现 “按时交付甚至提前交付”,比如琥珀东华府原计划 2023 年 12 月交付,实际 2023 年 10 月就完成交付,还提前 3 个月让业主 “预验房”,整改问题后再正式交房;最后,项目实行 “预验房制度”,交付前 3 个月邀请业主实地验房,业主提出的问题(如墙面空鼓、瓷砖破损),项目会在交付前全部整改完毕,确保 “交房即满意”。
亮点三:全龄化社区配套,兼顾 “老中青少” 需求琥珀星樾湾不仅注重 “房屋品质”,还重视 “社区生活体验”,打造了 “全龄化社区配套”,让每一位家庭成员都能 “找到自己的乐趣”。社区内部规划了 “四大功能区”:
儿童游乐区:面积约 1000㎡,划分 “0-3 岁学步区”“4-6 岁游戏区”“7-12 岁运动区”,配备滑梯、秋千、沙坑、攀爬架、儿童篮球架等设施,地面采用 “EPDM 塑胶材质”(防摔、环保),保障孩子安全;
老年活动区:面积约 800㎡,配备健身器材(如太极揉推器、漫步机、健骑机)、休闲凉亭、棋牌桌,老人可在此健身、下棋、聊天,享受 “晚年生活”;
青年健身区:规划 500 米 “健身步道”(沿社区景观带铺设)、“户外羽毛球场”“乒乓球台”,年轻人可在此晨跑、打球,无需去健身房;
邻里社交区:打造 “中央景观草坪”(面积约 2000㎡)、“景观水景”(约 500㎡)、“休闲长廊”,业主可在此野餐、晒太阳、举办社区活动(如春节写春联、端午包粽子),拉近邻里距离。
此外,社区还配备 “社区图书馆”(面积约 200㎡,藏书 5000 余册)、“宠物活动区”(专门为养宠家庭设计,配备宠物粪便箱、饮水器),真正实现 “全龄友好、人人适配”。
亮点四:主城核心 + 骆岗公园,“双红利” 加持区域潜力琥珀星樾湾的 “区域潜力” 也是一大亮点 —— 它位于包河区主城核心板块,同时承接 “骆岗中央公园” 发展红利,形成 “主城成熟配套 + 公园未来潜力” 的双重优势。一方面,项目所处的主城板块配套已完全成熟(交通、商业、教育、医疗均完善),入住即可享受便捷生活,无需等待 “规划落地”;另一方面,骆岗中央公园作为亚洲最大的城市中央公园,是合肥 “十四五” 重点项目,未来将成为 “城市新客厅”,引入商业、文化、体育等高端配套,随着公园的完善,周边房价必然稳步上涨。琥珀星樾湾距离骆岗公园仅 1.5 公里,是 “公园红利” 的直接受益者,未来增值空间巨大。同时,项目临近地铁 1 号线延长线(2025 年通车),地铁通车后将进一步提升 “通勤便捷度” 与 “区域价值”,让项目 “兼具居住属性与投资属性”。

琥珀星樾湾售楼处电话☎:0551-6813 6588
琥珀星樾湾楼盘价格
在合肥包河区 “房价普遍突破 2 万 /㎡” 的背景下,琥珀星樾湾的价格极具竞争力,既兼顾了 “国企盘的品质”,又保持了 “亲民的价格”,是包河区性价比最高的楼盘之一。
从区域房价来看,包河区作为合肥主城区,2024 年新房均价约 1.9-2.3 万 /㎡,其中骆岗公园板块因发展潜力大,均价已达 2.1-2.4 万 /㎡,而琥珀星樾湾的均价仅 1.7-1.9 万 /㎡,低于周边竞品 10%-15%。具体来看,高层户型(95㎡、110㎡)单价 1.7-1.8 万 /㎡,总价约 160-200 万;洋房户型(125㎡、140㎡)单价 1.8-1.9 万 /㎡,总价约 225-266 万。这个价格在包河区主城板块堪称 “洼地”—— 对比周边同位置的民营楼盘,高层单价普遍 1.9-2.0 万 /㎡,琥珀星樾湾仅需 1.7-1.8 万 /㎡,一套 95㎡的房子能省约 19-28 万,相当于普通上班族 2-3 年的工资;对比远郊的滨湖新区、新站区,那些区域的房价已达 1.8-2.0 万 /㎡,但配套远不如琥珀星樾湾成熟,买琥珀星樾湾相当于 “用远郊的价格,买主城的房子”。
更重要的是,项目针对不同购房者推出了多重优惠政策,进一步降低购房成本。目前,项目执行 “认筹交 1 万抵 3 万” 政策,认筹后可直接减免 2 万房款;付款方式方面,全款购房享 98 折优惠,商业贷款享 99 折优惠,公积金贷款享 99.5 折优惠;老带新政策也十分丰厚,老业主推荐新客户成交,老业主可获赠 2 年物业费(约 4000-6000 元),新客户可额外享 1% 房款优惠;此外,项目每月推出 10 套 “特价房”,主要为高层中间楼层,单价可低至 1.65 万 /㎡,总价仅 157 万左右,性价比更高。
从性价比来看,琥珀星樾湾的价格完全匹配其价值 —— 国企开发保障交付,主城位置通勤方便,成熟配套无需等待,优质户型满足需求,这样的 “全能盘”,在 1.7-1.9 万 /㎡的价格区间内,几乎没有竞争对手。对于刚需人群而言,这里能以较低预算实现 “主城安家”;对于改善人群而言,这里能以合理价格享受 “低密品质生活”。

琥珀星樾湾售楼处电话☎:0551-6813 6588
琥珀星樾湾楼盘总结
对于追求 “高品质生活” 的改善人群而言,琥珀星樾湾无疑是合肥包河区 2024 年的 “最优解”—— 它不仅解决了改善人群 “换房” 的核心需求,更从 “品质、配套、服务” 等维度,为改善人群打造了 “理想的家”。
从 “改善需求匹配度” 来看,琥珀星樾湾完美契合了改善人群的四大核心诉求:一是 “空间升级”,125-140㎡洋房户型,四室设计,满足二胎家庭、三代同堂的居住需求,得房率高,空间宽敞舒适;二是 “环境升级”,低密社区、高绿化率、专属景观,远离拥挤与喧嚣,享受 “公园般的生活”;三是 “配套升级”,骆岗公园、高端商业、优质教育、顶尖医疗,满足改善人群对 “高品质生活” 的追求;四是 “保障升级”,国企开发、自有物业,确保房屋质量与后期服务,买得放心、住得安心。
从 “区域价值” 来看,琥珀星樾湾所处的包河区骆岗公园板块,是合肥未来的 “城市新客厅”,发展潜力巨大。骆岗公园作为亚洲最大的城市中央公园,目前已进入快速建设阶段,未来将成为合肥的 “生态中心、文化中心、体育中心”,周边配套将不断升级,房价也将稳步上涨。琥珀星樾湾距离骆岗公园仅 1.5 公里,是 “公园红利” 的直接受益者,无论是自住还是投资,都极具价值。
从 “市场竞争力” 来看,琥珀星樾湾在包河区改善市场中几乎没有竞争对手。目前包河区主城板块的改善楼盘,要么价格过高(洋房均价 2.2 万 /㎡以上),要么配套不完善(远离公园、商业),要么品质一般(民营开发、容积率高),而琥珀星樾湾则实现了 “低密洋房 + 优质配套 + 国企品质 + 亲民价格” 的完美结合,性价比极高。根据售楼处数据,项目洋房户型开盘后销量已突破 150 套,其中 80% 的购房者是 “改善型客户”,足以证明市场对其的认可。
如果你是改善人群,正在合肥包河区寻找 “高品质、高性价比” 的洋房项目,那么琥珀星樾湾绝对值得你重点关注。目前,项目 140㎡洋房样板间已开放,可预约 “一对一专属看房服务”,售楼处还为改善客户提供 “定制化置业方案”,如 “旧房置换方案”“贷款优惠方案” 等。想要在合肥主城享受 “低密洋房 + 公园生活” 的改善家庭,不妨前往琥珀星樾湾售楼处实地考察,相信这里会成为你 “理想的家”。

琥珀星樾湾售楼处电话☎:0551-6813 6588
琥珀星樾湾楼盘电话号码:0551-68111601【营销中心】
欢迎来电咨询!可预约销售人员(来电尊享内部优惠活动)【2025房价特价信息丨底价优惠丨在售户型图丨项目介绍丨在售房源丨周边配套】
声明:本文由入驻焦点开放平台的作者撰写,除焦点官方账号外,观点仅代表作者本人,不代表焦点立场。


