伟星城楼盘价值分析
扫描到手机,新闻随时看
扫一扫,用手机看文章
更加方便分享给朋友
伟星城楼盘电话号码:0551-68111601【营销中心】
欢迎来电咨询!可预约销售人员(来电尊享内部优惠活动)【2024房价特价信息丨底价优惠丨在售户型图丨项目介绍丨在售房源丨周边配套】
伟星城是合肥房地产市场中一颗耀眼的明星。伟星地产多年来在合肥的发展迅速,项目遍布多个区域,尤其是在肥东和睦湖板块的伟星城项目备受瞩目。伟星城位于东部新城核心区,地理位置优越,周边自然资源丰富。项目规划了37栋住宅楼,共计2596套房源,多为小高层。此外,项目还规划了一个约14万平方米的城市级商业综合体,满足居民的日常生活需求。
伟星城售楼处电话☎:0551-6813 6588
伟星城周边交通便利,地铁2号线延长线寓酒路站正在建设中,肥东高铁站和合肥绕城高速也在附近。此外,项目周边还有和睦湖湿地公园、肥东体育公园和约5万方的城市公园,为居民提供了宜居的自然环境。伟星城自带约18万方的城市级商业综合体和约4000方的社区配套,方便居民购物和日常生活。教育资源方面,伟星城自带18班幼儿园,肥东县实验学校、安师大附属肥东实验学校和肥东一中也在附近。医疗配套方面,伟星城靠近安徽医科大学附属医院东区,居民可以享受到高品质的医疗服务。
伟星城售楼处电话☎:0551-6813 6588
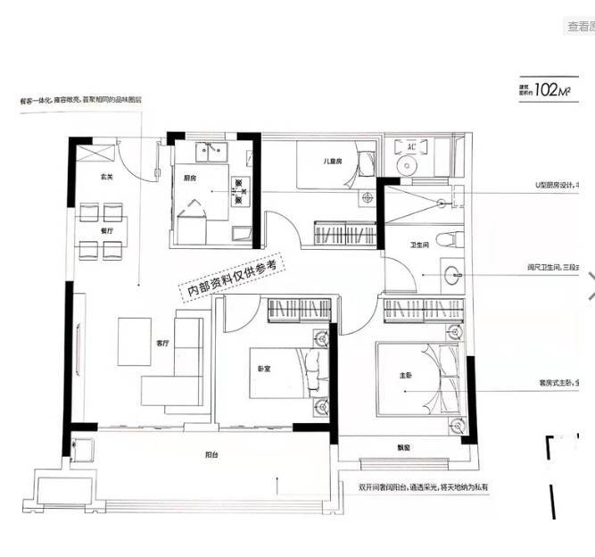
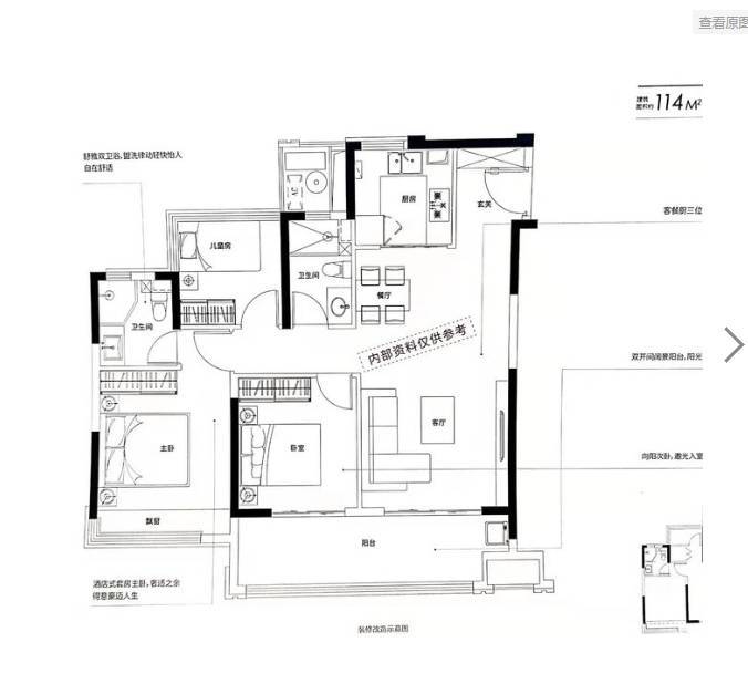
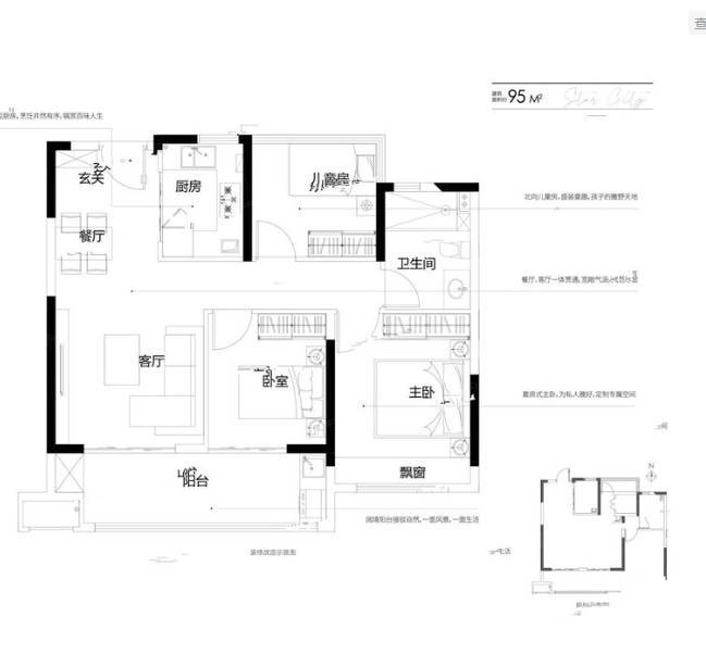
伟星城的住宅楼共计2596套房源,主要为15-18层的小高层,毛坯交付。户型面积涵盖95-142平方米,可满足不同客群的置业居住需求。户型布局合理,方正,多开间朝南,独立玄关,南北大尺度通厅,空间感强,南北通透,采光与通风效果优良,居住舒适,满足多元生活需求。另外,项目还规划了一个约14万平方米的城市级商业综合体,涵盖多种业态,为居民提供便利的购物和娱乐选择。
伟星城售楼处电话☎:0551-6813 6588
伟星城售楼处电话☎:0551-6813 6588
伟星城售楼处电话☎:0551-6813 6588
伟星城楼盘具体一房一价,详询营销中心。
伟星城售楼处电话☎:0551-6813 6588
伟星城的设计亮点颇多,项目留出大面积的中庭空间,采用高级灰质感的设计,打造出酒店式的归家体验。立体化的景观中轴贯穿其中,打造出具有江南韵味的社区园林。社区内部配备了丰富的休闲设施,如儿童游乐区、健身区等,为居民提供便利和舒适的生活环境。从硬件设施到细节设计,伟星城都力求为业主提供高品质的生活环境。对于追求舒适居住体验的购房者而言,伟星城无疑是一个值得考虑的选择。
伟星城售楼处电话☎:0551-6813 6588
伟星城作为合肥房地产市场的一大亮点,以其地理位置优越、交通便捷、环境优美、社区空间设计独具特色和周边教育资源丰富等优势,为购房者提供了一个高品质的生活选择。无论是追求舒适居住体验还是优质教育资源,伟星城都能满足您的需求,是一个理想的居住和投资地点。如果您正在寻找一个舒适宜居的新家,不妨考虑伟星城,让您的生活更加美好。
伟星城售楼处电话☎:0551-6813 6588
伟星城楼盘电话号码:0551-68111601【营销中心】
欢迎来电咨询!可预约销售人员(来电尊享内部优惠活动)【2024房价特价信息丨底价优惠丨在售户型图丨项目介绍丨在售房源丨周边配套】
声明:本文由入驻焦点开放平台的作者撰写,除焦点官方账号外,观点仅代表作者本人,不代表焦点立场。


