招商奥体公园新房周边配套-价格
扫描到手机,新闻随时看
扫一扫,用手机看文章
更加方便分享给朋友
招商奥体公园地理位置,更多项目详情请拨打楼盘电话:0551-6258 9911【预约热线】欢迎来电咨询!
合肥新站央企品质盘!招商奥体公园 —— 安心置业的品质之选
一、招商奥体公园楼盘项目介绍
在房地产市场波动的背景下,央企开发的楼盘凭借稳健的实力、过硬的品质和可靠的交付保障,成为购房者置业的 “定心丸”。位于合肥新站区东方大道与卧龙湖路交口往南 200 米的招商奥体公园,由百年央企招商蛇口倾力打造,作为招商局集团旗下核心企业,招商蛇口深耕地产行业 40 余年,始终坚持 “稳健经营、品质为先” 的发展理念,在全国 111 个城市打造了超 600 个精品项目,凭借雄厚的资金实力、丰富的开发经验和卓越的产品品质,赢得了市场和业主的广泛认可。
招商奥体公园总占地面积约 180 亩,总建筑面积超 35 万平方米,总投资超 50 亿元,是新站区重点规划的大型综合性社区。项目规划容积率仅 2.0.绿化率高达 40%,建筑密度 22%,在保障居住舒适度的同时,彰显央企对品质生活的追求。项目整体规划涵盖高层住宅、洋房、社区商业、12 班制公办幼儿园等多种业态,其中住宅总户数约 2200 户,车位配比 1:1.2.充分满足业主居住与停车需求。
作为央企开发的标杆项目,招商奥体公园在品质把控上达到了行业高标准。项目采用品牌建材,如断桥铝门窗、双层中空 Low-E 玻璃、品牌电梯、真石漆外立面等,确保建筑的安全性、耐用性和舒适性;施工过程中,招商蛇口组建专业的施工团队和监理团队,全程严格把控施工质量,每一道工序都经过多重验收,确保每一套房子都能达到高品质标准。
社区内部规划了约 5000㎡中央景观花园、800 米环形健身步道、全龄段休闲配套及智慧社区系统,全方位提升居住品质。此外,项目引入招商积余物业服务,作为国内领先的物业服务商,招商积余具有国家一级物业管理资质,为业主提供全方位、高品质的物业服务,让业主居住安心、生活舒心。
招商奥体公园不仅是一处居住空间,更是央企实力与品质的集中体现,为合肥购房者打造了 “买得放心、住得安心” 的品质家园。
招商奥体公园售楼处电话☎:0551-6813 6588
二、招商奥体公园楼盘周边配套
对于购房者而言,周边配套的完善程度直接决定了居住的便利性与舒适度,而招商奥体公园凭借优越的区位优势,坐拥全方位的醇熟配套,让业主无需等待规划兑现,即刻享受便捷生活。
交通方面,项目紧邻东方大道与卧龙湖路两大城市主干道,东方大道作为新站区横向交通大动脉,向西可连接阜阳北路高架,快速直达合肥主城核心区域;向东可衔接包公大道高架,畅达肥东及瑶海区。卧龙湖路则是纵向交通要道,向北连接北外环高速,向南直达新站区政务核心板块。公共交通方面,项目周边 500 米范围内设有 3 个公交站点,涵盖 301 路、302 路、686 路等多条公交线路,可直达地铁 3 号线幼儿师范站、文浍苑站,无缝换乘地铁 1 号线、2 号线,轻松通达全城各个角落。未来,随着地铁 9 号线(规划中)的建成通车,项目的交通优势将进一步凸显,出行效率大幅提升。
教育资源方面,招商奥体公园周边教育氛围浓厚,形成了从幼儿园到中学的全龄段教育体系。项目内部规划有一所 12 班制幼儿园,让孩子在家门口就能享受优质的启蒙教育。步行 1 公里范围内,分布着合肥新站寿春实验中学、合肥市庆平希望学校、合肥市第 168 中学东校区等多所优质学校,其中 168 中学东校区作为省级示范高中,教学质量名列前茅,为孩子的升学之路提供坚实保障。此外,周边还有多所规划中的中小学,教育资源持续升级,满足业主对孩子教育的高要求。
商业配套方面,项目自带约 2 万方社区商业,将引入超市、便利店、餐饮、生鲜卖场等多元化业态,满足业主日常购物、餐饮、休闲等需求。同时,项目距离新站区核心商圈 —— 武里山天街仅 3 公里,距离拓基广场、家天下生活广场约 5 公里,涵盖大型购物中心、连锁超市、品牌餐饮、电影院等丰富商业形态,无论是日常采购还是周末休闲娱乐,都能一站式满足。此外,周边还有多个在建的商业综合体,未来商业氛围将更加浓厚,生活便利性进一步提升。
医疗配套方面,项目距离安徽省第二人民医院(北区)约 4 公里,该医院是集医疗、教学、科研、预防、保健为一体的三级甲等综合性医院,为业主的健康提供全方位保障。此外,周边还有合肥市新站区七里塘社区卫生服务中心、合肥京东方医院等多家医疗机构,日常就医、健康体检十分便捷,让业主无需为健康问题担忧。
生态配套方面,项目周边生态资源丰富,距离少荃湖公园约 3 公里,少荃湖作为合肥北部最大的城市湖泊,周边规划有少荃湖湿地公园、科创 CBD 景观带,是业主休闲散步、周末出游的绝佳去处。此外,项目周边还有新站区生态公园、瑶海公园等多个城市公园,形成天然氧吧,为业主提供清新的空气和舒适的居住环境。
招商奥体公园售楼处电话☎:0551-6813 6588
三、招商奥体公园楼盘户型解析
招商奥体公园深入洞察通勤家庭的居住需求,结合项目交通枢纽的核心优势,打造了多款兼具便捷性、实用性和舒适性的户型产品,涵盖 89㎡、105㎡、128㎡、143㎡四个主力面积段,从刚需小三室到高端改善大四室,满足不同通勤家庭的居住需求,让便捷出行与舒适居住完美融合。
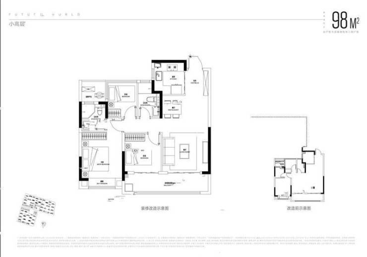
89㎡三室两厅一卫:刚需通勤户,紧凑实用
89㎡三室两厅一卫户型是刚需通勤家庭的首选,整体布局方正,南北通透,空间利用率高达 85%,同时细节设计贴合通勤需求,让小户型也能享受便捷舒适的生活。
入户处设置独立玄关,宽度 1.2 米,深度 1.5 米,可作为通勤装备收纳区,放置鞋柜、衣帽架、公文包、通勤鞋等物品,让居家环境整洁有序。玄关右侧设有挂钩和换鞋凳,方便业主通勤回家后及时换鞋、挂衣物,细节设计贴心,节省出行准备时间。
客厅位于户型中央,面宽 3.6 米,进深 4.2 米,空间宽敞明亮。客厅与南向阳台相连,阳台面宽 3.6 米,进深 1.8 米,采用全景落地窗设计,采光通风极佳。阳台可设置休闲区,摆放休闲沙发、茶几,业主通勤回家后可在此放松身心;同时预留了洗衣机接口,方便清洗通勤衣物,保持整洁。
餐厅紧邻客厅和厨房,面积约 6㎡,可容纳 4-6 人同时用餐。餐厅与厨房之间设有滑动门,既保证了用餐环境的整洁,又能方便上菜,让业主通勤回家后能快速享用晚餐,节省时间。
厨房位于户型西侧,采用 U 型设计,操作台面长 3.5 米,洗切炒动线合理,预留双开门冰箱位置。厨房靠近餐厅,用餐、上菜便捷,适合快速烹饪早餐和晚餐,满足通勤家庭的饮食需求。
三个卧室分布在户型东侧和北侧,动静分离,避免了活动区对休息区的干扰。主卧位于户型东侧,面宽 3.2 米,进深 3.8 米,带有南向飘窗,采光充足,空间宽敞,可放置 1.8 米宽的床和衣柜,保证业主通勤后的休息质量。两个次卧面宽均为 2.7 米,空间充足,其中一个次卧可作为书房,摆放书桌、书架,方便业主加班办公;另一个次卧可作为儿童房或老人房,满足家庭多样化需求。
卫生间位于户型北侧,面积约 4.5㎡,采用干湿分离设计,提高使用效率,避免潮湿问题。卫生间配备淋浴和洗漱设施,满足业主通勤前后的清洁需求,让出行更体面。
105㎡三室两厅两卫:改善通勤户,舒适升级
105㎡三室两厅两卫户型是改善型通勤家庭的优选,在 89㎡户型基础上升级,空间更加宽敞,舒适度更高,同时强化了通勤家庭的居住需求,让业主享受更便捷舒适的生活。
入户玄关更加开阔,宽度 1.5 米,深度 1.8 米,可设置多功能收纳柜,专门划分通勤装备收纳区,放置通勤包、运动鞋、雨伞等物品,收纳空间充足,让居家环境整洁有序。玄关处采用大理石地面,耐磨易清洁,适合通勤家庭高频次使用。
客厅面宽提升至 3.8 米,进深 4.5 米,空间更加宽敞明亮。客厅与南向阳台相连,阳台面宽 3.8 米,进深 2.0 米,采用全景落地窗设计,视野更加开阔,采光通风效果更佳。阳台可打造为休闲办公区,摆放书桌和休闲沙发,业主通勤间隙可在此处理工作事务,或放松身心;同时预留了洗衣机和烘干机接口,方便快速处理通勤衣物,节省时间。
餐厅面积约 7㎡,可容纳 6-8 人同时用餐,与客厅形成通透的一体化空间,增强了空间的开阔感。餐厅窗户朝向社区景观,用餐时也能欣赏到自然美景,缓解通勤疲劳。
厨房位于户型西侧,采用 U 型设计,操作台面长 3.8 米,空间更加宽敞,预留双开门冰箱位置,满足大家庭的饮食储备需求。厨房与餐厅之间采用开放式设计(可设置滑动门),增强了空间的互动性,业主在烹饪时可与家人互动交流,同时烹饪效率更高,适合通勤家庭快速准备餐食。
三个卧室分布合理,动静分离。主卧采用套房设计,面宽 3.3 米,进深 4.8 米,带有南向飘窗,采光充足,空间宽敞。主卧配备独立卫生间和衣帽间,保障了业主的隐私和舒适度,让业主通勤回家后能享受专属的放松空间。独立卫生间采用干湿分离设计,配备智能马桶和花洒,提升清洁体验,缓解通勤疲劳。两个次卧面宽均为 2.8 米,空间充足,采光良好,其中一个次卧可作为儿童房,方便孩子休息;另一个次卧可作为客房或备用书房,满足家庭多样化需求。
公共卫生间位于两个次卧之间,面积约 5㎡,采用干湿分离设计,使用方便,满足家庭成员的日常清洁需求,避免早高峰使用冲突。
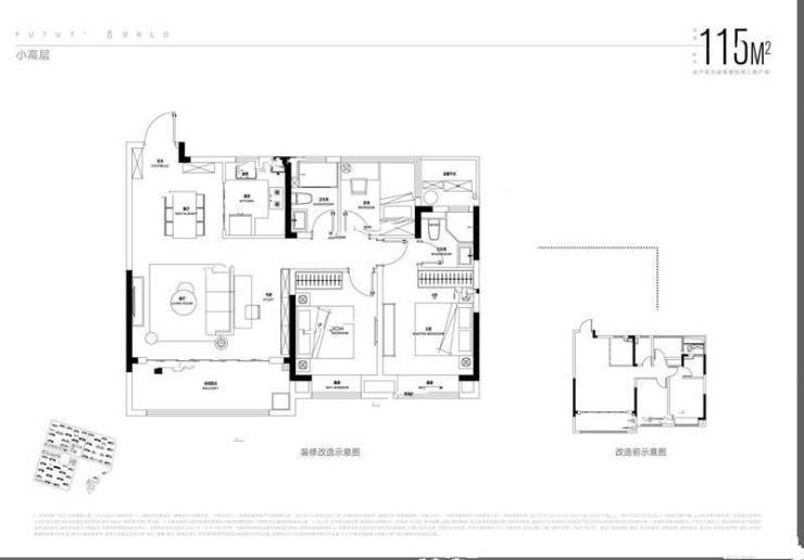
128㎡四室两厅两卫:改善通勤户,阔绰舒适
128㎡四室两厅两卫户型是多孩通勤家庭的理想选择,户型方正通透,南北双阳台设计,空间阔绰,既能满足家庭成员的居住需求,又能提供充足的收纳和休闲空间,让通勤家庭的生活更加便捷舒适。
入户玄关宽敞明亮,宽度 1.8 米,深度 2.0 米,可设置入户花园或大型收纳柜,专门划分通勤装备和家庭杂物收纳区,放置自行车、婴儿车、通勤包等物品,让居家环境整洁有序。玄关处摆放绿植,营造自然清新的氛围,缓解业主通勤后的疲劳。
客厅面宽 4.0 米,进深 4.8 米,空间宽敞开阔。客厅与南向景观阳台相连,阳台面宽 4.0 米,进深 2.0 米,采用全景落地窗设计,采光通风极佳。阳台可打造为家庭休闲区,摆放休闲沙发、茶几和绿植,全家一起放松交流,增进感情;同时预留了洗衣机和烘干机接口,功能实用。
北向生活阳台与餐厅相连,面宽 3.0 米,进深 1.8 米,可作为储物区和生活辅助区,放置家庭杂物、行李箱等,功能分区明确,提高空间利用率。
厨房位于户型西侧,采用 L 型设计,操作台面长 4.0 米,空间宽敞,动线合理。厨房与餐厅相邻,用餐、上菜便捷,厨房预留了辅食机、烤箱等家电位置,方便为孩子制作营养餐食,满足多孩家庭的饮食需求。
四个卧室分布合理,动静分离,避免了活动区对休息区的干扰。主卧采用套房设计,面宽 3.5 米,进深 5.0 米,带有南向全景飘窗,采光充足,空间宽敞奢华。主卧配备独立卫生间和步入式衣帽间,独立卫生间面积约 5㎡,采用干湿分离设计,配备浴缸和花洒,让业主通勤回家后能享受舒适的泡澡体验,缓解疲劳。
两个南向次卧面宽均为 3.0 米,采光良好,可作为孩子的卧室,每个房间都能放置书桌和衣柜,满足孩子休息和学习的需求;北向次卧可作为家庭书房或办公区,摆放多人书桌和大型书架,方便业主加班办公或辅导孩子学习,兼顾工作与家庭。
公共卫生间位于户型北侧,面积约 5.5㎡,采用干湿分离设计,配备高端洁具,满足家庭成员的日常使用需求,避免早高峰使用冲突。
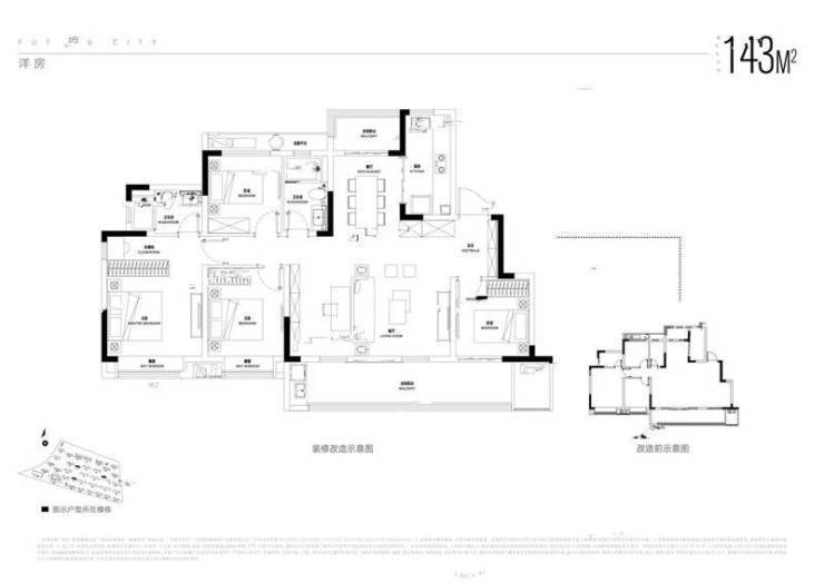
143㎡四室两厅两卫:高端通勤户,奢华尊享
143㎡四室两厅两卫户型是高端通勤家庭的终极之选,空间开阔,布局奢华,品质感十足,同时为通勤家庭提供了全方位的便捷支持,让便捷出行与奢华生活完美融合。
入户采用子母门设计,玄关宽度 2.0 米,深度 2.2 米,大理石地面搭配吊顶设计,彰显尊贵感。玄关处设置大型收纳柜和展示区,收纳高端通勤装备、行李箱等物品,展示家庭合影和艺术摆件,打造专属的入户空间。
客厅面宽 4.2 米,进深 5.0 米,空间宽敞开阔,气势十足。客厅与南向 6.8 米宽超宽阳台相连,阳台进深 2.0 米,采用全景落地窗设计,视野开阔,采光通风极佳。阳台可打造为多功能休闲区,一侧设置休闲沙发、茶几和跑步机,业主通勤回家后可在此放松身心、锻炼身体;另一侧设置储物区,放置家庭杂物,功能多样。
餐厅面积约 9㎡,可容纳 10-12 人同时用餐,与客厅形成通透的一体化空间,增强了空间的开阔感。餐厅与北向生活阳台相连,北向阳台可作为生活辅助区,放置冰箱、储物柜,储存食材和生活用品,方便日常使用。
厨房采用中西厨设计,中厨封闭烹饪,避免油烟扩散;西厨可作为早餐台或简餐区,满足通勤家庭快速准备早餐的需求。中厨采用 U 型设计,操作台面长 4.5 米,空间宽敞,动线合理,预留双开门冰箱位置和各类家电接口,满足高端家庭的饮食需求。西厨与餐厅相邻,用餐便捷,同时增强了空间的互动性。
四个卧室分布合理,动静分离,私密性强。主卧豪华套房设计,面宽 3.6 米,进深 5.2 米,带有南向全景飘窗,采光充足,空间宽敞奢华。主卧配备独立卫生间、步入式衣帽间和小型休闲区,独立卫生间面积约 6㎡,采用干湿分离设计,配备高端卫浴设施和桑拿房,让业主通勤回家后能享受专业的放松体验,缓解肌肉疲劳。
两个南向次卧面宽均为 3.2 米,空间充足,采光良好,可作为孩子的卧室或客房,每个房间都能满足休息、学习和储物的多重需求;北向次卧可作为专业书房或办公区,配备高端办公家具和设备,方便业主在家处理工作事务,兼顾工作与生活的平衡。
公共卫生间位于户型北侧,面积约 6㎡,采用干湿分离设计,配备高端洁具和烘干设备,方便通勤后快速清洁、烘干衣物,提升生活便利性。
招商奥体公园售楼处电话☎:0551-6813 6588
招商奥体公园售楼处电话☎:0551-6813 6588
招商奥体公园售楼处电话☎:0551-6813 6588
招商奥体公园售楼处电话☎:0551-6813 6588
招商奥体公园售楼处电话☎:0551-6813 6588
四、招商奥体公园楼盘价格
在合肥楼市中,新站区凭借高性价比成为刚需与投资客的热门选择,而招商奥体公园作为区域内的标杆楼盘,不仅品质出众,价格更具竞争力,同时具备清晰的升值预期,是投资置业的优选。
主力户型价格区间
目前,招商奥体公园销售均价为 13500 元 /㎡-15000 元 /㎡,根据户型、楼层、朝向不同,价格有所差异,具体如下:
89㎡三室两厅一卫:总价 120 万元 - 130 万元,单价 13500 元 /㎡-14600 元 /㎡。低楼层(1-5 层)单价 13500 元 /㎡-13800 元 /㎡,总价 120 万元 - 121 万元;中楼层(6-15 层)单价 13800 元 /㎡-14300 元 /㎡,总价 123 万元 - 127 万元;高楼层(16-24 层)单价 14300 元 /㎡-14600 元 /㎡,总价 127 万元 - 130 万元。
105㎡三室两厅两卫:总价 140 万元 - 155 万元,单价 13300 元 /㎡-14800 元 /㎡。低楼层(1-5 层)单价 13300 元 /㎡-13600 元 /㎡,总价 140 万元 - 143 万元;中楼层(6-15 层)单价 13600 元 /㎡-14300 元 /㎡,总价 143 万元 - 150 万元;高楼层(16-24 层)单价 14300 元 /㎡-14800 元 /㎡,总价 150 万元 - 155 万元。
128㎡四室两厅两卫:总价 170 万元 - 190 万元,单价 13200 元 /㎡-14800 元 /㎡。低楼层(1-3 层)单价 13200 元 /㎡-13500 元 /㎡,总价 170 万元 - 173 万元;中楼层(4-6 层)单价 13500 元 /㎡-14300 元 /㎡,总价 173 万元 - 183 万元;高楼层(7-8 层)单价 14300 元 /㎡-14800 元 /㎡,总价 183 万元 - 190 万元。
143㎡四室两厅两卫:总价 190 万元 - 215 万元,单价 13300 元 /㎡-15000 元 /㎡。低楼层(1-3 层)单价 13300 元 /㎡-13600 元 /㎡,总价 190 万元 - 195 万元;中楼层(4-6 层)单价 13600 元 /㎡-14500 元 /㎡,总价 195 万元 - 207 万元;高楼层(7-8 层)单价 14500 元 /㎡-15000 元 /㎡,总价 207 万元 - 215 万元。
价格优势与投资性价比
相比周边同类型楼盘,招商奥体公园价格优势显著。周边同类央企开发楼盘均价普遍在 14500 元 /㎡-16000 元 /㎡,项目每平米价格低 1000 元 - 1500 元,以 105㎡户型为例,总价可节省 10 万元 - 16 万元,投资性价比极高。
同时,项目推出多项购房优惠政策,进一步降低投资门槛:3 人及以上团购可享 98 折优惠;7 天内按时签约享 99 折优惠;首付分期政策支持首期 10% 首付,剩余首付 6 个月内付清,无需支付利息;老带新成交,新业主享 99.5 折优惠。这些优惠政策让投资客以更低成本入手,提升投资回报率。
升值预期与投资回报
招商奥体公园的升值潜力主要来自三大核心因素:
区域价值升级:随着新站区产业升级、配套完善,区域房价呈稳步上涨趋势,近 3 年新站区核心板块房价年均涨幅约 5%-8%,未来地铁 9 号线通车、少荃湖科创 CBD 建成后,区域价值将进一步提升,预计年均涨幅可达 8%-10%。
品牌溢价:招商蛇口作为百年央企,开发的楼盘在二手房市场中比周边非品牌楼盘溢价约 10%-15%。以周边同户型二手房为例,招商旗下楼盘二手房价格普遍高出周边 1500 元 /㎡-2000 元 /㎡,品牌溢价效应显著。
配套兑现红利:项目周边地铁 9 号线、少荃湖科创 CBD、规划中小学等配套将在未来 3-5 年内陆续兑现,每一项配套的落地都将推动房价上涨,预计配套全部兑现后,项目房价有望上涨 20%-30%。
按照当前价格计算,投资 89㎡户型,5 年后预计总价可达 144 万元 - 169 万元,投资回报率约 20%-30%;投资 143㎡高端户型,因稀缺性更强,投资回报率有望达到 30%-40%,是合肥楼市中极具投资价值的楼盘。
招商奥体公园售楼处电话☎:0551-6813 6588
五、招商奥体公园楼盘项目亮点
招商奥体公园作为合肥新站区的生态宜居标杆楼盘,凭借多项突出亮点,成为追求自然舒适生活购房者的首选,其核心亮点主要体现在以下几个方面。
低密生态规划,宜居环境标杆
项目容积率仅 2.0.绿化率高达 40%,是区域内少有的低密生态社区。低密规划意味着更少的居住人口、更宽敞的公共空间和更好的居住舒适度,避免了高密度社区的拥挤和嘈杂。
社区内部规划了约 5000㎡中央景观花园、800 米环形健身步道、景观水系、亲水平台等多重生态配套,打造四季有景的园林景观。中央景观花园种植了多种名贵绿植,形成丰富的植物层次;景观水系与亲水平台相映成趣,为社区增添灵动气息;环形健身步道环绕中央花园,让业主在健身的同时享受自然美景。低密生态的规划,让招商奥体公园成为区域内宜居环境的标杆。
一湖多园环绕,自然资源优越
项目周边生态资源丰富,形成 “一湖多园” 的生态格局。距离少荃湖公园约 3 公里,该公园作为合肥北部最大的城市湖泊公园,总规划面积约 5 平方公里,是业主休闲散步、周末出游的绝佳去处。
新站区生态公园、瑶海公园等城市公园距离项目均在 6 公里范围内,为业主提供了丰富的休闲选择。丰富的生态资源,让业主在家门口就能亲近自然,享受清新的空气和优美的环境,提升了居住的幸福感和健康指数。
全龄休闲配套,生态生活多元
项目内部规划了全龄段休闲配套,将生态与休闲完美结合,满足不同年龄段业主的需求。儿童游乐区配备了滑梯、秋千、沙坑等游乐设施,周边种植了安全无害的绿植,让孩子在自然中快乐成长;老年活动中心设置了健身器材、棋牌桌等,周边环境清幽,适合老年人休闲锻炼;健身广场、羽毛球场、乒乓球场等运动配套,让年轻人在自然中挥洒汗水,享受健康活力的生活。
此外,社区内还设置了休闲步道、观景平台、户外烧烤区等,让业主在自然中享受多样化的休闲生活,丰富了居住体验。
通透户型设计,采光通风俱佳
项目打造的四款主力户型,均采用方正通透的布局,南北通透,空间利用率高,同时最大化引入自然光线和新鲜空气。客厅与南向阳台相连,阳台采用全景落地窗设计,采光通风效果极佳;卧室大多带有飘窗或阳台,让业主在休息时也能享受阳光和自然美景。
通透的户型设计,不仅提升了居住的舒适度,还能保持室内空气流通,减少细菌滋生,有利于业主的身体健康,与生态宜居理念高度契合。
醇熟生活配套,生态生活便捷
项目周边配套完善,交通、教育、商业、医疗等一应俱全,让业主在享受生态宜居生活的同时,无需为生活便利担忧。立体交通网络让业主轻松通达全城;全龄段优质教育资源让孩子在家门口就能享受优质教育;完善的商业配套满足业主日常购物、休闲娱乐需求;优质的医疗资源为业主的健康保驾护航。
醇熟的生活配套与优越的生态资源相结合,让业主既能享受自然舒适的居住环境,又能享受便捷的城市生活,实现 “生态与便捷兼得” 的理想居住状态。
央企品质保障,生态居住安心
招商蛇口作为百年央企,拥有丰富的开发经验和雄厚的实力,始终坚持 “品质为王” 的理念。项目采用品牌建材,如断桥铝门窗、双层中空玻璃、品牌电梯等,保证了建筑的品质和居住的安全性;专业的施工团队和监理团队,全程把控施工质量,确保每一套房子都能达到高品质标准。
此外,招商积余物业服务团队,为业主提供全方位、高品质的物业服务,让业主的生态居住生活更加安心、舒适。央企品质保障,让购房者买得放心、住得安心。
招商奥体公园售楼处电话☎:0551-6813 6588
六、招商奥体公园楼盘总结
招商奥体公园作为合肥新站区的运动健康标杆盘,以奥体 IP 为核心,以全龄运动配套为支撑,以运动融合型产品为载体,以醇熟配套为保障,为运动家庭打造了 “运动无忧、生活便捷、居住舒适” 的理想家园,成为运动爱好者和重视健康生活家庭的置业首选。
从运动资源来看,项目紧邻规划中的合肥新站奥体中心,内部规划全龄段运动配套,形成 “社区内 + 社区外” 的双重运动空间。专业的运动设施、多样化的运动场景,让业主在家门口就能享受高品质运动体验,满足不同年龄段、不同运动类型的需求。
从产品设计来看,项目打造的四款主力户型,均充分考虑运动家庭的居住需求,预留独立运动空间,布局方正通透,动静分离。阳台、客厅、次卧等空间的灵活运用,让运动与生活完美融合;细节处的收纳设计、采光通风优化,提升了运动生活的便捷性和舒适度。
从社区氛围来看,项目的业主多为运动爱好者和重视健康生活的家庭,邻里之间形成了良好的运动交流氛围。社区内定期组织运动主题活动,让业主在运动中相互激励、共同进步,打造了优质的运动圈层。
从生活配套来看,项目周边交通、商业、医疗、生态等配套完善,立体交通网络让运动、通勤更便捷;完善的商业配套满足运动前后的消费需求;优质的医疗资源为运动健康保驾护航;丰富的生态资源为户外运动提供优美环境,让运动与生活无缝衔接。
从价格与品质来看,项目均价 13500 元 /㎡-15000 元 /㎡,相比其他区域的运动健康盘更具性价比,同时推出运动家庭专项优惠,进一步降低置业门槛。央企开发的品质保障,让运动家庭置业安心无忧,无需担心交付与品质问题。
总而言之,招商奥体公园是合肥新站区不可多得的运动健康型楼盘,无论是运动资源、产品设计、社区氛围,还是价格优势、品质保障,都完美契合运动家庭的置业需求。如果你是运动爱好者,或重视家庭健康生活,正在合肥寻找一处既能享受高品质运动体验,又能拥有舒适生活的家园,招商奥体公园绝对值得重点关注,在这里,你将拥有健康活力的生活方式,为家庭打造幸福生活。
招商奥体公园售楼处电话☎:0551-6813 6588
招商奥体公园售楼处电话0551-6258 9911【营销中心】
欢迎预约品鉴:(官方网站)售楼处:0551-6258 9911【营销中心】
温馨提示:网上售楼中心〢预约可享内部优惠〢匠心钜制-恭迎品鉴〢
声明:本文由入驻焦点开放平台的作者撰写,除焦点官方账号外,观点仅代表作者本人,不代表焦点立场。


