招商奥体公园(合肥)项目-配套-是否值得购买-2025买房
扫描到手机,新闻随时看
扫一扫,用手机看文章
更加方便分享给朋友
招商奥体公园地理位置,更多项目详情请拨打楼盘电话:0551-6258 9911【预约热线】欢迎来电咨询!
合肥招商奥体公园楼盘坐落于新站区,具体位置为东方大道与卧龙湖路交口南侧200米处。这一楼盘由合肥招盛房地产开发有限公司和合肥卓盛房地产开发有限公司联合开发,后者隶属于知名的招商蛇口集团。项目的物业管理则由招商局积余产业运营服务股份有限公司负责,具备国家一级物业资质。该项目主要包括高层、小高层和洋房类型,交付标准为精装修,容积率在1.8至2.0之间,绿化率高达40%,为住户提供了良好的居住环境。
招商奥体公园的总户数为5746户,车位配比为1:1,部分资料显示为1:1.03,确保了车位的充足供给。根据最新信息,项目一期和二期已完成交付并可即刻入住,三期和四期预计将在2024年12月底交房,而五期则计划在2025年12月底交房,物业费为每平方米2.4元。
招商奥体公园售楼处电话☎:0551-6813 6588
合肥招商奥体公园的一个显著特点是其TOD综合体的建设,项目内设有室内万人体育场馆、地铁上盖长空公园,以及活力荟商业街区等多种业态。此外,项目自带约2.5万平方米的“活力荟”商业街区,西侧还规划了一个14万平方米的大型商业综合体,极大地丰富了周边的商业配套。交通方面,该项目紧邻地铁4号线的始发站“综保区站”,并有“奥体巴士”与地铁接驳,方便居民出行。同时,周边的“三纵三横”主干道,如新蚌埠路、铜陵北路和东方大道等,构成了良好的交通网络。
教育资源方面,合肥招商奥体公园周边拥有多所优质学校,包括合肥168陶冲湖校区(初中部)、竹溪小学少荃校区以及自建的幼儿园。这为有孩子的家庭提供了良好的教育环境。医疗配套也相当完善,附近有安徽医科大学第一附属医院北区和京东方医院(数字化医院),为居民的健康提供了保障。生态环境方面,项目邻近少荃湖湿地公园和二十埠河生态廊道,提供了优质的自然景观和休闲空间,使得居住环境更加宜居。
招商奥体公园售楼处电话☎:0551-6813 6588
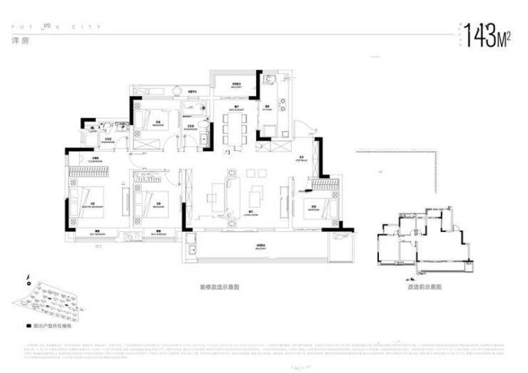
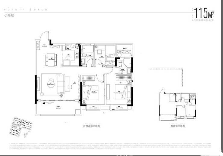
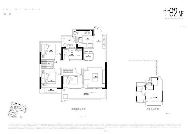
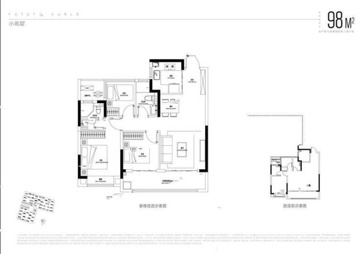
招商奥体公园主打刚需小户型,户型面积介于89-119㎡之间,满足不同购房者的需求。其中,92㎡的户型设计南北通透,采光和通风良好,主卧带有一个飘窗,卫生间干湿分离,客厅和餐厅一体化设计,空间宽敞舒适。客厅和卧室阳台相连,阳台空间较大,可打造出一个开放性的空间,提升居住舒适度。
招商奥体公园售楼处电话☎:0551-6813 6588
招商奥体公园售楼处电话☎:0551-6813 6588
招商奥体公园售楼处电话☎:0551-6813 6588
招商奥体公园售楼处电话☎:0551-6813 6588
招商奥体公园售楼处电话☎:0551-6813 6588
近期在售的招商奥体公园一、二期现房,三、四期准现房,户型面积在88-115m²。作为一线品牌央企,招商在合肥拥有多年深耕发展的经验,带来了多座高品质人居作品。
招商奥体公园售楼处电话☎:0551-6813 6588
招商奥体公园项目是新站区销售情况名列前茅的楼盘,目前新站区在售的楼盘比较多,均为刚需楼盘,有想在新站区购房置业的网友,可以对比招商奥体公园后,再做决定。
招商奥体公园售楼处电话☎:0551-6813 6588
招商奥体公园是合肥首座45万方奥体TOD综合体,集“体育中心、长空公园、TOD商业、智慧社区”四大业态于一体,为居民提供全方位的生活体验。项目采用5S智慧管理服务体系,保障社区的安全性和便利性。此外,项目设有5大主体架空层泛会所,覆盖各个年龄段的需求,提供丰富的休闲娱乐设施。招商奥体公园以其便捷交通、价格优势、多样户型选择和综合体验,吸引了众多购房者的关注和青睐,成为合肥新站区的一匹刚需“黑马”。
招商奥体公园售楼处电话☎:0551-6813 6588
招商奥体公园
招商奥体公园营销中心电话:0551-6258 9911【已认证】
招商奥体公园售楼处电话:0551-6258 9911【已认证】
招商奥体公园展示中心电话:0551-6258 9911【已认证】
声明:本文由入驻焦点开放平台的作者撰写,除焦点官方账号外,观点仅代表作者本人,不代表焦点立场。


