伟星城_合肥楼盘排行榜_合肥新房好评榜
扫描到手机,新闻随时看
扫一扫,用手机看文章
更加方便分享给朋友
伟星城楼盘电话号码:0551-68111601【营销中心】
欢迎来电咨询!可预约销售人员(来电尊享内部优惠活动)【2024房价特价信息丨底价优惠丨在售户型图丨项目介绍丨在售房源丨周边配套】
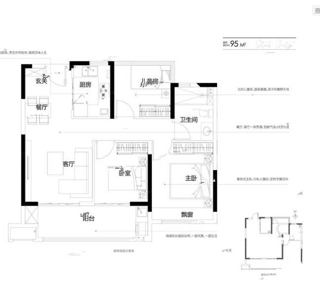
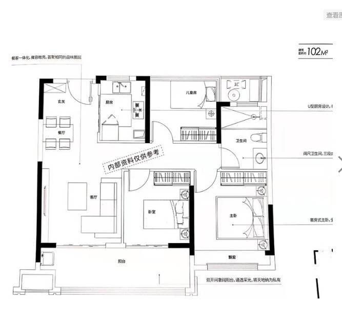
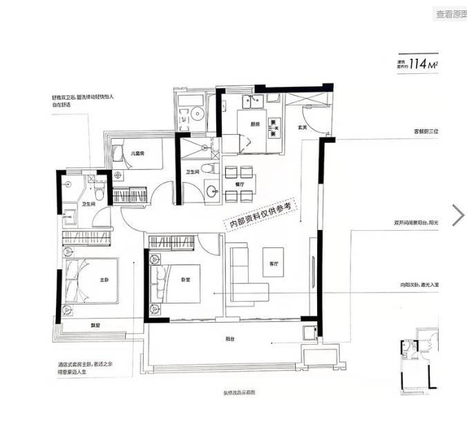
伟星地产在合肥房地产市场中的发展迅速,尤其是肥东和睦湖板块的伟星城项目,成为了其在这一地区的一大亮点。项目地理位置优越,交通便捷,周边配套完善,居住环境优美,是一个理想的人居地带。伟星城的设计亮点颇多,社区内部配备了丰富的休闲设施,为居民提供便利和舒适的生活环境。目前在售的二期小高层户型面积从95平方米到142平方米不等,均价约为12000元/平方米。
伟星城售楼处电话☎:0551-6813 6588
伟星城周边交通便利,地铁2号线延长线寓酒路站在建,肥东高铁站、合肥绕城高速均可快速到达。同时,约1217亩和睦湖湿地公园、约564亩肥东体育公园、以及YPA景观设计打造的约5万方城市公园,为居民提供了优美的自然环境。商业中心配套设施齐全,伟星城自带约18万方城市级商业综合体,以及约4000方社区配套,满足居民的各种生活需求。在教育资源方面,伟星城自带18班幼儿园,同时周边还有肥东县实验学校、安师大附属肥东实验学校、肥东一中等多所学校,为孩子们提供优质的教育资源。医疗配套方面,安徽医科大学附属医院东区也为居民提供了便利的就医服务。此外,伟星物业以“用心服务,创造幸福”为服务理念,打造5F高端服务体系,为业主提供高效率的便捷服务。
伟星城售楼处电话☎:0551-6813 6588
伟星城的房源户型面积在95-142平方米之间,能够满足刚需和改善客群的不同置业居住需求。户型布局合理,方正,朝南多开间,独立玄关,通透的南北大尺度通厅,空间感强,采光与通风效果良好,为居民提供舒适的居住环境,满足多元生活需求。
伟星城售楼处电话☎:0551-6813 6588
伟星城售楼处电话☎:0551-6813 6588
伟星城售楼处电话☎:0551-6813 6588
伟星城楼盘具体一房一价,详询营销中心。
伟星城售楼处电话☎:0551-6813 6588
伟星城的高品质不仅体现在硬件设施上,更在于其对细节的精雕细琢。从社区入口的精心设计到每栋楼的布局规划,从园林景观的打造到内部设施的完善,每一个环节都体现了伟星地产对品质的追求。此外,项目周边的教育资源也非常丰富,东城实验小学、肥东一中等优质学校为孩子们提供了良好的学习环境。无论是家庭居住还是投资置业,伟星城都是一个不可多得的优质选择。
伟星城售楼处电话☎:0551-6813 6588
伟星城作为伟星地产在合肥的重要项目之一,不仅在硬件设施上精益求精,更注重社区的整体氛围和居住体验。对于追求舒适居住体验的购房者而言,伟星城无疑是一个值得考虑的选择。如果您对该项目感兴趣,可以联系营销中心了解更详细的房源信息和价格详情。
伟星城售楼处电话☎:0551-6813 6588
伟星城楼盘电话号码:0551-68111601【营销中心】
欢迎来电咨询!可预约销售人员(来电尊享内部优惠活动)【2024房价特价信息丨底价优惠丨在售户型图丨项目介绍丨在售房源丨周边配套】
声明:本文由入驻焦点开放平台的作者撰写,除焦点官方账号外,观点仅代表作者本人,不代表焦点立场。


