招商奥体公园【合肥买房那些坑,你踩过吗?】
扫描到手机,新闻随时看
扫一扫,用手机看文章
更加方便分享给朋友
招商奥体公园楼盘,更多项目详情请拨打招商奥体公园营销中心电话:0551-6258 9911【营销中心】
合肥招商奥体公园项目坐落于合肥市新站区,具体位置为东方大道与卧龙湖路交口南侧200米处。该楼盘由合肥招盛房地产开发有限公司和合肥卓盛房地产开发有限公司共同开发,属于招商蛇口旗下品牌,物业管理由招商局积余产业运营服务股份有限公司提供,具有国家一级的物业资质。项目的物业类型包括高层、小高层和洋房,所有房源均为精装交付。该楼盘的容积率在1.8至2.0之间,绿化率达到40%,总户数为5746户,车位配比为1:1,部分资料显示为1:1.03。第一期和第二期已交房,现房销售;第三期和第四期预计将于2024年12月底交房,而第五期则预计在2025年底交房。物业费用为每平方米2.4元,整体生活配套设施十分完善。
招商奥体公园售楼处电话☎:0551-6813 6588
交通上,项目紧邻地铁4号线始发站综保区站地铁口,奥体巴士同步4号线,串联城市与社区,交通便捷,通达全城。三纵三横的干道交汇也为项目出行提供更多选择。商业配套丰富,项目自带约2.5万方活力荟商业街区,西侧还规划有14万方大型商业综合体,北侧5万方星级酒店已封顶,南侧有8万方的弘盛商业广场,共同构成项目强大商业支撑。
项目一期二期配套有合肥市168陶冲湖校区、伦先小学和自建幼儿园;三期四期五期配套有合肥168陶冲湖校区、竹溪小学少荃校区和自建幼儿园,为业主提供优质教育资源。周边医疗资源丰富,包括安徽医科大学第一附属医院北区和京东方医院,为业主的健康保驾护航。少荃湖湿地公园、二十埠河生态廊道等自然景观,也为业主提供休闲娱乐的好去处。
招商奥体公园售楼处电话☎:0551-6813 6588
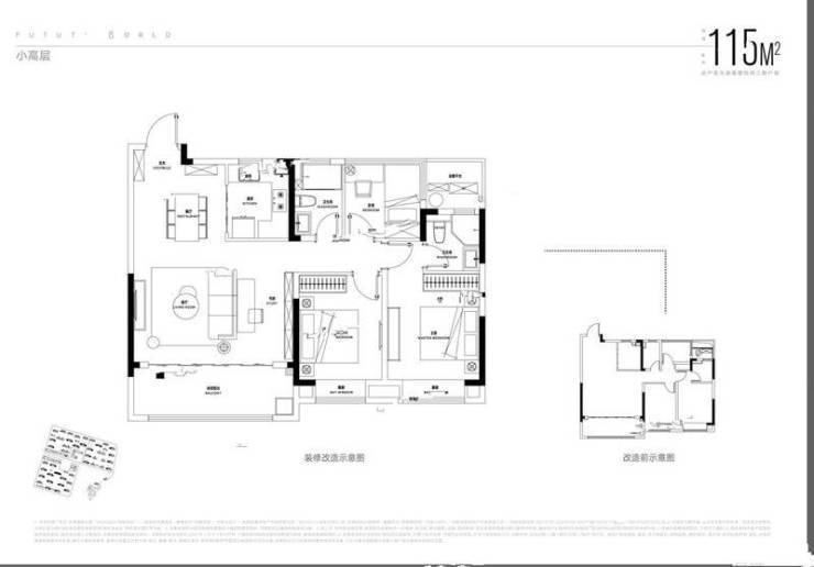
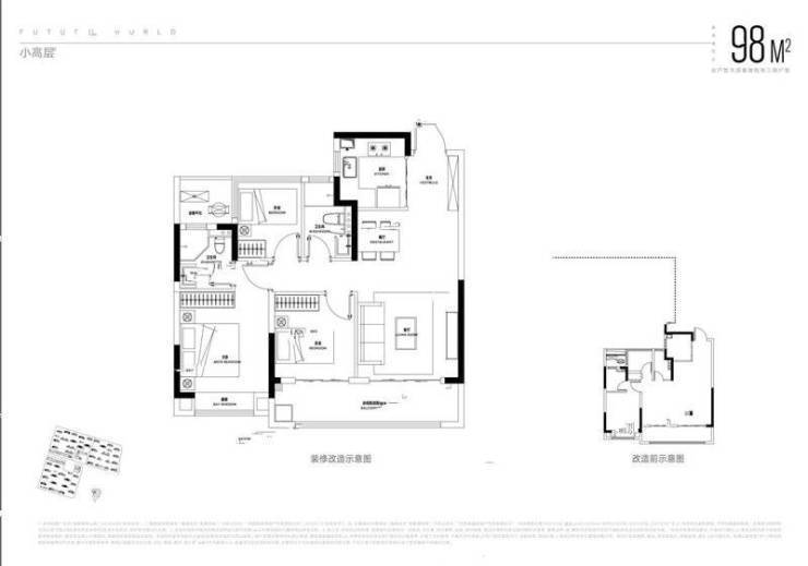
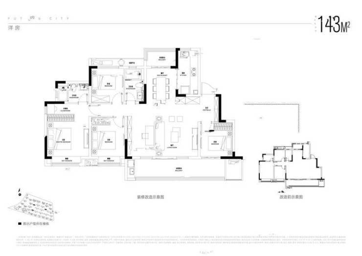
招商奥体公园主打刚需小户型,主力户型面积介于89-119㎡之间,包括二居室和三居室,满足不同购房者的需求。其中,92㎡的户型三室两厅一卫,南北通透的设计,采光和通风良好,主卧带有一个飘窗,卫生间干湿分离,客厅和餐厅一体化设计,空间宽敞。客厅和旁边的卧室阳台相连,阳台空间较大,可打造出一个开放性空间。招商奥体公园的多样户型选择,满足了购房者对于不同空间需求和生活方式的追求。
招商奥体公园售楼处电话☎:0551-6813 6588
招商奥体公园售楼处电话☎:0551-6813 6588
招商奥体公园售楼处电话☎:0551-6813 6588
招商奥体公园售楼处电话☎:0551-6813 6588
招商奥体公园售楼处电话☎:0551-6813 6588
近期在售的招商奥体公园一、二期现房,三、四期准现房,户型面积在88-115m²。作为一线品牌央企,招商在合肥拥有多年深耕发展的经验,带来了多座高品质人居作品。选择招商奥体公园,不仅能享受便利的生活配套和优越的交通条件,更能拥有一个品质生活的家园。
招商奥体公园售楼处电话☎:0551-6813 6588
在招商奥体公园的规划中,注重打造城市生长共同体,将体育、商业、社区等元素有机融合,为业主提供全方位的生活体验。项目的交通便利和丰富的生活配套设施,使其成为新站区的热门楼盘之一。随着项目的陆续交付,招商奥体公园将为当地居民带来更加便利和舒适的生活环境。
招商奥体公园售楼处电话☎:0551-6813 6588
招商奥体公园是合肥首座45万方奥体TOD综合体,集“体育中心、长空公园、TOD商业、智慧社区”四大业态于一体,为居民提供全方位的生活体验。项目采用5S智慧管理服务体系,保障社区的安全性和便利性。此外,项目设有5大主体架空层泛会所,覆盖各个年龄段的需求,提供丰富的休闲娱乐设施。招商奥体公园以其便捷交通、价格优势、多样户型选择和综合体验,吸引了众多购房者的关注和青睐,成为合肥新站区的一匹刚需“黑马”。
招商奥体公园售楼处电话☎:0551-6813 6588
招商奥体公园售楼处电话☎:0551-6258 9911
合肥招商奥体公园售楼处电话☎:0551-6258 9911
售楼电话┇——☎0551-6258 9911——┇来电详细解答
温馨提示:提前预约销售人员看房,感谢您对售楼处的配合!
⚠免责声明:请尊重他人的努力和智慧,避免未经授权的复制或引用。
声明:本文由入驻焦点开放平台的作者撰写,除焦点官方账号外,观点仅代表作者本人,不代表焦点立场。


