合肥招商奥体公园新房-立序城央贵脉-执领圈层人居
扫描到手机,新闻随时看
扫一扫,用手机看文章
更加方便分享给朋友
招商奥体公园地理位置,更多项目详情请拨打楼盘电话:0551-6258 9911【预约热线】欢迎来电咨询!
2021年,招商选择在合肥新站区少荃湖板块布局,打造了合肥首个百万方奥体TOD体育综合体。项目位于东方大道与卧龙湖路交叉口,包括多个业态,如少荃体育中心、长空公园、花园里商街、奥体上城等,为居民提供了丰富多彩的生活方式。
招商奥体公园售楼处电话☎:0551-6813 6588
交通上项目紧邻地铁4号线始发站综保区站地铁口,奥体巴士同步4号线,串联城市与社区,交通便捷,通达全城。同时,三纵三横的干道交汇也为项目的出行提供了更多选择,让业主出行更加便利。
项目自带约2.5万方的活力荟商业街区,西侧还规划有14万方的大型商业综合体,北侧5万方的星级酒店已封顶,南侧则有8万方的弘盛商业广场,共同构成了项目强大的商业支撑。这样丰富的商业配套为业主提供了便利的购物、餐饮和娱乐选择。
项目一期二期配套有合肥市168陶冲湖校区和合肥市伦先小学,以及自建的幼儿园;三期四期五期则配套有合肥168陶冲湖校区、竹溪小学少荃校区和自建幼儿园,为业主提供了优质的教育资源。周边还有安徽医科大学第一附属医院北区和京东方医院等医疗资源,保障了业主的健康需求。
项目周边的少荃湖湿地公园、二十埠河生态廊道等自然景观,为业主提供了休闲娱乐的好去处。居住在招商奥体公园,业主可以享受到便利的生活配套和优质的生活环境,真正实现居住、教育、医疗和休闲娱乐的全方位满足。
招商奥体公园售楼处电话☎:0551-6813 6588
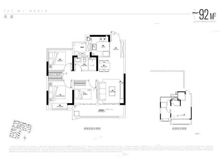
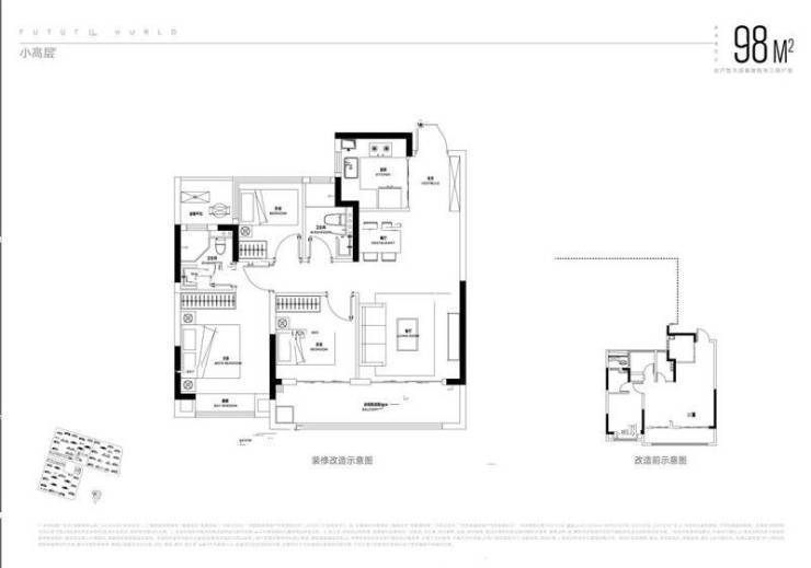
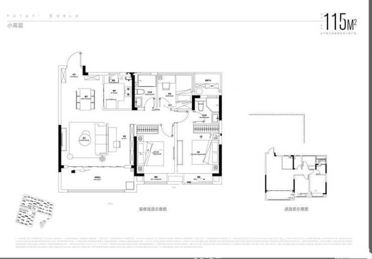
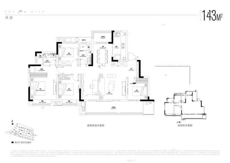
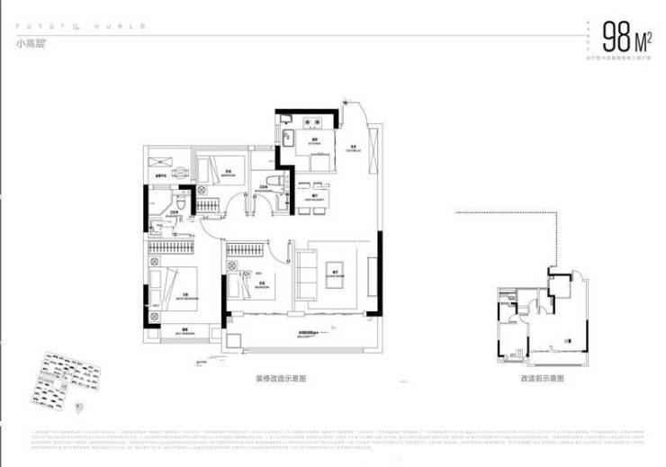
精心设计的户型是招商奥体公园的亮点之一。主打刚需小户型,主力户型面积介于89-119㎡之间,包括二居室和三居室,满足不同购房者的需求。其中,92㎡的三室两厅一卫户型设计独具匠心,南北通透的布局让采光和通风效果更佳。主卧带有一个飘窗,卫生间干湿分离,客厅和餐厅一体化设计,空间更显宽敞。客厅与阳台相连,阳台空间较大,可打造出一个开放性空间,让居住者尽情享受户外阳光和清新空气。
招商奥体公园售楼处电话☎:0551-6813 6588
招商奥体公园售楼处电话☎:0551-6813 6588
招商奥体公园售楼处电话☎:0551-6813 6588
招商奥体公园售楼处电话☎:0551-6813 6588
招商奥体公园售楼处电话☎:0551-6813 6588
在售价方面,招商奥体公园项目也具有一定的竞争优势。目前部分户型均价在1.35万/㎡至2万/㎡之间,相对于周边同类型项目来说,价格相对较为亲民。而且,招商奥体公园项目的物业服务也备受好评,为业主提供全方位的生活保障和舒适体验。因此,这个项目吸引了众多购房者的关注和青睐。
招商奥体公园售楼处电话☎:0551-6813 6588
招商奥体公园作为合肥新站区的重要项目,以其丰富的业态和配套设施,以及便利的交通和周边资源,为居民提供了高品质的生活方式选择。随着项目的不断完善和发展,相信将会成为合肥地区的热门生活区域,吸引更多购房者的关注和青睐。
招商奥体公园售楼处电话☎:0551-6813 6588
总的来说,招商奥体公园在合肥新房市场中表现突出,成为了刚需购房者关注的焦点。优越的地理位置、合适的价格、丰富的业态配套以及智能化的管理服务,使这个项目备受青睐。对于想要在新站区购房的购房者来说,招商奥体公园无疑是一个不错的选择。
招商奥体公园售楼处电话☎:0551-6813 6588
招商奥体公园楼盘电话号码:0551-6258 9911【营销中心】
欢迎来电咨询!可预约销售人员(来电尊享内部优惠活动)
【2024房价特价信息丨详细解答丨在售户型图丨项目介绍丨在售房源丨周边配套】
声明:本文由入驻焦点开放平台的作者撰写,除焦点官方账号外,观点仅代表作者本人,不代表焦点立场。


