招商奥体公园楼盘户型图赏析
扫描到手机,新闻随时看
扫一扫,用手机看文章
更加方便分享给朋友
招商奥体公园楼盘电话号码:0551-6258 9911【营销中心】
欢迎来电咨询!可预约销售人员(来电尊享内部优惠活动)
【2024房价特价信息丨底价优惠丨在售户型图丨项目介绍丨在售房源丨周边配套】
招商奥体公园项目位于新站少荃湖板块,具体地址为卧龙湖路与东方大道交叉路口西南侧。项目周边有多条城市主干道穿行而过,如东方大道、文忠路、淮海大道、包公大道等,构建了立体TOD交通网络。项目紧邻地铁4号线始发站东方大道站,地铁3号线和规划中的9号线也穿行于项目周边区域,出行便捷。项目内规划有约3万方活力荟商业街区,满足居民日常购物、餐饮、娱乐等多元化需求。此外,附近还有多所学校和医院,以及多个公园供居民休闲娱乐。
招商奥体公园售楼处电话☎:0551-6813 6588
在招商奥体公园的规划中,注重打造城市生长共同体,将体育、商业、社区等元素有机融合,为业主提供全方位的生活体验。项目的交通便利和丰富的生活配套设施,使其成为新站区的热门楼盘之一。随着项目的陆续交付,招商奥体公园将为当地居民带来更加便利和舒适的生活环境。
招商奥体公园售楼处电话☎:0551-6813 6588
2021年,招商选择在合肥新站区少荃湖板块布局,打造了合肥首个百万方奥体TOD体育综合体。项目位于东方大道与卧龙湖路交叉口,包括多个业态,如少荃体育中心、长空公园、花园里商街、奥体上城等,为居民提供了丰富多彩的生活方式。
招商奥体公园售楼处电话☎:0551-6813 6588
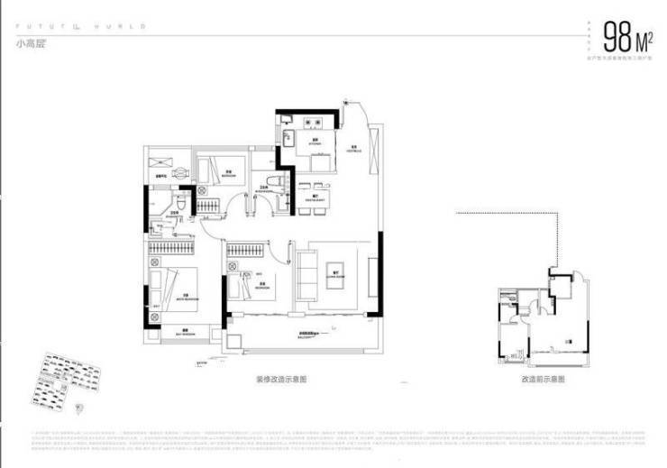
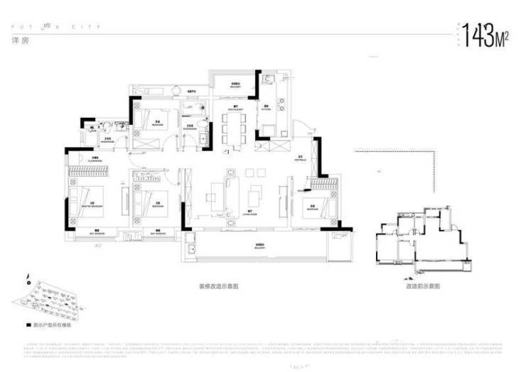
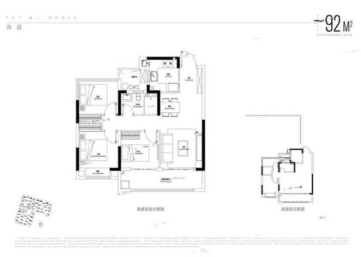
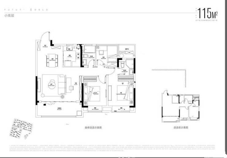
招商奥体公园主打刚需小户型,主力户型面积介于89-119㎡之间,包括二居室和三居室,满足不同购房者的需求。其中,92㎡的户型三室两厅一卫,南北通透的设计,采光和通风良好,主卧带有一个飘窗,卫生间干湿分离,客厅和餐厅一体化设计,空间宽敞。客厅和旁边的卧室阳台相连,阳台空间较大,可打造出一个开放性空间。招商奥体公园的多样户型选择,满足了购房者对于不同空间需求和生活方式的追求。
招商奥体公园售楼处电话☎:0551-6813 6588
招商奥体公园售楼处电话☎:0551-6813 6588
招商奥体公园售楼处电话☎:0551-6813 6588
招商奥体公园售楼处电话☎:0551-6813 6588
招商奥体公园售楼处电话☎:0551-6813 6588
招商奥体公园作为合肥奥体板块内的重要住宅项目,不仅拥有优越的地理位置和丰富的生活配套,更是集运动、商务、教育、医疗等多种资源于一体,为购房者提供了全方位的生活体验。购房者在这里不仅能享受便捷舒适的生活环境,还能体验到高品质的生活服务,是合肥新的生活风尚的引领者。
招商奥体公园售楼处电话☎:0551-6813 6588
项目的优势在于其综合性和便利的交通配套。周边交通便捷,地铁四号线贯穿,使居民出行更加方便快捷。同时,项目内部设施完善,包括商业配套和公园景观,为居民提供了丰富的生活体验。此外,招商奥体公园的售价也相对亲民,部分户型均价在1.35万/㎡至2万/㎡之间,吸引了众多购房者的关注和青睐。
招商奥体公园售楼处电话☎:0551-6813 6588
招商奥体公园
招商奥体公园营销中心电话:0551-6258 9911【已认证】
招商奥体公园售楼处电话:0551-6258 9911【已认证】
招商奥体公园展示中心电话:0551-6258 9911【已认证】
声明:本文由入驻焦点开放平台的作者撰写,除焦点官方账号外,观点仅代表作者本人,不代表焦点立场。


