合肥琥珀星樾湾售楼处电话_线上售楼处:最新房价及在售户型大小!提供楼盘详情、1月优惠活动详情介绍!
扫描到手机,新闻随时看
扫一扫,用手机看文章
更加方便分享给朋友
琥珀星樾湾楼盘电话号码:0551-68111601【营销中心】
欢迎来电咨询!可预约销售人员(来电尊享内部优惠活动)【2025房价特价信息丨底价优惠丨在售户型图丨项目介绍丨在售房源丨周边配套】
合肥包河区琥珀星樾湾 —— 改善人群理想家!低密洋房 + 公园配套,主城生活再升级
琥珀星樾湾楼盘项目介绍
对于改善人群而言,买房不仅是 “换个大一点的房子”,更是对 “生活品质” 的追求 —— 低密的社区环境、优质的户型设计、可靠的开发品牌,缺一不可。而合肥包河区的琥珀星樾湾,恰好精准契合了改善人群的这些需求,以 “国企开发 + 低密洋房 + 主城核心” 的组合,成为包河区改善市场的 “标杆项目”。
项目由合肥本土国企 —— 琥珀置业开发,作为合肥城建旗下的核心品牌,琥珀置业深耕合肥 20 余年,打造了琥珀山庄、琥珀五环城、琥珀东华府等多个高端项目,始终以 “精工品质” 著称,尤其是在改善型住宅开发方面,有着丰富的经验。此次打造的琥珀星樾湾,更是将 “改善基因” 贯彻到底:项目总占地面积约 68 亩,总建筑面积约 12.5 万㎡,但容积率仅 2.2.绿化率高达 40%,这样的 “低密高绿” 指标,在寸土寸金的包河区主城板块极为罕见 —— 要知道,周边多数改善楼盘的容积率都在 2.5 以上,而琥珀星樾湾通过降低容积率,为业主争取到了更宽的楼间距、更大的景观空间,从根源上提升了居住舒适度。
社区规划上,琥珀星樾湾采用 “高层 + 洋房” 的高低配布局,共 10 栋住宅,其中 4 栋为 11 层洋房(占比 40%),6 栋为 18-22 层高层,总户数约 890 户,洋房户型面积为 125-140㎡,专为改善家庭设计。洋房产品采用 “一梯两户” 设计,相比高层的 “两梯四户”,不仅等待电梯的时间更短,而且居住人口更少,社区更安静,私密性更强;同时,洋房的得房率高达 85%,比高层高出 7 个百分点,以 140㎡洋房为例,实际使用面积比同面积高层多近 10㎡,相当于多了一个书房,空间利用率更高。
建筑品质上,琥珀星樾湾更是 “不计成本”:洋房外立面采用 “干挂石材 + 真石漆” 组合,不仅美观大气,而且耐老化、抗腐蚀,多年后依然能保持崭新的外观;高层外立面采用 “保温一体板”,隔音隔热效果优于普通涂料,冬季室内温度比周边小区高 3-5℃,夏季更凉爽,节省空调费用;社区公共区域如入户大堂、电梯间、地下车库均采用 “精装标准”,大堂吊顶采用石膏线装饰,地面铺设大理石,电梯间墙面贴瓷砖,地下车库采用环氧地坪,从细节处彰显改善盘的品质。

琥珀星樾湾售楼处电话☎:0551-6813 6588
琥珀星樾湾楼盘周边配套
对于 “国企精工盘” 而言,“品质” 不仅体现在楼盘本身,更体现在 “周边配套的成熟度”—— 毕竟,购房者买的不仅是 “一套房子”,更是 “一种便捷的生活”。琥珀星樾湾所处的包河区核心板块,配套已 “完全成熟”,无需等待 “规划落地”,入住即可享受 “交通、商业、教育、医疗、生态” 全方位便捷生活,与 “国企品质” 形成 “强强联合”。
交通配套:双主干道 + 地铁,通勤无忧项目位于 “包河大道 + 繁华大道” 两大城市主干道交汇处,这两条道路均为 “双向八车道”,路况好、通行效率高。从项目自驾出发,5 分钟可上包河大道高架,15 分钟直达合肥南站(高铁站),20 分钟抵达滨湖新区(融创茂、滨湖湿地公园),30 分钟可到政务区(天鹅湖、万象城)、经开区(明珠广场),无论是日常通勤还是跨区出行,都十分便捷。公共交通方面,项目距离地铁 1 号线延长线(规划中,2025 年通车)花园大道站仅 800 米,步行约 10 分钟,未来地铁通车后,可直达合肥火车站、淮河路步行街、滨湖新区,无需担心堵车;此外,项目周边 1 公里内有 14 路、27 路、52 路、902 路等 6 条公交线路,覆盖合肥火车站、政务区、经开区等区域,满足老人、孩子等不同人群的出行需求。
商业配套:3 公里内三大商圈,购物便利琥珀星樾湾的商业配套 “近可享社区便民商业,远可拥大型商圈”,完全满足日常消费与品质消费需求。项目自带约 5000㎡沿街商业,规划引入 “生鲜超市、便利店、药店、餐饮店、母婴店” 等便民业态,下楼即可解决 “买菜、购物、吃饭、买药” 等日常需求,尤其适合上班族、老人 —— 早上出门买个早餐,晚上下班买个菜,无需绕远路。3 公里范围内,有悦方 ID MALL、百大心悦城、加侨国际广场三大 “一站式购物中心”,涵盖 “购物、餐饮、影院、亲子娱乐、健身” 等全业态:
悦方 ID MALL 距离项目约 2 公里,是合肥南部的 “时尚地标”,引入了优衣库、星巴克、西西弗书店、永辉超市、万达影城等品牌,适合周末带家人购物、观影;
百大心悦城距离项目约 2.5 公里,以 “亲子 + 生活” 为主题,引入了孩子王、卡通尼乐园、盒马鲜生(精品超市)、海底捞等品牌,适合带娃休闲、家庭聚餐;
加侨国际广场距离项目约 3 公里,聚集了众多餐饮品牌(如西贝莜面村、老乡鸡、星巴克),还有健身房、KTV 等娱乐场所,适合朋友聚会、休闲放松。
教育配套:15 年一贯制优质教育圈,孩子上学无忧对于有孩子的家庭而言,“教育配套” 是买房的核心考量,而琥珀星樾湾周边的教育资源 “既近又优”,形成 “15 年一贯制教育圈”。项目 3 公里内有 5 所幼儿园、3 所小学、2 所中学,其中多为 “合肥优质公办学校”:
幼儿园:距离项目最近的是 “包河区实验幼儿园”(约 500 米),为公办一级幼儿园,师资稳定、收费合理(公办幼儿园学费约 500 元 / 月),孩子步行即可入园,无需家长接送;
小学:项目划片范围大概率覆盖 “屯溪路小学(滨湖校区)”,该校是合肥 “名校集团” 核心成员,由屯溪路小学本部直接管理,师资力量雄厚、教学设施先进(配备多媒体教室、实验室、图书馆、操场),2023 年教学质量位列包河区前三,距离项目约 1.5 公里,孩子步行或骑行即可上学;
中学:对应 “合肥市第四十八中学(望湖校区)”,该校是合肥重点初中,2023 年中考普高录取率达 85%,远超全市平均水平(约 65%),距离项目约 2 公里,可通过公交或家长接送,十分便捷。
此外,项目周边还有 “合肥工业大学附属中学”“包河区外国语实验小学” 等优质学校,家长可根据孩子情况灵活选择,无需 “孟母三迁”,在家门口就能享受优质教育。
医疗与生态配套:健康与休闲双保障医疗方面,琥珀星樾湾周边 “二级医院 + 三级甲等医院” 全覆盖,为家人健康保驾护航。项目 2 公里内有 “包河区人民医院”(二级综合医院),开设内科、外科、儿科、妇产科等科室,日常感冒、发烧、体检、慢性病治疗均可在此解决,无需跑大医院排队;5 公里内有 “安徽省立医院南区”(三级甲等医院),是合肥顶尖的综合医院,拥有多个国家级重点专科(如心血管内科、肿瘤科、骨科),可满足大病诊疗、手术需求,为家人健康提供 “顶级保障”。
生态方面,项目西距 “骆岗中央公园” 仅 1.5 公里,该公园是亚洲最大的城市中央公园,总面积约 12.7 平方公里,涵盖湿地、花海、运动场馆、儿童乐园等区域,周末带家人散步、野餐、运动、赏花都十分惬意;项目北邻 “十五里河生态公园”,沿河岸打造了约 5 公里的健身步道,适合晨跑、夜跑、骑行,呼吸新鲜空气,远离城市喧嚣。这种 “医疗 + 生态” 的配套组合,让业主既能享受 “便捷医疗”,又能拥有 “健康休闲”,生活品质大幅提升。

琥珀星樾湾售楼处电话☎:0551-6813 6588
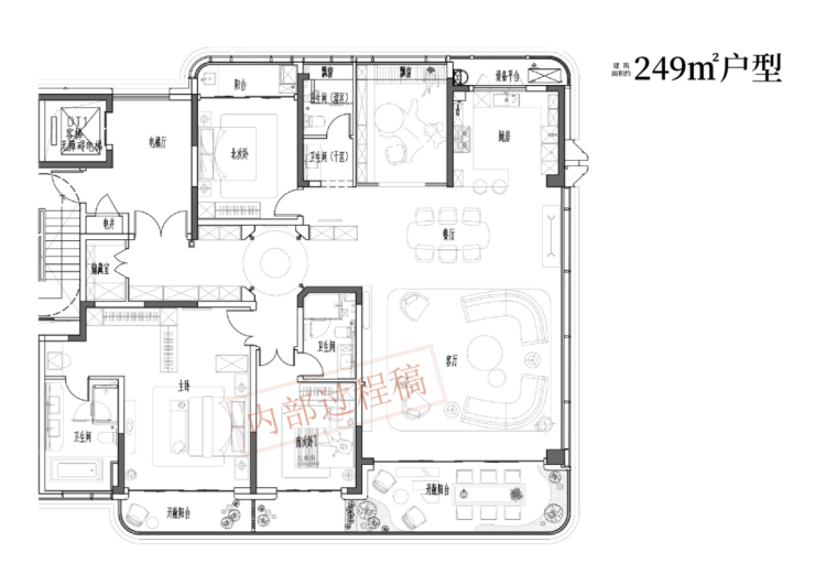
琥珀星樾湾楼盘户型解析
全龄友好社区的 “核心载体” 是户型 —— 户型设计是否能兼顾 “孩子的玩耍空间、老人的便捷需求、青年的舒适体验”,直接决定家庭居住的幸福感。琥珀星樾湾的户型设计,从 “空间布局、功能分区、细节关怀” 三个维度出发,为不同结构的家庭打造 “全龄适配户型”,确保 “一家三代住得舒心”。
95㎡三室两厅一卫(刚需全龄户型):小空间,全功能该户型专为 “年轻三口之家” 或 “三代同堂刚需家庭” 设计,在 95㎡的紧凑空间内,实现 “儿童、老人、青年” 需求的平衡。户型采用 “三开间朝南” 布局,客厅、主卧、次卧(老人房)均朝南,南向面宽达 9.8 米,确保老人房和儿童活动区域(客厅)采光充足 —— 老人喜欢晒太阳,主卧旁的次卧(老人房)朝南,每天上午 9 点至下午 3 点都有阳光,冬季温暖不阴冷;客厅面宽 3.6 米,进深 4.5 米,预留了 “儿童游戏区”(靠近阳台一侧,可摆放爬行垫、玩具柜),孩子可在客厅玩耍,家长在沙发上就能看护,避免孩子单独在房间的安全隐患。老人房面积约 10㎡,靠近入户门和公共卫生间,老人出门买菜、上厕所无需穿过客厅,减少走动距离;房间预留了 “紧急呼叫按钮接口”,可安装紧急呼叫设备,突发情况时一键呼叫家人;床头插座高度降低至 0.7 米,方便老人插拔电器(如电热毯、手机充电)。主卧面积约 12㎡,带 270° 飘窗,飘窗台面铺设防滑大理石,可作为 “青年休闲区”,睡前看书、刷剧;主卧与儿童游戏区(客厅)相邻,方便家长随时关注孩子动态。厨房采用 U 型设计,操作台面长达 2.8 米,预留了 “老人辅助操作台”(高度 0.8 米,比普通台面低 0.1 米,方便老人切菜);厨房连接生活阳台,可放置洗衣机和老人的代步车,保持室内整洁。公共卫生间做到 “干湿分离”,安装了 “老人扶手”(马桶旁和淋浴区各 1 个),地面铺设防滑瓷砖,避免老人、孩子滑倒;卫生间还预留了 “儿童洗手台”(可后期加装折叠式儿童洗手台,高度 0.6 米),方便孩子自主洗漱。
125㎡四室两厅两卫(改善全龄户型):大空间,全关怀该户型专为 “二胎家庭” 或 “三代同堂改善家庭” 设计,125㎡的四室空间,为每个家庭成员提供 “专属区域”,兼顾 “私密性” 与 “互动性”。户型采用 “四开间朝南 + 南北通透” 布局,南向面宽达 12.2 米,客厅、主卧、两个次卧(儿童房、老人房)均朝南,采光与通风效果极佳。客厅面宽 4.2 米,进深 6.8 米,餐客一体空间总面积约 28㎡,划分 “家庭互动区”(摆放沙发、茶几,全家看电视、聊天)和 “儿童游乐区”(靠近阳台,设置收纳式玩具柜,避免玩具散落),既满足全家互动,又不影响孩子玩耍。老人房面积约 11㎡,位于入户门旁,远离儿童房和主卧,减少噪音干扰;房间带独立阳台(宽度 1.2 米),老人可在阳台晾晒衣物、种植绿植;房间预留了 “轮椅通道”(门洞宽度 1 米,方便后期改造),床边插座高度 0.7 米,满足老人生活需求。两个儿童房面积分别约 10㎡、9㎡,靠近主卧,方便家长照顾 —— 大儿童房(10㎡)可作为哥哥 / 姐姐的房间,摆放 1.5 米床 + 书桌 + 衣柜,培养独立学习习惯;小儿童房(9㎡)可作为弟弟 / 妹妹的房间,摆放 1.2 米床 + 玩具架,后期可改造成书房;两个儿童房间隔仅 2 米,孩子可互相串门玩耍,避免孤独。主卧采用 “套房设计”,面积约 18㎡,配备独立卫生间和步入式衣帽间,满足青年夫妻的 “私密性” 需求;主卧带 3.2 米宽飘窗,可作为 “夫妻休闲区”,周末一起看书、聊天,享受二人世界。厨房采用 L 型设计,操作台面长达 3.2 米,预留了 “双开门冰箱位” 和 “嵌入式烤箱位”,适合喜欢烹饪的家庭;厨房与餐厅相邻,老人帮忙做饭时,孩子在餐厅等待,全家互动更频繁。公共卫生间面积约 6㎡,做到 “干湿分离”,安装了 “儿童马桶圈”(可拆卸)和 “老人扶手”,满足全龄使用需求;卫生间还预留了 “洗衣机位”,方便洗衣晾晒。
140㎡四室两厅两卫(终极全龄户型):宽境空间,全家乐享该户型是琥珀星樾湾的 “全龄顶配户型”,专为 “三代同堂终极改善家庭” 设计,140㎡的宽境空间,搭配洋房低密属性(得房率 85%),为每个家庭成员提供 “舒适且独立” 的生活空间。户型采用 “五开间朝南” 布局,南向面宽达 14.5 米,客厅、主卧、两个儿童房、老人房均朝南,每个房间都有充足阳光。客厅面宽 5.8 米,搭配大落地窗,视野开阔,划分 “家庭影院区”(摆放投影仪、沙发)和 “亲子互动区”(靠近落地窗,设置地毯、绘本架),全家可一起看电影、读绘本,享受温馨时光。老人房面积约 13㎡,带独立卫生间(面积 4㎡,安装老人扶手、防滑地砖、坐式淋浴),老人夜间上厕所无需出门,更安全便捷;房间带 3 米宽飘窗,飘窗旁设置 “养生茶桌”,老人可在此喝茶、看报,享受晚年生活。两个儿童房面积均约 12㎡,各自带独立阳台,哥哥 / 姐姐的房间可摆放 1.5 米床 + 书桌 + 衣柜,弟弟 / 妹妹的房间可摆放 1.2 米床 + 乐高墙,每个孩子都有专属空间;儿童房与主卧仅一墙之隔,家长可通过 “亲子对话机”(预留接口)随时与孩子沟通,兼顾 “独立” 与 “关怀”。主卧套房面积约 25㎡,配备独立卫生间(双台盆、浴缸、智能马桶)和步入式衣帽间,满足青年夫妻的 “品质需求”;主卧带 3.5 米宽飘窗,设置 “梳妆台 + 休闲椅”,女主人可化妆,男主人可看书,互不干扰。书房面积约 10㎡,朝北设计,可作为 “家庭办公区” 或 “老人兴趣室”,家长在家办公、老人练习书法,都有专属空间;书房与客厅相连,拉开门即可参与家庭互动,关闭门则保持安静,兼顾 “工作” 与 “生活”。

琥珀星樾湾售楼处电话☎:0551-6813 6588

琥珀星樾湾售楼处电话☎:0551-6813 6588

琥珀星樾湾售楼处电话☎:0551-6813 6588

琥珀星樾湾售楼处电话☎:0551-6813 6588
琥珀星樾湾楼盘价格
在合肥包河区 “房价普遍突破 2 万 /㎡” 的背景下,琥珀星樾湾的价格极具竞争力,既兼顾了 “国企盘的品质”,又保持了 “亲民的价格”,是包河区性价比最高的楼盘之一。

琥珀星樾湾售楼处电话☎:0551-6813 6588
琥珀星樾湾楼盘项目亮点
5.1 亮点一:国企背书的绿色健康,避免 “概念炒作”
当前房地产市场上,“绿色健康社区” 常被部分民营楼盘当作 “营销噱头”,实际交付时却存在 “环保建材减配、绿化缩水、健康配套停用” 等问题,让购房者 “买得失望、住得糟心”。而琥珀星樾湾由国企琥珀置业开发,从 “建设到交付” 全程透明可控,将 “绿色健康” 从 “概念” 落地为 “实际品质”,彻底打消购房者的顾虑。在 “建设阶段”,项目严格遵循 “国家绿色建筑二星级标准”,公示 “绿色建材清单” 和 “检测报告”—— 比如外墙保温一体板选用亚士创能品牌,每批次建材均提供 “质量检测报告”,并邀请业主代表参与 “建材进场验收”,确保建材品牌与承诺一致;社区绿化采用 “全冠移植” 技术,种植的香樟、桂花等乔木均为胸径 10cm 以上的成熟苗木,避免 “小树苗短期枯萎” 的问题,交付时即可呈现 “绿树成荫” 的景观效果。在 “交付阶段”,项目提供 “绿色建筑认证证书” 和 “室内空气质量检测报告”—— 业主收房时,可现场使用专业设备检测室内甲醛、苯、TVOC 等有害物质浓度,若检测结果不达标,项目将免费整改(如更换建材、加强通风),直至达标;社区内的健康配套(如新风系统接口、中央净水系统、健身器材)均会进行 “交付前调试”,确保正常使用,避免 “配套停用” 的问题。在 “后期维护阶段”,项目成立 “绿色社区运维团队”,专门负责绿色健康配套的长期维护 —— 团队每月对社区绿化进行修剪、浇水、施肥,每季度对中央净水系统、新风系统接口进行检修,每年对社区空气质量、水质进行检测,并将检测结果公示在社区 APP 上;此外,运维团队还会根据业主反馈,持续升级绿色配套,比如 2025 年计划在社区内增设 “太阳能充电座椅”“雨水回收灌溉系统”,进一步提升社区的绿色环保属性。这种 “国企兜底” 的保障,让 “绿色健康” 不再是 “短期营销手段”,而是 “长期居住承诺”。
5.2 亮点二:全场景健康联动,而非 “单一设备堆砌”
多数绿色盘的 “健康” 停留在 “加装几台设备”(如新风系统、空气净化器),缺乏系统性设计,无法形成 “全场景健康体验”。而琥珀星樾湾从 “业主日常动线” 出发,打造 “建材 - 社区 - 配套 - 户型” 的全场景健康联动,让健康融入居住的每一个环节。
归家场景联动:业主从骆岗中央公园散步回家,呼吸富含负氧离子的新鲜空气;进入社区后,通过 “人车分流” 的步行道,避免汽车尾气和噪音污染;走到单元门口,人脸识别开门(无需接触,减少细菌传播);进入电梯后,电梯内安装 “紫外线消毒灯”(每小时消毒 1 次),按钮旁配备 “免洗消毒液”;回到家中,新风系统自动开启,置换室内空气,厨房的净水器已过滤好可直接饮用的自来水 —— 从 “户外到室内”,每一个环节都体现健康关怀。
居住场景联动:白天,阳光通过户型的全明窗户照射室内,杀菌消毒,客厅的智能面板实时显示室内空气质量(PM2.5 浓度、甲醛含量),业主可根据数据调节新风系统档位;中午,在厨房使用集成灶烹饪,油烟快速排出,避免扩散至其他空间;下午,孩子在社区儿童区玩耍,家长在旁边的休闲椅上看护,儿童区的监控和紧急呼叫按钮确保孩子安全;晚上,业主在社区健身区运动,或带老人到十五里河公园散步,享受夜间的新鲜空气 —— 从 “白天到夜晚”,健康体验贯穿始终。
特殊场景联动:遇到雾霾天,社区 APP 会推送 “空气质量预警”,并自动提醒业主关闭窗户、开启新风系统;冬季流感高发期,社区卫生服务站会组织 “健康讲座”,教业主如何预防流感,并提供免费的流感疫苗接种预约服务;夏季多雨时,社区的雨水回收系统会收集雨水,用于灌溉绿化,减少水资源浪费 —— 从 “日常到特殊情况”,健康保障全方位覆盖。这种 “全场景联动”,让绿色健康不再是 “孤立的设备”,而是 “可感知的生活体验”。
5.3 亮点三:全龄化健康关怀,覆盖 “老中青少”
琥珀星樾湾的绿色健康设计,充分考虑不同年龄段业主的生理特点和健康需求,做到 “全龄适配”,让每个家庭成员都能在社区中找到适合自己的健康生活方式。
儿童健康关怀:针对儿童 “免疫力较低、活泼好动” 的特点,儿童房采用 “E0 级环保建材”(地板、涂料、家具均无甲醛污染),窗户安装 “限位器”(防止孩子攀爬坠落),墙面采用 “可擦洗涂料”(避免孩子涂鸦后难以清洁);社区儿童区种植 “无毒花卉”(如太阳花、雏菊),避免孩子接触有毒植物;儿童区地面铺设 5cm 厚的 EPDM 塑胶,即使孩子摔倒也不会受伤;儿童区还配备 “监控摄像头” 和 “紧急呼叫按钮”,家长可随时关注孩子动态,突发情况时可快速求助。此外,社区定期举办 “儿童健康活动”,如 “亲子植树日”“环保小卫士” 等,培养孩子的环保意识和健康习惯。
青年健康关怀:针对青年 “工作压力大、运动需求高” 的特点,社区规划 500 米夜光健身步道、户外羽毛球场、乒乓球台,满足青年 “日常运动” 需求;周边 2 公里内有专业健身房,业主可享受 “专属折扣”,参加瑜伽、动感单车等团体课程,缓解工作压力;户型预留 “健身角” 空间,业主可在家中放置健身器材,利用碎片化时间运动;社区 APP 还开设 “健康资讯板块”,推送 “职场健康小贴士”“运动饮食搭配” 等内容,帮助青年养成健康的生活习惯。
老年健康关怀:针对老人 “行动不便、需要特殊照顾” 的特点,社区内所有道路均设置 “无障碍坡道”(坡度≤1:12),单元门口安装 “无障碍扶手”,电梯内设置 “老年按键”(字体放大、高度降低至 1.2 米);老人房预留 “紧急呼叫按钮”(连接物业中控室和子女手机),突发情况时可一键求助;社区老年区配备 “适合老人的健身器材”(如太极揉推器、漫步机),器材扶手包裹软质材料,避免冬天冰冷;社区卫生服务站提供 “老人定期体检”“慢性病管理” 服务,医生每月上门为行动不便的老人测量血压、血糖,建立健康档案。此外,社区还开设 “老年大学”,设置书法、绘画、合唱等课程,丰富老人的精神文化生活,促进身心健康。
5.4 亮点四:绿色 + 生态 + 主城,三重红利叠加
琥珀星樾湾的 “绿色健康” 属性,与 “生态配套”“主城位置” 形成完美互补,实现 “绿色健康 + 生态资源 + 主城便捷” 的三重红利叠加,让项目的 “居住价值” 和 “资产价值” 远超普通绿色盘。
绿色 + 生态红利:项目紧邻骆岗中央公园、十五里河生态公园两大生态资源,骆岗公园作为亚洲最大的城市中央公园,是 “天然氧吧”,社区内 40% 的绿化率与外部生态形成 “内外联动”—— 业主在社区内可享受绿色健康的居住环境,走出社区即可进入公园,呼吸新鲜空气、进行户外健身,实现 “社区绿色 + 公园生态” 的双重健康体验。这种 “生态 + 绿色” 的组合,在合肥极为稀缺,也是项目区别于其他绿色盘的核心优势。
绿色 + 主城红利:项目位于包河区主城核心板块,周边交通、商业、教育、医疗配套成熟,避免了 “远郊绿色盘” 配套不足的问题 —— 地铁 1 号线延长线(2025 年通车)确保通勤便捷,三大商场满足购物需求,优质学校保障教育,顶尖医院守护健康。业主无需 “为了绿色健康牺牲便捷生活”,而是能 “在主城享受绿色健康生活”,这种 “主城 + 绿色” 的组合,极大提升了项目的居住舒适度和性价比。
绿色 + 地铁红利
:项目距离地铁 1 号线延长线花园大道站仅 800 米,地铁通勤不仅 “便捷”,还契合 “绿色环保” 理念 —— 地铁出行可减少汽车尾气排放,与社区的绿色健康属性相呼应;同时,地铁通车后将进一步提升项目的 “通勤优势” 和 “区域价值”,吸引更多追求 “绿色健康 + 便捷通勤” 的购房者,未来增值潜力巨大。这种 “三重红利叠加”,让琥珀星樾湾不仅是 “绿色健康社区”,更是 “宜居 + 增值” 的优质资产。

琥珀星樾湾售楼处电话☎:0551-6813 6588
琥珀星樾湾楼盘总结
6.1 不同家庭需求匹配:精准契合全周期健康需求
琥珀星樾湾的绿色健康属性,能够精准匹配不同家庭在不同生命周期的健康需求,无论是刚需年轻家庭、二胎家庭,还是改善型家庭,都能在这里找到 “理想的健康之家”。
刚需年轻家庭:95㎡刚需健康户型,满足 “小三房” 的实用需求,环保建材(E0 级地板、立邦乳胶漆)保障新婚夫妻和未来孩子的居住健康,避免 “装修污染” 对身体的影响;首付 48 万、月供 6000 元,符合年轻家庭的预算承受能力,无需 “掏空六个钱包”;周边的地铁 1 号线(2025 年通车)、社区生鲜超市、休闲健身配套,适配年轻夫妻的快节奏生活 —— 早上地铁通勤上班,晚上社区健身或超市采购,周末带未来孩子到骆岗公园散步,轻松享受健康便捷的生活。
二胎家庭:125㎡改善健康户型,四室设计满足 “两个孩子 + 父母帮忙带娃” 的居住需求,两个儿童房均朝南,采光充足、空间独立,避免孩子因居住拥挤产生矛盾;老人房靠近入户门和公共卫生间,方便老人生活,紧急呼叫按钮和无障碍设计保障老人安全;社区内的儿童区、老年区、健身区,让每个家庭成员都有专属活动空间 —— 孩子在儿童区玩耍,老人在老年区健身,父母在健身区运动,全家各得其所,同时社区的绿色环境和健康配套,也能让孩子在健康的环境中成长,减少疾病风险。
改善型家庭:140㎡终极健康户型,11 层洋房的低密属性、5.8 米宽落地窗的生态视野、全屋新风系统的健康配置,满足改善家庭对 “高品质健康生活” 的追求;主卧套房 + 独立阳台 + 阳光书房,提供充足的私人空间,适合工作压力大的高净值人群放松身心;骆岗中央公园的远景和社区内的高绿化率,让居住体验堪比 “公园豪宅”;国企运维保障绿色配套长期升级,确保房子 “越住越舒适、越住越保值”,是改善家庭 “终极置业” 的理想选择。
6.2 市场竞争力:绿色健康盘里的 “性价比天花板”
在合肥包河区的绿色健康盘市场中,琥珀星樾湾凭借 “国企保障、高性价比、全配套” 的组合优势,成为 “性价比天花板”,远超同类竞品。当前包河区的绿色健康盘,主要存在三大痛点:一是 “民营盘减配风险”,部分民营绿色盘交付时存在建材品牌更换、健康配套停用等问题,业主维权困难;二是 “高端盘价格过高”,定位豪宅的绿色盘均价超 2.4 万 /㎡,刚需和普通改善家庭难以承受;三是 “远郊盘配套不足”,部分绿色盘位于远郊,周边缺乏商业、医疗、教育配套,入住后生活不便。而琥珀星樾湾完美解决了这些痛点:
国企开发,无减配风险:琥珀置业作为合肥本土国企,资金链稳定,工程质量和交付有保障,绿色健康配置全程透明,避免 “概念炒作” 和 “交付减配”;
均价 1.7-1.9 万 /㎡,性价比高:低于周边同类绿色盘 10%-20%,且所有绿色健康配置均为标配,无需额外付费,刚需和改善家庭均能承受;
主城核心,全配套覆盖:位于包河区主城,周边地铁、商业、教育、医疗、生态配套成熟,入住即可享受便捷健康生活,无需等待 “规划落地”。
根据售楼处数据,项目自开盘以来,绿色健康户型的销量占比达 80%,其中 30-45 岁的家庭购房者占比超 70%,这些人群正是 “健康生活的核心需求者”,他们更关注居住的健康属性和性价比,而琥珀星樾湾恰好满足了这些需求。此外,项目的 “老带新成交率” 达 30%,很多业主因 “满意绿色健康的居住体验”,主动推荐亲友购房,足以证明市场对项目的认可。
6.3 长期生活价值:不止是房子,更是健康生活方式
选择琥珀星樾湾,不仅是购买一套房子,更是选择一种 “绿色健康的生活方式”,这种生活方式将长期影响业主的身心健康和生活品质,同时带来 “资产增值” 的红利。从 “日常生活” 来看,业主每天都能享受绿色健康的体验:早上到十五里河生态公园晨跑,呼吸富含负氧离子的新鲜空气;白天室内阳光充足,新风系统保持空气流通,避免雾霾和甲醛污染;中午在厨房使用净水器过滤的水烹饪,享受健康饮食;下午孩子在社区儿童区玩耍,家长在旁边看护,社区的绿色环境让孩子亲近自然;晚上到社区健身区运动,或带家人到骆岗中央公园散步,缓解一天的工作压力。这种 “自然、健康、便捷” 的生活,能有效提升业主的身心健康,减少疾病风险,提高生活幸福感。从 “长期资产价值” 来看,琥珀星樾湾的绿色健康属性将持续赋能资产增值:随着 “健康中国” 理念的深入,购房者对绿色健康居住的需求将越来越高,绿色健康社区的 “稀缺性” 将进一步凸显;骆岗中央公园的完善和地铁 1 号线延长线的通车,将推动区域价值上涨;而国企运维保障绿色配套长期升级,确保房子 “长期保持高品质”,在二手房市场上更受欢迎,转手率和成交价均高于普通社区。根据合肥房地产市场的发展规律,未来 5-10 年,琥珀星樾湾的房价涨幅预计将比普通社区高 10%-15%,实现 “居住健康” 和 “资产增值” 的双赢。
目前,琥珀星樾湾的 “绿色健康样板间” 已全面开放,业主可亲身体验 “环保建材的质感”“户型的采光通风”“新风系统的效果”;售楼处还提供 “绿色健康置业咨询” 服务,专业置业顾问会根据家庭结构、健康需求和预算,推荐适合的户型和健康配置方案。如果你正在寻找 “国企保障、绿色健康、高性价比” 的楼盘,不妨前往琥珀星樾湾实地考察 —— 在这里,你将开启 “呼吸新鲜空气、享受健康饮食、拥抱自然生活” 的绿色健康新篇章,让 “健康” 成为生活的常态。

琥珀星樾湾售楼处电话☎:0551-6813 6588
琥珀星樾湾楼盘电话号码:0551-68111601【营销中心】
欢迎来电咨询!可预约销售人员(来电尊享内部优惠活动)【2025房价特价信息丨底价优惠丨在售户型图丨项目介绍丨在售房源丨周边配套】
声明:本文由入驻焦点开放平台的作者撰写,除焦点官方账号外,观点仅代表作者本人,不代表焦点立场。


