肥东信达碧桂园楼盘资料
扫描到手机,新闻随时看
扫一扫,用手机看文章
更加方便分享给朋友
信达碧桂园楼盘电话号码:0551-68111601【营销中心】
欢迎来电咨询!可预约销售人员(来电尊享内部优惠活动)【2024房价特价信息丨底价优惠丨在售户型图丨项目介绍丨在售房源丨周边配套】
信达碧桂园项目位于肥东县酿泉路与日出路交口西北角,地理位置优越,交通便利,周边配套设施齐全,吸引了众多购房者的目光。项目规划33栋住宅楼,包括28栋高层和5栋洋房,总占地面积165.59亩,规划用途为居住,容积率≤2.0。一期交付时间为2023年5月30日,二期交付时间为2024年4月30日,给购房者提供了明确的期待。项目交付标准为毛坯,让购房者可以根据自己的喜好和需求进行装修,更加个性化和自由。
信达碧桂园周边的生活配套设施也十分完善。交通方面,项目紧邻在建中的地铁2号线东延线,肥东高铁站,有轨电车规划中、裕溪路高架等多种交通方式,方便快捷地连接城市各个繁华地带。教育资源丰富,周边有多所幼儿园、小学和中学,医疗保障也不在话下,距离一级以上医院仅2.7公里。此外,商业设施和生态环境也是项目的亮点,让居民享受便捷的日常生活和优美的自然环境。
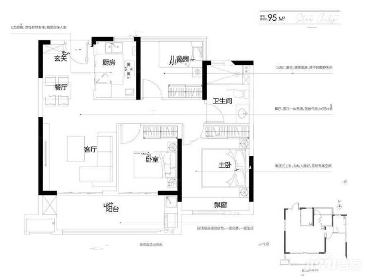
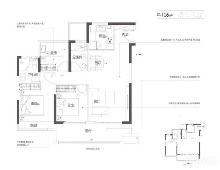
信达碧桂园的户型设计致力于提供高品质的居住体验。建面95-118平方米的户型充分考虑了居住者的需求,合理分区功能,视野采光俱佳的通透户型,带来舒适的生活感受。特别是3+1房的户型格局,不仅保证了居住品质,更在空间设计上营造出个性化的生活空间。精心设计的户型不仅满足了实际的居住需求,更能在物理与精神层面上实现全新的提升,让居住者享受到独特的居住体验。
信达碧桂园楼盘具体一房一价,详询营销中心。
信达碧桂园项目周边拥有和睦湖公园、肥东体育公园等生态资源,让业主在闲暇时可以享受赏景散步的乐趣。关于信达碧桂园的购买价值,基本信息已经介绍完毕,欢迎关注项目动态和资讯,预购从速,体验醇熟配套带来的舒适体验。
总而言之,信达碧桂园项目不仅提供高品质的住房产品,还拥有便利的交通、商业和教育配套,以及丰富的生态资源,为业主打造了一个全方位的舒适生活体验。想要享受高端生活?不妨考虑信达碧桂园!
信达碧桂园楼盘电话号码:0551-68111601【营销中心】
欢迎来电咨询!可预约销售人员(来电尊享内部优惠活动)【2024房价特价信息丨底价优惠丨在售户型图丨项目介绍丨在售房源丨周边配套】
声明:本文由入驻焦点开放平台的作者撰写,除焦点官方账号外,观点仅代表作者本人,不代表焦点立场。


