招商奥体公园怎么样?全面解析合肥新楼盘优势-合肥新房
扫描到手机,新闻随时看
扫一扫,用手机看文章
更加方便分享给朋友
合肥(招商奥体公园)☎☎:0551-6258 9911【官方认证】
三、招商奥体公园楼盘户型解析
户型是生态宜居生活的核心载体,招商奥体公园深入洞察业主对自然、舒适居住的需求,结合项目低密生态的规划优势,打造了多款兼具实用性、舒适性和生态性的户型产品,让每一户都能最大限度地享受阳光、空气和自然美景。
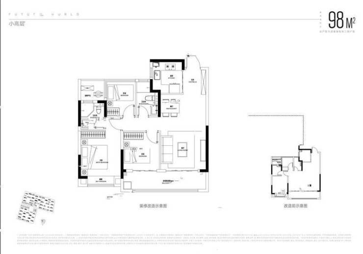
89㎡三室两厅一卫:刚需生态居,阳光满溢
89㎡三室两厅一卫户型是刚需人群的生态宜居首选,整体布局方正,南北通透,空间利用率高达 85%,同时最大化引入自然光线和新鲜空气,让小户型也能享受生态宜居生活。
入户处设置独立玄关,宽度 1.2 米,深度 1.5 米,既保障了室内隐私,又能作为收纳空间,放置鞋柜、衣帽架等。玄关右侧设有换鞋凳和挂钩,细节设计贴心,方便业主日常使用。
客厅位于户型中央,面宽 3.6 米,进深 4.2 米,空间宽敞明亮。客厅与南向阳台相连,阳台面宽 3.6 米,进深 1.8 米,采用全景落地窗设计,最大化引入自然光线,让客厅更加明亮通透。阳台外是社区中央景观花园,业主坐在客厅就能欣赏到四季美景,感受自然气息。阳台可根据需求打造为休闲区,摆放休闲沙发、茶几,闲暇时品茶、看书,享受惬意时光。
餐厅紧邻客厅和厨房,面积约 6㎡,可容纳 4-6 人同时用餐。餐厅与厨房之间设有滑动门,既保证了用餐环境的整洁,又能方便上菜。厨房位于户型西侧,采用 U 型设计,操作台面长 3.5 米,洗切炒动线合理,预留双开门冰箱位置。厨房窗户朝向社区景观,烹饪时也能欣赏到自然美景,让烹饪成为一种享受。
三个卧室分布在户型东侧和北侧,动静分离,避免了活动区对休息区的干扰。主卧位于户型东侧,面宽 3.2 米,进深 3.8 米,带有南向飘窗,采光充足,空间宽敞。飘窗设计不仅增加了采光,还能作为休闲区,业主可在飘窗上摆放绿植、书籍,享受阳光与自然。两个次卧分别位于户型北侧和东侧,面宽均为 2.7 米,空间充足,可作为儿童房或书房,其中北侧次卧窗户朝向社区景观,让孩子在学习、休息时也能亲近自然。
卫生间位于户型北侧,面积约 4.5㎡,采用干湿分离设计,提高使用效率,避免潮湿问题。卫生间窗户通风效果良好,保持室内干燥清爽。
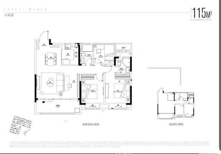
105㎡三室两厅两卫:改善生态居,舒适升级
105㎡三室两厅两卫户型是改善型刚需的生态宜居优选,在 89㎡户型基础上升级,空间更加宽敞,舒适度更高,同时进一步强化了生态宜居属性,让业主享受更惬意的自然生活。
入户玄关更加开阔,宽度 1.5 米,深度 1.8 米,可设置多功能收纳柜,满足家庭更多收纳需求。玄关处采用大理石地面,与室内木地板形成对比,彰显品质感。玄关顶部设有吊顶和筒灯,营造出温馨舒适的氛围。
客厅面宽提升至 3.8 米,进深 4.5 米,空间更加宽敞明亮。客厅与南向阳台相连,阳台面宽 3.8 米,进深 2.0 米,采用全景落地窗设计,视野更加开阔,采光通风效果更佳。阳台外是社区景观水系和中央花园,业主站在阳台就能欣赏到水景与绿植相映成趣的美景,感受自然的灵动。阳台可打造为休闲区和绿植区,摆放休闲沙发、茶几和各类绿植,打造专属的 “空中花园”。
餐厅面积约 7㎡,可容纳 6-8 人同时用餐,与客厅形成通透的一体化空间,增强了空间的开阔感。餐厅窗户朝向社区景观,用餐时也能欣赏到自然美景,提升用餐体验。
厨房位于户型西侧,采用 U 型设计,操作台面长 3.8 米,空间更加宽敞,预留双开门冰箱位置。厨房与餐厅之间采用开放式设计(可设置滑动门),增强了空间的互动性,同时厨房窗户通风效果良好,避免油烟异味残留。
三个卧室分布合理,动静分离。主卧采用套房设计,面宽 3.3 米,进深 4.8 米,带有南向飘窗,采光充足,空间宽敞。主卧配备独立卫生间和衣帽间,保障了主人的隐私和舒适度。独立卫生间采用干湿分离设计,窗户通风效果良好,保持干燥清爽。两个次卧面宽均为 2.8 米,空间充足,采光良好,其中一个次卧带有南向飘窗,可作为儿童房,让孩子在阳光和自然中成长;另一个次卧可作为老人房或书房,满足多样化需求。
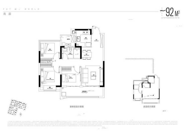
128㎡四室两厅两卫:改善生态居,阔绰舒适
128㎡四室两厅两卫户型是改善型人群的生态宜居理想选择,户型方正通透,南北双阳台设计,空间阔绰,舒适度高,同时最大化利用自然资源,让业主享受全方位的生态宜居体验。
入户玄关宽敞明亮,宽度 1.8 米,深度 2.0 米,可设置入户花园或大型收纳柜,提升居家品质。玄关处摆放绿植,营造出自然清新的氛围。
客厅面宽 4.0 米,进深 4.8 米,空间宽敞开阔。客厅与南向景观阳台相连,阳台面宽 4.0 米,进深 2.0 米,采用全景落地窗设计,采光通风效果极佳。阳台外是社区中央景观花园和环形健身步道,业主坐在客厅就能欣赏到绿植、鲜花和业主健身的活力场景,感受社区的生态与活力。
北向生活阳台与餐厅相连,面宽 3.0 米,进深 1.8 米,可作为晾晒区和储物区,功能分区明确。北向阳台窗户朝向社区另一侧景观,让业主在晾晒衣物时也能欣赏到自然美景。
厨房位于户型西侧,采用 L 型设计,操作台面长 4.0 米,空间宽敞,动线合理。厨房与餐厅相邻,用餐、上菜十分便捷,同时厨房窗户通风效果良好,保持室内空气清新。
四个卧室分布合理,动静分离,每个卧室都能享受良好的采光和通风。主卧采用套房设计,面宽 3.5 米,进深 5.0 米,带有南向全景飘窗,采光充足,空间宽敞奢华。主卧配备独立卫生间和步入式衣帽间,独立卫生间采用干湿分离设计,配备浴缸和花洒,让业主在忙碌的生活中能享受舒适的卫浴体验。两个南向次卧面宽均为 3.0 米,采光良好,可作为儿童房或老人房,窗户朝向社区景观,让孩子和老人在休息时也能亲近自然。北向次卧可作为书房或健身房,窗户通风效果良好,营造出舒适的学习和健身环境。
143㎡四室两厅两卫:高端生态居,奢华宜居
143㎡四室两厅两卫户型是高端改善型人群的生态宜居终极之选,空间开阔,布局合理,品质感十足,同时全方位融入生态理念,让业主享受奢华与自然兼具的宜居生活。
入户玄关采用子母门设计,彰显尊贵感。玄关宽度 2.0 米,深度 2.2 米,可设置大型收纳柜和展示区,收纳空间充足。玄关处摆放大型绿植和艺术摆件,营造出高端、自然的氛围。
客厅面宽 4.2 米,进深 5.0 米,空间宽敞开阔,气势十足。客厅与南向超宽阳台相连,阳台面宽 6.8 米,进深 2.0 米,采用全景落地窗设计,视野开阔,采光通风效果极佳。阳台外是社区中央景观花园、景观水系和亲水平台,业主站在阳台就能欣赏到湖光山色般的美景,感受自然的宁静与惬意。阳台可打造为多功能休闲区,设置休闲沙发、茶几、跑步机和绿植区,满足休闲、健身、观景等多种需求,打造专属的 “空中庭院”。
餐厅面积约 9㎡,可容纳 10-12 人同时用餐,与客厅形成通透的一体化空间,增强了空间的开阔感。餐厅与北向生活阳台相连,北向阳台面宽 3.2 米,进深 1.8 米,可作为晾晒区和储物区,功能分区明确。
厨房位于户型西侧,采用中西厨设计,中厨封闭烹饪,避免油烟扩散;西厨可作为早餐台或吧台,满足多样化的烹饪需求。中厨采用 U 型设计,操作台面长 4.5 米,空间宽敞,动线合理,预留双开门冰箱位置和各种家电接口。西厨与餐厅相邻,用餐便捷,同时增强了空间的互动性。
四个卧室分布合理,动静分离,私密性强。主卧采用豪华套房设计,面宽 3.6 米,进深 5.2 米,带有南向全景飘窗,采光充足,空间宽敞奢华。主卧配备独立卫生间、步入式衣帽间,独立卫生间面积约 6㎡,采用干湿分离设计,配备浴缸、花洒、智能马桶等高端洁具,让业主享受奢华的卫浴体验。两个南向次卧面宽均为 3.2 米,空间充足,采光良好,可作为儿童房或老人房,窗户朝向社区景观,让家人在休息时也能亲近自然。北向次卧可作为书房或影音室,空间宽敞,通风效果良好,营造出舒适的休闲环境。
招商奥体公园售楼处电话☎:0551-6813 6588
招商奥体公园售楼处电话☎:0551-6813 6588
招商奥体公园售楼处电话☎:0551-6813 6588
招商奥体公园售楼处电话☎:0551-6813 6588
招商奥体公园售楼处电话☎:0551-6813 6588
四、招商奥体公园楼盘价格
在合肥房价持续上涨的背景下,新站区凭借优越的区位优势和较高的性价比,成为众多购房者的首选区域,而招商奥体公园作为新站区的标杆楼盘,其价格更是极具竞争力,为购房者提供了高性价比的置业选择。
目前,招商奥体公园的销售均价为 13500 元 /㎡-15000 元 /㎡,根据户型、楼层、朝向的不同,价格有所差异。其中,89㎡刚需小三室的总价约 120 万元 - 130 万元,首付比例最低可至 20%,首付仅需 24 万元 - 26 万元,月供约 4500 元 - 5000 元,对于刚需人群而言,压力较小,轻松实现置业梦想。
105㎡三室两厅两卫户型的总价约 140 万元 - 155 万元,首付最低 28 万元 - 31 万元,月供约 5300 元 - 5900 元,适合改善型刚需人群,在保证居住舒适度的同时,不会带来过大的经济压力。
128㎡四室两厅两卫户型的总价约 170 万元 - 190 万元,首付最低 34 万元 - 38 万元,月供约 6400 元 - 7200 元,适合家庭成员较多的改善型人群,宽敞的空间的满足家庭长期居住需求。
143㎡高端改善户型的总价约 190 万元 - 215 万元,首付最低 38 万元 - 43 万元,月供约 7200 元 - 8100 元,针对追求高品质生活的改善型人群,提供奢华舒适的居住体验。
相比周边同类型楼盘,招商奥体公园的价格具有明显优势。周边同类楼盘的销售均价普遍在 14500 元 /㎡-16000 元 /㎡,而招商奥体公园凭借央企开发实力和完善的配套规划,价格更低,性价比更高。此外,项目还推出了多项购房优惠政策,如团购优惠、按时签约优惠、首付分期优惠等,进一步降低了购房门槛。
对于购房者而言,招商奥体公园不仅价格亲民,更具有较高的升值潜力。随着新站区的不断发展,交通、教育、商业等配套持续升级,区域价值不断提升,而招商奥体公园作为区域内的标杆楼盘,未来升值空间巨大。无论是自住还是投资,都是极具性价比的选择。
招商奥体公园售楼处电话☎:0551-6813 6588
教育是家庭的核心关切,一套优质的教育盘,能为孩子的成长保驾护航,也能让家长省心省力。位于合肥新站区东方大道与卧龙湖路交口往南 200 米的招商奥体公园,正是这样一处聚焦全龄教育的宜居标杆楼盘。项目由百年央企招商蛇口匠心打造,作为深耕地产行业 40 余年的领军企业,招商蛇口深刻理解教育对家庭的重要性,此次落子新站教育资源富集区,旨在打造 “学校就在家门口” 的全龄教育社区,让业主子女足不出社区即可享受优质教育,为家庭幸福生活奠定坚实基础。
招商奥体公园总占地面积约 180 亩,总建筑面积超 35 万平方米,是新站区重点规划的大型综合性社区。项目规划容积率仅 2.0.绿化率高达 40%,在保障教育配套的同时,也为业主打造了低密舒适的居住环境。项目整体规划涵盖高层住宅、洋房、社区商业、12 班制公办幼儿园等多种业态,形成 “居住 + 教育 + 商业” 的一站式生活圈,其中住宅总户数约 2200 户,车位配比 1:1.2.充分满足业主居住与停车需求。
建筑风格采用现代简约风格,外立面选用真石漆与玻璃幕墙组合材质,既美观大方,又经久耐用。社区内部规划了丰富的休闲配套,包括约 5000㎡中央景观花园、800 米环形健身步道、儿童游乐区、老年活动中心等,让业主在陪伴孩子成长的同时,也能享受舒适的居家生活。此外,项目还引入了智慧社区管理系统,包括智能门禁、视频监控、电子巡更等,为孩子的安全成长和业主的居住安全提供全方位保障。
作为招商蛇口在合肥新站区的教育标杆项目,招商奥体公园不仅注重自身教育配套的打造,更依托周边丰富的优质教育资源,形成了从幼儿园到中学的全龄段教育体系,成为合肥新站区备受关注的教育盘标杆。
招商奥体公园售楼处电话☎:0551-6813 6588
五、招商奥体公园楼盘项目亮点
招商奥体公园之所以能成为合肥新站区的热门楼盘,受到众多购房者的追捧,离不开其众多突出的项目亮点,这些亮点不仅彰显了项目的品质和价值,更满足了购房者对美好生活的向往。
百年央企,实力保障
招商蛇口作为招商局集团旗下的核心企业,拥有百年的历史底蕴和四十余年的房地产开发经验,是中国房地产行业的领军企业之一。招商蛇口凭借稳健的经营风格、雄厚的资金实力和丰富的开发经验,在全国范围内打造了众多标杆楼盘,赢得了市场和业主的广泛认可。
在项目开发过程中,招商蛇口始终坚持 “品质为王” 的理念,从建筑材料的选择到施工工艺的把控,都严格按照高标准执行。项目采用品牌建材,如断桥铝门窗、双层中空玻璃、品牌电梯、真石漆外立面等,保证了建筑的品质和居住的安全性。同时,招商蛇口拥有专业的施工团队和监理团队,全程把控施工质量,确保每一套房子都能达到高品质标准。
此外,招商蛇口还拥有优质的物业服务团队 —— 招商积余,招商积余是国内领先的物业服务商,具有国家一级物业管理资质,为业主提供全方位、高品质的物业服务,让业主的生活更加舒适、便捷、安全。
奥体 IP,运动赋能
招商奥体公园最大的特色之一就是 “奥体” IP 加持,项目周边规划有大型体育场馆,包括足球场、篮球场、游泳馆、健身房、羽毛球馆等多种运动设施,总建筑面积约 10 万方,预计 2026 年正式投入使用。业主可享受优先使用权和优惠价格,在家门口就能享受专业的运动服务,满足多样化的运动需求。
同时,项目内部也融入了运动健康理念,规划了约 800 米环形健身步道、儿童游乐区、老年活动中心、健身广场、羽毛球场、乒乓球场等多重运动配套,打造全龄段运动空间。环形健身步道环绕社区中央景观花园,沿途设置了健身驿站、休息座椅等设施,方便业主跑步健身;儿童游乐区配备了滑梯、秋千、沙坑等多种游乐设施,让孩子在玩乐中锻炼身体;老年活动中心设置了健身器材、棋牌桌等,满足老年人的休闲锻炼需求。
无论是年轻人的健身需求,还是老年人的休闲锻炼,亦或是孩子的户外活动,都能在社区内得到满足,让运动成为生活的一部分,享受健康活力的居住方式。
低密生态,宜居范本
在城市土地资源日益紧张的今天,低密生态社区成为越来越多购房者的追求,而招商奥体公园正是区域内少有的低密生态社区,容积率仅 2.0.绿化率高达 40%,建筑密度仅 22%,为业主打造了舒适、宁静、自然的居住环境。
项目内部规划了约 5000㎡中央景观花园,采用 “一轴两带多节点” 的园林布局,打造四季有景的园林景观。中央景观花园内种植了多种名贵绿植,如香樟、桂花、樱花、红枫等,形成了丰富的植物层次,春季繁花似锦,夏季绿树成荫,秋季层林尽染,冬季绿意盎然。同时,社区内还设置了景观水系、休闲步道、观景平台、亲水平台等设施,让业主在居家生活中就能享受自然美景,感受大自然的气息。
低密的规划意味着更少的居住人口、更宽敞的公共空间和更好的居住舒适度。相比周边容积率 2.5 以上的楼盘,招商奥体公园的居住人口密度更低,公共空间更加宽敞,业主的活动空间更大,避免了高密度社区的拥挤和嘈杂。同时,高绿化率不仅美化了环境,还能净化空气、降低噪音、调节气候,为业主提供清新的空气和舒适的居住环境。
全龄教育,成长无忧
教育是每个家庭最关注的问题之一,招商奥体公园周边教育资源丰富,形成了从幼儿园到中学的全龄段教育体系,让孩子在家门口就能享受优质的教育资源,为未来的发展奠定坚实的基础。
项目内部规划有一所 12 班制公办幼儿园,预计 2025 年正式投入使用,让业主的孩子足不出社区就能接受优质的启蒙教育。幼儿园配备了专业的师资力量和完善的教学设施,注重孩子的综合素质培养,让孩子在快乐中学习成长。
项目周边 1 公里范围内分布着多所优质中小学,包括合肥新站寿春实验中学、合肥市庆平希望学校、合肥市第 168 中学东校区等。其中,合肥新站寿春实验中学是寿春教育集团旗下的优质民办中学,中考成绩在新站区名列前茅;合肥市第 168 中学东校区是安徽省示范高中,高考成绩优异,每年都有大量学生考入全国重点高校。丰富的教育资源让业主无需为孩子的教育问题担忧,实现 “目送式” 教育,让孩子在良好的教育氛围中无忧成长。
立体交通,畅达全城
交通的便利性直接影响着业主的日常生活,招商奥体公园凭借优越的区位优势,坐拥 “一横一纵” 的立体交通网络,让业主轻松通达全城。
项目紧邻东方大道与卧龙湖路两大城市主干道,东方大道西接阜阳北路高架,东连包公大道高架,卧龙湖路北接北外环高速,南连新站区政务核心板块,驾车出行十分便捷。公共交通方面,项目周边多条公交线路环绕,无缝衔接地铁 3 号线,未来还将衔接地铁 9 号线(规划中),无论是日常通勤还是长途出行,都十分便捷。
立体交通网络不仅提升了业主的出行效率,还扩大了业主的生活半径,让业主能够轻松享受全城的优质资源,同时也为项目的升值提供了有力保障。
高性价比,置业首选
相比周边同类型楼盘,招商奥体公园在品质、配套、户型等方面都具有明显优势,而价格却更加亲民,性价比极高。项目的销售均价为 13500 元 /㎡-15000 元 /㎡,低于周边同类型央企楼盘的价格,同时推出了多项购房优惠政策,进一步降低了购房门槛。
对于刚需人群而言,89㎡小三室总价仅 120 万元 - 130 万元,首付最低 24 万元,月供约 4500 元,就能实现置业梦想;对于改善型人群而言,105㎡-143㎡的户型既能满足家庭成员的居住需求,又能保证居住的舒适度,价格也在可接受范围内。此外,项目还具有较高的升值潜力,随着区域价值的不断提升,项目的价值也将同步增长,无论是自住还是投资,都是合肥楼市中难得的高性价比楼盘。
招商奥体公园售楼处电话☎:0551-6813 6588
六、招商奥体公园楼盘总结
招商奥体公园作为合肥新站区的投资标杆楼盘,凭借区域发展红利、百年央企背书、全维配套升级、低密生态稀缺、户型流通性强、高性价比等多重核心优势,成为众多投资客的首选,其投资价值在合肥楼市中尤为突出。
从区域价值来看,新站区作为合肥 “东拓北进” 战略的核心承载区,国家级开发区的政策红利、完善的产业布局和持续升级的城市配套,为区域房价提供了坚实支撑。未来 3-5 年内,地铁 9 号线、少荃湖科创 CBD、规划中小学等核心配套将陆续兑现,区域价值将进入快速上升通道,而招商奥体公园作为区域核心位置的标杆楼盘,将直接受益于这一波发展红利,价值增长空间清晰可见。
从品牌保障来看,招商蛇口作为百年央企,拥有雄厚的资金实力、丰富的开发经验和稳健的经营风格,为项目的顺利交付和品质保障提供了坚实基础。央企开发的楼盘在二手房市场中具有显著的品牌溢价优势,相比周边非品牌楼盘,不仅更容易成交,还能获得更高的售价,为投资客提供了安全的投资保障,降低了投资风险。
从配套价值来看,项目周边交通、教育、商业、医疗、生态等配套正处于快速升级期。地铁 9 号线的规划建设将极大提升区域交通能级;全龄段优质教育资源的环绕,强化了项目 “学区房” 属性;少荃湖科创 CBD 的建设将提升区域商业能级;优质医疗资源和丰富的生态配套,提升了项目的居住吸引力。全维配套的持续升级,为项目提供了充足的增值动力,确保了投资的稳定性和回报率。
从产品价值来看,项目容积率仅 2.0.绿化率高达 40%,是区域内少有的低密生态社区,居住价值突出。四款主力户型涵盖刚需、改善全需求,布局方正、南北通透、空间利用率高,在二手房市场中流通性极强。多样化的户型选择,满足了不同投资客的需求,同时强流通性保证了投资客能够在需要时快速变现,获得稳定的投资回报。
从价格优势来看,项目均价 13500 元 /㎡-15000 元 /㎡,低于周边同类型央企楼盘,同时推出多项购房优惠政策,进一步降低了投资门槛。较低的入手价格意味着更低的投资风险和更高的投资回报率,对于投资客而言,极具吸引力。
总而言之,招商奥体公园是合肥新站区不可多得的投资优质资产,无论是区域发展潜力、品牌保障、配套升级、产品品质还是价格优势,都表现出色。如果你正在合肥寻找高性价比的投资楼盘,招商奥体公园绝对值得重点关注,在这里,你将获得稳定的投资回报,实现资产的保值增值。
招商奥体公园售楼处电话☎:0551-6813 6588
二、招商奥体公园楼盘周边配套
对于投资型购房者而言,周边配套的完善程度与规划兑现能力,直接决定了楼盘的升值潜力。招商奥体公园凭借得天独厚的区位优势,坐拥交通、教育、商业、医疗、生态等全方位的优质配套,且多项核心配套处于持续升级中,未来价值增长空间清晰可见。
交通配套:多维交通升级,激活区域价值
项目紧邻东方大道与卧龙湖路两大城市主干道,形成 “一横一纵” 的交通骨架。东方大道作为新站区横向交通大动脉,已完成全线拓宽改造,双向 6 车道通行顺畅,向西连接阜阳北路高架,20 分钟直达合肥火车站、淮河路步行街等主城核心;向东衔接包公大道高架,15 分钟可达肥东县城及瑶海万达商圈。卧龙湖路纵向贯穿新站区,北接北外环高速,30 分钟可达合肥新桥国际机场;南连新站政务核心区,10 分钟直达新站区管委会、京东方医院等关键节点。
公共交通方面,项目周边 500 米内设有 3 个公交站点,301 路、302 路、686 路等多条公交线路无缝衔接地铁 3 号线幼儿师范站、文浍苑站,15 分钟内即可换乘地铁 1、2 号线,畅达全城。更值得关注的是,规划中的地铁 9 号线将在项目周边设置站点,目前已进入前期筹备阶段,预计 2025 年开工建设,2029 年建成通车。地铁的规划落地将极大提升区域交通能级,而招商奥体公园作为近地铁楼盘,未来升值潜力将进一步凸显。
教育配套:全龄学区加持,夯实保值基础
教育资源是房产保值增值的核心要素之一,招商奥体公园周边已形成从幼儿园到中学的全龄段优质教育体系,且教育资源持续升级。项目内部规划的 12 班制公办幼儿园,预计 2025 年正式招生,采用高标准建设,配备专业师资,让业主子女足不出社区即可享受优质启蒙教育。
步行 1 公里范围内,合肥新站寿春实验中学、合肥市庆平希望学校、合肥市第 168 中学东校区等多所名校环绕。其中,合肥新站寿春实验中学中考成绩连续多年位列新站区前列,合肥市第 168 中学东校区作为省级示范高中,高考本科率常年保持在 95% 以上,是合肥家长公认的优质学区。此外,周边还有 2 所规划中小学已启动招标建设,未来区域教育资源将更加丰富,“学区房” 属性将进一步强化项目的保值增值能力。
商业配套:繁华商业兑现,提升生活价值
商业配套的成熟度直接影响居住舒适度与房产流动性,招商奥体公园周边商业配套正加速兑现。项目自带约 2 万方社区商业,目前已与多家知名超市、生鲜卖场、品牌餐饮达成意向合作,预计 2026 年随住宅交付同步开业,将满足业主日常购物、餐饮等基本需求。
距离项目 3 公里的武里山天街商圈已成熟运营,永辉超市、大地影院、肯德基等主力业态齐全;5 公里范围内覆盖拓基广场、家天下生活广场等大型商业综合体,满足业主多样化消费需求。更重要的是,项目周边规划的少荃湖科创 CBD 已启动建设,将打造集商业、办公、休闲于一体的大型商业集群,总建筑面积超百万方,预计 2028 年全面建成。届时,区域商业能级将实现质的飞跃,招商奥体公园将直接受益于商业配套升级带来的价值提升。
医疗配套:优质医疗护航,增强居住吸引力
医疗资源的完善程度是提升房产居住吸引力的重要因素,招商奥体公园周边医疗资源丰富且优质。项目距离安徽省第二人民医院(北区)仅 4 公里,该院作为三级甲等综合性医院,开放床位 2000 余张,涵盖所有主流科室,能为业主提供高水平医疗服务。
合肥京东方医院距离项目 3.5 公里,作为三级综合医院,重点打造心血管科、骨科、妇产科等特色科室,医疗设备先进,服务质量优质。此外,周边 3 公里内还有 2 家社区卫生服务中心,日常就医、体检极为便捷。优质医疗资源的环绕,不仅能为业主健康保驾护航,更能提升房产对改善型购房者和老年群体的吸引力,增强房产的流通性与升值潜力。
生态配套:公园集群赋能,提升居住品质
生态环境的优劣已成为现代购房者置业的重要考量因素,招商奥体公园周边生态资源丰富,形成 “一湖多园” 的生态格局。项目距离少荃湖公园约 3 公里,该公园作为合肥北部最大城市湖泊公园,总规划面积约 5 平方公里,目前已完成一期建设,二期湿地景观、科创 CBD 景观带正在施工,预计 2027 年全面建成。
新站区生态公园、瑶海公园等城市公园距离项目均在 5 公里范围内,为业主提供了丰富的休闲娱乐场所。随着城市居民对生态居住需求的提升,拥有优质生态配套的房产将更具市场竞争力,招商奥体公园的生态优势将持续转化为价值优势。
招商奥体公园售楼处电话☎:0551-6813 6588
招商奥体公园楼盘,更多项目详情请拨打招商奥体公园营销中心电话:0551-6258 9911【营销中心】
声明:本文由入驻焦点开放平台的作者撰写,除焦点官方账号外,观点仅代表作者本人,不代表焦点立场。


