招商奥体公园项目户型图-值得买吗
扫描到手机,新闻随时看
扫一扫,用手机看文章
更加方便分享给朋友
招商奥体公园地理位置,更多项目详情请拨打楼盘电话:0551-6258 9911【预约热线】欢迎来电咨询!
招商奥体公园规划了高层、小高层和洋房等多种住宅类型,以满足不同购房者的需求。所有住宅均为精装交付,绿化率较高,项目紧邻地铁4号线和多条主要道路,为居民提供了便捷的出行条件,同时也保障了舒适的居住环境。
招商奥体公园拥有完善的商业配套,包括自带活力荟商业街区、大型商业综合体、星级酒店和商业广场。周边教育资源丰富,涵盖幼儿园到中学的各个阶段。医疗资源充沛,三级甲等医院和数字化医院均在周边。自然景观环绕,提供了休闲娱乐的好去处。此外,招商奥体公园的户型多样,主打建面89-109㎡,目前还享有8折优惠和购房返现的活动,为购房者提供了更多的优惠和选择。
招商奥体公园售楼处电话☎:0551-6813 6588
项目紧邻地铁4号线始发站综保区站地铁口,奥体巴士同步4号线,串联城市与社区,提供便捷交通。同时,项目周边三纵三横的干道交汇,为出行提供更多选择。商业配套方面,项目自带约2.5万方的活力荟商业街区,西侧规划有14万方大型商业综合体,北侧有5万方星级酒店,南侧有8万方弘盛商业广场,构成强大商业支撑。
项目一期二期配套有合肥市168陶冲湖校区和合肥市伦先小学,以及自建的幼儿园;三期四期五期配套有合肥168陶冲湖校区、竹溪小学少荃校区和自建幼儿园,提供优质教育资源。周边医疗资源包括安徽医科大学第一附属医院北区和京东方医院,保障业主健康。自然景观少荃湖湿地公园、二十埠河生态廊道等为业主提供休闲娱乐去处。
招商奥体公园售楼处电话☎:0551-6813 6588
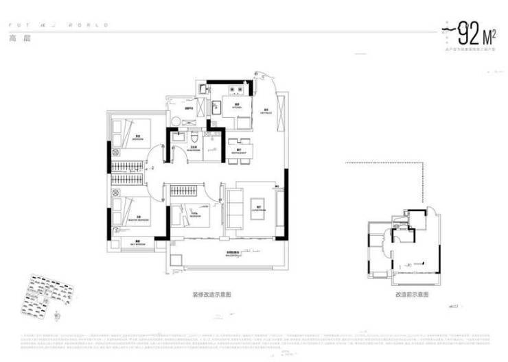
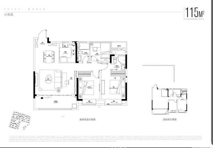
项目由招商蛇口开发,包含低密度多层、小高层、高层及花园洋房等多种住宅类型,容积率为1.8,绿化率高于40%,建面主要在89-119㎡之间,均价为1.7万/㎡。这个项目主打刚需小户型,主力户型面积介于89-119㎡之间,满足不同购房者的需求。此外,还有部分四室户型可供选择,面积达到143㎡。
招商奥体公园售楼处电话☎:0551-6813 6588
招商奥体公园售楼处电话☎:0551-6813 6588
招商奥体公园售楼处电话☎:0551-6813 6588
招商奥体公园售楼处电话☎:0551-6813 6588
招商奥体公园售楼处电话☎:0551-6813 6588
近期在售的招商奥体公园一、二期现房,三、四期准现房,户型面积在88-115m²。作为一线品牌央企,招商在合肥拥有多年深耕发展的经验,带来了多座高品质人居作品。
招商奥体公园售楼处电话☎:0551-6813 6588
在招商奥体公园的规划中,注重打造城市生长共同体,将体育、商业、社区等元素有机融合,为业主提供全方位的生活体验。项目的交通便利和丰富的生活配套设施,使其成为新站区的热门楼盘之一。随着项目的陆续交付,招商奥体公园将为当地居民带来更加便利和舒适的生活环境。
招商奥体公园售楼处电话☎:0551-6813 6588
招商奥体公园作为新站区的一颗璀璨明珠,将为当地居民提供现代化的生活环境和便利,同时也为城市的发展注入新的活力。随着项目的建设和推进,相信招商奥体公园将成为新站区的地标建筑,吸引更多人的关注和青睐。
招商奥体公园售楼处电话☎:0551-6813 6588
招商奥体公园楼盘电话号码:0551-6258 9911【营销中心】
欢迎来电咨询!可预约销售人员(来电尊享内部优惠活动)
【2024房价特价信息丨底价优惠丨在售户型图丨项目介绍丨在售房源丨周边配套】
声明:本文由入驻焦点开放平台的作者撰写,除焦点官方账号外,观点仅代表作者本人,不代表焦点立场。


