震撼!合肥招商奥体公园【2025最新优惠】@售楼处
扫描到手机,新闻随时看
扫一扫,用手机看文章
更加方便分享给朋友
合肥(招商奥体公园)☎☎:0551-6258 9911【官方认证】
项目紧邻地铁4号线始发站综保区站地铁口,奥体巴士同步4号线,串联城市与社区,提供便捷交通。同时,项目周边三纵三横的干道交汇,为出行提供更多选择。商业配套方面,项目自带约2.5万方的活力荟商业街区,西侧规划有14万方大型商业综合体,北侧有5万方星级酒店,南侧有8万方弘盛商业广场,构成强大商业支撑。
项目一期二期配套有合肥市168陶冲湖校区和合肥市伦先小学,以及自建的幼儿园;三期四期五期配套有合肥168陶冲湖校区、竹溪小学少荃校区和自建幼儿园,提供优质教育资源。周边医疗资源包括安徽医科大学第一附属医院北区和京东方医院,保障业主健康。自然景观少荃湖湿地公园、二十埠河生态廊道等为业主提供休闲娱乐去处。
招商奥体公园售楼处电话☎:0551-6813 6588
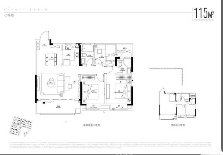
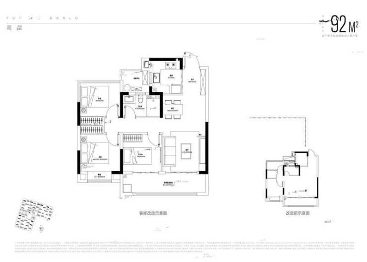
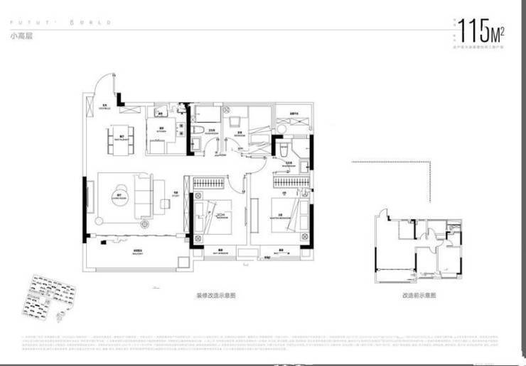
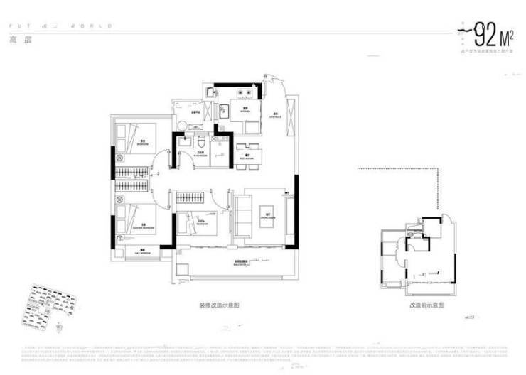
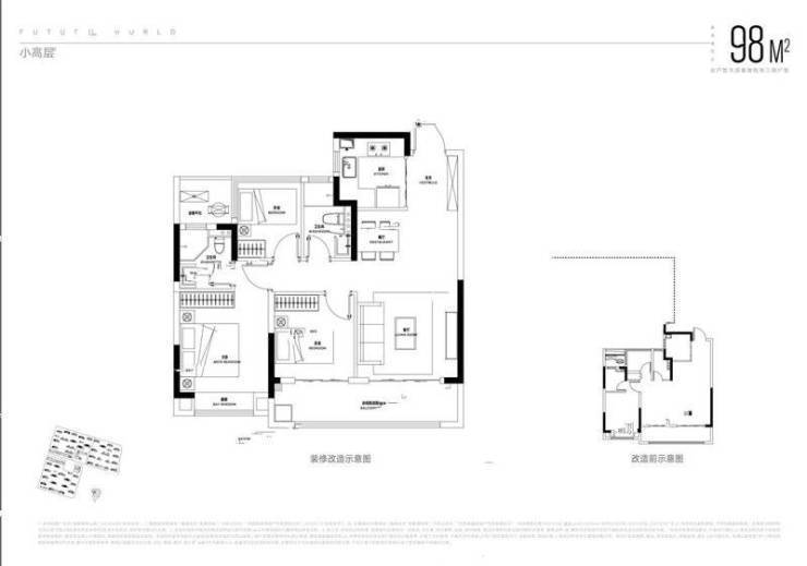
招商奥体公园主打刚需小户型,主力户型面积介于89-119㎡之间,包括二居室和三居室,满足不同购房者的需求。其中,92㎡的户型三室两厅一卫,南北通透的设计,采光和通风良好,主卧带有一个飘窗,卫生间干湿分离,客厅和餐厅一体化设计,空间宽敞。客厅和旁边的卧室阳台相连,阳台空间较大,可打造出一个开放性空间。招商奥体公园的多样户型选择,满足了购房者对于不同空间需求和生活方式的追求。
招商奥体公园售楼处电话☎:0551-6813 6588
招商奥体公园售楼处电话☎:0551-6813 6588
招商奥体公园售楼处电话☎:0551-6813 6588
招商奥体公园售楼处电话☎:0551-6813 6588
招商奥体公园售楼处电话☎:0551-6813 6588
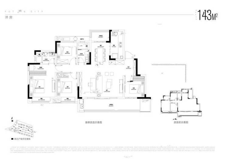
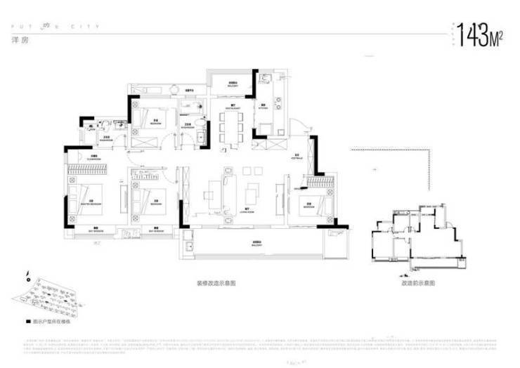
价格方面,招商奥体公园均价在1.7万/㎡左右,相比周边其他项目具有一定的性价比优势。项目主打刚需小户型,主力户型面积介于89-119㎡之间,包括二居室和三居室,满足不同购房者的需求。部分四室户型面积达到143㎡,也可供选择。其中,92㎡的户型三室两厅一卫,南北通透设计,采光和通风良好,空间利用较为合理,适合家庭居住。
招商奥体公园售楼处电话☎:0551-6813 6588
招商奥体公园位于合肥新站奥体板块内,是一个占地超过百万平方米的大型住宅项目,汇集了六种不同业态。项目内包括室内万人体育场馆、地铁上盖长空公园和活力荟TOD商业体等,形成了一个综合性的生活圈。无论是运动爱好者、商务人士还是家庭购房者,这里都能找到适合自己的生活方式。
招商奥体公园售楼处电话☎:0551-6813 6588
合肥招商奥体公园楼盘凭借其优越的地理位置、多样化的业态配套以及丰富的教育和医疗资源,吸引了不少刚需和改善型家庭的关注。随着新站区的快速发展和地铁4号线的通车,项目的未来潜力必将进一步提升。如果您对该楼盘感兴趣,建议直接联系售楼处获取最新动态或安排实地考察。
招商奥体公园售楼处电话☎:0551-6813 6588
招商奥体公园项目是新站区销售情况名列前茅的楼盘,目前新站区在售的楼盘比较多,均为刚需楼盘,有想在新站区购房置业的网友,可以对比招商奥体公园后,再做决定。
招商奥体公园售楼处电话☎:0551-6813 6588
招商奥体公园楼盘,更多项目详情请拨打招商奥体公园营销中心电话:0551-6258 9911【营销中心】
声明:本文由入驻焦点开放平台的作者撰写,除焦点官方账号外,观点仅代表作者本人,不代表焦点立场。


