新站区招商奥体公园楼盘最新进度和动态!
扫描到手机,新闻随时看
扫一扫,用手机看文章
更加方便分享给朋友
招商奥体公园售楼处电话0551-6258 9911【营销中心】
欢迎预约品鉴:(官方网站)售楼处:0551-6258 9911【营销中心】
温馨提示:网上售楼中心〢预约可享内部优惠〢匠心钜制-恭迎品鉴〢
2021年,招商选择在合肥新站区少荃湖板块布局,打造了合肥首个百万方奥体TOD体育综合体。项目位于东方大道与卧龙湖路交叉口,包括多个业态,如少荃体育中心、长空公园、花园里商街、奥体上城等,为居民提供了丰富多彩的生活方式。
招商奥体公园售楼处电话☎:0551-6813 6588
项目紧邻地铁4号线始发站综保区站地铁口,奥体巴士同步4号线,串联城市与社区,提供便捷交通。同时,项目周边三纵三横的干道交汇,为出行提供更多选择。商业配套方面,项目自带约2.5万方的活力荟商业街区,西侧规划有14万方大型商业综合体,北侧有5万方星级酒店,南侧有8万方弘盛商业广场,构成强大商业支撑。
项目一期二期配套有合肥市168陶冲湖校区和合肥市伦先小学,以及自建的幼儿园;三期四期五期配套有合肥168陶冲湖校区、竹溪小学少荃校区和自建幼儿园,提供优质教育资源。周边医疗资源包括安徽医科大学第一附属医院北区和京东方医院,保障业主健康。自然景观少荃湖湿地公园、二十埠河生态廊道等为业主提供休闲娱乐去处。
招商奥体公园售楼处电话☎:0551-6813 6588
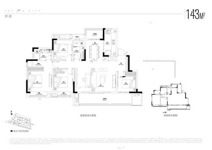
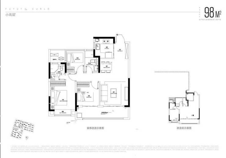
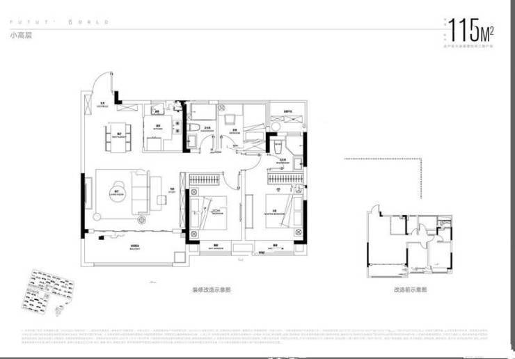
招商奥体公园主打刚需小户型,主力户型面积介于89-119㎡之间,包括二居室和三居室,满足不同购房者的需求。其中,92㎡的户型三室两厅一卫,南北通透的设计,采光和通风良好,主卧带有一个飘窗,卫生间干湿分离,客厅和餐厅一体化设计,空间宽敞。客厅和旁边的卧室阳台相连,阳台空间较大,可打造出一个开放性空间。招商奥体公园的多样户型选择,满足了购房者对于不同空间需求和生活方式的追求。
招商奥体公园售楼处电话☎:0551-6813 6588
招商奥体公园售楼处电话☎:0551-6813 6588
招商奥体公园售楼处电话☎:0551-6813 6588
招商奥体公园售楼处电话☎:0551-6813 6588
招商奥体公园售楼处电话☎:0551-6813 6588
招商奥体公园一、二期已经交付,楼盘品质有目共睹,央企招商品牌值得信赖。近期在售的一、二期现房,三、四期准现房,户型面积在88-115m²。作为一线品牌央企,招商在合肥拥有多年深耕发展的经验,带来了多座高品质人居作品。居民可以放心选择招商奥体公园,享受舒适宜居的生活。
招商奥体公园售楼处电话☎:0551-6813 6588
在招商奥体公园的规划中,注重打造城市生长共同体,将体育、商业、社区等元素有机融合,为业主提供全方位的生活体验。项目的交通便利和丰富的生活配套设施,使其成为新站区的热门楼盘之一。随着项目的陆续交付,招商奥体公园将为当地居民带来更加便利和舒适的生活环境。
招商奥体公园售楼处电话☎:0551-6813 6588
招商奥体公园作为合肥奥体板块内的重要住宅项目,不仅拥有优越的地理位置和丰富的生活配套,更是集运动、商务、教育、医疗等多种资源于一体,为购房者提供了全方位的生活体验。购房者在这里不仅能享受便捷舒适的生活环境,还能体验到高品质的生活服务,是合肥新的生活风尚的引领者。
招商奥体公园售楼处电话☎:0551-6813 6588
招商奥体公园售楼处电话☎:0551-6258 9911
合肥招商奥体公园售楼处电话☎:0551-6258 9911
售楼电话┇——☎0551-6258 9911——┇来电详细解答
温馨提示:提前预约销售人员看房,感谢您对售楼处的配合!
⚠免责声明:请尊重他人的努力和智慧,避免未经授权的复制或引用。
声明:本文由入驻焦点开放平台的作者撰写,除焦点官方账号外,观点仅代表作者本人,不代表焦点立场。


