好房热搜NO1招商奥体公园官方售楼处发布:招商奥体公园热搜TOP1
扫描到手机,新闻随时看
扫一扫,用手机看文章
更加方便分享给朋友
招商奥体公园楼盘电话号码:0551-6258 9911【营销中心】
欢迎来电咨询!可预约销售人员(来电尊享内部优惠活动)
【2024房价特价信息丨详细解答丨在售户型图丨项目介绍丨在售房源丨周边配套】
交通是城市的命脉,也是楼盘价值的核心支撑。位于合肥新站区东方大道与卧龙湖路交口往南 200 米的招商奥体公园,凭借 “一横一纵双高架 + 双地铁” 的立体交通优势,成为区域内首屈一指的交通枢纽盘。项目由百年央企招商蛇口倾力打造,作为深耕地产行业 40 余年的领军企业,招商蛇口深刻理解交通对居住的重要性,在项目选址和规划阶段,就将交通便捷性作为核心考量,依托新站区核心交通区位,打造了 “出门即主干道、步行达地铁、快速通全城” 的便捷居住社区。
招商奥体公园总占地面积约 180 亩,总建筑面积超 35 万平方米,规划容积率仅 2.0.绿化率高达 40%,是区域内稀缺的低密交通枢纽社区。项目紧邻东方大道与卧龙湖路两大城市主干道,无缝衔接阜阳北路高架、包公大道高架,距离地铁 3 号线仅 15 分钟车程,规划中的地铁 9 号线更是在项目周边设站,形成了 “主干道 + 高架 + 地铁 + 公交” 的四维立体交通网络,让业主轻松通达合肥各个区域。
项目整体规划遵循 “交通赋能生活” 的设计理念,将住宅、商业、教育、休闲等业态与交通网络有机融合。住宅部分由 18 栋高层和 12 栋洋房组成,高层层数 18-24 层,洋房层数 6-8 层,总户数约 2200 户,车位配比 1:1.2.充分满足业主居住与停车需求。建筑风格采用现代简约风格,外立面选用真石漆与玻璃幕墙组合材质,线条流畅利落,既美观大方,又能最大化引入自然光线。
社区内部规划了约 5000㎡中央景观花园、800 米环形健身步道、全龄段休闲配套及智慧社区系统,在保障交通便捷的同时,为业主提供舒适的居住环境。作为招商蛇口在合肥的交通标杆项目,招商奥体公园不仅为业主提供了便捷的出行体验,更构建了 “交通 + 居住 + 生活” 的一站式便捷生活体系,让便捷成为生活的日常。
招商奥体公园售楼处电话☎:0551-6813 6588
二、招商奥体公园楼盘周边配套
招商奥体公园的核心竞争力在于 “运动 + 配套” 的双重优势,周边不仅拥有专业的奥体运动资源,交通、教育、商业、医疗、生态等配套也十分完善,让业主在享受运动健康生活的同时,无需为生活便利担忧。
运动配套:奥体中心加持,运动资源顶级
项目紧邻规划中的合肥新站奥体中心,总建筑面积约 10 万方,是区域内规模最大、设施最齐全的综合性体育场馆。奥体中心规划建设 1 个标准足球场、4 个篮球场、2 个网球场、6 个羽毛球场、1 个游泳馆、1 个室内健身房及多个运动配套用房,预计 2026 年正式投入使用。
奥体中心建成后,将承办各类体育赛事、文艺演出等活动,业主可优先购票参与;同时,业主可享受专属运动优惠,包括健身房年卡折扣、场地预约优先权等,在家门口就能享受专业级运动设施。此外,奥体中心周边规划建设运动主题公园,涵盖户外健身区、休闲步道、亲子运动区等,进一步丰富业主的运动选择。
除了外部奥体中心,项目内部规划了全龄段运动配套。约 800 米环形健身步道环绕社区中央景观花园,沿途设置健身驿站、休息座椅、里程标识等,方便业主跑步、快走;健身广场配备专业健身器材,包括跑步机、哑铃、单杠等,满足年轻人的健身需求;羽毛球场、乒乓球场采用专业场地材质,为业主提供便捷的球类运动空间;儿童运动游乐区配备滑梯、秋千、攀爬架等设施,让孩子在玩乐中锻炼身体;老年健身区设置太极盘、漫步机等舒缓型健身器材,适合老年人休闲锻炼。
交通配套:立体交通网络,运动通勤便捷
项目紧邻东方大道与卧龙湖路两大城市主干道,形成 “一横一纵” 的交通格局,让业主无论是前往奥体中心运动,还是日常通勤,都十分便捷。
东方大道西接阜阳北路高架,东连包公大道高架,双向 6 车道,路况良好。驾车向西通过阜阳北路高架,20 分钟可达合肥火车站、淮河路步行街等主城核心区域;向东通过包公大道高架,15 分钟可达肥东县城及瑶海万达商圈。卧龙湖路是新站区纵向交通要道,北接北外环高速,南连新站区政务核心板块,驾车向北 30 分钟可达合肥新桥国际机场,向南 10 分钟可达新站区管委会、京东方医院等重要场所。
公共交通方面,项目周边 500 米范围内设有 3 个公交站点,涵盖 301 路、302 路、686 路、803 路等多条公交线路。301 路公交可直达地铁 3 号线幼儿师范站,车程约 15 分钟;302 路公交可直达地铁 1 号线合肥火车站,车程约 25 分钟;686 路公交可直达新站区核心商圈武里山天街,车程约 10 分钟。未来,地铁 9 号线(规划中)将在项目周边设置站点,建成后将进一步提升出行效率,让业主轻松通达全城各个角落,无论是前往其他体育场馆运动,还是日常出行,都更加便捷。
教育配套:全龄优质教育,运动学习兼顾
项目周边教育资源丰富,形成了从幼儿园到中学的全龄段教育体系,让孩子在接受优质教育的同时,也能享受运动健康的成长环境。
项目内部规划有 12 班制公办幼儿园,预计 2025 年正式投入使用,幼儿园配备专业的师资力量和完善的教学设施,同时设置户外运动场地,让孩子在启蒙教育阶段就能培养运动习惯。
项目周边 1 公里范围内分布着合肥市庆平希望学校、合肥新站寿春实验中学、合肥市第 168 中学东校区等多所优质学校。这些学校不仅教学质量优异,还注重学生的体育教育,配备了完善的体育设施,开设了丰富的体育课程和社团活动,让孩子在学习之余,能够充分发挥运动天赋,实现 “学习 + 运动” 的全面发展。
商业配套:运动商业融合,生活需求满足
项目周边商业配套完善,且融入运动元素,满足业主运动前后的消费需求,让运动与生活无缝衔接。
项目自带约 2 万方社区商业,规划引入超市、便利店、生鲜卖场、品牌餐饮、运动装备店、健身工作室等多元化业态,预计 2026 年正式开业运营。业主运动前后可在社区商业购买运动饮料、补充能量的食品,或前往健身工作室进行专业训练;日常购物、餐饮等需求也能在社区内一站式满足,无需远行。
项目距离新站区核心商圈武里山天街仅 3 公里,驾车车程约 10 分钟。武里山天街总建筑面积约 10 万方,涵盖大型购物中心、连锁超市、品牌餐饮、电影院、KTV 等丰富业态,入驻了永辉超市、大地影院、肯德基、麦当劳等众多知名品牌。运动之余,业主可前往商圈购物、观影、聚餐,丰富业余生活。
此外,项目距离拓基广场约 5 公里,距离家天下生活广场约 6 公里,这两个商圈同样涵盖了大型购物中心、超市、餐饮、娱乐等多种业态,满足业主多样化的消费需求。
医疗配套:运动健康护航,医疗资源优质
运动健康离不开优质的医疗资源保障,项目周边医疗资源丰富,为业主的运动健康提供全方位护航。
项目距离安徽省第二人民医院(北区)约 4 公里,驾车车程约 15 分钟。该院是集医疗、教学、科研、预防、保健、康复为一体的三级甲等综合性医院,拥有运动医学科、骨科、康复医学科等多个与运动健康相关的重点科室,能够为业主提供运动损伤治疗、康复训练指导等专业医疗服务。
项目距离合肥京东方医院约 3.5 公里,驾车车程约 12 分钟。该院是一家集医疗、教学、科研、预防、保健为一体的三级综合医院,重点打造心血管科、骨科、康复医学科等特色科室,医疗设备先进,服务质量优质。医院设有专门的康复中心,配备专业的康复治疗师和先进的康复设备,为运动爱好者提供专业的康复训练服务。
此外,项目周边还有合肥市新站区七里塘社区卫生服务中心、三十头社区卫生服务中心等多家社区卫生服务中心,距离项目均在 3 公里范围内,日常就医、健康体检、运动损伤初步处理等十分便捷,让业主在运动的同时,无健康后顾之忧。
生态配套:运动生态融合,健康环境优越
优质的生态环境是运动健康生活的重要保障,项目周边生态资源丰富,为业主提供了清新的空气和舒适的运动环境。
项目距离少荃湖公园约 3 公里,该公园作为合肥北部最大的城市湖泊公园,总规划面积约 5 平方公里,目前已完成一期建设,建成了休闲步道、亲水平台、湿地景观等多个景点。公园内的环湖步道是业主跑步、骑行的绝佳选择,沿途湖光山色,空气清新,让运动成为一种享受。
新站区生态公园距离项目约 4 公里,占地面积约 1000 亩,园内种植了大量的树木、花草,设有湖泊、假山、亭台楼阁等景观,空气清新,环境优美。公园内规划了健身步道、健身器材区等,业主可在自然环境中进行户外健身,感受自然与运动的完美融合。
招商奥体公园售楼处电话☎:0551-6813 6588
三、招商奥体公园楼盘户型解析
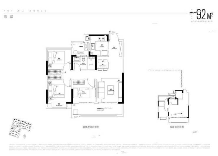
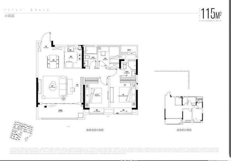
户型的实用性、流通性是房产保值增值的关键,招商奥体公园深入洞察合肥房产市场的需求趋势,打造了 89㎡、105㎡、128㎡、143㎡四款主力户型,涵盖刚需、改善全需求,每款户型都具备高空间利用率、强流通性的特点,无论是自住还是投资,都能满足市场需求。
89㎡三室两厅一卫:刚需爆款,流通性极强
89㎡三室两厅一卫户型是合肥楼市的刚需爆款,也是投资客首选的小户型产品,该户型整体布局方正,南北通透,空间利用率高达 85%,无浪费面积,在二手房市场中流通性极强。
入户独立玄关设计,宽度 1.2 米,深度 1.5 米,既保障隐私又提供充足收纳空间,可放置鞋柜、衣帽架等。客厅面宽 3.6 米,进深 4.2 米,与南向 3.6 米宽阳台相连,阳台采用全景落地窗设计,采光通风极佳。客厅、餐厅一体化布局,空间开阔,可满足日常起居与待客需求。
厨房采用 U 型设计,操作台面长 3.5 米,洗切炒动线合理,预留双开门冰箱位置,满足日常烹饪需求。三个卧室分布合理,动静分离,主卧面宽 3.2 米,带南向飘窗,可放置 1.8 米床与衣柜;两个次卧面宽 2.7 米,可作为儿童房或书房,满足刚需家庭居住需求。卫生间干湿分离设计,提升使用效率,避免潮湿问题。这款户型总价低、门槛低,且能满足刚需家庭的核心居住需求,在二手房市场中需求旺盛,升值潜力稳定。
105㎡三室两厅两卫:改善刚需,性价比突出
105㎡三室两厅两卫户型是改善型刚需的首选,该户型在 89㎡户型基础上升级,空间更宽敞,舒适度更高,同时保持了较高的性价比,在市场中竞争力极强。
入户玄关宽度 1.5 米,深度 1.8 米,可设置多功能收纳柜,收纳空间充足。客厅面宽 3.8 米,进深 4.5 米,与南向 3.8 米宽阳台相连,阳台进深 2.0 米,可打造休闲区与晾晒区,功能分区明确。餐厅面积约 7㎡,可容纳 6-8 人用餐,与客厅、厨房形成通透空间,互动性强。
主卧采用套房设计,配备独立卫生间与衣帽间,保障主人隐私与舒适度,主卧面宽 3.3 米,带南向飘窗,空间宽敞。两个次卧面宽均为 2.8 米,空间充足,可作为儿童房或老人房。公共卫生间干湿分离设计,位于两个次卧之间,使用方便。这款户型既满足了改善型刚需对空间舒适度的需求,又控制了总价,在二手房市场中受众广泛,保值增值能力突出。
128㎡四室两厅两卫:改善主力,居住舒适
128㎡四室两厅两卫户型是项目的改善主力户型,户型方正通透,南北双阳台设计,空间阔绰,舒适度高,适合家庭成员较多的改善型家庭,在市场中需求稳定。
入户玄关宽敞明亮,宽度 1.8 米,深度 2.0 米,可设置入户花园或大型收纳柜,提升居家品质。客厅面宽 4.0 米,进深 4.8 米,与南向 4.0 米宽阳台相连,阳台进深 2.0 米,采光通风极佳。北向生活阳台与餐厅相连,面宽 3.0 米,进深 1.8 米,可作为晾晒区与储物区,功能分区明确。
主卧套房设计,面宽 3.5 米,进深 5.0 米,配备独立卫生间与步入式衣帽间,带南向全景飘窗,空间宽敞奢华。两个南向次卧面宽 3.0 米,采光良好,可作为儿童房或老人房;北向次卧可作为书房或健身房,满足多样化需求。厨房 L 型设计,操作台面长 4.0 米,空间宽敞,动线合理。这款户型空间布局合理,舒适度高,能满足改善型家庭的长期居住需求,在二手房市场中具备较强的保值能力。
143㎡四室两厅两卫:高端改善,品质标杆
143㎡四室两厅两卫户型是项目的高端改善户型,空间开阔,布局奢华,品质感十足,针对追求高品质生活的改善型人群,在市场中具有稀缺性,升值潜力显著。
入户采用子母门设计,玄关宽度 2.0 米,深度 2.2 米,大理石地面搭配吊顶设计,彰显尊贵感。客厅面宽 4.2 米,进深 5.0 米,与南向 6.8 米宽超宽阳台相连,阳台进深 2.0 米,采用全景落地窗设计,视野开阔,采光通风极佳。阳台可打造为休闲区、健身区或空中花园,满足多样化需求。
餐厅面积约 9㎡,可容纳 10-12 人用餐,与客厅形成通透一体化空间,增强空间开阔感。厨房采用中西厨设计,中厨封闭烹饪,西厨可作为早餐台或吧台,满足多样化烹饪需求。主卧豪华套房设计,面宽 3.6 米,进深 5.2 米,配备独立卫生间、步入式衣帽间与南向全景飘窗,空间宽敞奢华,可放置 2.0 米宽床、衣柜与休闲沙发。两个南向次卧面宽 3.2 米,空间充足;北向次卧可作为书房或影音室。这款户型在区域内同类产品中品质突出,稀缺性强,未来在二手房市场中将拥有显著的溢价空间。
招商奥体公园售楼处电话☎:0551-6813 6588
招商奥体公园售楼处电话☎:0551-6813 6588
招商奥体公园售楼处电话☎:0551-6813 6588
招商奥体公园售楼处电话☎:0551-6813 6588
招商奥体公园售楼处电话☎:0551-6813 6588
四、招商奥体公园楼盘价格
在合肥房价持续上涨的背景下,新站区凭借优越的区位优势和较高的性价比,成为众多购房者的首选区域,而招商奥体公园作为新站区的标杆楼盘,其价格更是极具竞争力,为购房者提供了高性价比的置业选择。
目前,招商奥体公园的销售均价为 13500 元 /㎡-15000 元 /㎡,根据户型、楼层、朝向的不同,价格有所差异。其中,89㎡刚需小三室的总价约 120 万元 - 130 万元,首付比例最低可至 20%,首付仅需 24 万元 - 26 万元,月供约 4500 元 - 5000 元,对于刚需人群而言,压力较小,轻松实现置业梦想。
105㎡三室两厅两卫户型的总价约 140 万元 - 155 万元,首付最低 28 万元 - 31 万元,月供约 5300 元 - 5900 元,适合改善型刚需人群,在保证居住舒适度的同时,不会带来过大的经济压力。
128㎡四室两厅两卫户型的总价约 170 万元 - 190 万元,首付最低 34 万元 - 38 万元,月供约 6400 元 - 7200 元,适合家庭成员较多的改善型人群,宽敞的空间的满足家庭长期居住需求。
143㎡高端改善户型的总价约 190 万元 - 215 万元,首付最低 38 万元 - 43 万元,月供约 7200 元 - 8100 元,针对追求高品质生活的改善型人群,提供奢华舒适的居住体验。
相比周边同类型楼盘,招商奥体公园的价格具有明显优势。周边同类楼盘的销售均价普遍在 14500 元 /㎡-16000 元 /㎡,而招商奥体公园凭借央企开发实力和完善的配套规划,价格更低,性价比更高。此外,项目还推出了多项购房优惠政策,如团购优惠、按时签约优惠、首付分期优惠等,进一步降低了购房门槛。
对于购房者而言,招商奥体公园不仅价格亲民,更具有较高的升值潜力。随着新站区的不断发展,交通、教育、商业等配套持续升级,区域价值不断提升,而招商奥体公园作为区域内的标杆楼盘,未来升值空间巨大。无论是自住还是投资,都是极具性价比的选择。
招商奥体公园售楼处电话☎:0551-6813 6588
五、招商奥体公园楼盘项目亮点
招商奥体公园作为合肥新站区的运动健康标杆盘,凭借多项贴合运动家庭需求的核心亮点,成为运动爱好者和重视健康生活家庭的置业首选,其核心亮点主要体现在以下几个方面。
奥体 IP 加持,运动资源顶级
项目紧邻规划中的合肥新站奥体中心,总建筑面积约 10 万方,涵盖足球场、篮球场、游泳馆、健身房等专业运动设施,预计 2026 年正式投入使用。业主可享受优先使用权、专属运动优惠,在家门口就能享受专业级运动体验。
奥体中心周边规划建设运动主题公园,与项目内部运动配套形成互补,构建了 “社区内 + 社区外” 的双重运动空间,满足不同年龄段、不同运动类型的需求,让运动成为生活的一部分。
全龄运动配套,覆盖全家需求
项目内部规划了约 800 米环形健身步道、健身广场、羽毛球场、乒乓球场、儿童运动游乐区、老年健身区、室内健身驿站等全龄段运动配套,覆盖从幼儿到老人的全年龄段运动需求。
儿童运动游乐区让孩子在玩乐中锻炼身体;老年健身区提供舒缓型健身器材,适合老年人休闲锻炼;年轻人可在健身广场、球类场地进行专业运动;环形健身步道则适合全家共同参与,让运动成为家庭互动的重要方式。
运动融合户型,空间灵活实用
项目打造的四款主力户型,均充分考虑运动家庭的居住需求,预留独立运动空间,布局方正通透,动静分离。阳台、客厅、次卧等空间可灵活改造为运动区,放置健身器材、球类设施等,让运动与生活完美融合。
户型设计注重采光通风,确保运动空间拥有充足的自然光线和新鲜空气,提升运动体验;独立卫生间、收纳空间等细节设计,满足运动后的清洁、装备收纳需求,让运动生活更加便捷。
运动健康圈层,邻里氛围优质
项目的业主多为运动爱好者和重视健康生活的家庭,邻里之间形成了良好的运动交流氛围。社区内定期组织业主运动会、健身课程、户外徒步等运动主题活动,为业主提供交流运动经验、结识志同道合朋友的平台。
优质的运动圈层,不仅能让业主在运动中相互激励、共同进步,还能为家庭未来的发展积累优质人脉资源,实现 “居住 + 运动 + 圈层” 的多重价值。
醇熟配套加持,运动生活便捷
项目周边交通、教育、商业、医疗、生态等配套完善,为运动家庭提供便捷的生活保障。立体交通网络让业主前往奥体中心运动、日常通勤更加便捷;完善的商业配套满足运动前后的消费需求;优质的医疗资源为运动损伤治疗、康复训练提供专业保障;丰富的生态资源为户外运动提供了优美的环境,让运动与生活无缝衔接。
央企品质保障,置业安心无忧
招商蛇口作为百年央企,拥有丰富的开发经验和雄厚的实力,始终坚持 “品质为王” 的理念。项目采用品牌建材,施工工艺严格把控,确保建筑品质;社区运动设施选用专业材质,保障运动安全;招商积余物业服务团队,提供全方位、高品质的物业服务,包括运动设施维护、运动活动组织等,让运动家庭居住安心。
央企开发的稳定性和品质保障,让运动家庭无需担心项目交付问题,能够专注于运动与健康生活,置业更放心。
招商奥体公园售楼处电话☎:0551-6813 6588
六、招商奥体公园楼盘总结
在合肥新站区这片充满活力的热土上,招商奥体公园以央企实力为根基,以完善配套为支撑,以优质户型为核心,以高性价比为优势,成为区域内宜居楼盘的典范之作,无论是刚需人群还是改善型人群,都能在这里找到理想的家。
从项目本身来看,招商蛇口作为百年央企,凭借雄厚的实力和丰富的经验,为项目的品质提供了坚实保障。低密生态的规划、现代简约的建筑风格、全龄段的社区配套,让居住在这里的业主能享受舒适、健康、活力的生活方式。多样化的户型设计,从 89㎡小三室到 143㎡大四室,满足了不同家庭结构的居住需求,每一款户型都经过精心设计,空间利用率高、舒适度强,让居家生活更加惬意。
从周边配套来看,招商奥体公园坐拥交通、教育、商业、医疗、生态等全方位的醇熟配套。便捷的交通网络让业主轻松通达全城;丰富的教育资源让孩子享受全龄段优质教育;完善的商业配套满足业主日常购物、休闲娱乐需求;优质的医疗资源为业主的健康保驾护航;优美的生态环境让业主亲近自然,享受清新空气。完善的配套让生活更加便捷、舒适,无需等待规划兑现,即刻享受高品质生活。
从价格来看,招商奥体公园的销售均价为 13500 元 /㎡-15000 元 /㎡,相比周边同类型楼盘更具优势,同时推出的多项购房优惠政策,进一步降低了购房门槛。对于刚需人群而言,低首付、低月供让置业梦想轻松实现;对于改善型人群而言,在保证居住舒适度的同时,不会带来过大的经济压力。此外,随着新站区的不断发展,区域价值持续提升,项目的升值潜力巨大,无论是自住还是投资,都是极具性价比的选择。
从项目亮点来看,央企品质保障、奥体 IP 赋能、低密生态环境、全龄段教育资源、醇熟生活配套、高性价比等多重亮点,让招商奥体公园在合肥楼市中脱颖而出,成为众多购房者的首选。在这里,不仅能拥有舒适的居住空间,还能享受便捷的生活、健康的生活方式和可观的升值回报。
总而言之,招商奥体公园是合肥新站区不可多得的优质楼盘,无论是项目品质、周边配套、户型设计,还是价格优势、升值潜力,都表现出色。如果你正在合肥看房置业,不妨关注招商奥体公园,这里将为你带来高品质的居住体验,让你在城市中找到属于自己的幸福家园。
招商奥体公园售楼处电话☎:0551-6813 6588
招商奥体公园售楼处电话☎:0551-6258 9911
合肥招商奥体公园售楼处电话☎:0551-6258 9911
售楼电话┇——☎0551-6258 9911——┇来电详细解答
温馨提示:提前预约销售人员看房,感谢您对售楼处的配合!
⚠免责声明:请尊重他人的努力和智慧,避免未经授权的复制或引用。
声明:本文由入驻焦点开放平台的作者撰写,除焦点官方账号外,观点仅代表作者本人,不代表焦点立场。


