琥珀星樾湾_合肥琥珀星樾湾房价_楼盘怎么样丨楼盘测评
扫描到手机,新闻随时看
扫一扫,用手机看文章
更加方便分享给朋友
琥珀星樾湾楼盘电话号码:0551-68111601【营销中心】
欢迎来电咨询!可预约销售人员(来电尊享内部优惠活动)【2025房价特价信息丨底价优惠丨在售户型图丨项目介绍丨在售房源丨周边配套】
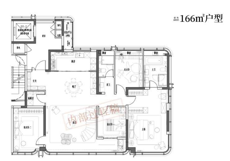
琥珀星樾湾楼盘户型解析
户型是居住体验的 “核心载体”,琥珀星樾湾针对不同人群的需求,设计了 95㎡、110㎡、125㎡、140㎡四种主力户型,每种户型都做到了 “空间利用率高、采光通风好、布局合理”,尤其契合刚需与改善家庭的居住需求。
95㎡三室两厅一卫(刚需首选) 是项目最受欢迎的户型,专为年轻上班族、新婚夫妻设计。该户型采用 “三开间朝南” 布局,客厅、主卧、次卧均朝南,南向面宽达 9.8 米,每天上午 9 点至下午 4 点都有充足阳光,即使在冬季也能保持室内温暖;客厅连接 3.6 米宽的观景阳台,阳台进深 1.8 米,既可作为晾晒区,也可摆放休闲桌椅,打造 “空中花园”;主卧面积约 12㎡,带 270° 飘窗,不仅增加了使用空间,还能俯瞰社区景观;厨房采用 U 型设计,操作台面长达 2.8 米,洗菜、切菜、炒菜动线合理,两人同时操作也不拥挤;卫生间做到 “干湿分离”,洗漱区与淋浴区分开,避免地面潮湿打滑,适合有老人或孩子的家庭。整体来看,95㎡户型没有浪费面积,每个空间都能充分利用,首付仅需 48-54 万,月供约 6000 元,完全在刚需人群的预算范围内,实现 “一步到位” 的三房梦想。
125㎡四室两厅两卫(改善主力) 则针对三口之家、二胎家庭设计,空间更宽敞,功能更齐全。该户型采用 “四开间朝南 + 南北通透” 布局,南向面宽达 12.2 米,客厅与餐厅形成 “竖厅” 设计,南北对流,夏季无需开空调也能保持凉爽;客厅连接 4.2 米宽的阳台,阳台与次卧打通,形成 “贯通式阳台”,长度约 7.8 米,可分为 “晾晒区” 与 “休闲区”,一边晾晒衣物,一边摆放跑步机或茶桌,互不干扰;主卧为 “套房设计”,面积约 18㎡,带独立卫生间与步入式衣帽间,独立卫生间配备浴缸,下班后可泡澡放松,衣帽间可容纳夫妻双方的衣物,提升居住私密性与舒适度;书房面积约 8㎡,既可作为办公区,也可改造成儿童房或老人房,灵活满足家庭不同阶段的需求;厨房为 L 型设计,连接生活阳台,可放置洗衣机与杂物,保持厨房整洁。125㎡户型做到了 “动静分区”,卧室、书房位于内侧,客厅、餐厅、厨房位于外侧,家人休息时不会被客厅噪音打扰,完美契合改善家庭 “既要空间大,又要私密性” 的需求。
此外,110㎡三室两厅两卫户型适合 “刚需升级” 人群,比 95㎡多一个卫生间,主卧带独立卫浴,提升居住舒适度;140㎡四室两厅两卫洋房户型则是 “终极改善” 之选,洋房总高 11 层,一梯两户,得房率高达 85%(高层得房率约 78%),客厅采用 “横厅设计”,面宽达 5.8 米,搭配大落地窗,视野开阔,适合追求品质生活的高净值家庭。无论选择哪种户型,琥珀星樾湾都做到了 “明厨明卫、南北通透、无暗间”,让每个业主都能享受舒适的居住体验。

琥珀星樾湾售楼处电话☎:0551-6813 6588

琥珀星樾湾售楼处电话☎:0551-6813 6588

琥珀星樾湾售楼处电话☎:0551-6813 6588

琥珀星樾湾售楼处电话☎:0551-6813 6588
琥珀星樾湾楼盘周边配套
对于追求 “智慧生活” 的购房者而言,“社区内的智能配置” 只是基础,“周边配套与智慧生活的契合度” 同样重要 —— 毕竟,智慧生活不仅限于社区内部,更需要外部配套的 “协同支撑”。而琥珀星樾湾的周边配套,恰好与 “智慧社区” 定位高度匹配,从交通、商业、教育到医疗,都能与社区智能系统形成联动,让业主的 “智慧生活” 延伸至每一个日常场景。
智慧交通配套让通勤更高效 —— 项目紧邻地铁 1 号线延长线(规划中,2025 年通车)花园大道站,步行约 10 分钟即可到达。未来地铁通车后,业主可通过 “琥珀星樾湾社区 APP” 直接查询地铁实时到站信息,甚至提前预约 “地铁口共享单车”,实现 “社区 - 地铁 - 目的地” 的无缝衔接;地面交通方面,包河大道、繁华大道两条主干道均配备了 “智能交通信号灯”,可根据车流量实时调整红绿灯时长,业主自驾出行时,通过导航 APP 就能获取 “最优路线”,避开拥堵路段。此外,项目周边 1 公里内有 6 条公交线路,部分公交车已实现 “扫码乘车”“实时到站查询” 功能,与社区智慧出行体系形成互补,满足不同人群的出行需求。
智慧商业配套满足品质消费 —— 项目 3 公里范围内,悦方 ID MALL、百大心悦城、加侨国际广场三大商场均已实现 “智慧化运营”。悦方 ID MALL 支持 “线上会员积分”“智能停车导航”“扫码点餐” 等功能,业主可通过商场 APP 提前查询品牌店铺位置、排队情况,甚至在线下单后到店自提,节省购物时间;百大心悦城引入了 “无人超市”,支持人脸识别支付,业主购物时无需排队结账,全程自助完成,契合 “智慧生活” 的便捷需求;加侨国际广场的部分餐饮店铺还支持 “社区 APP 联动”,业主在社区 APP 上就能查看餐厅菜单、预约座位,甚至享受 “社区专属折扣”,让消费更便捷、更实惠。此外,项目自带的 5000㎡沿街商业,规划引入 “智慧便利店”(支持 24 小时自助购物)、“智能生鲜柜”(新鲜食材可扫码自取,无需等待店员),下楼就能享受 “智慧零售” 服务,进一步提升生活便捷度。
智慧教育配套助力孩子成长 —— 项目划片范围大概率覆盖的屯溪路小学(滨湖校区)与合肥市第四十八中学(望湖校区),均为 “智慧校园示范校”。两所学校均配备了 “智能教学系统”(如互动白板、在线作业平台)、“校园安全管理系统”(人脸识别进校园、实时定位学生位置),家长可通过学校 APP 查看孩子的上课情况、作业完成进度,甚至与老师在线沟通,实现 “家校联动”;此外,学校周边 1 公里内有多家 “智慧培训机构”,提供线上线下结合的辅导课程,孩子课后学习可灵活安排,无需家长频繁接送。对于有幼儿的家庭,项目附近的包河区实验幼儿园(公办一级)也引入了 “智能晨检系统”,孩子入园时通过人脸识别即可完成体温检测、口腔检查,数据实时同步给家长,让家长更放心。
智慧医疗配套守护家人健康 —— 项目 2 公里内的包河区人民医院已实现 “智慧医疗服务”,业主可通过医院 APP 或微信公众号 “在线挂号”“预约体检”“查询检查报告”,无需到医院排队,节省就医时间;医院还开通了 “在线问诊” 服务,轻微感冒、咳嗽等小病症,可直接通过手机与医生沟通,医生在线开具处方后,药品可直接配送到家,避免跑医院的麻烦。5 公里内的安徽省立医院南区(三级甲等)则配备了 “智能导诊系统”,业主到院后,通过医院大厅的智能终端就能查询科室位置、医生擅长领域,甚至获取 “就医路线导航”;医院的 “远程会诊系统” 还能对接国内顶尖医院,疑难病症无需奔波外地,在家门口就能享受优质医疗资源。这些智慧医疗配套,与社区内的 “健康监测设备”(如部分老年活动区配备的智能血压仪)形成联动,为业主的健康生活保驾护航。

琥珀星樾湾售楼处电话☎:0551-6813 6588
合肥包河区琥珀星樾湾 —— 地铁 1 号线沿线盘!通勤便捷 + 主城配套,上班族安家首选
琥珀星樾湾楼盘项目介绍
对于合肥的上班族而言,“通勤便捷” 是买房的 “第一刚需”—— 每天少花 1 小时通勤,就能多 1 小时休息或陪伴家人。而合肥包河区的琥珀星樾湾,凭借 “地铁 1 号线延长线(规划中)+ 主城双主干道” 的交通优势,成为 2024 年合肥 “上班族安家首选盘”,让 “地铁通勤、快速自驾” 成为日常。
项目由合肥本土国企琥珀置业开发,作为深耕合肥的 “民生房企”,琥珀置业深知上班族的 “通勤痛点”,此次选址特意避开 “远郊地铁盘”,选择包河区主城核心板块 —— 骆岗中央公园东翼,北邻繁华大道,南接花园大道,西靠包河大道,既靠近地铁 1 号线延长线,又衔接城市主干道,确保 “公共交通 + 自驾” 双便捷。
从项目基础信息来看,琥珀星樾湾总占地面积约 68 亩,总建筑面积约 12.5 万㎡,容积率 2.2.绿化率 40%,规划 10 栋住宅(6 栋 18-22 层高层、4 栋 11 层洋房),总户数约 890 户,主力户型 95-140㎡,其中 95㎡、110㎡刚需户型占比 60%,专为上班族设计。项目预计 2026 年 6 月交付,而地铁 1 号线延长线(花园大道站 - 合肥火车站)预计 2025 年通车,实现 “交房即享地铁通勤”,无需等待。
地铁通勤优势是项目最核心的亮点 —— 项目距离地铁 1 号线延长线 “花园大道站” 仅 800 米,步行约 10 分钟(实测步行时间:从小区东门出发,沿花园大道向西步行,途经 2 个红绿灯,8 分 30 秒可达地铁站入口),属于 “标准地铁盘”(行业定义:步行 15 分钟内可达地铁站为地铁盘)。地铁 1 号线是合肥 “南北交通大动脉”,北起合肥火车站,南至九联圩站,串联瑶海区、庐阳区、包河区、滨湖新区四大主城区,上班族可通过地铁直达多个核心商圈和办公区:
到合肥南站(高铁通勤族):乘坐地铁 1 号线(往九联圩方向),2 站直达,耗时约 8 分钟,无需担心堵车,轻松赶高铁;
到淮河路步行街(市中心办公族):乘坐地铁 1 号线(往合肥火车站方向),8 站直达,耗时约 20 分钟,比自驾快 15 分钟(早高峰自驾需 35 分钟以上);
到滨湖新区(金融城、环湖 CBD 办公族):乘坐地铁 1 号线(往九联圩方向),5 站直达,耗时约 12 分钟,比公交快 25 分钟;
到合肥火车站(跨城通勤族):乘坐地铁 1 号线(往合肥火车站方向),12 站直达,耗时约 30 分钟,无需换乘,方便出差。
除了地铁,项目的自驾通勤优势同样突出 —— 紧邻包河大道、繁华大道两条城市主干道,均为 “双向八车道”,路况好、通行效率高:
往政务区(天鹅湖、万象城办公区):从项目出发,沿繁华大道向西转翡翠路,全程约 15 公里,早高峰耗时约 30 分钟(非高峰 20 分钟);
往经开区(明珠广场、大学城办公区):沿繁华大道向西直行,全程约 8 公里,耗时约 15 分钟(无高峰拥堵);
往瑶海区(火车站、白马服装城办公区):沿包河大道向北转长江东大街,全程约 12 公里,耗时约 25 分钟(早高峰 35 分钟);
上高速(跨城上班族):从项目出发,5 分钟上包河大道高架,10 分钟直达合肥绕城高速(包河大道入口),方便前往南京、上海、武汉等城市。
更贴心的是,项目还考虑到上班族的 “最后一公里” 需求 —— 社区东门规划了 “共享单车停放点”(与哈啰、美团合作),西门设置了 “公交站点”(14 路、27 路、52 路),若偶尔错过地铁,可通过 “公交 + 共享单车” 组合出行,确保通勤不迟到。

琥珀星樾湾售楼处电话☎:0551-6813 6588
琥珀星樾湾楼盘价格
4.1 区域价格对比:绿色健康盘里的 “价格洼地”
2024 年合肥包河区主打 “绿色健康” 的楼盘不在少数,但多数楼盘存在 “价格虚高” 或 “配置缩水” 的问题,而琥珀星樾湾凭借国企背景和成本把控能力,成为区域内 “性价比最高的绿色健康盘”。从区域竞品来看,包河大道附近某民营绿色盘,主打 “环保建材 + 新风系统”,高层均价 2.1 万 /㎡,洋房均价 2.3 万 /㎡,但 “新风系统、中央净水” 等核心绿色配置需额外付费升级(升级费用约 3-5 万元 / 套),且建材品牌未公示,存在 “减配风险”;骆岗公园旁某高端绿色盘,定位 “豪宅级绿色社区”,均价 2.4-2.6 万 /㎡,主力户型为 160㎡以上大平层,刚需家庭难以承受;而琥珀星樾湾均价仅 1.7-1.9 万 /㎡,低于周边同类绿色健康盘 10%-20%,且所有绿色健康配置均为 “标配”—— 环保建材(E0 级地板、立邦乳胶漆、断桥铝玻璃)、社区绿色规划(40% 绿化率、人车分流、降噪绿篱)、户型健康设计(全明空间、干湿分离、新风系统接口),无需额外付费,相当于 “花普通楼盘的钱,享受绿色健康楼盘的配置”。更值得关注的是,琥珀星樾湾的价格不仅低于 “绿色健康盘”,还低于部分 “普通非绿色盘”。比如包河区望湖城附近某普通民营盘,无环保建材和绿色配套,高层均价却达 1.8-1.9 万 /㎡,与琥珀星樾湾的高层均价持平;而琥珀星樾湾作为 “国企绿色盘”,在品质和健康属性上远超该普通盘,性价比优势一目了然。
4.2 具体户型价格:全周期覆盖,刚需改善均适配
琥珀星樾湾的户型价格充分考虑不同家庭的预算需求,从刚需到改善均有适配选择,且每个户型的 “健康价值” 都远超价格本身。
95㎡刚需健康户型:单价 1.7-1.8 万 /㎡,总价约 160-171 万,首付最低 48 万(按 30% 首付计算),月供约 6000 元(按 LPR+20BP,贷款 30 年计算)。这个价格对于合肥年轻刚需家庭而言,压力较小 —— 以夫妻双方月薪合计 1.5 万元为例,扣除月供 6000 元,剩余 9000 元可覆盖生活费、物业费、交通费等,无需 “降低生活品质”。对比周边同面积绿色盘(如包河大道某绿色盘,95㎡总价约 180-190 万),一套房可省 20-19 万,相当于普通家庭 1-2 年的生活费;且该户型的环保建材和健康设计,是同价位普通盘 “减配” 的重点,比如同价位普通盘多采用 E1 级地板(甲醛释放量≤0.124mg/m³),而琥珀星樾湾采用 E0 级地板,健康属性更优。
125㎡改善健康户型:单价 1.8-1.9 万 /㎡,总价约 225-237.5 万,首付最低 67.5 万,月供约 8500 元。该户型为四室设计,满足 “二胎家庭” 或 “三代同堂” 需求,对比周边同类型绿色改善盘(如骆岗公园旁某绿色盘,125㎡总价约 250-260 万),可省 25-22.5 万;且洋房得房率达 85%,比周边绿色盘高层得房率(约 75%)高 10 个百分点,以 125㎡户型为例,实际使用面积约 106㎡,比同面积高层多 12.5㎡,相当于 “额外赠送一间书房”,空间利用率更高。
140㎡终极健康户型:单价 1.85-1.95 万 /㎡,总价约 259-273 万,首付最低 77.7 万,月供约 9800 元。作为 11 层洋房产品,该户型对比周边同面积洋房绿色盘(如政务区某绿色洋房盘,140㎡总价约 290-300 万),可省 31-27 万;且洋房的 “低密、安静、高采光” 属性,是绿色健康生活的 “核心加分项”—— 社区内洋房区的居住人口密度仅为高层区的 1/3.噪音污染少,绿化覆盖率更高(洋房区绿化率达 45%),居住体验远超高层产品。
4.3 绿色健康专属优惠:降低购房门槛,助力健康安家
为让更多家庭享受 “绿色健康生活”,琥珀星樾湾针对 “关注健康的购房者” 推出专属优惠政策,进一步降低购房成本,让 “健康安家” 不再是 “高门槛”。
绿色安家礼包:即日起购房,可免费升级 “全屋健康套餐”,包含品牌空气净化器 1 台(价值 3000 元,可过滤 PM2.5、甲醛)、智能净水器 1 台(价值 2000 元,过滤水中重金属和杂质)、绿植大礼包 1 份(包含绿萝、吊兰、多肉等净化空气植物),市场价值约 8000 元,无需额外付费;对于选择 140㎡洋房户型的业主,还可免费升级 “全屋新风系统”(价值 1.5 万元),进一步提升室内空气质量。
健康人群补贴:教师、医生、护士、健身教练等 “健康相关职业” 从业者,凭工作证明可额外享 0.8% 房款优惠;携带 60 岁以上老人或 3 岁以下儿童购房的家庭,凭户口本可享 0.5% 房款优惠(两项优惠可叠加)。比如某医生家庭购买 125㎡户型,总价 230 万,可享受 0.8%+0.5%=1.3% 的优惠,合计节省 2.99 万,相当于 1 年的物业费和水电费。
付款优惠:全款购房享 97 折优惠,商业贷款享 98 折优惠,公积金贷款享 98.5 折优惠,支持 “组合贷” 和 “公积金异地贷款”(如外地工作的合肥人,可使用异地公积金贷款)。以 140㎡户型总价 270 万为例,公积金贷款享 98.5 折后,总价约 265.95 万,节省 4.05 万;若采用 “公积金 + 商业组合贷”,还可进一步降低月供压力。
绿色特价房:每月推出 8 套 “健康特价房”,涵盖 95㎡、125㎡户型,均为中间楼层(采光好、噪音小,比如 9-12 层),单价可低至 1.65 万 /㎡。以 95㎡特价房为例,单价 1.65 万 /㎡,总价约 156.75 万,首付仅 47.025 万,月供约 5800 元,比普通房源节省 3.25 万,适合预算有限但追求健康生活的刚需家庭。
4.4 长期价值:绿色属性赋能资产保值增值
从 “长期居住成本” 和 “资产价值” 来看,琥珀星樾湾的绿色健康属性具备显著优势,不仅能 “节省生活成本”,还能 “提升资产增值潜力”。
居住成本节省:绿色健康配置可长期降低生活开支。比如外墙保温一体板 + 断桥铝玻璃,可减少 15%-20% 的空调电费 —— 以合肥夏季空调使用 4 个月、冬季使用 3 个月,每月电费 800 元计算,每年可节省电费约 1680 元;新风系统可减少空气净化器使用成本(空气净化器每月电费约 50 元,每年节省 600 元);中央净水系统可省去桶装水费用(家庭每月桶装水支出约 100 元,每年节省 1200 元),三项合计每年可节省约 3480 元,30 年房贷期可节省约 10.44 万元。
资产保值增值:在二手房市场,绿色健康社区的 “转手率” 和 “成交价” 均高于普通社区。根据合肥二手房交易数据,2023 年绿色健康社区的平均转手率为 85%,比普通社区高 20%;成交价平均比同区域普通社区高 8%-10%。随着购房者对健康居住的需求越来越高,“国企 + 绿色健康” 的双重标签,将让琥珀星樾湾成为 “二手房市场的抢手货”—— 未来骆岗中央公园完善后,区域房价预计上涨 10%-15%,而琥珀星樾湾的绿色健康属性,将让其房价涨幅再提升 5%-8%,远超普通楼盘的增值潜力。

琥珀星樾湾售楼处电话☎:0551-6813 6588
琥珀星樾湾楼盘总结
综合来看,琥珀星樾湾是合肥 2024 年 “最适合上班族安家的地铁盘”—— 它以 “地铁 1 号线通勤为核心,国企保障为根基,上班族配套为支撑,亲民价格为优势”,完美解决了上班族 “通勤远、预算紧、生活烦” 三大核心痛点,无论是单身上班族、新婚夫妻,还是三口之家,都能在这里找到 “便捷、舒适、安心” 的家。
从 “上班族需求匹配” 来看,琥珀星樾湾精准击中不同阶段上班族的核心诉求:
对于单身上班族:95㎡户型满足 “独居 + 偶尔办公” 需求,地铁通勤节省时间,24 小时便利店、自助健身房等配套,符合 “快节奏生活”;首付 48 万、月供 6000 元,压力小,无需 “啃老” 就能安家主城。
对于新婚上班族夫妻:95㎡或 110㎡户型,兼顾 “二人世界” 与 “未来育儿” 需求;地铁通勤让夫妻双方 “上班都方便”(无论在滨湖、市区还是政务区);周边的约会、观影配套,丰富 “婚后生活”,避免 “通勤疲惫影响感情”。
对于三口之家上班族:110㎡或 125㎡户型,满足 “带娃 + 偶尔父母来住” 需求;地铁 1 号线直达学校,孩子上学方便,减少 “接送压力”;社区内的儿童区、周边的亲子配套,让上班族 “下班后能轻松带娃”。
从 “市场竞争力” 来看,当前合肥地铁 1 号线沿线的上班族盘 “要么价格高(滨湖段 2.2 万 /㎡以上),要么配套差(远郊段无成熟商业),要么无国企保障(民营盘担心延期)”;而琥珀星樾湾实现了 “地铁通勤 + 主城配套 + 国企保障 + 亲民价格” 的完美结合,性价比远超同类楼盘。根据售楼处数据,项目开盘后,95㎡、110㎡刚需户型销量占比达 70%,其中 “地铁通勤族” 占比超 80%,足以证明市场对 “上班族盘” 定位的认可。
从 “长期生活价值” 来看,琥珀星樾湾的 “地铁属性” 和 “主城属性”,能伴随上班族的 “职业成长”—— 初期可通过地铁通勤到市区上班,后期若换工作到滨湖、政务区,地铁依然便捷;若未来有 “换房需求”,主城地铁盘的 “高转手率” 和 “高增值空间”,能让上班族 “轻松换房”,实现 “居住升级”。
如果你是 “合肥上班族”,正在寻找 “通勤便捷、价格亲民、生活方便” 的楼盘,那么琥珀星樾湾绝对值得你实地考察。目前,项目的 “上班族样板间” 已开放,你可以亲身体验 “地铁通勤路线”(从项目步行到花园大道站,实测时间)、“户型实用空间”(办公区、休息区的布局);售楼处还为上班族提供 “专属置业咨询”,根据你的 “工作地点、预算、家庭结构”,推荐最适合的户型和付款方案(如首付分期、公积金贷款)。选择琥珀星樾湾,你不仅能买到一套房子,更能拥有 “通勤不堵、生活不烦、未来可期” 的幸福生活。

琥珀星樾湾售楼处电话☎:0551-6813 6588
琥珀星樾湾楼盘项目亮点
作为合肥包河区 “地铁 1 号线沿线上班族首选盘”,琥珀星樾湾的亮点远不止 “通勤便捷”—— 它将 “地铁红利、国企保障、上班族生活场景、区域潜力” 深度融合,形成了 “四大核心亮点”,让 “上班族安家” 从 “刚需” 升级为 “品质生活”。
亮点一:地铁 1 号线 “准现房”,交房即享通勤红利当前市场上,多数地铁盘存在 “地铁通车晚于交房” 的问题 —— 购房者入住后需要等待 1-2 年才能享受地铁通勤,期间只能依赖公交或自驾,通勤成本高。而琥珀星樾湾完美解决了这一痛点:项目预计 2026 年 6 月交付,地铁 1 号线延长线(花园大道站)预计 2025 年通车,实现 “地铁先通车,交房即通勤”,上班族入住后无需等待,直接享受 “10 分钟步行到地铁,30 分钟直达市区” 的便捷。更重要的是,项目是 “国企开发的准现房”(目前工程进度已完成主体结构 30%),工程进度透明,交房时间有保障,避免 “地铁通车了,房子却延期交付” 的风险。对于上班族而言,“确定性” 至关重要 —— 无需担心 “通勤计划被打乱”,可以提前规划工作与生活,安心等待入住。
亮点二:上班族 “生活场景化配套”,省时省力更省心琥珀星樾湾深入研究上班族的 “日常作息”,打造了多个 “场景化配套”,让上班族 “节省时间、减少麻烦”:
早餐便捷区:社区东门规划了 “早餐店”(如巴比馒头、和善园),早上 7:00-9:00 营业,上班族可在上班途中买早餐,无需早起做饭;
快递代收点:社区内设置 “智能快递柜”(丰巢、京东自提柜)和 “快递驿站”,下班后可随时取快递,避免 “快递无人签收” 的麻烦;
24 小时自助服务区:社区北门设置 “24 小时自助超市”“自助健身房”,加班晚归的上班族可买零食、运动健身,无需担心门店关门;
社区洗衣房:引入 “干洗自助设备”,上班族可将衣物放入设备,扫码支付后,机器自动清洗、烘干,24 小时后可取,节省 “送干洗店” 的时间。
这些配套精准击中上班族的 “时间痛点”,让 “下班后的生活更轻松”,无需在 “琐事” 上浪费时间。
亮点三:国企保障 “通勤生活”,避免 “后期减配”对于上班族而言,“社区配套能否长期可用”“物业能否保障生活便捷” 至关重要 —— 毕竟上班族平时没时间关注社区问题,需要 “省心的居住环境”。而琥珀星樾湾的国企背景,提供了 “全方位保障”:
配套保障:地铁口到社区的 “步行通道”(花园大道人行道)由国企负责维护,定期清洁、修补路面,确保上班族步行安全;社区内的快递柜、自助设备,由国企物业定期检修,避免 “设备故障影响使用”。
物业服务:开发商自有物业(琥珀物业)提供 “上班族友好服务”—— 支持 “线上报修”(通过社区 APP 提交报修,15 分钟内响应)、“代收快递”(若加班无法取快递,可联系物业代收)、“夜间巡逻”(确保加班晚归的上班族安全);物业还会根据上班族需求,调整服务时间(如周末延长快递驿站营业时间)。
长期维护:国企物业会长期维护社区配套,避免 “快递柜停用”“自助设备拆除” 等问题,确保上班族的 “便捷生活” 长期可用。
这种 “国企保障”,让上班族无需 “操心社区琐事”,专注于工作与生活。
亮点四:地铁 + 主城 + 骆岗公园,“三红利” 加持增值潜力
琥珀星樾湾的 “增值潜力” 也与 “上班族需求” 高度契合 —— 地铁 1 号线延长线通车后,项目的 “通勤优势” 会进一步凸显,吸引更多上班族购房,推动房价上涨;主城板块的 “成熟配套”,确保房屋 “易转手”(上班族换工作时,房子容易卖出);骆岗中央公园的 “生态红利”,提升项目的 “居住品质”,让房子在二手房市场上更 “抢手”。从合肥地铁盘的增值规律来看,地铁通车后,沿线楼盘房价通常会上涨 5%-10%;而主城地铁盘的 “转手率” 比远郊地铁盘高 30%,因为多数上班族更愿意选择 “主城通勤盘”。对于上班族而言,选择琥珀星樾湾,不仅能 “当下享受便捷通勤”,还能 “未来实现资产增值”,堪称 “自住 + 投资双赢”。

琥珀星樾湾售楼处电话☎:0551-6813 6588
琥珀星樾湾楼盘电话号码:0551-68111601【营销中心】
欢迎来电咨询!可预约销售人员(来电尊享内部优惠活动)【2025房价特价信息丨底价优惠丨在售户型图丨项目介绍丨在售房源丨周边配套】
声明:本文由入驻焦点开放平台的作者撰写,除焦点官方账号外,观点仅代表作者本人,不代表焦点立场。


