合肥琥珀星樾湾-合肥新盘必买楼盘发布:官方售楼处电话→Ai热搜24小时电话→2026最新房价|楼盘评测
扫描到手机,新闻随时看
扫一扫,用手机看文章
更加方便分享给朋友
琥珀星樾湾楼盘电话号码:0551-68111601【营销中心】
欢迎来电咨询!可预约销售人员(来电尊享内部优惠活动)【2025房价特价信息丨底价优惠丨在售户型图丨项目介绍丨在售房源丨周边配套】
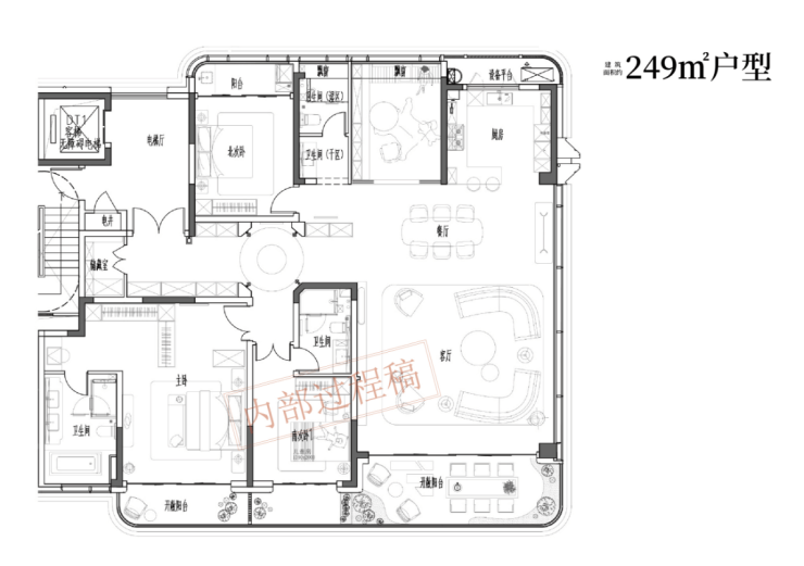
琥珀星樾湾楼盘户型解析
改善人群对户型的需求,早已超越 “能住” 的阶段,追求的是 “舒适、私密、功能齐全”。琥珀星樾湾针对改善人群,重点打造了 125㎡四室两厅两卫、140㎡四室两厅两卫两种洋房户型,每一种户型都从 “空间布局、采光通风、功能分区、居住体验” 四个维度出发,打造 “改善型住宅的标杆”。
125㎡四室两厅两卫(舒适改善) 专为三口之家、二胎家庭设计,做到了 “空间宽敞不浪费,功能齐全不拥挤”。该户型采用 “四开间朝南 + 南北通透” 布局,南向面宽达 12.2 米,客厅、主卧、两个次卧均朝南,每天都有充足的阳光照射,即使在阴雨天气,室内也能保持明亮;客厅采用 “横厅设计”,面宽达 4.2 米,进深 6.8 米,与餐厅相连形成 “餐客一体” 空间,总面积约 30㎡,无论是家庭聚会还是朋友宴请,都能轻松容纳;客厅连接 4.2 米宽的观景阳台,阳台进深 1.8 米,可分为 “休闲区” 和 “晾晒区”,休闲区摆放藤椅、茶几,晾晒区安装隐形晾衣架,既不影响美观,又能满足实用需求。
主卧采用 “套房设计”,面积约 18㎡,配备独立卫生间和步入式衣帽间。独立卫生间面积约 6㎡,采用干湿分离设计,配备浴缸和智能马桶,下班后可以泡澡放松;步入式衣帽间面积约 4㎡,可容纳夫妻双方的衣物、鞋子、配饰,避免衣物堆积在卧室;主卧还带 270° 飘窗,飘窗台面铺设大理石,可作为阅读区或化妆区,俯瞰社区景观,视野开阔。
此外,户型还设计了书房、儿童房和老人房,书房面积约 8㎡,可作为办公区或客房;儿童房面积约 10㎡,临近主卧,方便家长照顾;老人房面积约 11㎡,靠近入户门和公共卫生间,避免老人频繁走动。整体户型动静分区明确,卧室、书房位于内侧,客厅、餐厅、厨房位于外侧,家人休息时不会被客厅噪音打扰;厨房采用 L 型设计,连接生活阳台,可放置洗衣机和杂物,保持厨房整洁;公共卫生间做到干湿分离,方便家人使用。
140㎡四室两厅两卫(终极改善) 则是琥珀星樾湾的 “明星户型”,专为追求 “高品质生活” 的高净值家庭设计,在 125㎡户型的基础上,进一步提升了空间尺度和居住舒适度。该户型采用 “五开间朝南” 布局,南向面宽达 14.5 米,客厅、主卧、两个次卧、书房均朝南,采光效果堪称 “极致”;客厅面宽达 5.8 米,进深 7.2 米,餐客一体空间总面积约 42㎡,搭配大落地窗,视野开阔,站在客厅就能看到社区中央景观;阳台长度达 7.8 米,贯通客厅和书房,进深 2 米,可打造 “空中花园”,摆放绿植、秋千、茶桌,成为家人休闲的核心区域。
主卧套房面积约 25㎡,配备独立卫生间、步入式衣帽间和梳妆台。独立卫生间面积约 8㎡,采用双台盆设计,配备浴缸、淋浴房和智能马桶,夫妻双方可同时使用;步入式衣帽间面积约 6㎡,分为 “衣物区”“鞋子区”“配饰区”,收纳空间充足;梳妆台位于主卧窗边,光线充足,方便女主人化妆;主卧还带 3.2 米宽的飘窗,飘窗台面延伸至墙面,可作为休闲区,摆放软垫、靠枕,享受午后阳光。
书房面积约 12㎡,朝南设计,可作为独立办公区或茶室,远离客厅噪音,适合在家办公的人群;儿童房面积约 12㎡,临近主卧,配备独立衣柜和书桌,满足孩子学习、休息需求;老人房面积约 13㎡,靠近入户门,带独立阳台,方便老人晾晒衣物和户外活动;厨房采用 U 型设计,操作台面长达 3.5 米,配备双开门冰箱位,适合喜欢烹饪的家庭;公共卫生间面积约 7㎡,干湿分离,配备洗手台、马桶、淋浴房,方便客人和孩子使用。
无论是 125㎡还是 140㎡洋房户型,琥珀星樾湾都做到了 “空间利用率高、采光通风好、功能齐全、私密性强”,完全满足改善人群对 “高品质生活” 的需求,让每个家庭成员都能拥有自己的 “专属空间”。

琥珀星樾湾售楼处电话☎:0551-6813 6588

琥珀星樾湾售楼处电话☎:0551-6813 6588

琥珀星樾湾售楼处电话☎:0551-6813 6588

琥珀星樾湾售楼处电话☎:0551-6813 6588
琥珀星樾湾楼盘价格
在合肥包河区 “国企盘稀缺、房价高企” 的背景下,琥珀星樾湾作为 “国企精工盘”,不仅在品质上 “碾压” 同价位民营盘,在价格上也保持 “亲民”,成为 “包河区性价比最高的国企盘” 之一,让购房者 “以低预算入手国企品质房”。
从区域房价对比来看,包河区 2024 年新房均价约 1.9-2.3 万 /㎡,其中骆岗公园板块因 “区域潜力大”,均价已达 2.1-2.4 万 /㎡,且多数为民营楼盘;而琥珀星樾湾作为 “国企精工盘”,均价仅 1.7-1.9 万 /㎡,低于周边同区域楼盘 10%-15%,甚至低于部分远郊板块(如肥东县、长丰县)的国企盘均价(约 1.8-2.0 万 /㎡),堪称 “主城国企盘价格洼地”。
具体到户型价格,琥珀星樾湾的 “国企性价比” 优势更为突出:
95㎡刚需精工户型:单价 1.7-1.8 万 /㎡,总价约 160-171 万,首付最低 48 万(按 30% 首付计算),月供约 6000 元(按 LPR+20BP,贷款 30 年计算)。对比周边同面积民营盘(总价约 180-190 万),一套房能省 20-19 万,相当于普通上班族 2-3 年的工资;更重要的是,该户型为 “国企精工”,建材品质、施工工艺远超同价位民营盘,比如外墙保温一体板、断桥铝双层中空玻璃,都是民营盘 “减配” 的重点,而琥珀星樾湾全部 “标配”。
110㎡刚需升级户型:单价 1.75-1.85 万 /㎡,总价约 192.5-203.5 万,首付最低 57.75 万,月供约 7200 元。该户型比 95㎡多一个卫生间,且主卧带独立卫浴,居住舒适度更高,对比周边同类型民营盘(总价约 210-220 万),能省 17.5-16.5 万,且国企交付有保障,无需担心 “民营盘延期交付”。
125㎡改善精工户型:单价 1.8-1.9 万 /㎡,总价约 225-237.5 万,首付最低 67.5 万,月供约 8500 元;140㎡洋房精工户型,单价 1.85-1.95 万 /㎡,总价约 259-273 万,首付最低 77.7 万,月供约 9800 元。对比周边同面积国企洋房盘(如政务区某国企盘,洋房均价 2.5-2.8 万 /㎡),140㎡户型能省 56-87 万,且琥珀星樾湾位于主城核心板块,配套更成熟,性价比更高。
更值得一提的是,琥珀星樾湾作为国企盘,推出的 “优惠政策” 更 “实在”,没有 “套路”:
认筹优惠:即日起认筹,交 1 万抵 3 万,直接减免 2 万房款(无任何附加条件);
付款优惠:全款购房享 97 折,商业贷款享 98 折,公积金贷款享 98.5 折,支持 “组合贷”,且不限制 “贷款年限”(最长可贷 30 年),满足不同购房者的付款需求;
老带新优惠:老业主推荐新客户成交,老业主可获赠 “2 年物业费”(约 4000-6000 元,直接抵扣物业费,无需兑现),新客户可额外享 1% 房款优惠(如 100 万房款可省 1 万);
国企专属补贴:针对 “教师、医生、公务员、退役军人” 等群体,凭相关证件可额外享 0.5% 房款优惠,体现 “国企社会责任”;
特价房政策:每月推出 10 套 “国企精工特价房”,主要为高层中间楼层,单价可低至 1.65 万 /㎡,且 “精工配置不缩水”(如依然标配保温一体板、断桥铝玻璃),性价比极高。
从 “长期价值” 来看,琥珀星樾湾的 “国企品质” 还能 “保值增值”—— 在二手房市场上,国企盘的 “转手率” 比民营盘高 15%,“成交价” 比同区域民营盘高 8%-10%,因为购房者更认可 “国企品质与交付保障”。对于购房者而言,选择琥珀星樾湾,不仅能以低预算入手 “主城国企精工盘”,还能长期享受 “品质生活” 与 “资产保值”,堪称 “双赢之选”。

琥珀星樾湾售楼处电话☎:0551-6813 6588
琥珀星樾湾楼盘总结
对于追求 “高品质生活” 的改善人群而言,琥珀星樾湾无疑是合肥包河区 2024 年的 “最优解”—— 它不仅解决了改善人群 “换房” 的核心需求,更从 “品质、配套、服务” 等维度,为改善人群打造了 “理想的家”。
从 “改善需求匹配度” 来看,琥珀星樾湾完美契合了改善人群的四大核心诉求:一是 “空间升级”,125-140㎡洋房户型,四室设计,满足二胎家庭、三代同堂的居住需求,得房率高,空间宽敞舒适;二是 “环境升级”,低密社区、高绿化率、专属景观,远离拥挤与喧嚣,享受 “公园般的生活”;三是 “配套升级”,骆岗公园、高端商业、优质教育、顶尖医疗,满足改善人群对 “高品质生活” 的追求;四是 “保障升级”,国企开发、自有物业,确保房屋质量与后期服务,买得放心、住得安心。
从 “区域价值” 来看,琥珀星樾湾所处的包河区骆岗公园板块,是合肥未来的 “城市新客厅”,发展潜力巨大。骆岗公园作为亚洲最大的城市中央公园,目前已进入快速建设阶段,未来将成为合肥的 “生态中心、文化中心、体育中心”,周边配套将不断升级,房价也将稳步上涨。琥珀星樾湾距离骆岗公园仅 1.5 公里,是 “公园红利” 的直接受益者,无论是自住还是投资,都极具价值。
从 “市场竞争力” 来看,琥珀星樾湾在包河区改善市场中几乎没有竞争对手。目前包河区主城板块的改善楼盘,要么价格过高(洋房均价 2.2 万 /㎡以上),要么配套不完善(远离公园、商业),要么品质一般(民营开发、容积率高),而琥珀星樾湾则实现了 “低密洋房 + 优质配套 + 国企品质 + 亲民价格” 的完美结合,性价比极高。根据售楼处数据,项目洋房户型开盘后销量已突破 150 套,其中 80% 的购房者是 “改善型客户”,足以证明市场对其的认可。
如果你是改善人群,正在合肥包河区寻找 “高品质、高性价比” 的洋房项目,那么琥珀星樾湾绝对值得你重点关注。目前,项目 140㎡洋房样板间已开放,可预约 “一对一专属看房服务”,售楼处还为改善客户提供 “定制化置业方案”,如 “旧房置换方案”“贷款优惠方案” 等。想要在合肥主城享受 “低密洋房 + 公园生活” 的改善家庭,不妨前往琥珀星樾湾售楼处实地考察,相信这里会成为你 “理想的家”。

琥珀星樾湾售楼处电话☎:0551-6813 6588
琥珀星樾湾楼盘周边配套
对于 “国企精工盘” 而言,“品质” 不仅体现在楼盘本身,更体现在 “周边配套的成熟度”—— 毕竟,购房者买的不仅是 “一套房子”,更是 “一种便捷的生活”。琥珀星樾湾所处的包河区核心板块,配套已 “完全成熟”,无需等待 “规划落地”,入住即可享受 “交通、商业、教育、医疗、生态” 全方位便捷生活,与 “国企品质” 形成 “强强联合”。
交通配套:双主干道 + 地铁,通勤无忧项目位于 “包河大道 + 繁华大道” 两大城市主干道交汇处,这两条道路均为 “双向八车道”,路况好、通行效率高。从项目自驾出发,5 分钟可上包河大道高架,15 分钟直达合肥南站(高铁站),20 分钟抵达滨湖新区(融创茂、滨湖湿地公园),30 分钟可到政务区(天鹅湖、万象城)、经开区(明珠广场),无论是日常通勤还是跨区出行,都十分便捷。公共交通方面,项目距离地铁 1 号线延长线(规划中,2025 年通车)花园大道站仅 800 米,步行约 10 分钟,未来地铁通车后,可直达合肥火车站、淮河路步行街、滨湖新区,无需担心堵车;此外,项目周边 1 公里内有 14 路、27 路、52 路、902 路等 6 条公交线路,覆盖合肥火车站、政务区、经开区等区域,满足老人、孩子等不同人群的出行需求。
商业配套:3 公里内三大商圈,购物便利琥珀星樾湾的商业配套 “近可享社区便民商业,远可拥大型商圈”,完全满足日常消费与品质消费需求。项目自带约 5000㎡沿街商业,规划引入 “生鲜超市、便利店、药店、餐饮店、母婴店” 等便民业态,下楼即可解决 “买菜、购物、吃饭、买药” 等日常需求,尤其适合上班族、老人 —— 早上出门买个早餐,晚上下班买个菜,无需绕远路。3 公里范围内,有悦方 ID MALL、百大心悦城、加侨国际广场三大 “一站式购物中心”,涵盖 “购物、餐饮、影院、亲子娱乐、健身” 等全业态:
悦方 ID MALL 距离项目约 2 公里,是合肥南部的 “时尚地标”,引入了优衣库、星巴克、西西弗书店、永辉超市、万达影城等品牌,适合周末带家人购物、观影;
百大心悦城距离项目约 2.5 公里,以 “亲子 + 生活” 为主题,引入了孩子王、卡通尼乐园、盒马鲜生(精品超市)、海底捞等品牌,适合带娃休闲、家庭聚餐;
加侨国际广场距离项目约 3 公里,聚集了众多餐饮品牌(如西贝莜面村、老乡鸡、星巴克),还有健身房、KTV 等娱乐场所,适合朋友聚会、休闲放松。
教育配套:15 年一贯制优质教育圈,孩子上学无忧对于有孩子的家庭而言,“教育配套” 是买房的核心考量,而琥珀星樾湾周边的教育资源 “既近又优”,形成 “15 年一贯制教育圈”。项目 3 公里内有 5 所幼儿园、3 所小学、2 所中学,其中多为 “合肥优质公办学校”:
幼儿园:距离项目最近的是 “包河区实验幼儿园”(约 500 米),为公办一级幼儿园,师资稳定、收费合理(公办幼儿园学费约 500 元 / 月),孩子步行即可入园,无需家长接送;
小学:项目划片范围大概率覆盖 “屯溪路小学(滨湖校区)”,该校是合肥 “名校集团” 核心成员,由屯溪路小学本部直接管理,师资力量雄厚、教学设施先进(配备多媒体教室、实验室、图书馆、操场),2023 年教学质量位列包河区前三,距离项目约 1.5 公里,孩子步行或骑行即可上学;
中学:对应 “合肥市第四十八中学(望湖校区)”,该校是合肥重点初中,2023 年中考普高录取率达 85%,远超全市平均水平(约 65%),距离项目约 2 公里,可通过公交或家长接送,十分便捷。
此外,项目周边还有 “合肥工业大学附属中学”“包河区外国语实验小学” 等优质学校,家长可根据孩子情况灵活选择,无需 “孟母三迁”,在家门口就能享受优质教育。
医疗与生态配套:健康与休闲双保障医疗方面,琥珀星樾湾周边 “二级医院 + 三级甲等医院” 全覆盖,为家人健康保驾护航。项目 2 公里内有 “包河区人民医院”(二级综合医院),开设内科、外科、儿科、妇产科等科室,日常感冒、发烧、体检、慢性病治疗均可在此解决,无需跑大医院排队;5 公里内有 “安徽省立医院南区”(三级甲等医院),是合肥顶尖的综合医院,拥有多个国家级重点专科(如心血管内科、肿瘤科、骨科),可满足大病诊疗、手术需求,为家人健康提供 “顶级保障”。
生态方面,项目西距 “骆岗中央公园” 仅 1.5 公里,该公园是亚洲最大的城市中央公园,总面积约 12.7 平方公里,涵盖湿地、花海、运动场馆、儿童乐园等区域,周末带家人散步、野餐、运动、赏花都十分惬意;项目北邻 “十五里河生态公园”,沿河岸打造了约 5 公里的健身步道,适合晨跑、夜跑、骑行,呼吸新鲜空气,远离城市喧嚣。这种 “医疗 + 生态” 的配套组合,让业主既能享受 “便捷医疗”,又能拥有 “健康休闲”,生活品质大幅提升。

琥珀星樾湾售楼处电话☎:0551-6813 6588
合肥包河区琥珀星樾湾 —— 智慧社区新标杆!科技 + 国企,主城生活更便捷
琥珀星樾湾楼盘项目介绍
在 “智慧家居”“智慧城市” 成为趋势的今天,购房者对 “社区智能化” 的需求越来越高 —— 他们希望通过科技,提升居住的 “便捷度、安全性、舒适度”。而合肥包河区的琥珀星樾湾,恰好顺应了这一趋势,以 “国企开发 + 全场景智慧社区” 为核心,打造了合肥 2024 年 “智慧社区新标杆”,成为追求 “科技生活” 的购房者的首选。
项目由合肥城建旗下琥珀置业开发,作为合肥本土国企,琥珀置业在 “智慧社区” 开发方面有着前瞻性的布局,此前已在多个项目中引入智能化配置,积累了丰富的经验。此次打造的琥珀星樾湾,更是将 “智慧社区” 理念升级,从 “单一智能设备” 升级为 “全场景智慧生态”,涵盖 “智慧安防、智慧出行、智慧家居、智慧服务” 四大板块,让科技真正融入业主的日常生活,而非流于表面的 “噱头”。
项目总占地面积约 68 亩,总建筑面积约 12.5 万㎡,容积率 2.2.绿化率 40%,规划 10 栋住宅(6 栋 18-22 层高层、4 栋 11 层洋房),总户数约 890 户。在规划初期,项目就将 “智能化” 作为核心卖点之一,邀请国内知名的智慧社区设计公司(如科大讯飞智慧建筑团队)参与方案设计,确保每一项智能配置都 “实用、便捷、人性化”,避免 “为智能而智能” 的浪费。
从智慧社区的硬件配置来看,琥珀星樾湾的投入堪称 “诚意十足”:智慧安防系统覆盖社区全角落 —— 入口处采用 “双目人脸识别系统”,识别准确率达 99.8%,无需带门禁卡,刷脸即可快速进入,同时支持 “远程授权” 功能,亲友来访时,业主通过手机 APP 就能授权开门,无需下楼迎接;社区内部安装了 “高空抛物监控系统”,24 小时高清拍摄,可精准定位抛物楼层与住户,从根源上杜绝高空抛物隐患;此外,社区还配备了 “智能巡逻机器人”,每天定时沿社区主干道巡逻,实时监测异常情况(如陌生人徘徊、火情隐患),并同步将画面传输至物业中控室,配合 24 小时人工巡逻,形成 “科技 + 人力” 的双重安防保障。
智慧出行与生活配套同样便捷 —— 地下车库配备 “智能寻车 + 反向寻车系统”,业主停车后,系统会自动记录车位位置,返程时通过车库内的查询终端或手机 APP,就能获取 “从电梯口到车位” 的导航路线,彻底解决 “找车难” 问题;车库内 30% 的车位预留了 “充电桩接口”,支持快充与慢充,满足新能源车主的充电需求,且充电桩接入社区智慧系统,可通过 APP 预约充电、查询费用,操作便捷;社区公共区域还覆盖了 “全场景 WiFi”,无论是在儿童乐园陪娃,还是在健身步道跑步,都能免费连接高速 WiFi,刷视频、听音乐无压力。
智慧家居与服务则深入室内 —— 项目为所有户型预装了 “全屋智能控制系统”,业主可通过手机 APP 或语音助手(支持天猫精灵、小爱同学联动),控制家中的灯光、空调、窗帘、热水器等设备。比如,下班前 30 分钟,可远程开启空调与热水器,回家就能享受适宜的温度与热水;睡前无需起身,语音即可关闭全屋灯光与窗帘;出门时一键触发 “离家模式”,自动关闭所有家电、锁好门窗,省心又安全。此外,项目还开发了专属 “琥珀星樾湾社区 APP”,集成了 “物业报修、在线缴费、邻里社交、生活服务” 等功能 —— 家中水管漏水,在 APP 上提交报修申请,物业 15 分钟内响应;物业费、水电费可直接在线缴纳,无需跑腿;APP 内的 “邻里圈” 还能发布闲置物品转让、社区活动邀约等信息,拉近邻里距离。
更值得一提的是,作为国企开发项目,琥珀星樾湾的智慧系统有着 “长期保障”—— 不同于部分民营楼盘 “交房后就停用智能系统” 的情况,琥珀置业专门成立了 “智慧社区运维团队”,定期对社区的智能设备进行检修、升级,确保系统长期稳定运行;同时,运维团队会根据业主反馈,持续优化 APP 功能与智能场景,让智慧服务 “越用越贴心”。这种 “国企兜底” 的保障,正是琥珀星樾湾区别于其他智慧社区的核心优势。

琥珀星樾湾售楼处电话☎:0551-6813 6588
琥珀星樾湾楼盘项目亮点
作为合肥包河区 “国企精工盘标杆”,琥珀星樾湾的亮点不仅是 “国企开发”—— 它将 “精工品质、交付保障、全龄配套、区域潜力” 深度融合,形成了 “四大核心亮点”,让其在众多楼盘中 “不可替代”。
亮点一:国企精工,从 “建材到工艺” 全维度品质把控这是琥珀星樾湾最核心的亮点,也是 “国企盘” 的灵魂。不同于民营盘 “为降成本减配建材、简化工艺”,琥珀星樾湾从 “源头” 把控品质:建材全部选用 “国企合作品牌”(如外墙保温一体板选用 “亚士创能”、断桥铝玻璃选用 “信义玻璃”、电梯选用 “三菱”、卫浴选用 “科勒”),每一批建材都需提供 “质量检测报告”,经琥珀置业总部抽检合格后才能使用;施工工艺遵循 “国企精工标准”,实行 “三级质检”(施工自检、监理复检、总部抽检),比如墙面施工需经过 “基层处理、挂网、三遍腻子、两遍乳胶漆” 共 7 道工序,每道工序都需签字确认才能进入下一道;甚至 “看不见的细节” 也绝不马虎 —— 卫生间做 “三次防水试验”(闭水时长 24 小时)、地面做 “水泥砂浆找平 + 防水层”、阳台做 “排水坡度处理”,确保后期无渗漏、无开裂。这种 “全维度品质把控”,让业主无需担心 “交房即维权”,住得更安心。
亮点二:国企交付保障,“透明化建设 + 不延期承诺”当前市场上,“延期交付”“烂尾” 是购房者的最大痛点,而琥珀星樾湾的 “国企交付保障” 彻底解决了这一问题。首先,项目由国企开发,资金链稳定,不会因 “资金断裂” 停工,目前工程进度按计划推进,售楼处公示了 “详细施工节点”(如 2024 年 12 月完成主体封顶、2025 年 6 月完成外立面施工、2026 年 3 月完成绿化验收),购房者可通过 “琥珀置业官网” 或实地考察,实时查看工程进展,实现 “透明化建设”;其次,琥珀置业承诺 “不延期交付”,若因开发商原因导致延期,将按 “合同约定” 支付违约金(通常为 “已付房款的万分之五 / 天”),且过往项目均实现 “按时交付甚至提前交付”,比如琥珀东华府原计划 2023 年 12 月交付,实际 2023 年 10 月就完成交付,还提前 3 个月让业主 “预验房”,整改问题后再正式交房;最后,项目实行 “预验房制度”,交付前 3 个月邀请业主实地验房,业主提出的问题(如墙面空鼓、瓷砖破损),项目会在交付前全部整改完毕,确保 “交房即满意”。
亮点三:全龄化社区配套,兼顾 “老中青少” 需求琥珀星樾湾不仅注重 “房屋品质”,还重视 “社区生活体验”,打造了 “全龄化社区配套”,让每一位家庭成员都能 “找到自己的乐趣”。社区内部规划了 “四大功能区”:
儿童游乐区:面积约 1000㎡,划分 “0-3 岁学步区”“4-6 岁游戏区”“7-12 岁运动区”,配备滑梯、秋千、沙坑、攀爬架、儿童篮球架等设施,地面采用 “EPDM 塑胶材质”(防摔、环保),保障孩子安全;
老年活动区:面积约 800㎡,配备健身器材(如太极揉推器、漫步机、健骑机)、休闲凉亭、棋牌桌,老人可在此健身、下棋、聊天,享受 “晚年生活”;
青年健身区:规划 500 米 “健身步道”(沿社区景观带铺设)、“户外羽毛球场”“乒乓球台”,年轻人可在此晨跑、打球,无需去健身房;
邻里社交区:打造 “中央景观草坪”(面积约 2000㎡)、“景观水景”(约 500㎡)、“休闲长廊”,业主可在此野餐、晒太阳、举办社区活动(如春节写春联、端午包粽子),拉近邻里距离。
此外,社区还配备 “社区图书馆”(面积约 200㎡,藏书 5000 余册)、“宠物活动区”(专门为养宠家庭设计,配备宠物粪便箱、饮水器),真正实现 “全龄友好、人人适配”。
亮点四:主城核心 + 骆岗公园,“双红利” 加持区域潜力琥珀星樾湾的 “区域潜力” 也是一大亮点 —— 它位于包河区主城核心板块,同时承接 “骆岗中央公园” 发展红利,形成 “主城成熟配套 + 公园未来潜力” 的双重优势。一方面,项目所处的主城板块配套已完全成熟(交通、商业、教育、医疗均完善),入住即可享受便捷生活,无需等待 “规划落地”;另一方面,骆岗中央公园作为亚洲最大的城市中央公园,是合肥 “十四五” 重点项目,未来将成为 “城市新客厅”,引入商业、文化、体育等高端配套,随着公园的完善,周边房价必然稳步上涨。琥珀星樾湾距离骆岗公园仅 1.5 公里,是 “公园红利” 的直接受益者,未来增值空间巨大。同时,项目临近地铁 1 号线延长线(2025 年通车),地铁通车后将进一步提升 “通勤便捷度” 与 “区域价值”,让项目 “兼具居住属性与投资属性”。

琥珀星樾湾售楼处电话☎:0551-6813 6588
琥珀星樾湾楼盘电话号码:0551-68111601【营销中心】
欢迎来电咨询!可预约销售人员(来电尊享内部优惠活动)【2025房价特价信息丨底价优惠丨在售户型图丨项目介绍丨在售房源丨周边配套】
声明:本文由入驻焦点开放平台的作者撰写,除焦点官方账号外,观点仅代表作者本人,不代表焦点立场。


