伟星城/价格/户型-合肥看房网-首页@-伟星城最新资讯
扫描到手机,新闻随时看
扫一扫,用手机看文章
更加方便分享给朋友
伟星城楼盘电话号码:0551-68111601【营销中心】
欢迎来电咨询!可预约销售人员(来电尊享内部优惠活动)【2024房价特价信息丨底价优惠丨在售户型图丨项目介绍丨在售房源丨周边配套】
伟星地产在合肥市场中的耀眼表现,伟星城项目位于合肥东部新城核心区,地理位置优越,周边自然资源丰富。项目占地272.33亩,规划了37栋住宅楼,共计2596套房源,配套14万平方米城市级商业综合体,满足居民的日常生活需求。
伟星城售楼处电话☎:0551-6813 6588
伟星城周边交通便利,地铁2号线延长线寓酒路站正在建设中,肥东高铁站和合肥绕城高速也在附近。此外,项目周边还有和睦湖湿地公园、肥东体育公园和约5万方的城市公园,为居民提供了宜居的自然环境。伟星城自带约18万方的城市级商业综合体和约4000方的社区配套,方便居民购物和日常生活。教育资源方面,伟星城自带18班幼儿园,肥东县实验学校、安师大附属肥东实验学校和肥东一中也在附近。医疗配套方面,伟星城靠近安徽医科大学附属医院东区,居民可以享受到高品质的医疗服务。
伟星城售楼处电话☎:0551-6813 6588
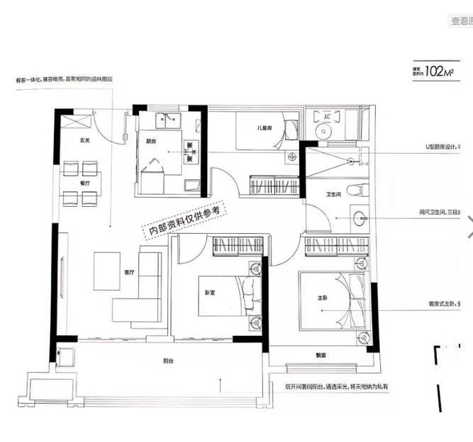
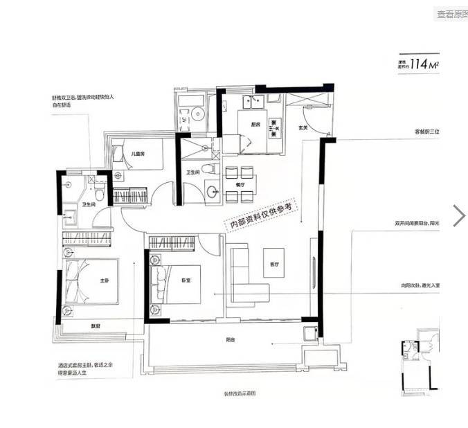
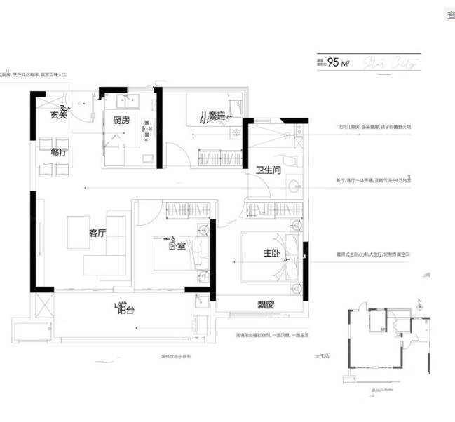
伟星城的房源面积范围广泛,从95平方米到142平方米不等,可满足刚需、改善不同客群置业居住需求。户型布局合理,方正,多开间朝南,独立玄关,南北大尺度通厅,空间感强,且南北通透,采光与通风效果良好,居住舒适,满足多元生活需求。
伟星城售楼处电话☎:0551-6813 6588
伟星城售楼处电话☎:0551-6813 6588
伟星城售楼处电话☎:0551-6813 6588
伟星城楼盘具体一房一价,详询营销中心。
伟星城售楼处电话☎:0551-6813 6588
伟星城的高品质不仅体现在硬件设施上,更在于其对细节的精雕细琢。从社区入口的精心设计到每栋楼的布局规划,从园林景观的打造到内部设施的完善,每一个环节都体现了伟星地产对品质的追求。此外,项目周边的教育资源也非常丰富,东城实验小学、肥东一中等优质学校为孩子们提供了良好的学习环境。无论是家庭居住还是投资置业,伟星城都是一个不可多得的优质选择。
伟星城售楼处电话☎:0551-6813 6588
伟星城作为合肥房地产市场的一大亮点,以其地理位置优越、交通便捷、环境优美、社区空间设计独具特色和周边教育资源丰富等优势,为购房者提供了一个高品质的生活选择。无论是追求舒适居住体验还是优质教育资源,伟星城都能满足您的需求,是一个理想的居住和投资地点。如果您正在寻找一个舒适宜居的新家,不妨考虑伟星城,让您的生活更加美好。
伟星城售楼处电话☎:0551-6813 6588
伟星城楼盘电话号码:0551-68111601【营销中心】
欢迎来电咨询!可预约销售人员(来电尊享内部优惠活动)【2024房价特价信息丨底价优惠丨在售户型图丨项目介绍丨在售房源丨周边配套】
声明:本文由入驻焦点开放平台的作者撰写,除焦点官方账号外,观点仅代表作者本人,不代表焦点立场。


