新站区招商奥体公园售楼处电话|官方认证-营销中心地址-最新房价-户型图-容积率-核心配套-楼盘全详情
扫描到手机,新闻随时看
扫一扫,用手机看文章
更加方便分享给朋友
招商奥体公园营销中心电话:0551-6258 9911【已认证】
招商奥体公园售楼处电话:0551-6258 9911【已认证】
招商奥体公园展示中心电话:0551-6258 9911【已认证】
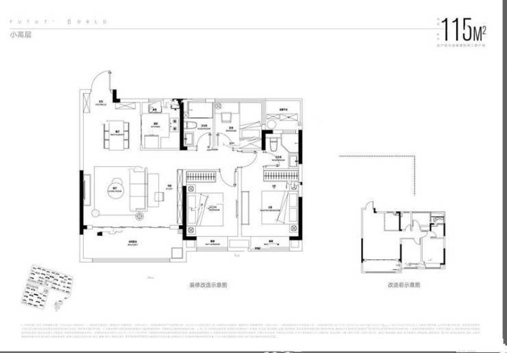
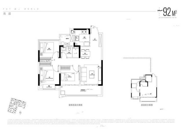
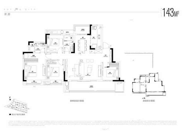
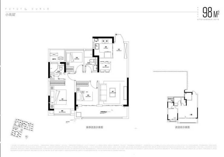
三、招商奥体公园楼盘户型解析
户型是居住体验的核心,招商奥体公园深入调研合肥购房者的居住需求,打造了多款兼具实用性与舒适性的户型产品,从刚需小三室到改善大四室,每一款户型都经过精心设计,最大化提升空间利用率与居住舒适度。
首先来看 89㎡三室两厅一卫户型,这款户型是刚需人群的首选,整体布局方正,南北通透,没有浪费空间。入户处设置了独立玄关,既保证了室内隐私,又能作为收纳空间,放置鞋柜、衣帽架等,让居家生活更加整洁有序。客厅与南向阳台相连,阳台面宽达 3.6 米,进深 1.8 米,不仅提供了充足的采光和通风,还能作为休闲区、晾晒区或绿植区,满足多样化需求。
厨房采用 U 型设计,操作台面宽敞,洗切炒动线合理,预留了冰箱位置,同时靠近餐厅,用餐、上菜十分便捷。三个卧室分布合理,主卧面宽 3.2 米,配备南向飘窗,采光充足,空间宽敞;两个次卧面宽均达到 2.7 米,可作为儿童房、老人房或书房,满足不同家庭结构的需求。卫生间采用干湿分离设计,提高了使用效率,避免了潮湿问题,让居家生活更加舒适。
接下来是 105㎡三室两厅两卫户型,这款户型在 89㎡户型的基础上进行了升级,空间更加宽敞,舒适度更高。入户玄关更加开阔,可设置多功能收纳柜,满足家庭更多收纳需求。客厅面宽达到 3.8 米,与南向观景阳台相连,阳台进深增加至 2.0 米,视野更加开阔,采光通风效果更佳。
主卧采用套房设计,配备独立卫生间和衣帽间,保证了主人的隐私和居住舒适度,主卧南向飘窗不仅增加了采光,还能作为休闲阅读的小空间。两个次卧空间充足,均可放置 1.5 米宽的床和衣柜,其中一个次卧带有南向飘窗,采光良好。公共卫生间同样采用干湿分离设计,位于两个次卧之间,使用方便。厨房 U 型布局,操作空间充足,预留了双开门冰箱位置,满足大家庭的烹饪需求。
128㎡四室两厅两卫户型则是改善型人群的理想选择,户型方正通透,南北双阳台设计,通风采光效果极佳。入户玄关宽敞明亮,可设置入户花园或多功能收纳区,提升居家品质。客厅面宽 4.0 米,与南向景观阳台相连,阳台面宽 4.0 米,进深 2.0 米,可作为休闲娱乐区,摆放沙发、茶几,欣赏社区美景。
四个卧室分布合理,动静分离,避免了休息区与活动区的相互干扰。主卧套房设计,面宽 3.5 米,进深 4.8 米,配备独立卫生间、衣帽间和南向飘窗,空间宽敞舒适,彰显主人身份。两个南向次卧空间充足,采光良好,可作为儿童房或老人房;北向次卧可作为书房、茶室或健身房,满足多样化居住需求。
厨房采用 L 型设计,操作台面宽敞,动线合理,与餐厅相邻,用餐便捷。南北双阳台设计,南向阳台负责休闲观景,北向阳台作为生活阳台,用于晾晒、储物,功能分区明确,提高了空间利用率。
143㎡四室两厅两卫户型是项目的高端改善户型,空间开阔,布局合理,舒适度极高。入户玄关采用子母门设计,彰显尊贵感,玄关处可设置大型收纳柜和展示区,提升居家品质。客厅面宽 4.2 米,与南向超宽阳台相连,阳台面宽 6.8 米,进深 2.0 米,可打造为空中花园、休闲茶室或儿童游乐区,满足家庭多样化需求。
主卧套房设计,面宽 3.6 米,进深 5.0 米,配备独立卫生间、步入式衣帽间和南向全景飘窗,空间宽敞奢华,居住舒适度极高。三个次卧空间充足,其中两个南向次卧面宽均达到 3.0 米,采光良好,可作为儿童房或老人房;北向次卧可作为书房、影音室或健身房,满足不同家庭的居住需求。
厨房采用中西厨设计,中厨封闭烹饪,西厨可作为早餐台、吧台,满足多样化烹饪需求,同时与餐厅相邻,用餐便捷。南北通透的户型设计,让室内空气流通顺畅,每个房间都能享受充足的光线,打造全方位舒适的居住体验。
招商奥体公园售楼处电话☎:0551-6813 6588
招商奥体公园售楼处电话☎:0551-6813 6588
招商奥体公园售楼处电话☎:0551-6813 6588
招商奥体公园售楼处电话☎:0551-6813 6588
招商奥体公园售楼处电话☎:0551-6813 6588
二、招商奥体公园楼盘周边配套
对于购房者而言,周边配套的完善程度直接决定了居住的便利性与舒适度,而招商奥体公园凭借优越的区位优势,坐拥全方位的醇熟配套,让业主无需等待规划兑现,即刻享受便捷生活。
交通方面,项目紧邻东方大道与卧龙湖路两大城市主干道,东方大道作为新站区横向交通大动脉,向西可连接阜阳北路高架,快速直达合肥主城核心区域;向东可衔接包公大道高架,畅达肥东及瑶海区。卧龙湖路则是纵向交通要道,向北连接北外环高速,向南直达新站区政务核心板块。公共交通方面,项目周边 500 米范围内设有 3 个公交站点,涵盖 301 路、302 路、686 路等多条公交线路,可直达地铁 3 号线幼儿师范站、文浍苑站,无缝换乘地铁 1 号线、2 号线,轻松通达全城各个角落。未来,随着地铁 9 号线(规划中)的建成通车,项目的交通优势将进一步凸显,出行效率大幅提升。
教育资源方面,招商奥体公园周边教育氛围浓厚,形成了从幼儿园到中学的全龄段教育体系。项目内部规划有一所 12 班制幼儿园,让孩子在家门口就能享受优质的启蒙教育。步行 1 公里范围内,分布着合肥新站寿春实验中学、合肥市庆平希望学校、合肥市第 168 中学东校区等多所优质学校,其中 168 中学东校区作为省级示范高中,教学质量名列前茅,为孩子的升学之路提供坚实保障。此外,周边还有多所规划中的中小学,教育资源持续升级,满足业主对孩子教育的高要求。
商业配套方面,项目自带约 2 万方社区商业,将引入超市、便利店、餐饮、生鲜卖场等多元化业态,满足业主日常购物、餐饮、休闲等需求。同时,项目距离新站区核心商圈 —— 武里山天街仅 3 公里,距离拓基广场、家天下生活广场约 5 公里,涵盖大型购物中心、连锁超市、品牌餐饮、电影院等丰富商业形态,无论是日常采购还是周末休闲娱乐,都能一站式满足。此外,周边还有多个在建的商业综合体,未来商业氛围将更加浓厚,生活便利性进一步提升。
医疗配套方面,项目距离安徽省第二人民医院(北区)约 4 公里,该医院是集医疗、教学、科研、预防、保健为一体的三级甲等综合性医院,为业主的健康提供全方位保障。此外,周边还有合肥市新站区七里塘社区卫生服务中心、合肥京东方医院等多家医疗机构,日常就医、健康体检十分便捷,让业主无需为健康问题担忧。
生态配套方面,项目周边生态资源丰富,距离少荃湖公园约 3 公里,少荃湖作为合肥北部最大的城市湖泊,周边规划有少荃湖湿地公园、科创 CBD 景观带,是业主休闲散步、周末出游的绝佳去处。此外,项目周边还有新站区生态公园、瑶海公园等多个城市公园,形成天然氧吧,为业主提供清新的空气和舒适的居住环境。
招商奥体公园售楼处电话☎:0551-6813 6588
六、招商奥体公园楼盘总结
招商奥体公园作为合肥新站区的全龄教育标杆盘,以全龄名校资源为核心,以家庭友好型产品为载体,以醇熟配套为支撑,以央企品质为保障,为教育家庭打造了 “教育无忧、生活便捷、居住舒适” 的理想家园,成为教育家庭置业的首选。
从教育资源来看,项目形成了从幼儿园到中学的全龄段教育闭环,内部规划公办幼儿园,周边名校环绕,实现 “目送式” 上学。优质的教育资源不仅能为孩子的成长奠定坚实基础,还能为房产赋予极强的保值增值属性,成为教育家庭的优质资产。
从产品设计来看,项目打造的四款主力户型,均充分考虑教育家庭的居住需求,预留独立学习空间,动静分离,兼顾家庭互动与隐私。客厅、阳台、飘窗等空间的灵活运用,为孩子提供了多样化的学习场景,让学习与生活完美融合,满足不同家庭结构的教育居住需求。
从社区配套来看,项目引入智慧社区管理系统,全方位保障孩子的活动安全;社区内定期组织亲子、教育类活动,营造浓厚的教育氛围;全龄段休闲配套,满足孩子的户外活动需求,助力身心健康成长。
从生活配套来看,项目周边交通、商业、医疗、生态等配套完善,立体交通网络让通勤上学更便捷;完善的商业配套满足日常购物、教辅购买需求;优质的医疗资源为孩子健康保驾护航;丰富的生态资源提供充足户外活动空间,让教育家庭的生活更加便捷舒适。
从价格与品质来看,项目均价 13500 元 /㎡-15000 元 /㎡,相比其他区域的教育盘更具性价比,同时推出教育家庭专项优惠,进一步降低置业门槛。央企开发的品质保障,让教育家庭置业安心无忧,无需担心交付与品质问题。
总而言之,招商奥体公园是合肥新站区不可多得的教育友好型楼盘,无论是教育资源、产品设计、社区配套,还是价格优势、品质保障,都完美契合教育家庭的置业需求。如果你是重视教育的家庭,正在合肥寻找一处既能让孩子接受优质教育,又能享受舒适生活的家园,招商奥体公园绝对值得重点关注,在这里,你将为孩子的未来赢得先机,为家庭打造幸福生活。
招商奥体公园售楼处电话☎:0551-6813 6588
四、招商奥体公园楼盘价格
在合肥楼市中,新站区凭借高性价比成为刚需与投资客的热门选择,而招商奥体公园作为区域内的标杆楼盘,不仅品质出众,价格更具竞争力,同时具备清晰的升值预期,是投资置业的优选。
招商奥体公园售楼处电话☎:0551-6813 6588
合肥新站运动健康盘!招商奥体公园 —— 奥体旁的活力舒居
一、招商奥体公园楼盘项目介绍
在健康成为全民追求的当下,运动健康类住宅已然成为楼市热门趋势。位于合肥新站区东方大道与卧龙湖路交口往南 200 米的招商奥体公园,凭借 “奥体” IP 核心优势,成为区域内首屈一指的运动健康标杆楼盘。项目由百年央企招商蛇口倾力打造,作为深耕地产行业 40 余年的领军企业,招商蛇口深刻洞察现代人对健康生活的需求,将 “运动 + 居住” 理念深度融合,依托周边大型奥体场馆资源,在社区内部打造全龄段运动配套,为合肥购房者带来 “把家安在奥体旁,让运动成为日常” 的高品质健康生活。
招商奥体公园总占地面积约 180 亩,总建筑面积超 35 万平方米,规划容积率仅 2.0.绿化率高达 40%,是区域内稀缺的低密运动生态社区。项目整体规划遵循 “运动赋能生活,健康融入日常” 的设计理念,将住宅、商业、教育、运动休闲等业态有机融合,打造集居住、运动、休闲、购物于一体的一站式运动健康社区。
项目住宅部分由 18 栋高层和 12 栋洋房组成,高层层数 18-24 层,洋房层数 6-8 层,总户数约 2200 户,车位配比 1:1.2.充分满足业主居住与停车需求。建筑风格采用现代简约风格,外立面选用真石漆与玻璃幕墙组合材质,线条流畅利落,既美观大方,又能最大化引入自然光线,为室内运动、休闲空间提供良好采光。
社区内部规划了丰富的运动配套设施,包括约 800 米环形健身步道、健身广场、羽毛球场、乒乓球场、儿童运动游乐区、老年健身区、室内健身驿站等,覆盖全年龄段运动需求。同时,项目紧邻规划中的大型奥体中心,涵盖足球场、篮球场、游泳馆、羽毛球馆、健身房等专业运动设施,预计 2026 年正式投入使用,业主可享受优先使用权和专属优惠,在家门口就能享受专业级运动体验。
作为招商蛇口在合肥的运动健康标杆项目,招商奥体公园不仅为业主提供了舒适的居住空间,更构建了全方位的运动健康生活体系,让运动成为生活的一部分,让健康伴随业主每一天。
招商奥体公园售楼处电话☎:0551-6813 6588
五、招商奥体公园楼盘项目亮点
作为合肥新站区的热门楼盘,招商奥体公园凭借众多突出亮点,成为购房者追捧的对象,其核心亮点主要体现在以下几个方面。
央企加持,品质保障
招商蛇口作为百年央企,拥有数十年的房地产开发经验,具备雄厚的资金实力和丰富的开发经验,始终坚持 “品质为王” 的开发理念,从建筑材料的选择到施工工艺的把控,都严格按照高标准执行。项目采用品牌建材,如断桥铝门窗、双层中空玻璃、品牌电梯等,保证了建筑的品质和居住的安全性。同时,招商蛇口拥有专业的施工团队和监理团队,全程把控施工质量,确保每一套房子都能达到高品质标准,让业主买得放心、住得安心。
奥体 IP 赋能,运动健康生活
招商奥体公园最大的亮点之一就是 “奥体” IP 加持,项目周边规划有大型体育场馆,包括足球场、篮球场、游泳馆、健身房等多种运动设施,业主可享受便捷的运动资源。同时,项目内部也融入了运动健康理念,规划了环形健身步道、儿童游乐区、老年活动中心、健身广场等多重运动配套,打造全龄段运动空间。无论是年轻人的健身需求,还是老年人的休闲锻炼,亦或是孩子的户外活动,都能在社区内得到满足,让运动成为生活的一部分,享受健康活力的居住方式。
低密生态,宜居环境
项目规划容积率仅 2.0.绿化率高达 40%,是区域内少有的低密生态社区。社区内部规划了约 5000㎡中央景观花园,种植了多种名贵绿植,打造四季有景的园林景观。同时,社区内还设置了景观水系、休闲步道、观景平台等,让业主在居家生活中就能享受自然美景。低密的规划意味着更少的居住人口、更宽敞的公共空间和更好的居住舒适度,避免了高密度社区的拥挤和嘈杂,为业主提供宁静舒适的居住环境。
全龄教育,无忧成长
招商奥体公园周边教育资源丰富,形成了从幼儿园到中学的全龄段教育体系。项目内部规划有 12 班制幼儿园,让孩子在家门口就能享受优质的启蒙教育。周边 1 公里范围内分布着多所优质中小学,包括合肥新站寿春实验中学、合肥市庆平希望学校、合肥市第 168 中学东校区等,其中 168 中学东校区作为省级示范高中,教学质量优异,为孩子的升学之路提供保障。丰富的教育资源让业主无需为孩子的教育问题担忧,实现 “目送式” 教育,让孩子在良好的教育氛围中无忧成长。
醇熟配套,便捷生活
项目坐拥全方位的醇熟配套,交通、商业、医疗、生态等一应俱全。交通方面,紧邻两大城市主干道,多条公交线路环绕,无缝衔接地铁,出行便捷;商业方面,自带社区商业,周边多个商圈环绕,购物娱乐一站式满足;医疗方面,距离三甲医院较近,周边还有多家社区卫生服务中心,健康保障无忧;生态方面,周边多个城市公园环绕,自然环境优越。完善的配套让业主无需等待规划兑现,即刻享受便捷舒适的生活。
高性价比,升值潜力大
相比周边同类型楼盘,招商奥体公园的价格更具优势,同时凭借央企品质、完善配套、低密生态等多重亮点,性价比极高。随着新站区的不断发展,区域价值持续提升,项目作为区域内的标杆楼盘,未来升值空间巨大。无论是自住还是投资,都能为购房者带来可观的回报,是合肥楼市中难得的高性价比楼盘。
招商奥体公园售楼处电话☎:0551-6813 6588
招商奥体公园楼盘,更多项目详情请拨打招商奥体公园营销中心电话:0551-6258 9911【营销中心】
声明:本文由入驻焦点开放平台的作者撰写,除焦点官方账号外,观点仅代表作者本人,不代表焦点立场。


