伟星长城御澜道新房周边配套-优惠
扫描到手机,新闻随时看
扫一扫,用手机看文章
更加方便分享给朋友
伟星长城御澜道楼盘电话号码:0551-68111601【营销中心】
欢迎来电咨询!可预约销售人员(来电尊享内部优惠活动)【2024房价特价信息丨底价优惠丨在售户型图丨项目介绍丨在售房源丨周边配套】
伟星长城御澜道项目均价1.7万元/m²,110-143m²,位于瑶海老城,地处瑶海区临泉东路以南、和县路以东。交通便利,距2号线漕冲站600米,距4号线站塘站900米,连接主城东西南北动脉。商业配套成熟,对面万达,周边商场林立,生活便利无忧。
伟星长城御澜道售楼处电话☎:0551-6813 6588
从交通的角度来看,御澜道项目距离2号线漕冲站直线距离约600米,距离4号线站塘站直线距离约900米,便利前往合肥市内各个角落。同时,临泉东路、北二环、长江中路串联合肥东西主城,铜陵路高架、东二环、郎溪路高架接连合肥南北动脉交通网,出行更加便捷。
在商业配套方面,对面就是瑶海万达,周边还有长江180、瑶海天街、东城广场、万象汇等商业中心,购物、餐饮、娱乐等生活需求都能得到满足。购房者可以尽情享受便利的生活方式,尽情体验城市繁华的氛围。
在教育资源方面,御澜道项目周边拥有众多优质教育资源。行知本部(初中)距离御澜道直线距离约600m,这所学校近6年来综合排名位列合肥初中前列,为孩子提供优质的学习环境。此外,周边还有合肥众望中学、和平小学教育集团郎溪路小学、合肥市行知小学等,教育资源浓厚,为孩子的成长提供了良好的保障。
伟星长城御澜道售楼处电话☎:0551-6813 6588
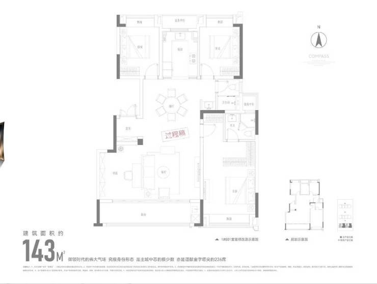
110-143m²主打刚改+改善的户型设计。以122m²三室两厅两卫为例,动静分区明显,厨房、客厅、餐厅在西边,卫生间和卧室集中在东边,每个卧室都配有飘窗。然而客厅区域的厨房侧向通风,南北通风、采光效果会稍显不足。143m²三室两厅两卫户型中,三个卧室+一个书房,书房可自行改造,主卧设有衣帽间,但三个卧室均朝北,采光稍昧。
伟星长城御澜道售楼处电话☎:0551-6813 6588
伟星长城御澜道售楼处电话☎:0551-6813 6588
伟星长城御澜道售楼处电话☎:0551-6813 6588
伟星长城御澜道楼盘具体一房一价,详询营销中心。
伟星长城御澜道售楼处电话☎:0551-6813 6588
项目拟建2栋24层高层和1栋11层小高层,共计226套。因为地块较小,仅三栋,楼栋纵向摆放,南北无遮挡。外立面携手国际一线设计单位·拓观设计,采用非对称顶檐设计、南北公建化立面、大面积玻璃幕窗,展现出现代简约的建筑风格。这种设计不仅提升了建筑的美感,也有利于室内采光和通风。
地下车库也是品质精心选材,从效果图能看出来入户大堂还是相当华丽的。在室内装修方面,伟星长城御澜道也将尽力打造高品质的生活空间。预计将采用欧洲进口家具、意大利大理石地板、德国工艺厨卫设备等,为业主提供舒适、豪华的居住体验。
伟星长城御澜道售楼处电话☎:0551-6813 6588
项目户型110-143m²,主打的是刚改+改善。例如122m²户型,三室两厅两卫,动静分区明显,厨房、客厅、餐厅在西边,卫生间和卧室在东边,每个卧室都配有飘窗。但客厅区域的厨房侧向通风,南北通风、采光效果稍差。143m²户型则为三室两厅两卫,含一个书房,主卧带衣帽间,但三个卧室朝北,采光稍欠。
伟星长城御澜道售楼处电话☎:0551-6813 6588
伟星长城御澜道楼盘电话号码:0551-68111601【营销中心】
欢迎来电咨询!可预约销售人员(来电尊享内部优惠活动)【2024房价特价信息丨底价优惠丨在售户型图丨项目介绍丨在售房源丨周边配套】
声明:本文由入驻焦点开放平台的作者撰写,除焦点官方账号外,观点仅代表作者本人,不代表焦点立场。


