招商奥体公园新房楼盘视频信息 - 安居客
扫描到手机,新闻随时看
扫一扫,用手机看文章
更加方便分享给朋友
合肥(招商奥体公园)☎☎:0551-6258 9911【官方认证】
2021年,招商选择在合肥新站区少荃湖板块布局,打造了合肥首个百万方奥体TOD体育综合体。项目位于东方大道与卧龙湖路交叉口,包括多个业态,如少荃体育中心、长空公园、花园里商街、奥体上城等,为居民提供了丰富多彩的生活方式。
招商奥体公园售楼处电话☎:0551-6813 6588
交通上,项目紧邻地铁4号线始发站综保区站地铁口,奥体巴士同步4号线,串联城市与社区,交通便捷,通达全城。三纵三横的干道交汇也为项目出行提供更多选择。商业配套丰富,项目自带约2.5万方活力荟商业街区,西侧还规划有14万方大型商业综合体,北侧5万方星级酒店已封顶,南侧有8万方的弘盛商业广场,共同构成项目强大商业支撑。
项目一期二期配套有合肥市168陶冲湖校区、伦先小学和自建幼儿园;三期四期五期配套有合肥168陶冲湖校区、竹溪小学少荃校区和自建幼儿园,为业主提供优质教育资源。周边医疗资源丰富,包括安徽医科大学第一附属医院北区和京东方医院,为业主的健康保驾护航。少荃湖湿地公园、二十埠河生态廊道等自然景观,也为业主提供休闲娱乐的好去处。
招商奥体公园售楼处电话☎:0551-6813 6588
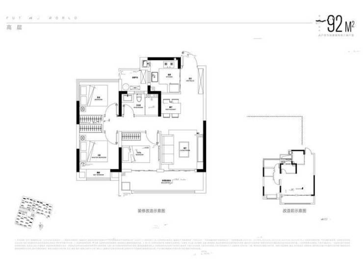
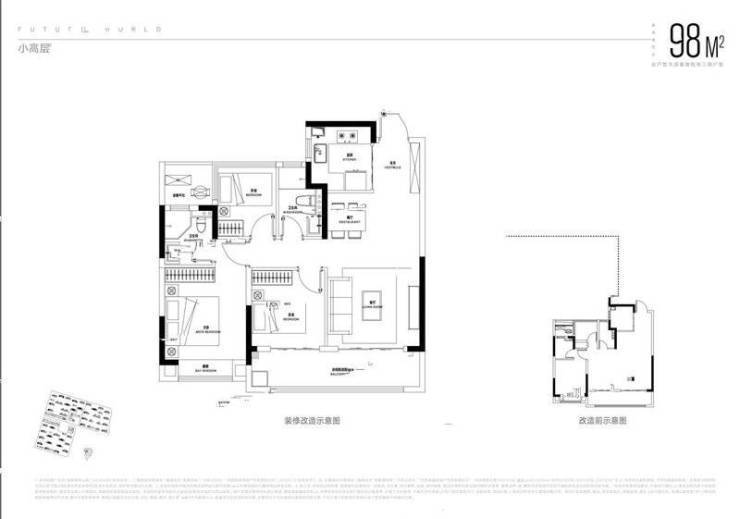
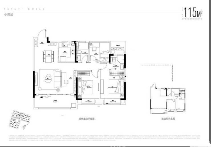
精心设计的户型是招商奥体公园的亮点之一。主打刚需小户型,主力户型面积介于89-119㎡之间,包括二居室和三居室,满足不同购房者的需求。其中,92㎡的三室两厅一卫户型设计独具匠心,南北通透的布局让采光和通风效果更佳。主卧带有一个飘窗,卫生间干湿分离,客厅和餐厅一体化设计,空间更显宽敞。客厅与阳台相连,阳台空间较大,可打造出一个开放性空间,让居住者尽情享受户外阳光和清新空气。
招商奥体公园售楼处电话☎:0551-6813 6588
招商奥体公园售楼处电话☎:0551-6813 6588
招商奥体公园售楼处电话☎:0551-6813 6588
招商奥体公园售楼处电话☎:0551-6813 6588
招商奥体公园售楼处电话☎:0551-6813 6588
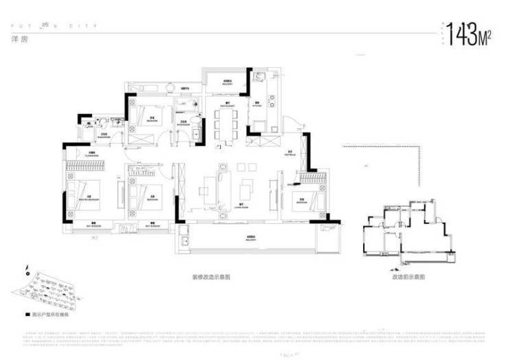
招商奥体公园一、二期已经交付,楼盘品质有目共睹,央企招商品牌值得信赖。近期在售的一、二期现房,三、四期准现房,户型面积在88-115m²。作为一线品牌央企,招商在合肥拥有多年深耕发展的经验,带来了多座高品质人居作品。居民可以放心选择招商奥体公园,享受舒适宜居的生活。
招商奥体公园售楼处电话☎:0551-6813 6588
招商奥体公园的建设为合肥市民带来了全新的生活体验。项目内有丰富的商业设施和休闲娱乐场所,居民可以尽情享受购物、运动、休闲的乐趣。同时,项目周边交通便利,配套齐全,生活便捷。招商奥体公园的建成将进一步提升合肥新站区的居住品质,为居民打造一个宜居宜业的社区。选择招商奥体公园,就是选择高品质的生活。
招商奥体公园售楼处电话☎:0551-6813 6588
招商奥体公园作为新站区的一颗璀璨明珠,将为当地居民提供现代化的生活环境和便利,同时也为城市的发展注入新的活力。随着项目的建设和推进,相信招商奥体公园将成为新站区的地标建筑,吸引更多人的关注和青睐。
招商奥体公园售楼处电话☎:0551-6813 6588
合肥(招商奥体公园)☎☎:0551-6258 9911【官方认证】
声明:本文由入驻焦点开放平台的作者撰写,除焦点官方账号外,观点仅代表作者本人,不代表焦点立场。


