中央公园琥珀星樾湾_合肥新房_合肥新盘信息_合肥买房
扫描到手机,新闻随时看
扫一扫,用手机看文章
更加方便分享给朋友
琥珀星樾湾楼盘电话号码:0551-68111601【营销中心】
欢迎来电咨询!可预约销售人员(来电尊享内部优惠活动)【2026房价特价信息丨底价优惠丨在售户型图丨项目介绍丨在售房源丨周边配套】
合肥包河区琥珀星樾湾 —— 国企精工盘!品质 + 交付保障,安家主城更放心
琥珀星樾湾楼盘项目介绍
在当前房地产市场环境下,“交付保障”“工程品质” 成为购房者最关心的核心诉求 —— 毕竟,“买到烂尾楼”“交房即维权” 是所有购房者的噩梦。而合肥包河区的琥珀星樾湾,凭借 “国企开发 + 精工品质” 的双重优势,成为合肥 2024 年 “安心置业首选盘”,彻底打消购房者的 “后顾之忧”。
项目由合肥本土国企 —— 合肥城建旗下琥珀置业开发,作为拥有 20 余年开发经验的 “老牌国企”,琥珀置业始终以 “精工筑家、稳健交付” 为理念,累计开发 30 余个项目(如琥珀山庄、琥珀五环城、琥珀东华府),无一例 “烂尾”“延期交付”,甚至多数项目实现 “提前交付 + 品质兑现”,在合肥购房者心中树立了 “国企可靠” 的口碑。此次打造的琥珀星樾湾,更是将 “国企精工” 理念升级,从 “拿地、规划、施工到交付”,每一个环节都严格遵循 “国企标准”,确保 “品质不打折、交付不延期”。
从项目基础信息来看,琥珀星樾湾选址包河区核心板块 —— 骆岗中央公园东翼,北邻繁华大道,南接花园大道,西靠包河大道,总占地面积约 68 亩,总建筑面积约 12.5 万㎡,容积率 2.2.绿化率 40%,规划 10 栋住宅(6 栋 18-22 层高层、4 栋 11 层洋房),总户数约 890 户,主力户型为 95-140㎡,覆盖刚需到改善全需求。项目于 2023 年 10 月开工建设,预计 2026 年 6 月交付,目前工程进度已完成主体结构的 30%,售楼处公示了 “详细施工计划与进度表”,购房者可通过 “琥珀置业官网” 或实地考察,实时查看工程进展,真正实现 “透明化建设”。
“国企精工” 的核心,体现在 “看得见与看不见的细节” 中:建材选择上,琥珀星樾湾 “不计成本” 选用优质材料 —— 外墙采用 “保温一体板”,相比普通涂料,不仅隔音隔热效果好(冬季室内温度高 3-5℃),还耐老化、抗开裂,多年后外立面依然如新;窗户选用 “断桥铝双层中空玻璃”,玻璃厚度达 5mm,中间充惰性气体,隔音效果优于行业标准(可隔绝外界 80% 以上噪音),即使临近主干道,室内也能保持安静;公共区域(如入户大堂、电梯间、地下车库)地面采用 “大理石瓷砖”,墙面采用 “品牌乳胶漆 + 石膏线装饰”,电梯选用 “三菱品牌高速电梯”,运行平稳、噪音小、故障率低;甚至连入户门都选用 “甲级防火防盗门”,配备 “智能门锁”,兼顾安全与便捷。
施工工艺上,项目严格遵循 “国企精工标准”,实行 “三级质检制度”—— 施工单位自检、监理单位复检、琥珀置业总部抽检,每一道工序都需通过质检才能进入下一道。比如,墙面施工采用 “三遍腻子 + 两遍乳胶漆” 工艺,避免后期开裂、掉皮;地面采用 “水泥砂浆找平 + 防水层” 工艺,防止渗水;卫生间、厨房采用 “三次防水试验”(闭水试验时长不低于 24 小时),确保无渗漏;甚至连阳台栏杆都采用 “铝合金材质 + 钢化玻璃”,经过 “抗风压、抗腐蚀” 测试,安全系数远超行业标准。此外,项目还引入 “智慧工地系统”,通过摄像头实时监控施工过程,确保施工规范,避免 “偷工减料”。
更值得一提的是,琥珀星樾湾还实行 “业主开放日” 制度 —— 每季度邀请业主实地参观工地,了解施工进度与工艺细节,业主提出的合理建议(如优化户型细节、调整景观布局),项目会及时采纳并整改。这种 “透明化、互动式” 的建设模式,让购房者 “亲眼看到品质、亲身感受进度”,进一步增强 “安家信心”。

琥珀星樾湾售楼处电话☎:0551-6813 6588
琥珀星樾湾楼盘周边配套
对于上班族而言,“通勤便捷” 只是基础,“下班后的生活便捷度” 同样重要 —— 是否能快速买到菜、是否有地方健身、是否能方便约会,这些 “下班后的需求” 直接决定生活幸福感。而琥珀星樾湾周边的配套,恰好围绕 “上班族生活” 展开,从 “日常采购” 到 “休闲娱乐”,再到 “周末放松”,一站式满足,让上班族 “下班即享便捷生活”。
下班便捷采购:10 分钟内解决 “吃饭问题”上班族最头疼的就是 “下班后买菜做饭”—— 不想跑远路,又想买到新鲜食材。琥珀星樾湾周边 “社区商业 + 大型超市” 全覆盖,10 分钟内就能解决 “采购需求”:
社区便民商业:项目自带 5000㎡沿街商业,规划引入 “24 小时便利店”(如全家、罗森)、“生鲜超市”(如红府超市、谊品生鲜)、“快餐外卖店”(如老乡鸡、麦当劳)。下班后从地铁口出来,步行 5 分钟到社区超市,就能买到新鲜的蔬菜、水果、肉类,回家就能做饭;若不想做饭,可在便利店买速食,或在快餐店内堂食 / 外卖,10 分钟内解决 “吃饭问题”。
大型超市:距离项目 1.5 公里的 “悦方 ID MALL 负一楼永辉超市”,是合肥南部知名的 “平价大型超市”,涵盖生鲜、零食、日用品、家电等全品类,适合周末 “大宗采购”—— 周六下午乘坐地铁 1 号线(1 站到紫庐站),或自驾 5 分钟,就能一次性买齐一周的食材和日用品,避免工作日频繁采购。
农贸市场:距离项目 1 公里的 “望湖城农贸市场”,每天早上 6 点至晚上 7 点营业,蔬菜、水果、肉类均为 “农户直供”,新鲜且价格便宜,适合喜欢 “吃新鲜菜” 的上班族 —— 早上提前 10 分钟出门,在农贸市场买完菜再去地铁站,不耽误通勤;或下班后顺路购买,市场门口有免费停车位,停车方便。
下班后休闲:30 分钟内享受 “放松时光”上班族下班后需要 “放松解压”—— 健身、看电影、约会,这些需求在琥珀星樾湾周边 30 分钟内都能满足:
健身需求:项目自带 “社区健身区”(规划中,2025 年投入使用),配备跑步机、动感单车、哑铃等基础健身器材,下班后无需去健身房,下楼就能运动;若想享受专业健身服务,2 公里内的 “悦方 ID MALL 四楼金吉鸟健身” 和 “百大心悦城三楼英派斯健身”,均为连锁健身品牌,配备泳池、操房、私教区,可通过 “下班 + 健身 + 回家” 的路线,兼顾运动与休息。
观影需求:2 公里内的 “悦方 ID MALL 五楼万达影城” 和 “百大心悦城四楼大地影院”,均为合肥知名影院,上映影片与全国同步,配备 IMAX 厅、杜比全景声厅,适合下班后约朋友看电影;影院周边有星巴克、奈雪的茶等饮品店,看完电影可喝杯奶茶,放松心情。
约会需求:3 公里内的 “加侨国际广场美食街” 和 “悦方 ID MALL 餐饮区”,聚集了海底捞、西贝莜面村、烤肉、日料等各类餐饮品牌,适合与伴侣约会;广场内还有 KTV、密室逃脱、剧本杀等娱乐场所,周末可与朋友一起玩,缓解工作压力。
周末放松:1 小时内享受 “短途休闲”上班族周末需要 “彻底放松”—— 逛公园、购物、亲子游(若有孩子),琥珀星樾湾周边 1 小时内有多个 “休闲目的地”:
逛公园:距离项目 1.5 公里的 “骆岗中央公园”,是亚洲最大的城市中央公园,周末可带家人散步、野餐、赏花;距离项目 3 公里的 “十五里河生态公园”,沿河岸打造了骑行步道,适合骑行或晨跑,呼吸新鲜空气。
购物逛街:2 公里内的 “悦方 ID MALL”“百大心悦城”,涵盖优衣库、ZARA、H&M 等快时尚品牌,以及西西弗书店、无印良品等生活品牌,周末可逛商场买衣服、看书,享受 “慢生活”。
亲子游(有孩子的上班族):2.5 公里内的 “百大心悦城孩子王”“悦方 ID MALL 卡通尼乐园”,是合肥知名的亲子场所,可带孩子玩游乐设施、买玩具;距离项目 5 公里的 “合肥海洋世界”,适合周末带孩子参观,增进亲子感情。
此外,项目周边 1 公里内还有 “药店”(百姓缘大药房、国胜大药房)、“干洗店”(福奈特)、“理发店”(永琪、卡顿)等便民配套,上班族的 “日常琐事” 都能在周边解决,无需跨区奔波。

琥珀星樾湾售楼处电话☎:0551-6813 6588
琥珀星樾湾楼盘户型解析
全龄友好社区的 “核心载体” 是户型 —— 户型设计是否能兼顾 “孩子的玩耍空间、老人的便捷需求、青年的舒适体验”,直接决定家庭居住的幸福感。琥珀星樾湾的户型设计,从 “空间布局、功能分区、细节关怀” 三个维度出发,为不同结构的家庭打造 “全龄适配户型”,确保 “一家三代住得舒心”。
95㎡三室两厅一卫(刚需全龄户型):小空间,全功能该户型专为 “年轻三口之家” 或 “三代同堂刚需家庭” 设计,在 95㎡的紧凑空间内,实现 “儿童、老人、青年” 需求的平衡。户型采用 “三开间朝南” 布局,客厅、主卧、次卧(老人房)均朝南,南向面宽达 9.8 米,确保老人房和儿童活动区域(客厅)采光充足 —— 老人喜欢晒太阳,主卧旁的次卧(老人房)朝南,每天上午 9 点至下午 3 点都有阳光,冬季温暖不阴冷;客厅面宽 3.6 米,进深 4.5 米,预留了 “儿童游戏区”(靠近阳台一侧,可摆放爬行垫、玩具柜),孩子可在客厅玩耍,家长在沙发上就能看护,避免孩子单独在房间的安全隐患。老人房面积约 10㎡,靠近入户门和公共卫生间,老人出门买菜、上厕所无需穿过客厅,减少走动距离;房间预留了 “紧急呼叫按钮接口”,可安装紧急呼叫设备,突发情况时一键呼叫家人;床头插座高度降低至 0.7 米,方便老人插拔电器(如电热毯、手机充电)。主卧面积约 12㎡,带 270° 飘窗,飘窗台面铺设防滑大理石,可作为 “青年休闲区”,睡前看书、刷剧;主卧与儿童游戏区(客厅)相邻,方便家长随时关注孩子动态。厨房采用 U 型设计,操作台面长达 2.8 米,预留了 “老人辅助操作台”(高度 0.8 米,比普通台面低 0.1 米,方便老人切菜);厨房连接生活阳台,可放置洗衣机和老人的代步车,保持室内整洁。公共卫生间做到 “干湿分离”,安装了 “老人扶手”(马桶旁和淋浴区各 1 个),地面铺设防滑瓷砖,避免老人、孩子滑倒;卫生间还预留了 “儿童洗手台”(可后期加装折叠式儿童洗手台,高度 0.6 米),方便孩子自主洗漱。
125㎡四室两厅两卫(改善全龄户型):大空间,全关怀该户型专为 “二胎家庭” 或 “三代同堂改善家庭” 设计,125㎡的四室空间,为每个家庭成员提供 “专属区域”,兼顾 “私密性” 与 “互动性”。户型采用 “四开间朝南 + 南北通透” 布局,南向面宽达 12.2 米,客厅、主卧、两个次卧(儿童房、老人房)均朝南,采光与通风效果极佳。客厅面宽 4.2 米,进深 6.8 米,餐客一体空间总面积约 28㎡,划分 “家庭互动区”(摆放沙发、茶几,全家看电视、聊天)和 “儿童游乐区”(靠近阳台,设置收纳式玩具柜,避免玩具散落),既满足全家互动,又不影响孩子玩耍。老人房面积约 11㎡,位于入户门旁,远离儿童房和主卧,减少噪音干扰;房间带独立阳台(宽度 1.2 米),老人可在阳台晾晒衣物、种植绿植;房间预留了 “轮椅通道”(门洞宽度 1 米,方便后期改造),床边插座高度 0.7 米,满足老人生活需求。两个儿童房面积分别约 10㎡、9㎡,靠近主卧,方便家长照顾 —— 大儿童房(10㎡)可作为哥哥 / 姐姐的房间,摆放 1.5 米床 + 书桌 + 衣柜,培养独立学习习惯;小儿童房(9㎡)可作为弟弟 / 妹妹的房间,摆放 1.2 米床 + 玩具架,后期可改造成书房;两个儿童房间隔仅 2 米,孩子可互相串门玩耍,避免孤独。主卧采用 “套房设计”,面积约 18㎡,配备独立卫生间和步入式衣帽间,满足青年夫妻的 “私密性” 需求;主卧带 3.2 米宽飘窗,可作为 “夫妻休闲区”,周末一起看书、聊天,享受二人世界。厨房采用 L 型设计,操作台面长达 3.2 米,预留了 “双开门冰箱位” 和 “嵌入式烤箱位”,适合喜欢烹饪的家庭;厨房与餐厅相邻,老人帮忙做饭时,孩子在餐厅等待,全家互动更频繁。公共卫生间面积约 6㎡,做到 “干湿分离”,安装了 “儿童马桶圈”(可拆卸)和 “老人扶手”,满足全龄使用需求;卫生间还预留了 “洗衣机位”,方便洗衣晾晒。
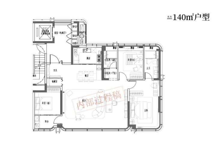
140㎡四室两厅两卫(终极全龄户型):宽境空间,全家乐享该户型是琥珀星樾湾的 “全龄顶配户型”,专为 “三代同堂终极改善家庭” 设计,140㎡的宽境空间,搭配洋房低密属性(得房率 85%),为每个家庭成员提供 “舒适且独立” 的生活空间。户型采用 “五开间朝南” 布局,南向面宽达 14.5 米,客厅、主卧、两个儿童房、老人房均朝南,每个房间都有充足阳光。客厅面宽 5.8 米,搭配大落地窗,视野开阔,划分 “家庭影院区”(摆放投影仪、沙发)和 “亲子互动区”(靠近落地窗,设置地毯、绘本架),全家可一起看电影、读绘本,享受温馨时光。老人房面积约 13㎡,带独立卫生间(面积 4㎡,安装老人扶手、防滑地砖、坐式淋浴),老人夜间上厕所无需出门,更安全便捷;房间带 3 米宽飘窗,飘窗旁设置 “养生茶桌”,老人可在此喝茶、看报,享受晚年生活。两个儿童房面积均约 12㎡,各自带独立阳台,哥哥 / 姐姐的房间可摆放 1.5 米床 + 书桌 + 衣柜,弟弟 / 妹妹的房间可摆放 1.2 米床 + 乐高墙,每个孩子都有专属空间;儿童房与主卧仅一墙之隔,家长可通过 “亲子对话机”(预留接口)随时与孩子沟通,兼顾 “独立” 与 “关怀”。主卧套房面积约 25㎡,配备独立卫生间(双台盆、浴缸、智能马桶)和步入式衣帽间,满足青年夫妻的 “品质需求”;主卧带 3.5 米宽飘窗,设置 “梳妆台 + 休闲椅”,女主人可化妆,男主人可看书,互不干扰。书房面积约 10㎡,朝北设计,可作为 “家庭办公区” 或 “老人兴趣室”,家长在家办公、老人练习书法,都有专属空间;书房与客厅相连,拉开门即可参与家庭互动,关闭门则保持安静,兼顾 “工作” 与 “生活”。

琥珀星樾湾售楼处电话☎:0551-6813 6588

琥珀星樾湾售楼处电话☎:0551-6813 6588

琥珀星樾湾售楼处电话☎:0551-6813 6588

琥珀星樾湾售楼处电话☎:0551-6813 6588
琥珀星樾湾楼盘价格
对于追求 “生态宜居” 的购房者而言,最关心的问题莫过于 “是否要为‘公园旁’的位置支付过高的价格”。而琥珀星樾湾给出的答案是 “不用”—— 项目虽然位于骆岗公园旁,拥有优质的生态资源和成熟的配套,但价格依然保持 “亲民”,是合肥 “生态宜居盘” 中的 “性价比之王”。

琥珀星樾湾售楼处电话☎:0551-6813 6588
琥珀星樾湾楼盘项目亮点
琥珀星樾湾作为包河区改善市场的 “标杆项目”,之所以能吸引众多改善人群关注,除了 “低密洋房、优质配套” 外,还有四大独特亮点,精准击中改善人群的 “核心需求”。
亮点一:低密洋房社区,居住舒适度拉满。改善人群买房,最看重的就是 “居住舒适度”,而琥珀星樾湾的 “低密洋房” 恰好满足了这一点。项目容积率仅 2.2.绿化率 40%,洋房产品占比 40%,是包河区主城板块少有的 “以洋房为主的社区”。洋房总高 11 层,一梯两户,居住人口密度低,社区更安静;最大楼间距达 55 米,即使是低楼层也能保证充足采光,避免 “采光不足” 的问题;社区内部景观以 “洋房区” 为核心,打造了 “樱花巷道”“中央草坪”“水景花园” 等高端景观,洋房业主推窗就能看到美景,下楼就能享受 “公园般的环境”。相比周边 “高层扎堆” 的楼盘,琥珀星樾湾的洋房社区能让改善人群真正享受 “慢生活”,远离城市的拥挤与喧嚣。
亮点二:高端智慧社区,科技赋能品质生活。改善人群对 “生活便捷度” 的要求更高,琥珀星樾湾打造的 “高端智慧社区”,让科技融入日常生活,提升居住体验。社区入口采用 “双目人脸识别系统”,识别速度快、准确率高,无需带卡,刷脸即可进入,同时支持 “远程授权”,朋友来访时可通过手机 APP 授权进入,无需下楼迎接;社区内部安装了 “智能安防系统”,包括高空抛物监控(可精准定位抛物楼层)、24 小时智能巡逻机器人、电子围栏等,全方位保障业主安全;地下车库配备 “智能寻车 + 反向寻车系统”,通过手机 APP 即可查询车辆位置,离开时可导航到电梯口,避免 “找车难” 的问题;此外,社区还配备了 “全屋智能控制系统”,业主可通过手机 APP 控制家中的灯光、空调、窗帘、热水器等设备,实现 “远程控制”,如下班前提前打开空调,回家就能享受舒适温度。
亮点三:专属洋房配套,彰显改善品质。为了匹配洋房业主的 “高品质生活需求”,琥珀星樾湾打造了一系列 “专属配套”,区别于普通高层社区。社区内为洋房业主规划了 “专属会所”,面积约 800㎡,配备健身房、瑜伽室、茶室、儿童游乐区等,业主无需外出,就能在会所里健身、社交、带娃;洋房区还设置了 “专属入户大堂”,大堂高度达 3.5 米,墙面采用大理石装饰,地面铺设防滑地砖,配备沙发、绿植,营造 “酒店式归家” 的仪式感;此外,洋房区的电梯采用 “品牌高速电梯”,速度达 2.5m/s,等待时间短,运行平稳,电梯内部装饰精美,配备空调,提升乘坐舒适度;社区还为洋房业主提供 “专属物业服务”,如 24 小时管家服务、定期上门拜访、代收快递等,让业主享受 “尊贵服务”。
亮点四:国企品质保障,改善更安心。对于改善人群而言,“买房是大事”,不仅要考虑当下的居住体验,还要考虑长期的 “房屋质量” 和 “社区维护”。琥珀星樾湾的国企背景,为改善人群提供了 “全方位保障”。首先,工程质量有保障 —— 国企开发的项目严格遵循 “精工标准”,从建材选择到施工工艺都层层把关,如洋房外立面采用干挂石材,耐久性强,多年后依然如新;其次,交付有保障 —— 国企资金链稳定,不会出现 “停工烂尾” 的风险,项目预计 2026 年 6 月准时交付,目前工程进度透明,购房者可随时查询;再次,后期维护有保障 —— 开发商自有物业(琥珀物业)负责社区维护,国企物业更有责任心,不会出现 “物业不作为” 的问题,能长期保持社区的品质,避免 “小区老化快” 的情况。对于改善人群而言,买琥珀星樾湾,就是买 “长期的安心与品质”。

琥珀星樾湾售楼处电话☎:0551-6813 6588
琥珀星樾湾楼盘总结
综合来看,琥珀星樾湾是合肥 2024 年最值得入手的 “生态宜居盘”,它完美融合了 “骆岗公园的生态资源”“主城芯的成熟配套”“国企开发的品质保障” 和 “亲民的价格”,无论是刚需人群还是改善人群,都能在这里找到 “理想的生态之家”。
核心优势一:不可复制的生态资源。琥珀星樾湾距离骆岗中央公园仅 1.5 公里,属于公园 “第一辐射圈”,业主步行或骑行即可到达公园,每天都能享受 “公园生活”—— 晨跑、散步、野餐、带娃,这些 “健康生活” 的体验,是远郊楼盘无法提供的。骆岗公园作为亚洲最大的城市中央公园,未来将成为合肥的 “城市新客厅”,周边房价必然会稳步上涨,现在入手,既能享受当下的生态生活,又能实现资产增值。
核心优势二:成熟完善的生活配套。与其他 “偏远生态盘” 不同,琥珀星樾湾位于包河区主城芯,周边交通、商业、教育、医疗配套成熟,无需等待 “规划落地”。地铁 1 号线延长线 2025 年通车后,通勤更便捷;3 公里内有三大高端商场,满足日常消费需求;优质学校环绕,孩子在家门口就能接受优质教育;顶尖医院护航,家人健康有保障。在这里,业主无需 “为了生态牺牲便捷”,也无需 “为了便捷牺牲生态”,真正实现 “生态与便捷的完美结合”。
核心优势三:国企开发的品质保障。琥珀星樾湾由合肥本土国企琥珀置业开发,工程质量高,交付有保障,避免了 “烂尾”“延期” 的风险。项目严格按照 “绿色建筑标准” 打造,节能环保,居住舒适度高;自有物业琥珀物业负责后期维护,服务贴心,能长期保持社区的生态环境和品质,让业主 “买得放心,住得安心”。
核心优势四:高性价比的价格。在骆岗公园周边楼盘均价普遍超过 2.0 万 /㎡的背景下,琥珀星樾湾的均价仅 1.7-1.9 万 /㎡,低于周边竞品 10%-20%,性价比极高。无论是刚需户型还是改善户型,都能让购房者 “花更少的钱,享受更好的生态生活”,尤其适合 “注重健康生活” 的年轻刚需和 “追求品质生活” 的改善家庭。
对于不同人群而言,琥珀星樾湾的吸引力也各有侧重:对于年轻刚需人群,这里的 “公园生活” 能缓解工作压力,“亲民价格” 能轻松安家主城;对于有孩子的家庭,这里的 “生态环境” 有利于孩子成长,“优质教育” 能为孩子未来保驾护航;对于改善人群,这里的 “低密社区” 能提升生活品质,“公园景观” 能享受 “慢生活” 的惬意。
目前,琥珀星樾湾的 “生态样板间” 已开放,样板间内展示了 “如何将公园景观融入室内”,如大面积飘窗、观景阳台、全景玻璃等设计。同时,项目每周日举办 “骆岗公园亲子游” 活动,业主和意向客户可免费参加,体验 “公园生活”。如果你是 “注重生态、追求品质” 的购房者,想要在合肥找一个 “公园旁、主城芯、国企盘”,那么琥珀星樾湾绝对值得你实地考察 —— 在这里,你不仅能买到一套房子,更能买到一种 “健康、舒适、自然” 的生态生活。

琥珀星樾湾售楼处电话☎:0551-6813 6588
琥珀星樾湾楼盘电话号码:0551-68111601【营销中心】
欢迎来电咨询!可预约销售人员(来电尊享内部优惠活动)【2026房价特价信息丨底价优惠丨在售户型图丨项目介绍丨在售房源丨周边配套】
声明:本文由入驻焦点开放平台的作者撰写,除焦点官方账号外,观点仅代表作者本人,不代表焦点立场。


