2024招商奥体公园-招商奥体公园详情丨招商奥体公园详情→在售价格丨户型图
扫描到手机,新闻随时看
扫一扫,用手机看文章
更加方便分享给朋友
招商奥体公园楼盘,更多项目详情请拨打招商奥体公园营销中心电话:0551-6813 6588【营销中心】
招商奥体公园项目位于新站少荃湖板块,具体地址为卧龙湖路与东方大道交叉路口西南侧。该地段交通便捷,地铁四号线贯穿,周边教育、医疗、商业等配套资源齐全,生活便利。项目售价合理,吸引了众多刚需购房者的关注和青睐。特别是在合肥新房市场竞争激烈的背景下,招商奥体公园凭借其地段优势和综合性规划,成为了一匹备受瞩目的“黑马”,取得了不错的销售成绩。
招商奥体公园项目是央企招商精心打造的一座大型综合社区。项目集住宅、体育场馆、公园和商业于一体,规划建面约45万方,包含约109栋住宅楼,预计容纳5746户,容积率1.8,绿化率高达40%。周边交通便捷,地铁四号线贯穿,配套资源完善。售价方面,目前部分户型均价在1.35万/㎡至2万/㎡之间。
招商奥体公园售楼处电话☎:0551-6813 6588
招商奥体公园不仅拥有丰富的住宅产品,还有公园、体育中心、购物中心、社区商业中心等配套设施。同时,项目周边还有地铁四号线、竹溪小学、京东方医院、少荃湖湿地公园等资源,满足居民多重生活需求。项目一、二期已经交付,楼盘品质有目共睹,央企招商品牌值得信赖。
招商奥体公园售楼处电话☎:0551-6813 6588
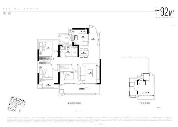
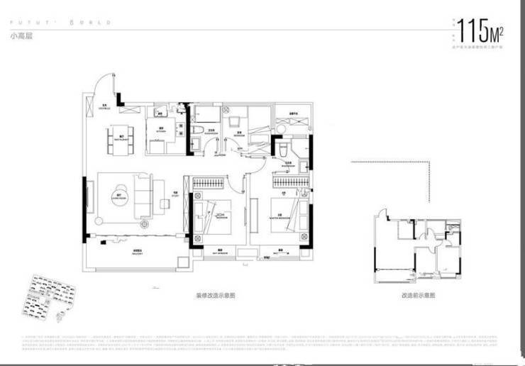
招商奥体公园主打刚需小户型,主力户型面积介于89-119㎡之间,包括二居室和三居室,满足不同购房者的需求。其中,92㎡的户型三室两厅一卫,南北通透的设计,采光和通风良好,主卧带有一个飘窗,卫生间干湿分离,客厅和餐厅一体化设计,空间宽敞。客厅和旁边的卧室阳台相连,阳台空间较大,可打造出一个开放性空间。招商奥体公园的多样户型选择,满足了购房者对于不同空间需求和生活方式的追求。
招商奥体公园售楼处电话☎:0551-6813 6588
招商奥体公园售楼处电话☎:0551-6813 6588
招商奥体公园售楼处电话☎:0551-6813 6588
招商奥体公园售楼处电话☎:0551-6813 6588
招商奥体公园售楼处电话☎:0551-6813 6588
近期在售的招商奥体公园一、二期现房,三、四期准现房,户型面积在88-115m²。作为一线品牌央企,招商在合肥拥有多年深耕发展的经验,带来了多座高品质人居作品。选择招商奥体公园,不仅能享受便利的生活配套和优越的交通条件,更能拥有一个品质生活的家园。
招商奥体公园售楼处电话☎:0551-6813 6588
新站区是合肥市区产证的价格洼地,适合刚需人群,对于刚需客户来说,新站区的房价比较友好。
招商奥体公园售楼处电话☎:0551-6813 6588
招商奥体公园作为新站区的一颗璀璨明珠,将为当地居民提供现代化的生活环境和便利,同时也为城市的发展注入新的活力。随着项目的建设和推进,相信招商奥体公园将成为新站区的地标建筑,吸引更多人的关注和青睐。
招商奥体公园售楼处电话☎:0551-6813 6588
招商奥体公园售楼处电话☎:0551-6813 6588
合肥招商奥体公园售楼处电话☎:0551-6813 6588
售楼电话┇——☎0551-6813 6588——┇来电详细解答
温馨提示:提前预约销售人员看房,感谢您对售楼处的配合!
⚠免责声明:请尊重他人的努力和智慧,避免未经授权的复制或引用。
声明:本文由入驻焦点开放平台的作者撰写,除焦点官方账号外,观点仅代表作者本人,不代表焦点立场。


