招商奥体公园楼盘周边配套怎么样
扫描到手机,新闻随时看
扫一扫,用手机看文章
更加方便分享给朋友
招商奥体公园楼盘详情,详询:0551-68111210
项目周边有多条城市主干道穿行而过,如东方大道、文忠路、淮海大道、包公大道等,构建了立体TOD交通网络。项目紧邻地铁4号线始发站东方大道站,地铁3号线和规划中的9号线也穿行于项目周边区域,出行便捷。项目内规划有约3万方活力荟商业街区,满足居民日常购物、餐饮、娱乐等多元化需求,此外还紧邻鸿盛商业广场、百大商业广场等大型商业综合体。作为奥体TOD综合体项目,招商奥体公园还规划有体育主题商业配套,将运动、休闲、购物融为一体,为居民提供独特的消费体验。
教育资源方面,附近有竹溪小学、康桥国际学校、168分校陶冲湖东校区;项目周边医疗配套完善,有安徽医科大学第四附属医院、京东方数字医院等三甲医院;还有奥体公园、少荃湖湿地公园、陶冲湖公园等为居民提供了休闲娱乐的好去处。价格方面,招商奥体公园颇具性价比,目前均价在1.7万/㎡左右。对比周边二手房,绿地柏仕公园1.3万/㎡、旭辉公园府1.5万/㎡;周边新房乐富强湖光秋色花园1.4万/㎡,国贸璟原1.7万/㎡。
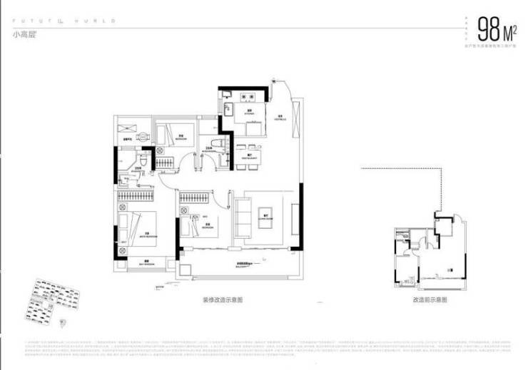
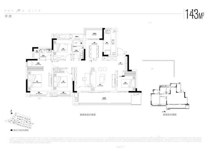
招商奥体公园包含低密度多层、小高层、高层及花园洋房等多种住宅类型,容积率为1.8,绿化率高于40%。建面介于89-119㎡之间,满足了不同购房者对于户型的需求。此外,项目还设有部分四室户型,面积达到143㎡,为大户型购房者提供了选择空间。
价格方面,招商奥体公园均价在1.7万/㎡左右,相比周边其他项目具有一定的性价比优势。项目主打刚需小户型,主力户型面积介于89-119㎡之间,包括二居室和三居室,满足不同购房者的需求。部分四室户型面积达到143㎡,也可供选择。其中,92㎡的户型三室两厅一卫,南北通透设计,采光和通风良好,空间利用较为合理,适合家庭居住。
招商奥体公园楼盘配套齐全,性价比高,有想在新站区购房置业的网友,可以重点关注招商奥体公园项目。
招商奥体公园楼盘详情,详询:0551-68111210
声明:本文由入驻焦点开放平台的作者撰写,除焦点官方账号外,观点仅代表作者本人,不代表焦点立场。


