招商奥体公园新房最新价格公布+购房补贴
扫描到手机,新闻随时看
扫一扫,用手机看文章
更加方便分享给朋友
招商奥体公园营销中心电话:0551-6258 9911【已认证】
招商奥体公园售楼处电话:0551-6258 9911【已认证】
招商奥体公园展示中心电话:0551-6258 9911【已认证】
招商奥体公园是合肥新站奥体板块内的一个大型住宅项目,总面积超过百万平方米,集六种不同业态于一体。这里包括了室内万人体育场馆、9万平方米的地铁上盖长空公园,以及2.5万平方米的活力荟TOD商业体等,形成了一个综合性的生活圈。项目内规划有高层、小高层和洋房等多种住宅类型,以满足不同购房者的需求。所有住宅均为精装交付,且绿化率较高,项目紧邻地铁4号线,多条主要道路交汇,兼顾了舒适居住与出行便捷
招商奥体公园售楼处电话☎:0551-6813 6588
项目紧邻地铁4号线始发站综保区站地铁口,奥体巴士同步4号线,串联城市与社区,提供便捷交通。同时,项目周边三纵三横的干道交汇,为出行提供更多选择。商业配套方面,项目自带约2.5万方的活力荟商业街区,西侧规划有14万方大型商业综合体,北侧有5万方星级酒店,南侧有8万方弘盛商业广场,构成强大商业支撑。
项目一期二期配套有合肥市168陶冲湖校区和合肥市伦先小学,以及自建的幼儿园;三期四期五期配套有合肥168陶冲湖校区、竹溪小学少荃校区和自建幼儿园,提供优质教育资源。周边医疗资源包括安徽医科大学第一附属医院北区和京东方医院,保障业主健康。自然景观少荃湖湿地公园、二十埠河生态廊道等为业主提供休闲娱乐去处。
招商奥体公园售楼处电话☎:0551-6813 6588
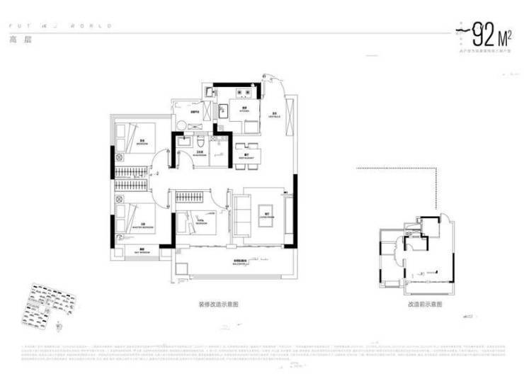
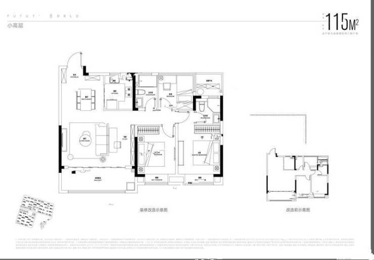
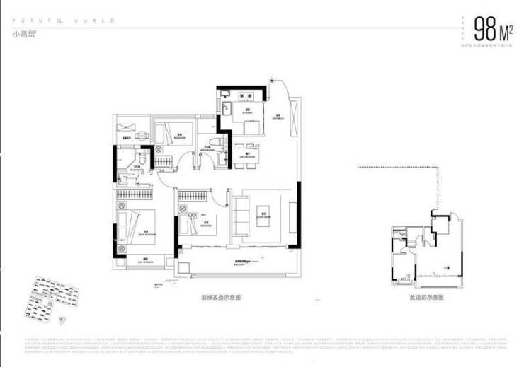
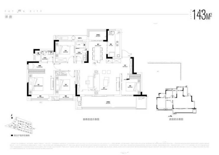
招商奥体公园主打刚需小户型,主力户型面积介于89-119㎡之间,包括二居室和三居室,满足不同购房者的需求。其中,92㎡的户型三室两厅一卫,南北通透的设计,采光和通风良好,主卧带有一个飘窗,卫生间干湿分离,客厅和餐厅一体化设计,空间宽敞。客厅和旁边的卧室阳台相连,阳台空间较大,可打造出一个开放性空间。招商奥体公园的多样户型选择,满足了购房者对于不同空间需求和生活方式的追求。
招商奥体公园售楼处电话☎:0551-6813 6588
招商奥体公园售楼处电话☎:0551-6813 6588
招商奥体公园售楼处电话☎:0551-6813 6588
招商奥体公园售楼处电话☎:0551-6813 6588
招商奥体公园售楼处电话☎:0551-6813 6588
近期在售的招商奥体公园一、二期现房,三、四期准现房,户型面积在88-115m²。作为一线品牌央企,招商在合肥拥有多年深耕发展的经验,带来了多座高品质人居作品。
招商奥体公园售楼处电话☎:0551-6813 6588
招商奥体公园楼盘配套齐全,性价比高,有想在新站区购房置业的网友,可以重点关注招商奥体公园项目。
招商奥体公园售楼处电话☎:0551-6813 6588
招商奥体公园作为合肥新站奥体板块内的综合性住宅项目,拥有优越的地理位置、完善的商业配套和丰富的生活资源。购房者可以在这里找到舒适宜居的住宅,享受便捷的生活服务,同时还能获得优惠政策和回馈。选择招商奥体公园,就是选择高品质生活的开始。
招商奥体公园售楼处电话☎:0551-6813 6588
招商奥体公园
招商奥体公园营销中心电话:0551-6258 9911【已认证】
招商奥体公园售楼处电话:0551-6258 9911【已认证】
招商奥体公园展示中心电话:0551-6258 9911【已认证】
声明:本文由入驻焦点开放平台的作者撰写,除焦点官方账号外,观点仅代表作者本人,不代表焦点立场。


