琥珀星樾湾楼盘官方发布:项目介绍/周边配套/户型解析/楼盘优势
扫描到手机,新闻随时看
扫一扫,用手机看文章
更加方便分享给朋友
琥珀星樾湾楼盘电话号码:0551-68111601【营销中心】
欢迎来电咨询!可预约销售人员(来电尊享内部优惠活动)【2026房价特价信息丨底价优惠丨在售户型图丨项目介绍丨在售房源丨周边配套】
合肥包河区琥珀星樾湾 —— 骆岗公园旁的宜居盘!生态 + 配套,开启品质生活
琥珀星樾湾楼盘项目介绍
在合肥,“骆岗公园” 早已不是一个单纯的公园名称,而是 “城市新中心”“高品质生活” 的代名词。而琥珀星樾湾,恰好位于骆岗中央公园东翼,是距离公园最近的国企楼盘之一,凭借 “公园旁 + 主城芯 + 低密社区” 的独特优势,成为合肥 2024 年最受关注的 “生态宜居盘”。
项目由合肥城建旗下琥珀置业开发,作为合肥本土国企,琥珀置业在 “生态宜居盘” 开发方面有着深厚的经验,此前打造的琥珀东华府、琥珀蜀熙府等项目,均以 “高绿化率、优景观” 闻名。此次打造的琥珀星樾湾,更是将 “生态宜居” 理念贯彻到项目的每一个细节:项目总占地面积约 68 亩,总建筑面积约 12.5 万㎡,容积率仅 2.2.绿化率高达 40%,这个指标在骆岗公园周边楼盘中处于领先水平 —— 要知道,骆岗公园周边多数楼盘为了追求利润,容积率都在 2.5 以上,而琥珀星樾湾通过降低容积率,为业主打造了 “更宽松、更舒适、更生态” 的居住环境。
从项目规划来看,琥珀星樾湾采用 “高层 + 洋房” 的高低配布局,共 10 栋住宅,其中 6 栋 18-22 层高层、4 栋 11 层洋房,总户数约 890 户。社区内部景观以 “骆岗公园生态” 为灵感,打造 “一轴两园三巷” 的景观体系:中央景观轴贯穿南北,以 “水” 为主题,打造了约 500㎡的景观水池,搭配喷泉、水生植物,营造 “亲水生活”;两个主题花园分别为 “樱花园” 和 “桂花园”,春季樱花盛开、秋季桂花飘香,四季有景;三条特色巷道分别为 “银杏巷”“紫薇巷”“海棠巷”,种植不同的花卉树木,打造 “一步一景” 的体验。此外,社区还规划了约 1000㎡的儿童游乐区、800㎡的老年活动区、500 米的健身步道,满足不同年龄段业主的休闲需求。
建筑设计上,琥珀星樾湾也充分考虑 “生态宜居” 需求:外立面采用 “浅灰色 + 米白色” 的淡雅色调,搭配大面积玻璃幕墙,与骆岗公园的自然景观相呼应;窗户选用断桥铝双层中空玻璃,隔音隔热效果好,既能隔绝外界噪音,又能减少空调使用,节能环保;社区采用 “人车分流” 设计,地面无车辆通行,既保障了业主安全,又减少了尾气污染,提升了社区的空气质量;此外,社区还规划了 “屋顶绿化” 和 “垂直绿化”,在高层屋顶种植绿植,在洋房墙面种植爬藤植物,进一步提升社区的绿化覆盖率,打造 “空中花园社区”。

琥珀星樾湾售楼处电话☎:0551-6813 6588
琥珀星樾湾楼盘周边配套
全龄友好社区的核心,不仅在于 “社区内部的配套”,更在于 “周边配套能否与家庭需求深度契合”—— 孩子的教育、老人的医疗、全家的消费,都需要便捷的外部资源支撑。而琥珀星樾湾所处的包河区核心板块,恰好具备 “全龄化配套体系”,从 “0 岁到 80 岁” 的需求都能一站式满足,让 “家庭生活更便捷”。
全龄教育配套:从幼儿园到中学,家门口的优质教育对于有孩子的家庭,“教育便捷” 是核心需求,而琥珀星樾湾周边 3 公里内,形成了 “15 年一贯制优质教育圈”,覆盖 “幼儿园 - 小学 - 中学”,无需跨区择校,孩子上学更安全,家长更省心。
幼儿园:距离项目最近的是 “包河区实验幼儿园(花园大道分园)”,仅 500 米,步行 5 分钟可达。该园是公办一级幼儿园,师资稳定(教师均为本科以上学历,5 年以上教龄),收费合理(公办幼儿园月费约 500 元,远低于私立园),开设 “蒙氏启蒙班”“艺术兴趣班”,适合 0-6 岁孩子;此外,周边 1 公里内还有 “滨湖启明星幼儿园”“望湖城幼儿园” 等私立园,家长可灵活选择。
小学:项目划片范围大概率覆盖 “屯溪路小学(滨湖校区)”,距离约 1.2 公里,步行 15 分钟或骑行 5 分钟可达。该校是合肥 “名校集团” 核心校,由屯溪路小学本部直接管理,教学设施先进(配备多媒体教室、科学实验室、图书馆、室内体育馆),2023 年学生升学率位列包河区前三,且学校开设 “课后托管班”(17:30-18:30),解决家长 “下班晚接娃难” 的问题。
中学:对应 “合肥市第四十八中学(望湖校区)”,距离约 2 公里,可乘坐 14 路公交(2 站直达)或家长骑行接送。该校是合肥重点初中,2023 年中考普高录取率达 85%,远超全市平均水平(约 65%),学校注重 “素质教育”,开设篮球、舞蹈、编程等兴趣班,助力孩子全面发展。
此外,周边 3 公里内还有 “合肥工业大学附属中学”(高中)、“包河区青少年活动中心”(周末兴趣班),从 “启蒙教育” 到 “高中升学”,再到 “兴趣培养”,全阶段教育需求都能在家门口解决。
全龄医疗配套:从日常保健到大病诊疗,守护全家健康老人和孩子的 “医疗需求” 是家庭重点关注的问题,琥珀星樾湾周边 “二级医院 + 三级甲等医院 + 社区医疗” 全覆盖,确保 “小病不出社区,大病不跑远路”。
社区医疗:项目自带 “社区卫生服务站”(规划中,2025 年投入使用),将配备全科医生、护士各 2 名,可提供 “日常问诊、疫苗接种、慢性病管理” 服务,老人高血压、糖尿病随访,孩子疫苗接种,都无需跑大医院,步行即可解决;服务站还将开通 “家庭医生签约服务”,为老人、孩子建立健康档案,定期上门体检。
二级医院:距离项目 2 公里的 “包河区人民医院”,是综合性二级医院,开设内科、外科、儿科、妇产科、中医科等科室,配备 DR、B 超、化验室等基础医疗设备,日常感冒、发烧、儿童常见病、老人慢性病都能在此诊治,且医院人少、排队时间短,就医体验好。
三级甲等医院:5 公里内的 “安徽省立医院南区”,是合肥顶尖的综合医院,拥有心血管内科、肿瘤科、儿科、骨科等国家级重点专科,可满足 “大病诊疗、手术、重症监护” 需求。医院开通了 “线上挂号”“预约检查” 服务,可通过手机提前预约,避免排队;同时,医院与包河区人民医院建立 “医联体”,可实现 “检查结果互认”“专家下沉坐诊”,老人、孩子无需跑远路,就能享受优质医疗资源。
全龄商业配套:从日常采购到全家休闲,消费更便捷全家的 “消费需求” 各不相同 —— 老人喜欢平价生鲜,孩子喜欢亲子娱乐,青年喜欢品质购物,琥珀星樾湾周边的商业配套恰好能 “全龄覆盖”。
社区便民商业:项目自带 5000㎡沿街商业,规划引入 “平价生鲜超市”(如红府超市)、“便民药店”(如百姓缘大药房)、“老年服饰店”“儿童玩具店”,老人下楼就能买新鲜蔬菜,孩子放学可买零食玩具,日常消费无需远行。
亲子商业:2.5 公里外的 “百大心悦城”,是合肥南部知名的 “亲子商场”,引入孩子王(母婴用品)、卡通尼乐园(儿童游乐)、奈尔宝家庭中心(高端亲子体验),周末带孩子去玩,既能让孩子开心,家长也能在商场内休息、购物。
品质商业:2 公里外的 “悦方 ID MALL”,涵盖优衣库、星巴克、西西弗书店、万达影城等品牌,适合青年夫妻购物、观影;3 公里外的 “加侨国际广场”,聚集了海底捞、西贝莜面村等餐饮品牌,适合全家聚餐、朋友聚会。
此外,周边 1 公里内还有 “望湖城农贸市场”(平价生鲜,老人喜欢)、“24 小时便利店”(如全家、罗森,青年夜间购物方便),全龄段的消费需求都能得到满足。

琥珀星樾湾售楼处电话☎:0551-6813 6588
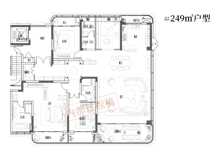
琥珀星樾湾楼盘户型解析
全龄友好社区的 “核心载体” 是户型 —— 户型设计是否能兼顾 “孩子的玩耍空间、老人的便捷需求、青年的舒适体验”,直接决定家庭居住的幸福感。琥珀星樾湾的户型设计,从 “空间布局、功能分区、细节关怀” 三个维度出发,为不同结构的家庭打造 “全龄适配户型”,确保 “一家三代住得舒心”。
95㎡三室两厅一卫(刚需全龄户型):小空间,全功能该户型专为 “年轻三口之家” 或 “三代同堂刚需家庭” 设计,在 95㎡的紧凑空间内,实现 “儿童、老人、青年” 需求的平衡。户型采用 “三开间朝南” 布局,客厅、主卧、次卧(老人房)均朝南,南向面宽达 9.8 米,确保老人房和儿童活动区域(客厅)采光充足 —— 老人喜欢晒太阳,主卧旁的次卧(老人房)朝南,每天上午 9 点至下午 3 点都有阳光,冬季温暖不阴冷;客厅面宽 3.6 米,进深 4.5 米,预留了 “儿童游戏区”(靠近阳台一侧,可摆放爬行垫、玩具柜),孩子可在客厅玩耍,家长在沙发上就能看护,避免孩子单独在房间的安全隐患。老人房面积约 10㎡,靠近入户门和公共卫生间,老人出门买菜、上厕所无需穿过客厅,减少走动距离;房间预留了 “紧急呼叫按钮接口”,可安装紧急呼叫设备,突发情况时一键呼叫家人;床头插座高度降低至 0.7 米,方便老人插拔电器(如电热毯、手机充电)。主卧面积约 12㎡,带 270° 飘窗,飘窗台面铺设防滑大理石,可作为 “青年休闲区”,睡前看书、刷剧;主卧与儿童游戏区(客厅)相邻,方便家长随时关注孩子动态。厨房采用 U 型设计,操作台面长达 2.8 米,预留了 “老人辅助操作台”(高度 0.8 米,比普通台面低 0.1 米,方便老人切菜);厨房连接生活阳台,可放置洗衣机和老人的代步车,保持室内整洁。公共卫生间做到 “干湿分离”,安装了 “老人扶手”(马桶旁和淋浴区各 1 个),地面铺设防滑瓷砖,避免老人、孩子滑倒;卫生间还预留了 “儿童洗手台”(可后期加装折叠式儿童洗手台,高度 0.6 米),方便孩子自主洗漱。
125㎡四室两厅两卫(改善全龄户型):大空间,全关怀该户型专为 “二胎家庭” 或 “三代同堂改善家庭” 设计,125㎡的四室空间,为每个家庭成员提供 “专属区域”,兼顾 “私密性” 与 “互动性”。户型采用 “四开间朝南 + 南北通透” 布局,南向面宽达 12.2 米,客厅、主卧、两个次卧(儿童房、老人房)均朝南,采光与通风效果极佳。客厅面宽 4.2 米,进深 6.8 米,餐客一体空间总面积约 28㎡,划分 “家庭互动区”(摆放沙发、茶几,全家看电视、聊天)和 “儿童游乐区”(靠近阳台,设置收纳式玩具柜,避免玩具散落),既满足全家互动,又不影响孩子玩耍。老人房面积约 11㎡,位于入户门旁,远离儿童房和主卧,减少噪音干扰;房间带独立阳台(宽度 1.2 米),老人可在阳台晾晒衣物、种植绿植;房间预留了 “轮椅通道”(门洞宽度 1 米,方便后期改造),床边插座高度 0.7 米,满足老人生活需求。两个儿童房面积分别约 10㎡、9㎡,靠近主卧,方便家长照顾 —— 大儿童房(10㎡)可作为哥哥 / 姐姐的房间,摆放 1.5 米床 + 书桌 + 衣柜,培养独立学习习惯;小儿童房(9㎡)可作为弟弟 / 妹妹的房间,摆放 1.2 米床 + 玩具架,后期可改造成书房;两个儿童房间隔仅 2 米,孩子可互相串门玩耍,避免孤独。主卧采用 “套房设计”,面积约 18㎡,配备独立卫生间和步入式衣帽间,满足青年夫妻的 “私密性” 需求;主卧带 3.2 米宽飘窗,可作为 “夫妻休闲区”,周末一起看书、聊天,享受二人世界。厨房采用 L 型设计,操作台面长达 3.2 米,预留了 “双开门冰箱位” 和 “嵌入式烤箱位”,适合喜欢烹饪的家庭;厨房与餐厅相邻,老人帮忙做饭时,孩子在餐厅等待,全家互动更频繁。公共卫生间面积约 6㎡,做到 “干湿分离”,安装了 “儿童马桶圈”(可拆卸)和 “老人扶手”,满足全龄使用需求;卫生间还预留了 “洗衣机位”,方便洗衣晾晒。
140㎡四室两厅两卫(终极全龄户型):宽境空间,全家乐享该户型是琥珀星樾湾的 “全龄顶配户型”,专为 “三代同堂终极改善家庭” 设计,140㎡的宽境空间,搭配洋房低密属性(得房率 85%),为每个家庭成员提供 “舒适且独立” 的生活空间。户型采用 “五开间朝南” 布局,南向面宽达 14.5 米,客厅、主卧、两个儿童房、老人房均朝南,每个房间都有充足阳光。客厅面宽 5.8 米,搭配大落地窗,视野开阔,划分 “家庭影院区”(摆放投影仪、沙发)和 “亲子互动区”(靠近落地窗,设置地毯、绘本架),全家可一起看电影、读绘本,享受温馨时光。老人房面积约 13㎡,带独立卫生间(面积 4㎡,安装老人扶手、防滑地砖、坐式淋浴),老人夜间上厕所无需出门,更安全便捷;房间带 3 米宽飘窗,飘窗旁设置 “养生茶桌”,老人可在此喝茶、看报,享受晚年生活。两个儿童房面积均约 12㎡,各自带独立阳台,哥哥 / 姐姐的房间可摆放 1.5 米床 + 书桌 + 衣柜,弟弟 / 妹妹的房间可摆放 1.2 米床 + 乐高墙,每个孩子都有专属空间;儿童房与主卧仅一墙之隔,家长可通过 “亲子对话机”(预留接口)随时与孩子沟通,兼顾 “独立” 与 “关怀”。主卧套房面积约 25㎡,配备独立卫生间(双台盆、浴缸、智能马桶)和步入式衣帽间,满足青年夫妻的 “品质需求”;主卧带 3.5 米宽飘窗,设置 “梳妆台 + 休闲椅”,女主人可化妆,男主人可看书,互不干扰。书房面积约 10㎡,朝北设计,可作为 “家庭办公区” 或 “老人兴趣室”,家长在家办公、老人练习书法,都有专属空间;书房与客厅相连,拉开门即可参与家庭互动,关闭门则保持安静,兼顾 “工作” 与 “生活”。

琥珀星樾湾售楼处电话☎:0551-6813 6588

琥珀星樾湾售楼处电话☎:0551-6813 6588

琥珀星樾湾售楼处电话☎:0551-6813 6588

琥珀星樾湾售楼处电话☎:0551-6813 6588
琥珀星樾湾楼盘价格
在合肥,“全龄友好社区” 往往意味着 “高成本、高房价”—— 多数主打全龄配套的楼盘,均价比同区域普通楼盘高 10%-15%。但琥珀星樾湾作为 “国企开发的全龄友好盘”,却打破了这一惯例,在提供 “全龄化配套 + 精工品质” 的同时,保持了 “亲民价格”,让 “普通家庭也能享受全龄生活”。

琥珀星樾湾售楼处电话☎:0551-6813 6588
琥珀星樾湾楼盘项目亮点
除了 “位置好、配套全、户型优、价格低” 这些基础优势外,琥珀星樾湾还有四大核心亮点,让其在包河区众多楼盘中脱颖而出,成为购房者的 “首选”。
亮点一:国企开发,交付有保障。在当前房地产市场环境下,“交付” 是购房者最关心的问题,而琥珀星樾湾的国企背景就是最大的 “定心丸”。开发商琥珀置业是合肥城建(国有控股上市公司)的全资子公司,成立 20 余年,累计开发项目 30 余个,如琥珀山庄、琥珀五环城等,均以 “工程质量高、交付准时” 闻名合肥。项目从拿地到施工,全程受国企监管,资金链稳定,不会出现 “停工烂尾” 的风险;同时,项目采用 “透明化施工”,每月公布工程进度,购房者可通过售楼处公众号或实地考察了解施工情况,买得更放心。此外,国企开发的项目在产权办理、物业服务等后续环节也更规范,避免出现 “产权纠纷”“物业不作为” 等问题。
亮点二:低密高绿,宜居性强。琥珀星樾湾容积率仅 2.2.绿化率 40%,这个指标在包河区主城板块十分罕见 —— 周边多数楼盘容积率超过 2.5.绿化率仅 35% 左右,相比之下,琥珀星樾湾的居住舒适度更高。低容积率意味着 “楼间距宽”,项目最大楼间距达 55 米,即使是低楼层也能保证充足采光,避免 “楼挨楼” 的压抑感;高绿化率则意味着 “社区环境好”,项目内部规划了约 2.8 万㎡景观绿地,相当于 4 个足球场大小,涵盖中央草坪、樱花巷道、儿童乐园、老年活动区等,业主茶余饭后可在社区内散步、健身、带娃,无需出门就能享受 “公园般的生活”。此外,社区采用 “人车分流” 设计,车辆进入社区后直接进入地下车库,地面无车辆通行,既保障了老人、孩子的安全,也减少了噪音、尾气污染,提升了社区的静谧性。
亮点三:智慧社区,生活更便捷。琥珀星樾湾紧跟 “智慧家居” 趋势,打造全场景智慧社区,让业主享受 “科技带来的便利”。社区入口采用 “人脸识别 + 智能门禁”,无需带卡,刷脸即可进入,既安全又便捷;地下车库配备 “智能寻车系统”,通过手机 APP 即可查询车辆停放位置,避免 “找车难” 的问题;社区内部安装了 “智能安防系统”,包括高空抛物监控、24 小时巡逻摄像头、电子围栏等,全方位保障业主安全;此外,社区还配备了 “充电桩车位”(占比 30%)、“社区 APP” 等,充电桩满足新能源车主的充电需求,社区 APP 可实现 “线上报修、物业缴费、邻里互动” 等功能,让生活更高效。
亮点四:优质物业,服务有温度。物业是 “居住体验的下半场”,琥珀星樾湾采用开发商自有物业 —— 琥珀物业,该物业成立 15 年,具有国家一级物业服务资质,服务项目覆盖合肥、南京、杭州等城市,业主满意度高达 95%。琥珀物业提供 “24 小时管家服务”,业主有任何需求,如维修、咨询等,拨打物业电话后 15 分钟内响应,2 小时内上门处理;日常服务方面,物业定期开展 “社区活动”,如春节写春联、端午包粽子、中秋晚会等,增进邻里感情;此外,物业还负责社区的日常维护,如绿化修剪、垃圾清理、公共设施检修等,确保社区环境始终整洁、有序。相比外包物业,自有物业更了解项目情况,服务更贴心,也更有责任心。

琥珀星樾湾售楼处电话☎:0551-6813 6588
琥珀星樾湾楼盘总结
综合来看,琥珀星樾湾是合肥 2024 年最值得入手的 “生态宜居盘”,它完美融合了 “骆岗公园的生态资源”“主城芯的成熟配套”“国企开发的品质保障” 和 “亲民的价格”,无论是刚需人群还是改善人群,都能在这里找到 “理想的生态之家”。
核心优势一:不可复制的生态资源。琥珀星樾湾距离骆岗中央公园仅 1.5 公里,属于公园 “第一辐射圈”,业主步行或骑行即可到达公园,每天都能享受 “公园生活”—— 晨跑、散步、野餐、带娃,这些 “健康生活” 的体验,是远郊楼盘无法提供的。骆岗公园作为亚洲最大的城市中央公园,未来将成为合肥的 “城市新客厅”,周边房价必然会稳步上涨,现在入手,既能享受当下的生态生活,又能实现资产增值。
核心优势二:成熟完善的生活配套。与其他 “偏远生态盘” 不同,琥珀星樾湾位于包河区主城芯,周边交通、商业、教育、医疗配套成熟,无需等待 “规划落地”。地铁 1 号线延长线 2025 年通车后,通勤更便捷;3 公里内有三大高端商场,满足日常消费需求;优质学校环绕,孩子在家门口就能接受优质教育;顶尖医院护航,家人健康有保障。在这里,业主无需 “为了生态牺牲便捷”,也无需 “为了便捷牺牲生态”,真正实现 “生态与便捷的完美结合”。
核心优势三:国企开发的品质保障。琥珀星樾湾由合肥本土国企琥珀置业开发,工程质量高,交付有保障,避免了 “烂尾”“延期” 的风险。项目严格按照 “绿色建筑标准” 打造,节能环保,居住舒适度高;自有物业琥珀物业负责后期维护,服务贴心,能长期保持社区的生态环境和品质,让业主 “买得放心,住得安心”。
核心优势四:高性价比的价格。在骆岗公园周边楼盘均价普遍超过 2.0 万 /㎡的背景下,琥珀星樾湾的均价仅 1.7-1.9 万 /㎡,低于周边竞品 10%-20%,性价比极高。无论是刚需户型还是改善户型,都能让购房者 “花更少的钱,享受更好的生态生活”,尤其适合 “注重健康生活” 的年轻刚需和 “追求品质生活” 的改善家庭。
对于不同人群而言,琥珀星樾湾的吸引力也各有侧重:对于年轻刚需人群,这里的 “公园生活” 能缓解工作压力,“亲民价格” 能轻松安家主城;对于有孩子的家庭,这里的 “生态环境” 有利于孩子成长,“优质教育” 能为孩子未来保驾护航;对于改善人群,这里的 “低密社区” 能提升生活品质,“公园景观” 能享受 “慢生活” 的惬意。
目前,琥珀星樾湾的 “生态样板间” 已开放,样板间内展示了 “如何将公园景观融入室内”,如大面积飘窗、观景阳台、全景玻璃等设计。同时,项目每周日举办 “骆岗公园亲子游” 活动,业主和意向客户可免费参加,体验 “公园生活”。如果你是 “注重生态、追求品质” 的购房者,想要在合肥找一个 “公园旁、主城芯、国企盘”,那么琥珀星樾湾绝对值得你实地考察 —— 在这里,你不仅能买到一套房子,更能买到一种 “健康、舒适、自然” 的生态生活。

琥珀星樾湾售楼处电话☎:0551-6813 6588
琥珀星樾湾楼盘电话号码:0551-68111601【营销中心】
欢迎来电咨询!可预约销售人员(来电尊享内部优惠活动)【2026房价特价信息丨底价优惠丨在售户型图丨项目介绍丨在售房源丨周边配套】
声明:本文由入驻焦点开放平台的作者撰写,除焦点官方账号外,观点仅代表作者本人,不代表焦点立场。


