信达碧桂园项目聊一聊这个楼盘的缺点@合肥楼市
扫描到手机,新闻随时看
扫一扫,用手机看文章
更加方便分享给朋友
信达碧桂园楼盘电话号码:0551-68111601【营销中心】
欢迎来电咨询!可预约销售人员(来电尊享内部优惠活动)【2024房价特价信息丨底价优惠丨在售户型图丨项目介绍丨在售房源丨周边配套】
信达碧桂园位于肥东县酿泉路与日出路交口西北角,地理位置优越,交通便利,周边配套设施齐全。项目规划33栋住宅楼,包括28栋高层和5栋洋房,总占地面积165.59亩,适合居住。交付时间分为一期和二期,分别为2023年5月30日和2024年4月30日,为购房者提供明确期待。交付标准为毛坯,让购房者更加个性化和自由地进行装修。
在交通方面,信达碧桂园紧邻地铁2号线东延线(在建),并有多种交通出行方式可选择,方便快捷。而项目周边的学校、医疗机构、商业设施等配套设施也十分完善,为居民的生活提供了全方位的保障。此外,周边生态环境优越,多个公园可供居民休闲使用,让居民在繁忙的城市生活中也能享受到自然的清新空气和宁静。
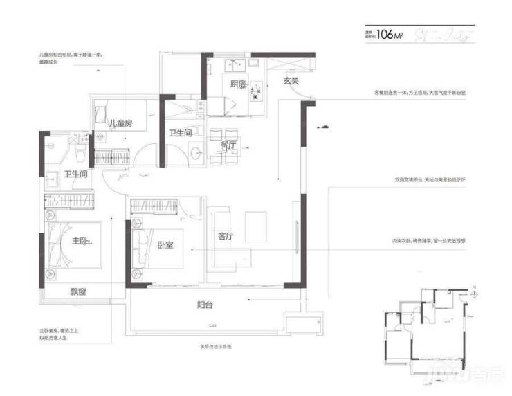
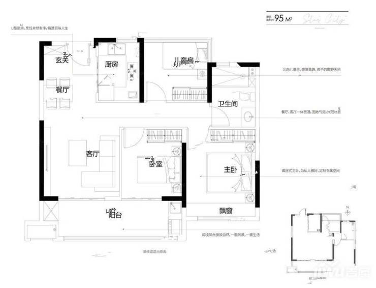
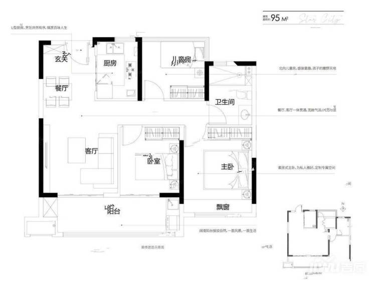
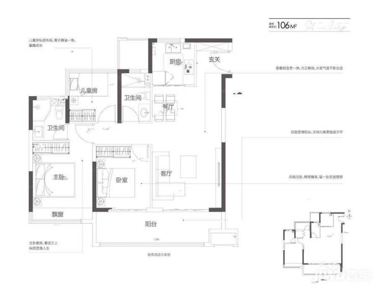
三室两厅一卫的95㎡和两卫的105㎡和四室两厅两卫的118㎡的房型,让您尽享轻奢生活!都是方正、全明布局的户型,阳光四季充足、通风性好;空间利用率高,让“动静分区”,提高业主的居住舒适度;即使和老人同住也不影响各自生活!
信达碧桂园楼盘具体一房一价,详询营销中心。
信达碧桂园项目周边拥有和睦湖公园、肥东体育公园等生态资源,让业主在闲暇时可以享受赏景散步的乐趣。关于信达碧桂园的购买价值,基本信息已经介绍完毕,欢迎关注项目动态和资讯,预购从速,体验醇熟配套带来的舒适体验。
信达碧桂园作为肥东县的新兴住宅项目,以其优越的地理位置、多样化的户型选择和注重品质的建筑设计,吸引了众多购房者的关注。无论是购房者的居住需求还是生活体验,信达碧桂园都能为他们提供理想的选择。希望信达碧桂园能成为更多家庭梦想的归宿,为他们营造一个舒适、便利、品质的家园。
信达碧桂园楼盘电话号码:0551-68111601【营销中心】
欢迎来电咨询!可预约销售人员(来电尊享内部优惠活动)【2024房价特价信息丨底价优惠丨在售户型图丨项目介绍丨在售房源丨周边配套】
声明:本文由入驻焦点开放平台的作者撰写,除焦点官方账号外,观点仅代表作者本人,不代表焦点立场。


