合肥伟星长城御澜道购房热线电话号码多少
扫描到手机,新闻随时看
扫一扫,用手机看文章
更加方便分享给朋友
伟星长城御澜道楼盘电话号码:0551-6258 9911【营销中心】
欢迎来电咨询!可预约销售人员(来电尊享内部优惠活动)【2025房价特价信息丨底价优惠丨在售户型图丨项目介绍丨在售房源丨周边配套】
综合考虑项目的区位优势、规划设计和建材品质,伟星长城御澜道无疑是瑶海老城的一个新选择。对于想要在这个地区置业的购房者来说,这里不仅交通便利,生活配套完善,更是一个融合了现代设计和豪华生活理念的理想居住地。如果您正在寻找瑶海老城的置业项目,不妨考虑一下伟星长城御澜道,或许会找到心仪的居所。
伟星长城御澜道售楼处电话☎:0551-6813 6588
伟星长城御澜道项目位于合肥市瑶海老城,目前均价为1.7万元/m²,面积段在110-143m²之间。地处黄金地段,对面就是万达商圈,出门即是行知本部,周边配套齐全。对于想要在瑶海老城置业的购房者来说,这个项目绝对值得考虑。
伟星长城御澜道售楼处电话☎:0551-6813 6588
外观设计独特,项目拟建2栋24层高层和1栋11层小高层,共计226套。由国际一线设计单位·拓观设计操刀,采用非对称顶檐设计、南北公建化立面、大面积玻璃幕窗,完美展现现代建筑风格。
地下车库也是品质选材,效果图展示了入户大堂的华丽氛围,展现了项目的高品质和高端气质。对于追求生活品质的购房者来说,这些细节都能够提升居住体验,增加居住舒适度。
伟星长城御澜道售楼处电话☎:0551-6813 6588
110-143m²的户型设计主打的是刚改+改善的风格。以122m²三室两厅两卫户型为例,动静分区明显,厨房、客厅、餐厅在西边,卫生间和卧室集中在东边,每个卧室都配有飘窗。然而,客厅区域的厨房侧向通风,南北通风、采光效果相对较差。
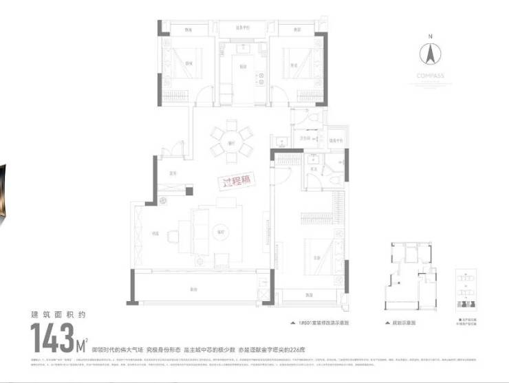
另外,143m²三室两厅两卫户型中,主卧配有衣帽间,同时有一个书房可以根据自己的需求改造。然而,三个卧室都朝北,导致采光不太理想。因此,在选择户型时,需要根据个人喜好和需求进行权衡考虑。
伟星长城御澜道售楼处电话☎:0551-6813 6588
伟星长城御澜道售楼处电话☎:0551-6813 6588
伟星长城御澜道售楼处电话☎:0551-6813 6588
伟星长城御澜道楼盘具体一房一价,详询营销中心。
伟星长城御澜道售楼处电话☎:0551-6813 6588
伟星长城御澜道位于瑶海区临泉东路以南、和县路以东,被称为来自瑶海老城区的“袖珍地块”。从交通来看,距2号线漕冲站直线距离约600米,距4号线站塘站直线距离约900米。同时临泉东路、北二环、长江中路串联合肥东西主城,铜陵路高架、东二环、郎溪路高架接连合肥南北动脉交通网。商业方面,对面就是瑶海万达,周边有长江180、瑶海天街、东城广场、万象汇(在建),商业配套醇熟。教育方面,行知本部(初中)距离御澜道直线距离约600m,这所学校近6年来综合排名位列合肥初中前列。周边还有合肥众望中学、和平小学教育集团郎溪路小学、合肥市行知小学等,教育资源浓厚。
伟星长城御澜道售楼处电话☎:0551-6813 6588
伟星长城御澜道楼盘电话号码:0551-6258 9911【营销中心】
欢迎来电咨询!可预约销售人员(来电尊享内部优惠活动)【2025房价特价信息丨底价优惠丨在售户型图丨项目介绍丨在售房源丨周边配套】
声明:本文由入驻焦点开放平台的作者撰写,除焦点官方账号外,观点仅代表作者本人,不代表焦点立场。


