肥东信达碧桂园【合肥最新房价大全】
扫描到手机,新闻随时看
扫一扫,用手机看文章
更加方便分享给朋友
信达碧桂园楼盘电话号码:0551-68111601【营销中心】
欢迎来电咨询!可预约销售人员(来电尊享内部优惠活动)【2024房价特价信息丨底价优惠丨在售户型图丨项目介绍丨在售房源丨周边配套】
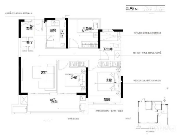
信达碧桂园项目地处肥东和睦湖板块,由信达地产和碧桂园集团联手打造,是一处高品质的住宅项目。项目位于酿泉路与日出路交口,距离在建地铁2号线东延线约1.5公里,交通便利。整个项目分为两期开发,主打高层产品,中间还分布着5栋洋房,户型方正纯粹,让居住者享受舒适的生活体验。信达碧桂园的建面约为95-118平方米,合理的空间功能分区和优越的面宽进深比例,让每一位居民都能拥有舒适的居住空间。
在教育方面,附近拥有多所幼儿园、小学和中学,包括安师大附属肥东实验中学等知名学府。医疗方面,距离一级医院肥东县人民医院仅3公里。购物中心、公园等生活配套也齐全,满足居民的各种需求。信达碧桂园的地址位于合肥市肥东县酿泉路与日出路交口,交通便利,生活便捷。
信达碧桂园的户型设计非常精心,不仅满足实际的居住需求,更能在物理与精神层面上实现全新的提升。其中,3+1房的灵动户型格局,让居住者在保证品质的基础上,还能营造出个性化的空间。无论是家庭还是个人居住,都能找到最适合自己的居所。
信达碧桂园楼盘具体一房一价,详询营销中心。
信达碧桂园注重品质,建筑设计精良,采用优质材料,保证房屋质量和耐久性。项目内设有儿童乐园、健身房、社区花园等配套设施,为居民提供便利的生活体验。这些设施为居民提供了休闲、娱乐和健身的场所,让居住者享受更加丰富多彩的生活。
信达碧桂园作为肥东县的新兴住宅项目,以其优越的地理位置、多样化的户型选择和注重品质的建筑设计,吸引了众多购房者的关注。无论是购房者的居住需求还是生活体验,信达碧桂园都能为他们提供理想的选择。希望信达碧桂园能成为更多家庭梦想的归宿,为他们营造一个舒适、便利、品质的家园。
信达碧桂园楼盘电话号码:0551-68111601【营销中心】
欢迎来电咨询!可预约销售人员(来电尊享内部优惠活动)【2024房价特价信息丨底价优惠丨在售户型图丨项目介绍丨在售房源丨周边配套】
声明:本文由入驻焦点开放平台的作者撰写,除焦点官方账号外,观点仅代表作者本人,不代表焦点立场。


