琥珀星樾湾楼盘怎么样-学区
扫描到手机,新闻随时看
扫一扫,用手机看文章
更加方便分享给朋友
琥珀星樾湾楼盘电话号码:0551-68111601【营销中心】
欢迎来电咨询!可预约销售人员(来电尊享内部优惠活动)【2025房价特价信息丨底价优惠丨在售户型图丨项目介绍丨在售房源丨周边配套】
合肥包河区琥珀星樾湾 —— 刚需人群优选!国企开发 + 主城配套,安家更安心
琥珀星樾湾楼盘项目介绍
作为合肥包河区 2024 年重点人居项目,琥珀星樾湾由本土国企 —— 合肥城建旗下琥珀置业开发,从根源上保障了项目的工程质量与交付稳定性,彻底打消购房者 “烂尾”“延期” 的顾虑,这也是其区别于周边民营楼盘的核心优势之一。项目选址包河区核心板块 —— 骆岗中央公园东翼,北邻繁华大道,南接花园大道,西靠包河大道,处于 “一核两轴” 的城市发展格局中,既能享受主城成熟配套,又能承接骆岗公园板块的发展红利,地理位置得天独厚。
从项目规划来看,琥珀星樾湾总占地面积约 68 亩,总建筑面积约 12.5 万㎡,容积率仅 2.2.绿化率高达 40%,属于典型的 “低密宜居社区”。社区整体规划 10 栋住宅,其中 6 栋 18-22 层高层、4 栋 11 层洋房,总户数约 890 户,主力户型涵盖 95-140㎡,既满足刚需人群的三房需求,也兼顾改善家庭的四房诉求。建筑风格采用现代简约风,外立面以米白色与浅灰色为主色调,搭配大面积玻璃幕墙,既保证了美观度,又提升了室内采光效果;社区内部采用 “一轴两园三巷” 的景观布局,中央景观轴贯穿南北,搭配两个主题花园与三条特色巷道,打造出 “推窗见绿、出门入园” 的居住体验。
值得一提的是,项目严格遵循国企开发的 “精工标准”,从建材选择到施工工艺都层层把关 —— 外墙采用保温一体板,隔音隔热效果优于普通涂料;窗户选用断桥铝双层中空玻璃,有效隔绝外界噪音;公共区域如大堂、电梯间均采用精装设计,提升业主归家仪式感。同时,项目预计 2026 年 6 月准时交付,目前工程进度已完成主体结构的 30%,售楼处公示了详细的施工计划与进度表,购房者可随时查询,充分体现了国企的透明与担当。

琥珀星樾湾售楼处电话☎:0551-6813 6588
琥珀星樾湾楼盘周边配套
对于购房者而言,“配套” 直接决定了未来的生活便捷度,而琥珀星樾湾在这一点上堪称 “满分”,交通、商业、教育、医疗、生态五大配套全方位覆盖,无需等待 “规划落地”,入住即可享受成熟生活。
交通配套方面,项目属于 “地铁 + 主干道” 双交通枢纽。距离地铁 1 号线延长线(规划中,预计 2025 年通车)花园大道站仅 800 米,步行约 10 分钟,未来可直达合肥南站、滨湖新区、淮河路步行街,轻松实现 “地铁通勤”;地面交通则依托包河大道、繁华大道两条城市主干道 —— 从项目自驾出发,5 分钟可上包河大道高架,15 分钟直达合肥南站,20 分钟抵达滨湖新区,30 分钟可到蜀山产业园,无论是日常通勤还是跨区出行,都十分便捷。此外,项目周边还有 14 路、27 路、52 路等 6 条公交路线,覆盖合肥火车站、政务区、经开区等区域,满足不同人群的出行需求。
商业配套方面,项目 “近享社区商业,远拥大型商圈”。社区自带约 5000㎡沿街商业,规划引入便利店、生鲜超市、药店、餐饮店等便民业态,下楼即可解决 “买菜、购物、吃饭” 等日常需求;3 公里范围内,有悦方 ID MALL、百大心悦城、加侨国际广场三大大型商场,涵盖购物、餐饮、影院、亲子娱乐等全业态 —— 悦方 ID MALL 的永辉超市可满足大宗采购,百大心悦城的亲子乐园适合带娃休闲,加侨国际广场的美食街则是朋友聚餐的好去处,无需长途奔波,即可享受一站式消费体验。
教育配套方面,项目周边 3 公里内有 5 所幼儿园、3 所小学、2 所中学,形成 “15 年一贯制” 教育圈。其中,距离项目最近的是包河区实验幼儿园(约 500 米),是公办一级幼儿园,师资稳定、收费合理;小学方面,项目划片范围大概率覆盖屯溪路小学(滨湖校区),该校是合肥知名公办小学,教学质量位列包河区前列,步行仅需 15 分钟;中学则有合肥市第四十八中学(望湖校区),距离项目约 2 公里,是合肥重点初中,历年中考成绩稳居全市前十。对于有孩子的家庭而言,无需 “孟母三迁”,在家门口就能享受优质教育资源,既省去了接送的麻烦,也给孩子更多休息时间。
医疗与生态配套同样亮眼。医疗方面,项目 2 公里内有包河区人民医院(二级综合医院),日常感冒、发烧、体检均可在此解决;5 公里内有安徽省立医院南区(三级甲等医院),是合肥顶尖的综合医院,可满足大病诊疗需求,为家人健康保驾护航。生态方面,项目西距骆岗中央公园仅 1.5 公里,该公园是亚洲最大的城市中央公园,总面积约 12.7 平方公里,涵盖湿地、花海、运动场馆等,周末带家人散步、野餐、运动都十分惬意;此外,项目北邻十五里河生态公园,沿河岸打造了健身步道,适合晨跑、夜跑,真正实现 “把家安在公园里”。

琥珀星樾湾售楼处电话☎:0551-6813 6588
琥珀星樾湾楼盘户型解析
户型是居住体验的 “核心载体”,琥珀星樾湾针对不同人群的需求,设计了 95㎡、110㎡、125㎡、140㎡四种主力户型,每种户型都做到了 “空间利用率高、采光通风好、布局合理”,尤其契合刚需与改善家庭的居住需求。
95㎡三室两厅一卫(刚需首选) 是项目最受欢迎的户型,专为年轻上班族、新婚夫妻设计。该户型采用 “三开间朝南” 布局,客厅、主卧、次卧均朝南,南向面宽达 9.8 米,每天上午 9 点至下午 4 点都有充足阳光,即使在冬季也能保持室内温暖;客厅连接 3.6 米宽的观景阳台,阳台进深 1.8 米,既可作为晾晒区,也可摆放休闲桌椅,打造 “空中花园”;主卧面积约 12㎡,带 270° 飘窗,不仅增加了使用空间,还能俯瞰社区景观;厨房采用 U 型设计,操作台面长达 2.8 米,洗菜、切菜、炒菜动线合理,两人同时操作也不拥挤;卫生间做到 “干湿分离”,洗漱区与淋浴区分开,避免地面潮湿打滑,适合有老人或孩子的家庭。整体来看,95㎡户型没有浪费面积,每个空间都能充分利用,首付仅需 48-54 万,月供约 6000 元,完全在刚需人群的预算范围内,实现 “一步到位” 的三房梦想。
125㎡四室两厅两卫(改善主力) 则针对三口之家、二胎家庭设计,空间更宽敞,功能更齐全。该户型采用 “四开间朝南 + 南北通透” 布局,南向面宽达 12.2 米,客厅与餐厅形成 “竖厅” 设计,南北对流,夏季无需开空调也能保持凉爽;客厅连接 4.2 米宽的阳台,阳台与次卧打通,形成 “贯通式阳台”,长度约 7.8 米,可分为 “晾晒区” 与 “休闲区”,一边晾晒衣物,一边摆放跑步机或茶桌,互不干扰;主卧为 “套房设计”,面积约 18㎡,带独立卫生间与步入式衣帽间,独立卫生间配备浴缸,下班后可泡澡放松,衣帽间可容纳夫妻双方的衣物,提升居住私密性与舒适度;书房面积约 8㎡,既可作为办公区,也可改造成儿童房或老人房,灵活满足家庭不同阶段的需求;厨房为 L 型设计,连接生活阳台,可放置洗衣机与杂物,保持厨房整洁。125㎡户型做到了 “动静分区”,卧室、书房位于内侧,客厅、餐厅、厨房位于外侧,家人休息时不会被客厅噪音打扰,完美契合改善家庭 “既要空间大,又要私密性” 的需求。
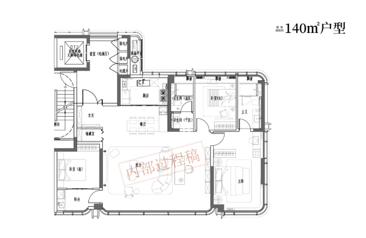
此外,110㎡三室两厅两卫户型适合 “刚需升级” 人群,比 95㎡多一个卫生间,主卧带独立卫浴,提升居住舒适度;140㎡四室两厅两卫洋房户型则是 “终极改善” 之选,洋房总高 11 层,一梯两户,得房率高达 85%(高层得房率约 78%),客厅采用 “横厅设计”,面宽达 5.8 米,搭配大落地窗,视野开阔,适合追求品质生活的高净值家庭。无论选择哪种户型,琥珀星樾湾都做到了 “明厨明卫、南北通透、无暗间”,让每个业主都能享受舒适的居住体验。

琥珀星樾湾售楼处电话☎:0551-6813 6588

琥珀星樾湾售楼处电话☎:0551-6813 6588

琥珀星樾湾售楼处电话☎:0551-6813 6588

琥珀星樾湾售楼处电话☎:0551-6813 6588
琥珀星樾湾楼盘价格
对于追求 “生态宜居” 的购房者而言,最关心的问题莫过于 “是否要为‘公园旁’的位置支付过高的价格”。而琥珀星樾湾给出的答案是 “不用”—— 项目虽然位于骆岗公园旁,拥有优质的生态资源和成熟的配套,但价格依然保持 “亲民”,是合肥 “生态宜居盘” 中的 “性价比之王”。
从区域生态盘价格来看,骆岗公园周边 2024 年新房均价约 2.0-2.4 万 /㎡,其中距离公园 1-2 公里范围内的楼盘均价已达 2.2-2.4 万 /㎡,而琥珀星樾湾距离骆岗公园仅 1.5 公里,均价却仅 1.7-1.9 万 /㎡,低于周边竞品 10%-20%。具体来看,刚需户型(95㎡、110㎡)单价 1.7-1.8 万 /㎡,总价约 160-198 万;改善户型(125㎡、140㎡)单价 1.8-1.9 万 /㎡,总价约 225-266 万。这个价格在 “骆岗公园旁” 的楼盘中堪称 “洼地”—— 对比周边同位置的生态盘,如 XX 公园府的 95㎡户型总价约 180-190 万,琥珀星樾湾能省 20-2 万;对比滨湖新区的生态盘,那些区域的均价已达 1.9-2.2 万 /㎡,但距离骆岗公园更远,配套也不如琥珀星樾湾成熟,买琥珀星樾湾相当于 “用更低的价格,买更好的位置和配套”。
更重要的是,琥珀星樾湾的 “价格” 与 “价值” 完全匹配,甚至 “价值远超价格”。首先,“骆岗公园旁” 的位置具有 “不可复制性”—— 骆岗公园是亚洲最大的城市中央公园,未来将成为合肥的 “城市新客厅”,周边土地资源稀缺,随着公园的完善,房价必然会稳步上涨,现在以 1.7-1.9 万 /㎡的价格入手,未来增值空间巨大;其次,项目的 “生态价值” 无法用价格衡量 —— 每天呼吸新鲜空气,饭后在公园散步,周末带孩子在公园玩耍,这些 “健康生活” 的体验,是远郊楼盘无法提供的,而琥珀星樾湾让业主 “花普通楼盘的钱,享受公园豪宅的生态体验”;再次,项目的 “国企品质” 保障了 “房屋价值”—— 国企开发的项目工程质量高,交付有保障,后期物业维护好,房子不易贬值,甚至会 “保值增值”。
此外,项目针对 “生态宜居” 需求的购房者,推出了 “专属优惠政策”,进一步降低购房成本。目前,购买任何户型均可享受 “认筹交 1 万抵 3 万” 优惠;对于 “注重健康生活” 的购房者,如教师、医生、运动员等,凭相关证件可额外享 1% 房款优惠;老带新政策方面,老业主推荐新客户成交,老业主可获赠 “骆岗公园年卡 + 2 年物业费”,新客户可额外享 0.5% 房款优惠;此外,项目每月推出 5 套 “景观房特价房”,主要为高楼层、视野好的户型,单价可低至 1.65 万 /㎡,让购房者以更低的价格享受 “公园景观”。
从 “性价比” 来看,琥珀星樾湾在合肥 “生态宜居盘” 中几乎没有竞争对手 —— 它既有 “骆岗公园旁” 的优质生态资源,又有 “主城芯” 的成熟配套,还有 “国企开发” 的品质保障,而价格却仅为 1.7-1.9 万 /㎡,无论是刚需人群还是改善人群,都能在这里 “花更少的钱,享受更好的生态生活”。

琥珀星樾湾售楼处电话☎:0551-6813 6588
琥珀星樾湾楼盘项目亮点
作为合肥包河区 “智慧社区新标杆”,琥珀星樾湾的亮点远不止 “智慧配置”—— 它将 “国企保障、智慧生态、人性化设计、区域潜力” 融为一体,形成了 “不可复制的核心竞争力”,让其在众多智慧盘中脱颖而出。
亮点一:国企 + 智慧双保障,避免 “智慧系统烂尾”这是琥珀星樾湾最核心的亮点,也是区别于民营智慧盘的关键。当前市场上,部分民营楼盘为了吸引购房者,宣称 “打造智慧社区”,但交房后却因资金问题停用智能系统、不再维护设备,导致 “智慧社区” 沦为 “摆设”。而琥珀星樾湾由国企琥珀置业开发,资金链稳定,不仅在建设阶段投入足额资金打造智慧系统,还专门成立了 “智慧社区运维团队”,负责后期设备检修、系统升级、功能优化,确保智慧配置 “长期可用、越用越优”。比如,社区的人脸识别系统每半年会进行一次算法升级,提升识别准确率;全屋智能系统会根据业主反馈,新增 “场景模式”(如 “老人模式”“儿童模式”);甚至后期还会引入新的智慧功能(如社区无人配送、智能垃圾分类),让智慧生活 “持续升级”。这种 “国企兜底” 的保障,让购房者无需担心 “智慧系统后期失效”,买得更放心。
亮点二:全场景智慧联动,而非 “单一智能设备堆砌”多数智慧盘的 “智能” 停留在 “单一设备控制”(如只能控制灯光、窗帘),而琥珀星樾湾实现了 “全场景智慧联动”,让不同智能系统之间 “互联互通”,形成 “智慧生态”。比如,当业主通过人脸识别进入社区时,系统会自动触发 “归家模式”—— 地下车库的智能寻车系统会提前推送车位信息,家中的智能窗帘会自动拉开、空调会自动调节到适宜温度、热水器会开始预热;当业主出门时,一键触发 “离家模式”,系统会自动关闭所有家电、锁好门窗,同时联动社区安防系统,加强对房屋周边的巡逻监测;甚至当社区智能安防系统检测到异常情况(如高空抛物)时,会同步推送信息到周边业主的手机 APP,提醒大家注意安全。这种 “全场景联动”,让智慧生活从 “被动控制” 升级为 “主动服务”,真正实现 “科技以人为本”。
亮点三:智慧配置 “人性化”,老人小孩都能轻松使用很多智慧盘的智能系统操作复杂,老人、小孩难以上手,导致 “智慧生活” 与部分家庭成员 “脱节”。而琥珀星樾湾在设计智慧系统时,充分考虑 “全年龄段适配”,做到 “操作简单、功能实用”。比如,社区入口的人脸识别系统,除了刷脸外,还保留了 “门禁卡刷卡” 功能,方便不习惯刷脸的老人;家中的智能控制面板,除了 APP 控制、语音控制,还保留了 “物理按键”,老人可直接按按键控制灯光、空调;社区 APP 专门推出 “老年版界面”,字体更大、功能更简洁,仅保留 “物业报修、在线缴费、家人定位” 等核心功能,方便老人操作;甚至儿童乐园的智能设备(如智能摇摇车),支持 “家长 APP 扫码支付”,避免孩子携带现金的风险。这种 “人性化设计”,让智慧生活覆盖所有家庭成员,真正实现 “全家共享智慧便捷”。
亮点四:智慧 + 生态融合,打造 “绿色智慧社区”琥珀星樾湾没有将 “智慧” 与 “生态” 割裂,而是将两者结合,打造 “绿色智慧社区”。比如,社区的 “智能照明系统” 采用太阳能路灯,白天吸收太阳能,晚上自动亮起,节省电能;“智能灌溉系统” 会根据天气情况、土壤湿度,自动调节灌溉量,避免水资源浪费;“智能新风系统” 会实时监测室内外空气质量,优先引入室外新鲜空气(如骆岗公园方向的洁净空气),减少空调使用,节能环保;甚至社区的 “智能垃圾分类箱”,会通过 APP 提醒业主 “正确分类垃圾”,并给予 “积分奖励”(积分可兑换物业费减免、生活用品),引导业主养成环保习惯。这种 “智慧 + 生态” 的融合,让智慧生活不仅 “便捷”,还 “绿色健康”,契合当下 “低碳生活” 的趋势。
亮点五:智慧配置与区域潜力叠加,增值空间更大
琥珀星樾湾位于骆岗中央公园东翼,承接骆岗公园的 “城市新客厅” 发展红利,区域潜力巨大。而 “智慧社区” 作为当前房地产市场的 “优质标签”,本身就具有 “增值属性”—— 同等区域内,智慧社区的房价涨幅通常比普通社区高 5%-10%。未来,随着骆岗公园的完善、地铁 1 号线延长线的通车,琥珀星樾湾的 “智慧配置 + 区域潜力” 将形成 “叠加效应”,增值空间远超普通楼盘。比如,周边普通楼盘可能因区域发展涨到 2.2 万 /㎡,而琥珀星樾湾作为 “国企智慧盘”,可能涨到 2.5 万 /㎡以上,成为 “区域增值标杆”。对于购房者而言,选择琥珀星樾湾,不仅能享受智慧生活,还能获得 “资产增值” 的红利,一举两得。

琥珀星樾湾售楼处电话☎:0551-6813 6588
琥珀星樾湾楼盘总结
6.1 不同家庭需求匹配:精准契合全周期健康需求
琥珀星樾湾的绿色健康属性,能够精准匹配不同家庭在不同生命周期的健康需求,无论是刚需年轻家庭、二胎家庭,还是改善型家庭,都能在这里找到 “理想的健康之家”。
刚需年轻家庭:95㎡刚需健康户型,满足 “小三房” 的实用需求,环保建材(E0 级地板、立邦乳胶漆)保障新婚夫妻和未来孩子的居住健康,避免 “装修污染” 对身体的影响;首付 48 万、月供 6000 元,符合年轻家庭的预算承受能力,无需 “掏空六个钱包”;周边的地铁 1 号线(2025 年通车)、社区生鲜超市、休闲健身配套,适配年轻夫妻的快节奏生活 —— 早上地铁通勤上班,晚上社区健身或超市采购,周末带未来孩子到骆岗公园散步,轻松享受健康便捷的生活。
二胎家庭:125㎡改善健康户型,四室设计满足 “两个孩子 + 父母帮忙带娃” 的居住需求,两个儿童房均朝南,采光充足、空间独立,避免孩子因居住拥挤产生矛盾;老人房靠近入户门和公共卫生间,方便老人生活,紧急呼叫按钮和无障碍设计保障老人安全;社区内的儿童区、老年区、健身区,让每个家庭成员都有专属活动空间 —— 孩子在儿童区玩耍,老人在老年区健身,父母在健身区运动,全家各得其所,同时社区的绿色环境和健康配套,也能让孩子在健康的环境中成长,减少疾病风险。
改善型家庭:140㎡终极健康户型,11 层洋房的低密属性、5.8 米宽落地窗的生态视野、全屋新风系统的健康配置,满足改善家庭对 “高品质健康生活” 的追求;主卧套房 + 独立阳台 + 阳光书房,提供充足的私人空间,适合工作压力大的高净值人群放松身心;骆岗中央公园的远景和社区内的高绿化率,让居住体验堪比 “公园豪宅”;国企运维保障绿色配套长期升级,确保房子 “越住越舒适、越住越保值”,是改善家庭 “终极置业” 的理想选择。
6.2 市场竞争力:绿色健康盘里的 “性价比天花板”
在合肥包河区的绿色健康盘市场中,琥珀星樾湾凭借 “国企保障、高性价比、全配套” 的组合优势,成为 “性价比天花板”,远超同类竞品。当前包河区的绿色健康盘,主要存在三大痛点:一是 “民营盘减配风险”,部分民营绿色盘交付时存在建材品牌更换、健康配套停用等问题,业主维权困难;二是 “高端盘价格过高”,定位豪宅的绿色盘均价超 2.4 万 /㎡,刚需和普通改善家庭难以承受;三是 “远郊盘配套不足”,部分绿色盘位于远郊,周边缺乏商业、医疗、教育配套,入住后生活不便。而琥珀星樾湾完美解决了这些痛点:
国企开发,无减配风险:琥珀置业作为合肥本土国企,资金链稳定,工程质量和交付有保障,绿色健康配置全程透明,避免 “概念炒作” 和 “交付减配”;
均价 1.7-1.9 万 /㎡,性价比高:低于周边同类绿色盘 10%-20%,且所有绿色健康配置均为标配,无需额外付费,刚需和改善家庭均能承受;
主城核心,全配套覆盖:位于包河区主城,周边地铁、商业、教育、医疗、生态配套成熟,入住即可享受便捷健康生活,无需等待 “规划落地”。
根据售楼处数据,项目自开盘以来,绿色健康户型的销量占比达 80%,其中 30-45 岁的家庭购房者占比超 70%,这些人群正是 “健康生活的核心需求者”,他们更关注居住的健康属性和性价比,而琥珀星樾湾恰好满足了这些需求。此外,项目的 “老带新成交率” 达 30%,很多业主因 “满意绿色健康的居住体验”,主动推荐亲友购房,足以证明市场对项目的认可。
6.3 长期生活价值:不止是房子,更是健康生活方式
选择琥珀星樾湾,不仅是购买一套房子,更是选择一种 “绿色健康的生活方式”,这种生活方式将长期影响业主的身心健康和生活品质,同时带来 “资产增值” 的红利。从 “日常生活” 来看,业主每天都能享受绿色健康的体验:早上到十五里河生态公园晨跑,呼吸富含负氧离子的新鲜空气;白天室内阳光充足,新风系统保持空气流通,避免雾霾和甲醛污染;中午在厨房使用净水器过滤的水烹饪,享受健康饮食;下午孩子在社区儿童区玩耍,家长在旁边看护,社区的绿色环境让孩子亲近自然;晚上到社区健身区运动,或带家人到骆岗中央公园散步,缓解一天的工作压力。这种 “自然、健康、便捷” 的生活,能有效提升业主的身心健康,减少疾病风险,提高生活幸福感。从 “长期资产价值” 来看,琥珀星樾湾的绿色健康属性将持续赋能资产增值:随着 “健康中国” 理念的深入,购房者对绿色健康居住的需求将越来越高,绿色健康社区的 “稀缺性” 将进一步凸显;骆岗中央公园的完善和地铁 1 号线延长线的通车,将推动区域价值上涨;而国企运维保障绿色配套长期升级,确保房子 “长期保持高品质”,在二手房市场上更受欢迎,转手率和成交价均高于普通社区。根据合肥房地产市场的发展规律,未来 5-10 年,琥珀星樾湾的房价涨幅预计将比普通社区高 10%-15%,实现 “居住健康” 和 “资产增值” 的双赢。
目前,琥珀星樾湾的 “绿色健康样板间” 已全面开放,业主可亲身体验 “环保建材的质感”“户型的采光通风”“新风系统的效果”;售楼处还提供 “绿色健康置业咨询” 服务,专业置业顾问会根据家庭结构、健康需求和预算,推荐适合的户型和健康配置方案。如果你正在寻找 “国企保障、绿色健康、高性价比” 的楼盘,不妨前往琥珀星樾湾实地考察 —— 在这里,你将开启 “呼吸新鲜空气、享受健康饮食、拥抱自然生活” 的绿色健康新篇章,让 “健康” 成为生活的常态。

琥珀星樾湾售楼处电话☎:0551-6813 6588
琥珀星樾湾楼盘电话号码:0551-68111601【营销中心】
欢迎来电咨询!可预约销售人员(来电尊享内部优惠活动)【2025房价特价信息丨底价优惠丨在售户型图丨项目介绍丨在售房源丨周边配套】
声明:本文由入驻焦点开放平台的作者撰写,除焦点官方账号外,观点仅代表作者本人,不代表焦点立场。


