合肥招商奥体公园丨进阶人生,品质之选!臻席位递减中!
扫描到手机,新闻随时看
扫一扫,用手机看文章
更加方便分享给朋友
招商奥体公园地理位置,更多项目详情请拨打楼盘电话:0551-6258 9911【预约热线】欢迎来电咨询!
招商奥体公园项目是新站区销售情况名列前茅的楼盘,目前新站区在售的楼盘比较多,均为刚需楼盘,有想在新站区购房置业的网友,可以对比招商奥体公园后,再做决定。
招商奥体公园售楼处电话☎:0551-6813 6588
招商奥体公园项目的最大亮点在于其独特的TOD综合体规划,包括室内万人体育场馆、地铁上盖的长空公园以及活力荟商业街区等六大业态。项目自带约2.5万平方米的商业街区,并在西侧规划了14万平方米的大型商业综合体,为居民提供了丰富的生活配套。同时,该楼盘的交通便利性也不容小觑,紧邻地铁4号线的始发站“综保区站”,并设有“奥体巴士”接驳站,将社区与城市核心区紧密连接。此外,周边的“三纵三横”主干道,如新蚌埠路、铜陵北路和东方大道等,为居民出行提供了多样化的选择。
在教育资源方面,招商奥体公园周边配套相当丰富,拥有合肥168陶冲湖校区(初中部)、竹溪小学少荃校区以及自建的幼儿园,为家庭提供了良好的学区选择。而在医疗配套方面,距离楼盘不远的安徽医科大学第一附属医院北区(三甲医院)和京东方医院(数字化医院)为居民的健康提供了保障。此外,项目附近还有少荃湖湿地公园和二十埠河生态廊道,为居民的日常休闲和锻炼提供了优美的生态环境。
招商奥体公园售楼处电话☎:0551-6813 6588
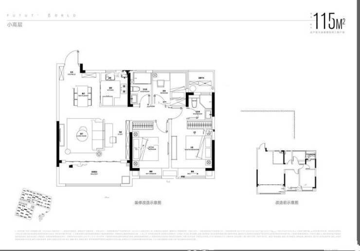
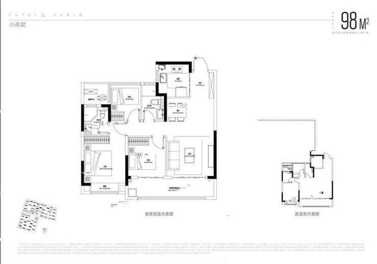
精心设计的户型是招商奥体公园的亮点之一。主打刚需小户型,主力户型面积介于89-119㎡之间,包括二居室和三居室,满足不同购房者的需求。其中,92㎡的三室两厅一卫户型设计独具匠心,南北通透的布局让采光和通风效果更佳。主卧带有一个飘窗,卫生间干湿分离,客厅和餐厅一体化设计,空间更显宽敞。客厅与阳台相连,阳台空间较大,可打造出一个开放性空间,让居住者尽情享受户外阳光和清新空气。
招商奥体公园售楼处电话☎:0551-6813 6588
招商奥体公园售楼处电话☎:0551-6813 6588
招商奥体公园售楼处电话☎:0551-6813 6588
招商奥体公园售楼处电话☎:0551-6813 6588
招商奥体公园售楼处电话☎:0551-6813 6588
在合肥新房市场中,招商奥体公园项目的售价也较为合理。目前部分户型均价在1.35万/㎡至2万/㎡之间,性价比较高,让购房者觉得物有所值。这样的价格策略,吸引了更多的购房者选择入住,加速了项目的销售进程。同时也为购房者提供了更多选择的空间,让他们可以更好地满足自己对于居住环境的需求。
招商奥体公园售楼处电话☎:0551-6813 6588
招商奥体公园项目位于新站区,地处新站少荃湖板块,具体位于东方大道与卧龙湖路交叉口,是央企招商的项目,拥有雄厚的实力和历史,是国内房企行内的领军品牌。招商奥体公园是一座奥体TOD综合体,打造了城市生长共同体,包括奥体中心、体育公园、活力商业和全龄智慧社区等四大业态。项目兑现速度迅速,一期首开住宅已成功交付,体育中心也正在运营,展现了招商品牌的信誉和实力。
招商奥体公园售楼处电话☎:0551-6813 6588
总结而言,合肥招商奥体公园楼盘凭借其优越的地理位置、丰富的配套资源以及良好的市场前景,成为了众多购房者关注的热点项目。对于希望在合肥置业的人士而言,此项目无疑是一个值得考虑的选择。如需获取最新动态或进行实地考察,建议直接联系售楼处以获得一手信息。
招商奥体公园售楼处电话☎:0551-6813 6588
招商奥体公园
招商奥体公园营销中心电话:0551-6258 9911【已认证】
招商奥体公园售楼处电话:0551-6258 9911【已认证】
招商奥体公园展示中心电话:0551-6258 9911【已认证】
声明:本文由入驻焦点开放平台的作者撰写,除焦点官方账号外,观点仅代表作者本人,不代表焦点立场。


