合肥招商奥体公园:“好房子”突围赛 这个项目走在了合肥前列
扫描到手机,新闻随时看
扫一扫,用手机看文章
更加方便分享给朋友
招商奥体公园楼盘电话号码:0551-6258 9911【营销中心】
欢迎来电咨询!可预约销售人员(来电尊享内部优惠活动)
【2024房价特价信息丨底价优惠丨在售户型图丨项目介绍丨在售房源丨周边配套】
百万方TOD,赋能城市副中心发展 每一座城市副中心的崛起,都伴随着标杆性项目的诞生。招商奥体公园,坐落于合肥少荃湖城市副中心核心区,卧龙湖路与东方大道交汇处,是百年央企招商蛇口倾力打造的安徽首座百万方奥体TOD综合体旗舰大盘,总占地面积约49万㎡,建筑面积超100万㎡,规划总户数5746户,以“赋能城市发展、打造宜居标杆”为理念,成为少荃湖副中心崛起的核心引擎。项目涵盖高层、小高层、洋房等多种建筑形态,容积率1.6-2.0,绿化率40%,整合六大核心业态,包括省内最大室内万人体育场馆、9万方地铁上盖长空公园、2.5万方活力荟TOD商业街区等,不仅为业主提供全维优质生活配套,更带动区域价值持续升级,成为合肥下一个价值高地的核心载体。
招商奥体公园售楼处电话☎:0551-6813 6588
1. 交通配套:地铁直达,通勤无忧
对于刚需购房者而言,交通便利性是首要考量因素。招商奥体公园紧邻地铁 4 号线始发站综保区站,直线距离仅 554 米,步行 7 分钟即可进站,30 分钟直达政务区、滨湖新区等核心商圈,彻底解决 “通勤难” 问题。此外,项目周边 “三纵三横” 交通路网环绕,铜陵北路、文忠路高架快速连接主城,东方大道、淮海大道贯通区域,无论是自驾上班、周末出游,还是乘坐公交(周边 1km 内有 6 个公交站),都能实现高效出行。奥体巴士的同步运营,进一步提升了出行便捷度,串联社区与地铁口、学校、商业中心,让老人和孩子出行更安全、更省心。
2. 教育配套:168 学区加持,孩子教育有保障
教育资源是刚需家庭的核心痛点之一,而招商奥体公园在这方面堪称 “刚需福音”。项目直线 3km 范围内涵盖 14 所幼儿园、4 所优质小学(合肥市伦先小学、合肥市竹溪小学少荃湖校区等)及 5 所重点中学(合肥一六八陶冲湖中学、合肥一六八教育集团东校区等),其中 168 中学作为合肥名校,师资力量雄厚、教学质量顶尖,让孩子在家门口就能享受优质教育资源。项目自建幼儿园,未来还将有南门小学少荃湖分校、四十二中少荃湖分校等规划落地,从幼儿园到高中的全龄教育链,不仅解决了孩子上学问题,更让房产具备强大的保值增值能力,为刚需家庭的未来保驾护航。
3. 医疗配套:三甲医院在侧,健康有保障
刚需家庭同样重视医疗配套的便捷性。项目周边 3km 范围内拥有安徽医科大学第一附属医院北区(三甲)、合肥京东方医院两大优质医疗资源,其中京东方医院距离项目仅 1.9km,日常就医、健康体检极为便捷。三甲医院的专业医疗服务,为业主的健康提供全方位保障,无论是孩子感冒发烧,还是老人日常就医,都能快速获得优质医疗服务,让居住更安心。
4. 商业与生态:繁华与自然兼得,提升生活幸福感
商业配套方面,项目自带 2.5 万方活力荟 TOD 商业街区,规划有大型商超、特色餐饮、休闲娱乐、母婴用品店等多元业态,满足日常购物、餐饮、休闲需求;周边 3km 内还有 4 个成熟商场,无论是日常买菜、逛街购物,还是朋友聚会,都无需远行。生态环境方面,项目紧邻 9 万方地铁上盖长空公园,已正式运营并成为合肥新晋打卡地,业主日常可以散步、跑步、健身,享受自然生态;周边还有少荃湖湿地公园、二十埠生态廊道等 6 个公园,40% 的超高绿化率让社区内部绿意盎然,推窗见绿,呼吸间尽是鲜氧,在城市核心区享受难得的生态宜居环境,极大提升了刚需家庭的居住幸福感。
招商奥体公园售楼处电话☎:0551-6813 6588
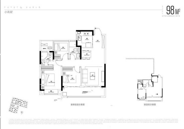
项目针对刚需家庭需求,推出 89-104㎡三房两厅一卫 / 两卫户型,以科学布局、高空间利用率,满足刚需家庭的居住需求:
89㎡三房两厅一卫:刚需入门级户型,总价低至 120 万元 / 套,户型方正,南北通透,客厅与餐厅一体化设计,搭配观景阳台,采光通风俱佳;主卧配备飘窗,增加使用空间;卫生间干湿分离,提升使用效率,适合年轻夫妻或三口之家。
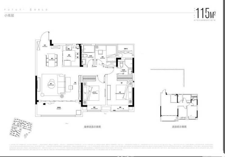
104㎡三房两厅两卫:刚需升级户型,总价约 150-170 万元 / 套,空间更宽敞,主卧采用套房设计,配备独立卫生间,私密性更强;客厅宽景阳台连通次卧,采光更好,空间感更足;厨房 L 型布局,操作空间充足,适合对空间有一定要求的刚需家庭。
所有户型均为精装交付,选用一线装修品牌,细节之处尽显品质,省去装修烦恼,交付即可拎包入住,大大降低刚需家庭的置业成本与时间成本。
招商奥体公园售楼处电话☎:0551-6813 6588
招商奥体公园售楼处电话☎:0551-6813 6588
招商奥体公园售楼处电话☎:0551-6813 6588
招商奥体公园售楼处电话☎:0551-6813 6588
招商奥体公园售楼处电话☎:0551-6813 6588
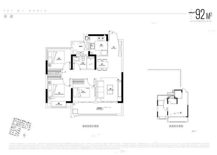
项目刚需产品价格区间为 12200-14000 元 /㎡,其中 89㎡户型总价低至 120 万元 / 套,92㎡户型约 146 万元 / 套,104㎡户型约 150-170 万元 / 套,100㎡户型约 120 万元 / 套(部分特价房源)。这样的价格在合肥楼市极具竞争力,尤其对于刚需购房者而言,仅需 120 万起就能入手精装三房,享受地铁 4 号线、168 学区、全维商业与生态配套,性价比远超同区域其他刚需盘。项目支持公积金贷款,首付比例最低可至 20%,首付仅需 24 万元起,大大降低了刚需家庭的置业门槛,让年轻人轻松实现 “在合肥安家” 的梦想。此外,项目还推出多重购房优惠政策,如限时特价房、购房补贴等,进一步提升性价比。
招商奥体公园售楼处电话☎:0551-6813 6588
低密生态,舒适宜居:1.6-2.0 低容积率 + 40% 超高绿化率 + 9 万方长空公园,打造城市核心区罕见的低密生态住区,居住舒适度远超同类项目;
全能配套,生活便捷:百万方 TOD 综合体规划,集体育、商业、生态、教育、医疗于一体,不出社区即可满足所有生活需求,真正实现 “15 分钟全能生活圈”;
央企品质,精装交付:招商蛇口百年央企背书,施工质量与建筑品质有口皆碑,全屋精装交付,选用一线品牌,省去装修烦恼,居住更省心;
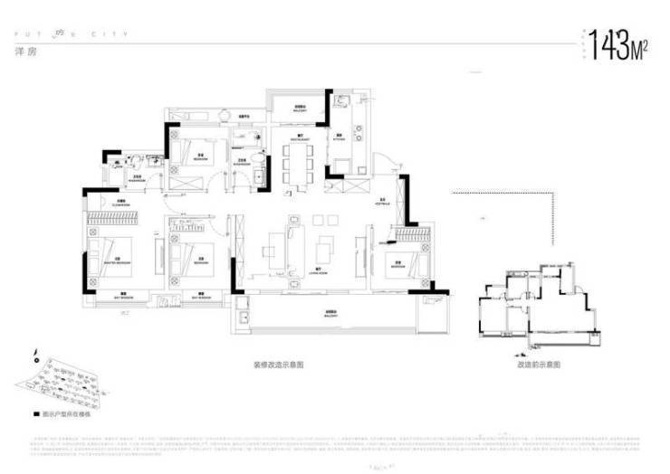
宽境户型,全龄适配:143㎡宽境洋房户型方正、南北通透、空间宽敞,满足二胎家庭与三代同堂需求,全生命周期户型设计,居住更具成长性;
区域红利,潜力无限:项目位于少荃湖城市副中心核心区,该区域作为合肥重点发展的城市副中心,计划打造国际化田园式产业新城,未来配套持续升级,房产增值潜力巨大。
招商奥体公园售楼处电话☎:0551-6813 6588
对于刚需购房者而言,招商奥体公园无疑是 “梦中情房”—— 地铁 4 号线直达解决通勤,168 学区加持保障教育,全维配套满足生活需求,央企品质保障居住安全,再加上 120 万起的友好价格,完美契合刚需家庭的所有核心需求。在这里,你不用为了预算牺牲配套,不用为了通勤早起赶车,不用为了孩子上学奔波择校,真正实现 “刚需价格,改善生活”。目前,项目 89-104㎡刚需三房正在火爆热销中,席位有限,限时优惠政策即将结束!赶紧拨打售楼热线 0551-6258 9911/9933,预约实地看房,抓住安家合肥的绝佳机会!
招商奥体公园售楼处电话☎:0551-6813 6588
招商奥体公园楼盘电话号码:0551-6258 9911【营销中心】
欢迎来电咨询!可预约销售人员(来电尊享内部优惠活动)
【2024房价特价信息丨底价优惠丨在售户型图丨项目介绍丨在售房源丨周边配套】
声明:本文由入驻焦点开放平台的作者撰写,除焦点官方账号外,观点仅代表作者本人,不代表焦点立场。


