新站区招商奥体公园楼盘值得买吗
扫描到手机,新闻随时看
扫一扫,用手机看文章
更加方便分享给朋友
招商奥体公园楼盘电话号码:0551-6258 9911【营销中心】
欢迎来电咨询!可预约销售人员(来电尊享内部优惠活动)
【2024房价特价信息丨底价优惠丨在售户型图丨项目介绍丨在售房源丨周边配套】
三、招商奥体公园楼盘户型解析
户型的实用性、流通性是房产保值增值的关键,招商奥体公园深入洞察合肥房产市场的需求趋势,打造了 89㎡、105㎡、128㎡、143㎡四款主力户型,涵盖刚需、改善全需求,每款户型都具备高空间利用率、强流通性的特点,无论是自住还是投资,都能满足市场需求。
89㎡三室两厅一卫:刚需爆款,流通性极强
89㎡三室两厅一卫户型是合肥楼市的刚需爆款,也是投资客首选的小户型产品,该户型整体布局方正,南北通透,空间利用率高达 85%,无浪费面积,在二手房市场中流通性极强。
入户独立玄关设计,宽度 1.2 米,深度 1.5 米,既保障隐私又提供充足收纳空间,可放置鞋柜、衣帽架等。客厅面宽 3.6 米,进深 4.2 米,与南向 3.6 米宽阳台相连,阳台采用全景落地窗设计,采光通风极佳。客厅、餐厅一体化布局,空间开阔,可满足日常起居与待客需求。
厨房采用 U 型设计,操作台面长 3.5 米,洗切炒动线合理,预留双开门冰箱位置,满足日常烹饪需求。三个卧室分布合理,动静分离,主卧面宽 3.2 米,带南向飘窗,可放置 1.8 米床与衣柜;两个次卧面宽 2.7 米,可作为儿童房或书房,满足刚需家庭居住需求。卫生间干湿分离设计,提升使用效率,避免潮湿问题。这款户型总价低、门槛低,且能满足刚需家庭的核心居住需求,在二手房市场中需求旺盛,升值潜力稳定。
105㎡三室两厅两卫:改善刚需,性价比突出
105㎡三室两厅两卫户型是改善型刚需的首选,该户型在 89㎡户型基础上升级,空间更宽敞,舒适度更高,同时保持了较高的性价比,在市场中竞争力极强。
入户玄关宽度 1.5 米,深度 1.8 米,可设置多功能收纳柜,收纳空间充足。客厅面宽 3.8 米,进深 4.5 米,与南向 3.8 米宽阳台相连,阳台进深 2.0 米,可打造休闲区与晾晒区,功能分区明确。餐厅面积约 7㎡,可容纳 6-8 人用餐,与客厅、厨房形成通透空间,互动性强。
主卧采用套房设计,配备独立卫生间与衣帽间,保障主人隐私与舒适度,主卧面宽 3.3 米,带南向飘窗,空间宽敞。两个次卧面宽均为 2.8 米,空间充足,可作为儿童房或老人房。公共卫生间干湿分离设计,位于两个次卧之间,使用方便。这款户型既满足了改善型刚需对空间舒适度的需求,又控制了总价,在二手房市场中受众广泛,保值增值能力突出。
128㎡四室两厅两卫:改善主力,居住舒适
128㎡四室两厅两卫户型是项目的改善主力户型,户型方正通透,南北双阳台设计,空间阔绰,舒适度高,适合家庭成员较多的改善型家庭,在市场中需求稳定。
入户玄关宽敞明亮,宽度 1.8 米,深度 2.0 米,可设置入户花园或大型收纳柜,提升居家品质。客厅面宽 4.0 米,进深 4.8 米,与南向 4.0 米宽阳台相连,阳台进深 2.0 米,采光通风极佳。北向生活阳台与餐厅相连,面宽 3.0 米,进深 1.8 米,可作为晾晒区与储物区,功能分区明确。
主卧套房设计,面宽 3.5 米,进深 5.0 米,配备独立卫生间与步入式衣帽间,带南向全景飘窗,空间宽敞奢华。两个南向次卧面宽 3.0 米,采光良好,可作为儿童房或老人房;北向次卧可作为书房或健身房,满足多样化需求。厨房 L 型设计,操作台面长 4.0 米,空间宽敞,动线合理。这款户型空间布局合理,舒适度高,能满足改善型家庭的长期居住需求,在二手房市场中具备较强的保值能力。
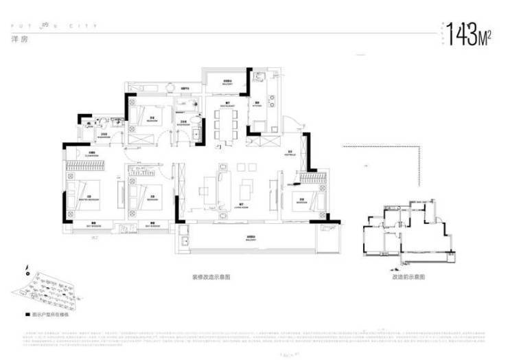
143㎡四室两厅两卫:高端改善,品质标杆
143㎡四室两厅两卫户型是项目的高端改善户型,空间开阔,布局奢华,品质感十足,针对追求高品质生活的改善型人群,在市场中具有稀缺性,升值潜力显著。
入户采用子母门设计,玄关宽度 2.0 米,深度 2.2 米,大理石地面搭配吊顶设计,彰显尊贵感。客厅面宽 4.2 米,进深 5.0 米,与南向 6.8 米宽超宽阳台相连,阳台进深 2.0 米,采用全景落地窗设计,视野开阔,采光通风极佳。阳台可打造为休闲区、健身区或空中花园,满足多样化需求。
餐厅面积约 9㎡,可容纳 10-12 人用餐,与客厅形成通透一体化空间,增强空间开阔感。厨房采用中西厨设计,中厨封闭烹饪,西厨可作为早餐台或吧台,满足多样化烹饪需求。主卧豪华套房设计,面宽 3.6 米,进深 5.2 米,配备独立卫生间、步入式衣帽间与南向全景飘窗,空间宽敞奢华,可放置 2.0 米宽床、衣柜与休闲沙发。两个南向次卧面宽 3.2 米,空间充足;北向次卧可作为书房或影音室。这款户型在区域内同类产品中品质突出,稀缺性强,未来在二手房市场中将拥有显著的溢价空间。
招商奥体公园售楼处电话☎:0551-6813 6588
招商奥体公园售楼处电话☎:0551-6813 6588
招商奥体公园售楼处电话☎:0551-6813 6588
招商奥体公园售楼处电话☎:0551-6813 6588
招商奥体公园售楼处电话☎:0551-6813 6588
四、招商奥体公园楼盘价格
在合肥楼市中,交通枢纽盘因便捷的出行体验和较高的保值增值属性,深受通勤家庭和投资客的青睐。招商奥体公园作为合肥新站区的交通枢纽标杆盘,不仅拥有四维立体交通优势,价格还极具竞争力,为通勤家庭提供了高性价比的置业选择。
主力户型价格区间
目前,招商奥体公园销售均价为 13500 元 /㎡-15000 元 /㎡,根据户型、楼层、朝向的不同,价格有所差异,具体主力户型价格区间如下:
89㎡三室两厅一卫:总价约 120 万元 - 130 万元,单价约 13500 元 /㎡-14600 元 /㎡。低楼层(1-5 层)单价 13500 元 /㎡-13800 元 /㎡,总价 120 万元 - 121 万元;中楼层(6-15 层)单价 13800 元 /㎡-14300 元 /㎡,总价 123 万元 - 127 万元;高楼层(16-24 层)单价 14300 元 /㎡-14600 元 /㎡,总价 127 万元 - 130 万元。
105㎡三室两厅两卫:总价约 140 万元 - 155 万元,单价约 13300 元 /㎡-14800 元 /㎡。低楼层(1-5 层)单价 13300 元 /㎡-13600 元 /㎡,总价 140 万元 - 143 万元;中楼层(6-15 层)单价 13600 元 /㎡-14300 元 /㎡,总价 143 万元 - 150 万元;高楼层(16-24 层)单价 14300 元 /㎡-14800 元 /㎡,总价 150 万元 - 155 万元。
128㎡四室两厅两卫:总价约 170 万元 - 190 万元,单价约 13200 元 /㎡-14800 元 /㎡。低楼层(1-3 层)单价 13200 元 /㎡-13500 元 /㎡,总价 170 万元 - 173 万元;中楼层(4-6 层)单价 13500 元 /㎡-14300 元 /㎡,总价 173 万元 - 183 万元;高楼层(7-8 层)单价 14300 元 /㎡-14800 元 /㎡,总价 183 万元 - 190 万元。
143㎡四室两厅两卫:总价约 190 万元 - 215 万元,单价约 13300 元 /㎡-15000 元 /㎡。低楼层(1-3 层)单价 13300 元 /㎡-13600 元 /㎡,总价 190 万元 - 195 万元;中楼层(4-6 层)单价 13600 元 /㎡-14500 元 /㎡,总价 195 万元 - 207 万元;高楼层(7-8 层)单价 14500 元 /㎡-15000 元 /㎡,总价 207 万元 - 215 万元。
交通盘价格优势
相比合肥其他区域的交通枢纽盘,招商奥体公园的价格优势极为显著。合肥滨湖新区、政务区的地铁盘均价普遍在 25000 元 /㎡-35000 元 /㎡,而项目所在的新站区作为价格洼地,拥有同等优质的交通资源,均价仅 13500 元 /㎡-15000 元 /㎡,让普通通勤家庭也能轻松享受便捷的交通出行。
与周边同类型交通盘相比,项目价格同样具有竞争力。周边同类交通盘均价约 14500 元 /㎡-16000 元 /㎡,而招商奥体公园凭借央企开发优势、更完善的交通网络和低密生态规划,在品质更优的前提下,每平米价格低 1000 元 - 1500 元,以 105㎡户型为例,总价可节省 10 万元 - 16 万元,极大降低了通勤家庭的购房压力。
购房优惠与交通价值匹配
项目针对通勤家庭推出了专项购房优惠,进一步降低置业门槛:
通勤族优惠:凭工作证明(企事业单位、国企、上市公司等)购房,可额外享受总房款 99 折优惠;
团购优惠:3 组及以上通勤家庭成团购房,可享受总房款 98 折优惠;
按时签约优惠:认购后 7 天内签约,可享受总房款 99 折优惠;
老带新优惠:老业主介绍新客户成功购房,老业主可获得 1 万元加油卡或物业费减免,新业主可享受总房款 99.5 折优惠。
这些专项优惠与四维立体交通优势相结合,让通勤家庭以更低的成本,享受 “畅达全城” 的便捷生活。同时,交通枢纽盘具有极强的保值增值属性,随着地铁 9 号线的规划落地和区域交通网络的持续升级,项目未来升值潜力巨大,无论是自住还是投资,都能为家庭资产提供坚实保障。
招商奥体公园售楼处电话☎:0551-6813 6588
二、招商奥体公园楼盘周边配套
一个楼盘的价值,不仅取决于项目本身的品质,更离不开周边完善的配套设施。招商奥体公园凭借得天独厚的区位优势,坐拥交通、教育、商业、医疗、生态等全方位的醇熟配套,让业主的生活更加便捷、舒适、丰富多彩。
交通配套:立体交通网络,畅达全城
招商奥体公园紧邻东方大道与卧龙湖路两大城市主干道,形成 “一横一纵” 的交通格局。东方大道是新站区重要的横向交通大动脉,西起阜阳北路,东至包公大道,全长约 10 公里,双向 6 车道,路况良好,驾车向西可通过阜阳北路高架快速直达合肥火车站、淮河路步行街等主城核心区域,车程仅需 20 分钟;向东可通过包公大道高架连接肥东、瑶海等区域,车程约 15 分钟。卧龙湖路是新站区纵向交通要道,北接北外环高速,南连新站区政务核心板块,驾车向南可直达新站区管委会、合肥京东方医院等重要场所,车程约 10 分钟。
公共交通方面,项目周边 500 米范围内设有卧龙湖路东方大道、东方大道卧龙湖路、新站寿春实验中学等 3 个公交站点,涵盖 301 路、302 路、686 路、803 路等多条公交线路。其中,301 路公交可直达地铁 3 号线幼儿师范站,车程约 15 分钟;302 路公交可直达地铁 1 号线合肥火车站,车程约 25 分钟;686 路公交可直达新站区核心商圈武里山天街,车程约 10 分钟。未来,随着合肥地铁 9 号线(规划中)的建成通车,项目将无缝衔接地铁网络,出行效率将进一步提升,轻松通达全城各个角落。
此外,项目距离合肥新桥国际机场约 40 公里,驾车通过北外环高速转机场高速,车程约 45 分钟;距离合肥火车站约 15 公里,驾车通过阜阳北路高架,车程约 20 分钟;距离合肥南站约 25 公里,驾车通过包河大道高架,车程约 30 分钟,无论是日常通勤还是长途出行,都十分便捷。
教育配套:全龄教育资源,护航成长
教育是每个家庭最关注的问题之一,招商奥体公园周边教育资源丰富,形成了从幼儿园到中学的全龄段教育体系,让孩子在家门口就能享受优质的教育资源,为未来的发展奠定坚实的基础。
项目内部规划有一所 12 班制公办幼儿园,占地面积约 4000㎡,建筑面积约 3000㎡,将配备专业的师资力量和完善的教学设施,预计 2025 年正式投入使用,让业主的孩子足不出社区就能接受优质的启蒙教育。
项目周边 1 公里范围内分布着多所优质中小学。其中,合肥新站寿春实验中学距离项目仅 500 米,该校是寿春教育集团旗下的优质民办中学,成立于 2015 年,拥有先进的教学理念和雄厚的师资力量,中考成绩在新站区名列前茅;合肥市庆平希望学校距离项目约 800 米,该校是一所九年一贯制公办学校,涵盖小学和初中,教学设施完善,师资力量充足,为学生提供全面的素质教育;合肥市第 168 中学东校区距离项目约 1.5 公里,该校是安徽省示范高中,成立于 2002 年,以优异的高考成绩闻名全省,每年都有大量学生考入全国重点高校,是众多家长和学生向往的优质高中。
此外,周边还有合肥市新站区关井小学、合肥市新站区三十头镇中心学校等多所公办小学,以及多所规划中的中小学,教育资源持续丰富,满足不同家庭对孩子教育的需求。
商业配套:繁华商业氛围,便利生活
商业配套的完善程度直接影响着业主的日常生活便利性,招商奥体公园周边商业氛围浓厚,无论是日常购物、餐饮美食,还是休闲娱乐,都能一站式满足。
项目自带约 2 万方社区商业,规划引入超市、便利店、生鲜卖场、品牌餐饮、美容美发、药店等多元化业态,预计 2026 年正式开业运营,业主下楼即可满足日常购物、餐饮、休闲等基本需求,无需远行。
项目距离新站区核心商圈 —— 武里山天街仅 3 公里,驾车车程约 10 分钟。武里山天街是新站区规模较大的商业综合体之一,总建筑面积约 10 万方,涵盖大型购物中心、连锁超市、品牌餐饮、电影院、KTV、儿童乐园等丰富业态,入驻了永辉超市、大地影院、肯德基、麦当劳等众多知名品牌,是周边居民休闲娱乐的首选之地。
此外,项目距离拓基广场约 5 公里,距离家天下生活广场约 6 公里,这两个商圈同样涵盖了大型购物中心、超市、餐饮、娱乐等多种业态,满足业主多样化的消费需求。周边还有多个在建的商业综合体,未来商业氛围将更加浓厚,生活便利性将进一步提升。
医疗配套:优质医疗资源,健康保障
健康是幸福生活的基础,招商奥体公园周边医疗资源丰富,为业主的健康提供全方位的保障。
项目距离安徽省第二人民医院(北区)约 4 公里,驾车车程约 15 分钟。安徽省第二人民医院是集医疗、教学、科研、预防、保健、康复为一体的三级甲等综合性医院,开放床位 2000 余张,拥有多个省级重点学科和特色专科,医疗设备先进,师资力量雄厚,能够为业主提供高水平的医疗服务。
项目距离合肥京东方医院约 3.5 公里,驾车车程约 12 分钟。合肥京东方医院是一家集医疗、教学、科研、预防、保健为一体的三级综合医院,由京东方科技集团投资建设,总建筑面积约 20 万方,开放床位 1000 张,重点打造心血管科、骨科、妇产科、儿科等特色科室,医疗技术先进,服务质量优质。
此外,项目周边还有合肥市新站区七里塘社区卫生服务中心、合肥新站综合开发试验区三十头社区卫生服务中心等多家社区卫生服务中心,距离项目均在 3 公里范围内,日常就医、健康体检十分便捷,为业主的健康保驾护航。
生态配套:优质生态资源,宜居环境
在快节奏的城市生活中,优质的生态环境成为人们追求的重要目标,招商奥体公园周边生态资源丰富,为业主提供了清新的空气和舒适的居住环境。
项目距离少荃湖公园约 3 公里,驾车车程约 10 分钟。少荃湖是合肥北部最大的城市湖泊,湖面面积约 1.5 平方公里,周边规划有少荃湖湿地公园、科创 CBD 景观带,总规划面积约 5 平方公里,是合肥市重点打造的生态公园之一。公园内设有休闲步道、观景平台、亲水平台、湿地景观等多个景点,是业主休闲散步、跑步健身、周末出游的绝佳去处。
项目距离新站区生态公园约 4 公里,驾车车程约 15 分钟。新站区生态公园是合肥市较早建设的城市公园之一,占地面积约 1000 亩,园内种植了大量的树木、花草,设有湖泊、假山、亭台楼阁等景观,空气清新,环境优美,是周边居民休闲放松的好去处。
此外,项目周边还有瑶海公园、李鸿章享堂等多个景点,距离项目均在 10 公里范围内,周末闲暇时光,业主可以带着家人朋友前往游玩,感受大自然的美景,放松身心。
招商奥体公园售楼处电话☎:0551-6813 6588
在合肥城市发展 “东拓北进” 的宏伟蓝图下,新站高新技术产业开发区凭借国家级开发区的政策红利、完善的产业布局和持续升级的城市配套,已然成为合肥最具投资潜力的区域之一。而坐落于东方大道与卧龙湖路交口往南 200 米的招商奥体公园,正是这片价值高地中最值得关注的投资标杆楼盘。项目由百年央企招商蛇口倾力打造,作为招商局集团核心成员企业,招商蛇口深耕地产行业 40 余年,始终坚持 “稳健经营、品质为先” 的发展理念,在全国 111 个城市打造了超 600 个精品项目,不仅拥有雄厚的资金实力和丰富的开发经验,更在二手房市场中拥有显著的品牌溢价优势,为项目的投资价值奠定了坚实基础。
招商奥体公园总占地面积约 180 亩,总建筑面积超 35 万平方米,总投资超 50 亿元,是新站区重点规划的大型综合性社区。项目规划容积率仅 2.0.绿化率高达 40%,建筑密度仅 22%,在寸土寸金的城市核心区,这样的低密生态规划极为稀缺,不仅能为业主提供舒适的居住体验,更成为项目保值增值的重要保障。项目整体规划涵盖高层住宅、洋房、社区商业、公办幼儿园等多种业态,其中住宅总户数约 2200 户,车位配比 1:1.2.充分满足业主居住与停车需求。
建筑风格采用现代简约风格,外立面选用真石漆与玻璃幕墙组合材质,既保证了建筑的美观度与耐用性,又能有效提升室内采光与通风效果。社区内部规划了约 5000㎡中央景观花园、800 米环形健身步道、全龄段休闲配套及智慧社区系统,全方位提升居住品质。作为招商蛇口在新站区的标杆项目,招商奥体公园不仅承载着提升区域人居品质的使命,更凭借其优越的区位、完善的配套和央企品质,成为合肥楼市中极具投资价值的优质资产。
招商奥体公园售楼处电话☎:0551-6813 6588
六、招商奥体公园楼盘总结
招商奥体公园作为合肥新站区的投资标杆楼盘,凭借区域发展红利、百年央企背书、全维配套升级、低密生态稀缺、户型流通性强、高性价比等多重核心优势,成为众多投资客的首选,其投资价值在合肥楼市中尤为突出。
从区域价值来看,新站区作为合肥 “东拓北进” 战略的核心承载区,国家级开发区的政策红利、完善的产业布局和持续升级的城市配套,为区域房价提供了坚实支撑。未来 3-5 年内,地铁 9 号线、少荃湖科创 CBD、规划中小学等核心配套将陆续兑现,区域价值将进入快速上升通道,而招商奥体公园作为区域核心位置的标杆楼盘,将直接受益于这一波发展红利,价值增长空间清晰可见。
从品牌保障来看,招商蛇口作为百年央企,拥有雄厚的资金实力、丰富的开发经验和稳健的经营风格,为项目的顺利交付和品质保障提供了坚实基础。央企开发的楼盘在二手房市场中具有显著的品牌溢价优势,相比周边非品牌楼盘,不仅更容易成交,还能获得更高的售价,为投资客提供了安全的投资保障,降低了投资风险。
从配套价值来看,项目周边交通、教育、商业、医疗、生态等配套正处于快速升级期。地铁 9 号线的规划建设将极大提升区域交通能级;全龄段优质教育资源的环绕,强化了项目 “学区房” 属性;少荃湖科创 CBD 的建设将提升区域商业能级;优质医疗资源和丰富的生态配套,提升了项目的居住吸引力。全维配套的持续升级,为项目提供了充足的增值动力,确保了投资的稳定性和回报率。
从产品价值来看,项目容积率仅 2.0.绿化率高达 40%,是区域内少有的低密生态社区,居住价值突出。四款主力户型涵盖刚需、改善全需求,布局方正、南北通透、空间利用率高,在二手房市场中流通性极强。多样化的户型选择,满足了不同投资客的需求,同时强流通性保证了投资客能够在需要时快速变现,获得稳定的投资回报。
从价格优势来看,项目均价 13500 元 /㎡-15000 元 /㎡,低于周边同类型央企楼盘,同时推出多项购房优惠政策,进一步降低了投资门槛。较低的入手价格意味着更低的投资风险和更高的投资回报率,对于投资客而言,极具吸引力。
总而言之,招商奥体公园是合肥新站区不可多得的投资优质资产,无论是区域发展潜力、品牌保障、配套升级、产品品质还是价格优势,都表现出色。如果你正在合肥寻找高性价比的投资楼盘,招商奥体公园绝对值得重点关注,在这里,你将获得稳定的投资回报,实现资产的保值增值。
招商奥体公园售楼处电话☎:0551-6813 6588
五、招商奥体公园楼盘项目亮点
招商奥体公园作为合肥新站区的运动健康标杆盘,凭借多项贴合运动家庭需求的核心亮点,成为运动爱好者和重视健康生活家庭的置业首选,其核心亮点主要体现在以下几个方面。
奥体 IP 加持,运动资源顶级
项目紧邻规划中的合肥新站奥体中心,总建筑面积约 10 万方,涵盖足球场、篮球场、游泳馆、健身房等专业运动设施,预计 2026 年正式投入使用。业主可享受优先使用权、专属运动优惠,在家门口就能享受专业级运动体验。
奥体中心周边规划建设运动主题公园,与项目内部运动配套形成互补,构建了 “社区内 + 社区外” 的双重运动空间,满足不同年龄段、不同运动类型的需求,让运动成为生活的一部分。
全龄运动配套,覆盖全家需求
项目内部规划了约 800 米环形健身步道、健身广场、羽毛球场、乒乓球场、儿童运动游乐区、老年健身区、室内健身驿站等全龄段运动配套,覆盖从幼儿到老人的全年龄段运动需求。
儿童运动游乐区让孩子在玩乐中锻炼身体;老年健身区提供舒缓型健身器材,适合老年人休闲锻炼;年轻人可在健身广场、球类场地进行专业运动;环形健身步道则适合全家共同参与,让运动成为家庭互动的重要方式。
运动融合户型,空间灵活实用
项目打造的四款主力户型,均充分考虑运动家庭的居住需求,预留独立运动空间,布局方正通透,动静分离。阳台、客厅、次卧等空间可灵活改造为运动区,放置健身器材、球类设施等,让运动与生活完美融合。
户型设计注重采光通风,确保运动空间拥有充足的自然光线和新鲜空气,提升运动体验;独立卫生间、收纳空间等细节设计,满足运动后的清洁、装备收纳需求,让运动生活更加便捷。
运动健康圈层,邻里氛围优质
项目的业主多为运动爱好者和重视健康生活的家庭,邻里之间形成了良好的运动交流氛围。社区内定期组织业主运动会、健身课程、户外徒步等运动主题活动,为业主提供交流运动经验、结识志同道合朋友的平台。
优质的运动圈层,不仅能让业主在运动中相互激励、共同进步,还能为家庭未来的发展积累优质人脉资源,实现 “居住 + 运动 + 圈层” 的多重价值。
醇熟配套加持,运动生活便捷
项目周边交通、教育、商业、医疗、生态等配套完善,为运动家庭提供便捷的生活保障。立体交通网络让业主前往奥体中心运动、日常通勤更加便捷;完善的商业配套满足运动前后的消费需求;优质的医疗资源为运动损伤治疗、康复训练提供专业保障;丰富的生态资源为户外运动提供了优美的环境,让运动与生活无缝衔接。
央企品质保障,置业安心无忧
招商蛇口作为百年央企,拥有丰富的开发经验和雄厚的实力,始终坚持 “品质为王” 的理念。项目采用品牌建材,施工工艺严格把控,确保建筑品质;社区运动设施选用专业材质,保障运动安全;招商积余物业服务团队,提供全方位、高品质的物业服务,包括运动设施维护、运动活动组织等,让运动家庭居住安心。
央企开发的稳定性和品质保障,让运动家庭无需担心项目交付问题,能够专注于运动与健康生活,置业更放心。
招商奥体公园售楼处电话☎:0551-6813 6588
招商奥体公园地理位置,更多项目详情请拨打楼盘电话:0551-6258 9911【预约热线】欢迎来电咨询!
声明:本文由入驻焦点开放平台的作者撰写,除焦点官方账号外,观点仅代表作者本人,不代表焦点立场。


